Vogeltuinen 18, Den Haag

Vogeltuinen 18 vraagprijs  € 300.000 k.k.


Vogeltuinen 18, Loosduinen

In de ‘Tuinenbuurt’ nabij Loosduinen en Houtwijk gelegen een twee-laags eengezinswoning met achteruitbouw en riant terras.

De woning is gelegen op eigen grond en dient gemoderniseerd te worden. Tevens mogelijkheid voor het creëren van een dakopbouw voorzien van 2 extra slaapkamers en een badkamer.

INDELING
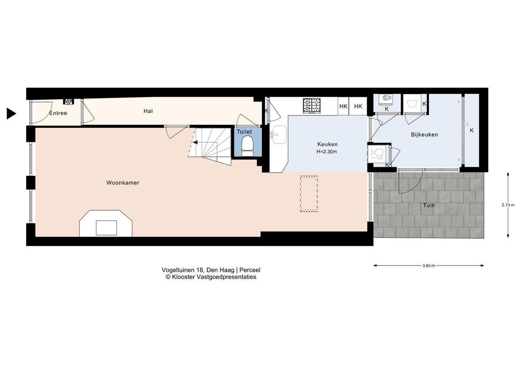
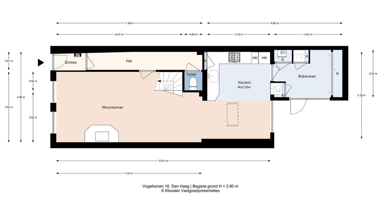
Entree woning, tochtportaal met meterkast, tochtdeur, gang en separaat toilet.

Woon-/eetkamer voorzien van parketvloer, hout open haard, uitbouw met een eenvoudige L-vormige keuken met 4-pits gasfornuis, afzuigkap, koel-/vriescombinatie, apothekerskast, lichtkoepel, toegang tot de bijkeuken, eerste vaste kast met opstelplaats cv-ketel, tweede vaste kast met wasmachine-aansluiting, kastenwand en deur naar de achtertuin, gelegen op het noordoosten.

1e VERDIEPING
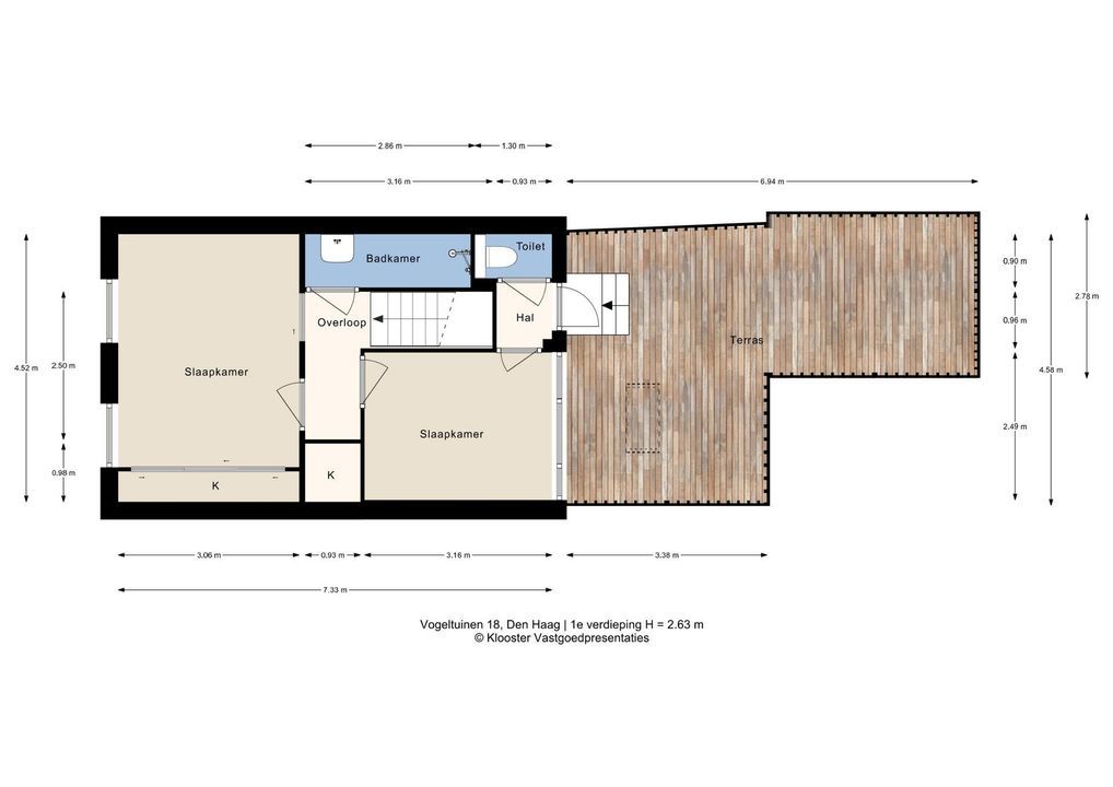
Overloop, vaste kast en geheel betegelde badkamer voorzien van inloopdouche en wastafel met meubel en handdoekradatior.

Lichte en ruime voorslaapkamer (voorheen 2 kamers) met kastenwand. Achterslaapkamer, hal en 2e separaat toilet. Vanuit de hal en trapje toegang tot het riante, zonnige dakterras (ca. 22 m²), gelegen op het noordoosten.

Voor de afmetingen van de kamers verwijzen wij u naar de plattegronden.

BIJZONDERHEDEN
De woning is gelegen op eigen grond.
Aanvaarding in overleg.
Rioolheffing 2025 € 191,15.
Elektra 6 groepen met aardlekschakelaar.
Verwarming middels c.v.-combiketel, merk Intergas, bouwjaar 2019.
Warmwatervoorziening middels c.v.-combiketel.
De onderhoudssituatie van het sanitair en de keuken is redelijk.
De onderhoudssituatie binnen en buiten is redelijk.
De woning is grotendeels voorzien van dubbel glas. De voorzijde is voorzien van kunststof en houten kozijnen en de achterzijde is voorzien van houten kozijnen.
Er is geen vergunning aanwezig voor de uitbouw en het terras op de 1e verdieping.
Verkoper heeft de woning nooit zelf feitelijk gebruikt.
Koper is vrij in notariskeuze, echter wel in regio Haaglanden.
De lood- /asbest- en ouderdomsclausules zijn van toepassing.
Bouwjaar ca. 1916.
Woonoppervlakte ca. 90 m².
De inhoud van de woning is ca. 335 m³.
De woning is bouwkundig gekeurd.
Model NVM-koopakte van toepassing.

NABIJ
Op loopafstand van diverse voorzieningen zoals winkelcentrum Houtwijk, Loosduinen en Alphons Diepenbrockhof met diverse winkels, sport- en recreatievoorzieningen, openbaar vervoer en de badplaats Kijkduin op ongeveer 15 minuten fietsen. Ook recreatiegebieden Madestein en Ockenburgh liggen in de directe omgeving.

KADASTRALE INFORMATIE:
Gemeente : Loosduinen
Sectie : H
Nummer : 1917
Grootte : 71 centiare

De Meetinstructie is gebaseerd op de NEN2580. De Meetinstructie is bedoeld om een meer eenduidige manier van meten toe te passen voor het geven van een indicatie van de gebruiksoppervlakte. De Meetinstructie sluit verschillen in meetuitkomsten niet volledig uit, door bijvoorbeeld interpretatieverschillen, afrondingen of beperkingen bij het uitvoeren van de meting.

Interesse in dit huis? Schakel direct uw eigen NVM-aankoopmakelaar in.
Uw NVM-aankoopmakelaar komt op voor uw belang en bespaart u tijd, geld en zorgen.

Adressen van collega NVM-aankoopmakelaars in Haaglanden vindt u op Funda.

########################################################

Located in the "Tuinenbuurt" neighborhood near Loosduinen and Houtwijk, this two-story family home features a rear extension and a spacious terrace.

The house is situated on freehold land and requires modernization. There is also the possibility of creating a roof extension with two additional bedrooms and a bathroom.

LAYOUT
Entrance hall with meter cupboard, door, hallway, and separate toilet.

Living/dining room with parquet flooring, a wood-burning fireplace, and an extension with a simple L-shaped kitchen featuring a 4-burner gas stove, extractor hood, fridge/freezer, pantry cupboard, skylight, and access to the utility room with a built-in cupboard houses the central heating boiler, a second built-in cupboard with a washing machine connection, a wall of built-in cupboards, and a door to the northeast-facing back garden.

FIRST FLOOR
Landing, built-in cupboard, and a fully tiled bathroom with a walk-in shower, vanity unit, and towel radiator.

Bright and spacious front bedroom (formerly two rooms) with a built-in wardrobe. A rear bedroom, hallway, and a second separate toilet are also accessible. The hallway and stairs lead to the spacious, sunny roof terrace (approx. 22 m²), facing northeast.

- For the dimensions of the rooms please refer to the floor plans.

SPECIAL FEATURES
The property is freehold.
Acceptance in agreement.
Sewage charges 2025 € 191,15.
Electricity 6 groups with circuit breaker.
Central heating system, brand Intergas, built in 2019.
Hot water supply by central heating system.
The condition of the bathroom and the kitchen is reasonable.
The condition of the interior and the exterior is reasonable.
The house is largely double-glazed. The front has synthetic and wooden window frames, and the rear has wooden frames.
There is no permit for the extension and the terrace on the 1st floor.
Seller has the house itself never actually used.
The buyer is free to choose a notary, but must be located in the Haaglanden region.
The lead-/asbestos and age clauses will be applied.
Built in approx. 1916.
Living surface approx. 90 m².
The volume of the house approx. 335 m³.
Technical survey available.
NVM model deed applicable.

NEAR
Within walking distance of various amenities, including the Houtwijk shopping center, Loosduinen, and Alphons Diepenbrockhof, with its diverse shops, sports and recreational facilities, public transport, and the seaside resort of Kijkduin, about a 15-minute bike ride away. The Madestein and Ockenburgh recreation areas are also nearby.

The measurement instruction is based on NEN2580. The measurement instruction is intended to apply a more uniform way of measuring for giving an indication of the use surface. The measurement instruction can not completely close differences in measurement results, for example by differences in interpretation, rounding or limitations in the performance of the measurement.

Locatie

[ { "address": "Vogeltuinen 18", "zipCode": "2551 VL", "city": "Den Haag", "lat": 52.0580027, "lng": 4.2478851, "heading": 0, "pitch": 0 } ]

Kenmerken

Vraagprijs
€ 300.000 k.k.
Status
Verkocht onder voorbehoud
Oplevering
In overleg

Bouw

Soort woonhuis
Eengezinswoning, Tussenwoning
Soort bouw
Bestaande bouw
Bouwjaar
1916
Onderhoud binnen
Redelijk
Onderhoud buiten
Redelijk

Oppervlakten en inhoud

Woonoppervlakte
90m²
Perceeloppervlakte
71m²
Inhoud
335m³

Indeling

Aantal kamers
4
Aantal slaapkamers
2
Aantal badkamers
1
Aantal verdiepingen
2

Energie

Energielabel
D
Isolatie
Grotendeels dubbelglas
Warm water
C.V.-ketel
Verwarming
C.V.-ketel
Ketel
Intergas (2019, Combi-ketel, Eigendom)

Buitenruimte

Ligging
Aan rustige weg, In woonwijk
Tuin
Achtertuin
Achtertuin
Noordoost, 8m², 213×360cm

Garage

Plattegronden

Bekijk verloop van de zon

Uw browser ondersteunt geen WebGL

Afspraak of contact

Wilt u meer weten over deze woning of een bezichtiging plannen? Bel of mail ons of vul het formulier in.


Uw bericht is naar ons verzonden. Wij nemen zo snel mogelijk contact met u op.

Er is iets mis gegaan met het versturen van het formulier.
Controleer of u alle velden (goed) heeft ingevoerd en probeer het nog een keer.

recaptcha
reCAPTCHA
PrivacyTerms

Heeft u een vraag?
Bel ons (070) 365 00 00
of mail info@joostvanvliet.nl

Vergelijkbare woningen