Laan van Meerdervoort 1468, Den Haag

Laan van Meerdervoort 1468 vraagprijs  € 350.000 k.k.


Laan van Meerdervoort 1468, Bohemen links

Gelegen nabij landgoed Meer en Bos en strand, zee en duinen 4-kamer appartement op de 2e verdieping met balkon en berging in de onderbouw. De woning dient gemoderniseerd te worden.

INDELING:
Verzorgd gesloten portiek met videofoonsysteem en lift naar de 3e woonlaag.

Entree appartement, gang met laminaatvloer doorgelegd in alle kamers, meterkast, geheel betegelde badkamer voorzien van inloopdouche en wastafelmeubel, toilet met duoblok.

L-vormige woon-/eetkamer aan de voorzijde met erker, ruime achterslaapkamer met kastenwand en toegang naar het balkon.

Tussengelegen keuken met eenvoudig keukenblok voorzien van 4-pits gasfornuis, oven en aansluiting voor de wasmachine.

2e achterslaapkamer annex balkon voorzien van een 2 balkonkasten.

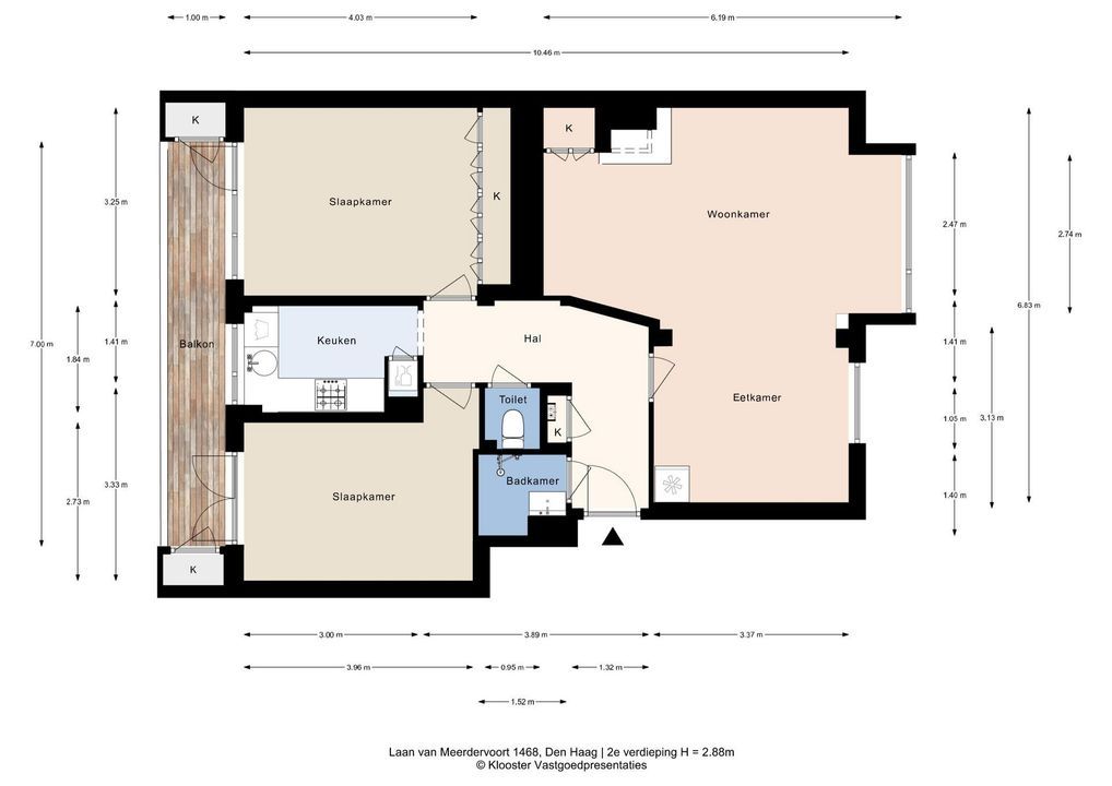
Voor de afmetingen van de kamers verwijzen wij u naar de plattegronden.

BIJZONDERHEDEN
Gelegen op eeuwigdurende erfpachtgrond. De canon bedraagt € 704,-- per jaar, gebaseerd op een grondwaarde van € 17.600,-- (=afkoopsom) en een canonpercentage van 4%. Herziening canonpercentage per 1 juli 2028.
Aanvaarding in overleg.
Rioolheffing 2025 € 191,15 per jaar.
1/20ste aandeel in de gemeenschap.
Actieve Vereniging van Eigenaren, bijdrage € 285,-- per maand.
Elektra 3 groepen zonder aardlekschakelaar.
Verwarming middels c.v.-combiketel, merk Remeha, bouwjaar 2014. Warmwatervoorziening middels c.v.-combiketel.
De onderhoudssituatie van het sanitair en de keuken is redelijk.
De onderhoudssituatie binnen is redelijk tot goed en buiten goed.
Het appartement is aan de voorzijde voorzien van kunststof kozijnen met dubbel glas en aan de achterzijde voorzien van houten kozijnen met HR glas.
Verkoper heeft de woning nooit zelf feitelijk gebruikt.
Koper is vrij in notariskeuze, echter wel in regio Haaglanden.
De lood- /asbest- en ouderdomsclausules zijn van toepassing.
Bouwjaar ca. 1955.
Woonoppervlakte ca. 79 m².
De inhoud van het appartement is ca. 290 m³.
Model NVM-koopakte van toepassing.

NABIJ
Winkelcentra aan het Alphons Diepenbrockhof en het de Savornin Lohmanplein,
Badplaats Kijkduin, Landgoed Meer en Bos, Bosjes van Pex, duinen, strand en zee.
Openbaar vervoer, (RandstadRail lijn 3 en bus 24), uitvalswegen via Hubertustunnel en Westlandroute.
Europese en/of International School of The Hague, basisscholen en diverse sportfaciliteiten.

KADASTRALE INFORMATIE
Gemeente : Loosduinen
Sectie : H
Nummer : 5929
Appartementsindex : -8

De Meetinstructie is gebaseerd op de NEN2580. De Meetinstructie is bedoeld om een meer eenduidige manier van meten toe te passen voor het geven van een indicatie van de gebruiksoppervlakte. De Meetinstructie sluit verschillen in meetuitkomsten niet volledig uit, door bijvoorbeeld interpretatieverschillen,afrondingen of beperkingen bij het uitvoeren van de meting.

Interesse in dit huis? Schakel direct uw eigen NVM-aankoopmakelaar in.
Uw NVM-aankoopmakelaar komt op voor uw belang en bespaart u tijd, geld en zorgen.
Adressen van collega NVM-aankoopmakelaars in Haaglanden vindt u op Funda.

*************************************************

Located near the Meer en Bos estate and the beach, sea, and dunes, this 4-room apartment on the third floor features a balcony and storage space in the basement. The apartment requires modernization.

LAYOUT:
Well-maintained enclosed porch with a video intercom system and elevator to the third floor.

Apartment entrance, hallway with laminate flooring throughout, meter cupboard, fully tiled bathroom with a walk-in shower and vanity, toilet.

L-shaped living/dining room at the front with a bay window, spacious rear bedroom with a wall of wardrobes and access to the balcony.

Intermediate kitchen with a basic kitchen unit equipped with a 4-burner gas stove, oven, and connection for the washing machine.

Second rear bedroom with access to the balcony and two balcony cupboards.

For the dimensions of the rooms please refer to the floor plans.

SPECIAL FEATURES
Eternal lease-hold land. The rent charge is € 704.-- per year, based on a land value of € 17,600.-- (= redemption) and a rent rate of 4%. Review rent rates by July 1st, 2028.
Acceptance in agreement.
Sewerage charges 2025 € 191.15 per year.
1/20th share in the community.
Active Owners Association, contribution € 285.-- each month.
Electricity 3 groups without circuit breaker.
Central heating system, brand Remeha, built in 2014.
Hot water supply by central heating system.
The condition of the bathroom and the kitchen is reasonable.
The condition of the interior is reasonable/good and the exterior good.
The apartment has in front synthetic window frames with double glazing and at the back wooden window frames with HR glazing.
Seller has the apartment itself never actually used.
The buyer is free to choose a notary, but must be located in the Haaglanden region.
The lead-/asbestos and age clauses will be applied.
Built in approx. 1955.
Living surface approx. 79 m².
The volume of the apartment approx. 290 m³.
NVM model deed applicable.

NEAR
Shops at The Savornin Lohmanplein and Alphons Diepenbrockhof, Boulevard of Kijkduin, Meer and Bos, Bosjes van Pex, dunes, beach and sea. Public transport, (RandstadRail line 3 and busline 23), main roads through Hubertus tunnel and Westland Road. European- and International School of The Hague, various schools and sport facilities.

The measurement instruction is based on NEN2580. The measurement instruction is intended to apply a more uniform way of measuring for giving an indication of the use surface. The measurement instruction can not completely close differences in measurement results, for example by differences in interpretation, rounding or limitations in the performance of the measurement.

Locatie

[ { "address": "Laan van Meerdervoort 1468", "zipCode": "2555 CL", "city": "Den Haag", "lat": 52.064968, "lng": 4.239139, "heading": 0, "pitch": 0 } ]

Kenmerken

Vraagprijs
€ 350.000 k.k.
Status
Beschikbaar
Oplevering
In overleg

Bouw

Soort appartement
Portiekflat, Appartement
Woonlaag
3
Soort bouw
Bestaande bouw
Bouwjaar
1955
Onderhoud binnen
Goed
Onderhoud buiten
Goed

Oppervlakten en inhoud

Woonoppervlakte
79m²
Overig oppervlakte
1m²
Inhoud
290m³

Indeling

Aantal kamers
4
Aantal slaapkamers
2
Aantal badkamers
1
Aantal verdiepingen
1
Voorzieningen
Lift

Energie

Energielabel
D
Isolatie
Dubbel glas
Warm water
C.V.-ketel
Verwarming
C.V.-ketel
Ketel
Remeha (2014, Combi-ketel, Eigendom)

Buitenruimte

Ligging
In woonwijk, Vrij uitzicht
Balkon
Ja
Schuur
Inpandig
Faciliteiten schuur
Voorzien van elektra

Garage

Plattegronden

Bekijk verloop van de zon

Uw browser ondersteunt geen WebGL

Afspraak of contact

Wilt u meer weten over deze woning of een bezichtiging plannen? Bel of mail ons of vul het formulier in.


Uw bericht is naar ons verzonden. Wij nemen zo snel mogelijk contact met u op.

Er is iets mis gegaan met het versturen van het formulier.
Controleer of u alle velden (goed) heeft ingevoerd en probeer het nog een keer.

recaptcha
reCAPTCHA
PrivacyTerms

Heeft u een vraag?
Bel ons (070) 365 00 00
of mail info@joostvanvliet.nl

Vergelijkbare woningen