Sportlaan 177, Vogelwijk
In het rustige gedeelte van de Sportlaan gelegen, prachtig achtkamer 'twee onder een kapwoning" met 2 badkamers, 6 slaapkamers, riante vliering, kelder, eetkeuken, garage en een riante zonnige tuin (aan 3 zijden) gelegen op het zuidwesten.
Op loopafstand van winkels, strand, zee, duinen en nabij winkels, openbaar vervoer, Bosjes van Pex, diverse sportfaciliteiten en scholen zoals o.a. European en International School.
INDELING
Via looppad naar entree met portaal in boogvorm, ruime vestibule met tochtdeurseparatie van glas-in-lood en zwart-wit tegelvloer doorgelegd naar de gang, toilet met vrijhangend reservoir en fontein, ruime kelder met opstelplaats c.v.-combiketel.
L-vormige woon-/eetkamer met grote erker, openhaard, parketvloer en openslaande deuren naar zonnige voortuin.
Ruime uitgebouwde eetkeuken met inbouwapparatuur zoals inductie kookplaat, oven, magnetron, koel-/vriescombinatie, vaatwasser, dubbele spoelbak en toegang naar zonnige achtertuin voorzien van berging en garage.
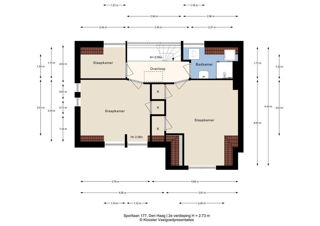
1e VERDIEPING
Overloop, toilet met fontein, prachtige ouderslaapkamer met marmeren schouw, kastenwand, airconditioning, openslaande deuren naar balkon en annex moderne badkamer met inloopdouche en wastafelmeubel.
Slaapkamer met kastenwand en openslaande deuren naar balkon en een kleinere slaap-/studeerkamer.
2e VERDIEPING
Overloop, grote slaapkamer met 2 vaste kasten, slaapkamer met vaste kast en derde slaapkamer.
Tweede badkamer met wasmachine en droger, vaste wastafel en douche.
Via vlizotrap naar grote bevloerde vliering.
Voor de afmetingen van de kamers verwijzen wij u naar de plattegronden.
BIJZONDERHEDEN
Gelegen op eeuwigdurende erfpachtgrond, waarvan de canon is afgekocht.
Aanvaarding in overleg.
Rioolheffing 2025 € 191,15.
Elektra 7 groepen met 2 FASE + 1 aardlekschakelaar + hoofdschakelaar.
Verwarming middels c.v.-combiketel, merk Intgergas, bouwjaar 2020.
Warmwatervoorziening middels c.v.-combiketel.
De onderhoudssituatie van het sanitair en de keuken is goed.
De onderhoudssituatie is zowel binnen als buiten goed.
De woning is voorzien van houten kozijnen met op de begane grond HR ++ en dubbel glas, op de 1e verdieping dubbel glas en op de 2de verdieping HR ++ en dubbel glas.
Verwarmde en geheel betegelde garage met carport.
Gemeentelijk beschermd stadsgezicht.
Geen olietank. KIWA-certificaat aanwezig.
Koper is vrij in notariskeuze, echter wel in regio Haaglanden.
Verkoper heeft de woning nooit zelf feitelijk gebruikt.
De niet bewoners-, lood- /asbest- en ouderdomsclausules zijn van toepassing.
Bouwjaar 1929.
Woonoppervlakte ca. 165 m².
De inhoud van de woning is ca. 700 m³.
De woning is bouwkundig gekeurd.
Model NVM-koopakte van toepassing.
NABIJ
Winkels aan de Mezenlaan, Fahrenheitstraat, Goudsbloemlaan en Frederik Hendriklaan.
Dicht bij de Europese en Internationale School van Den Haag.
Diverse scholen en sportfaciliteiten zoals tennis, voetbal, hockey en handbal.
Op loopafstand van openbaar vervoer bus 24 en tram 12, Bosjes van Poot en Bosjes van Pex en natuurlijk strand, zee en duinen.
Nabij Boulevard van Kijkduin en uitvalswegen via Hubertustunnel en Westlandweg.
KADASTRALE INFORMATIE:
Gemeente : ‘s-Gravenhage
Sectie : AO
Nummer : 1974
Grootte : 3 are 17 centiare
De Meetinstructie is gebaseerd op de NEN2580. De Meetinstructie is bedoeld om een meer eenduidige manier van meten toe te passen voor het geven van een indicatie van de gebruiksoppervlakte. De Meetinstructie sluit verschillen in meetuitkomsten niet volledig uit, door bijvoorbeeld interpretatieverschillen, afrondingen of beperkingen bij het uitvoeren van de meting.
Interesse in dit huis? Schakel direct uw eigen NVM-aankoopmakelaar in.
Uw NVM-aankoopmakelaar komt op voor uw belang en bespaart u tijd, geld en zorgen.
Adressen van collega NVM-aankoopmakelaars in Haaglanden vindt u op Funda.
####################################################################
Situated in the quiet part of Sportlaan, this beautiful eight-room semi-detached house features two bathrooms, six bedrooms, a spacious attic, a cellar, a kitchen/diner, a garage, and a generously sized, sunny southwest-facing garden (on three sides).
Within walking distance of shops, the beach, the sea, and the dunes, it's also close to shops, public transport, Bosjes van Pex, various sports facilities, and schools such as the European School and the International School.
LAYOUT:
A walkway leads to the entrance with an arched porch, a spacious vestibule with a stained-glass door and a black-and-white tiled floor extending into the hallway. A toilet with a hand basin leads to the spacious basement housing the central heating boiler.
An L-shaped living/dining room with a large bay window, fireplace, parquet flooring, and French doors leading to the sunny front garden.
A spacious, extended kitchen/diner with integrated appliances including an induction cooktop, oven, microwave, fridge/freezer, dishwasher, double sink, and access to the sunny back garden with a storage room and garage.
1st FLOOR
Landing, toilet with hand basin, beautiful master bedroom with a marble fireplace, wall-to-wall wardrobes, air conditioning, French doors leading to the balcony, and a modern adjoining bathroom with a walk-in shower and vanity.
A bedroom with wall-to-wall wardrobes and French doors leading to the balcony, and a smaller bedroom/study.
2nd FLOOR
Landing, large bedroom with two built-in wardrobes, a bedroom with a built-in wardrobe, and a third bedroom.
Second bathroom with a washing machine and dryer, a built-in washbasin, and a shower.
A loft ladder leads to a large, floored attic.
For the dimensions of the rooms please refer to the floor plans.
SPECIAL FEATURES
Eternal lease-hold land which the rent charge has been bought off.
Acceptance in agreement.
Sewage charges 2025 € 191,15.
Electricity 7 groups with 2 PHASE + 1 earth leakage circuit breaker + main switch.
Central heating system, brand Intergas, built in 2020.
Hot water supply by central heating.
The condition of the bathroom and the kitchen is good.
The condition of the interior and exterior is good.
The house has wooden window frames with HR++ and double glazing on the ground floor, double glazing on the 1st floor and HR++ and double glazing on the 2nd floor.
Heated and fully tiled garage with carport.
Part of the conservation area of the village or town Vogelwijk.
No oil tank. KIWA certificate available.
The buyer is free to choose a notary, but must be located in the Haaglanden region.
Seller has the house itself never actually used.
The non-resident, lead-/asbestos and age clauses will be applied.
Built in 1929.
Living surface approx. 165 m².
The volume of the house approx. 700 m³.
Technical survey available.
NVM model deed applicable.
NEAR
Shops at Mezenlaan, Fahrenheitstraat, Goudsbloemlaan and Frederik Hendriklaan.
Close to European- and International School of The Hague.
Various schools and sport facilities sports such as tennis, soccer, hockey and handball.
Within walking distance of public transport bus 24 and tram 12, Bosjes van Poot en Bosjes van Pex and of course beach, sea and dunes.
Near Boulevard of Kijkduin and main roads through Hubertustunnel and Westland Road.
The measurement instruction is based on NEN2580. The measurement instruction is intended to apply a more uniform way of measuring for giving an indication of the use surface. The measurement instruction can not completely close differences in measurement results, for example by differences in interpretation, rounding or limitations in the performance of the measurement.






Wilt u meer weten over deze woning of een bezichtiging plannen? Bel of mail ons of vul het formulier in.
Heeft u een vraag?
Bel ons (070) 365 00 00
of mail info@joostvanvliet.nl


