Dovenetelweg 10, Bohemen Rechts
Prachtig gelegen in wijk Bohemen Meer en Bos, 4-laags splitlevelwoning met een woonoppervlakte van 216 m², 5 slaapkamers, 2 ruime badkamers, 4 balkons, fraaie woonkamer met veel lichtinval, inpandige garage en een heerlijke zonnige achtertuin op het zuidoosten met achterom.
Gelegen op eeuwigdurende erfpachtgrond, waarvan de canon is afgekocht.
De woning is voorzien van 17 zonnepanelen. Energielabel A++.
Op loopafstand van de duinen, het strand en de Bosjes van Pex. Ideaal gelegen nabij winkelcentrum De Savornin Lohmanplein voor al uw boodschappen. Ook het openbaar vervoer en diverse scholen waaronder The International School en diverse sportclubs bevinden zich op loopafstand.
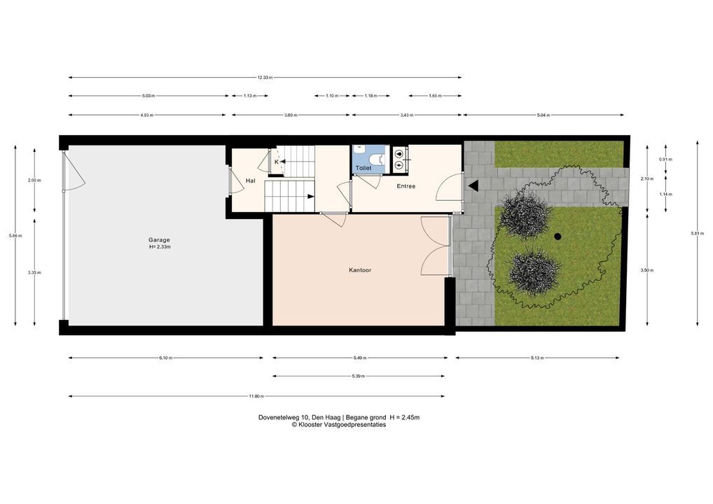
INDELING
Via de voortuin naar entree van de woning, hal met meterkast, separaat toilet en fontein en voorzien van een tochtdeur. Via trap naar beneden alwaar zich een studie/hobbykamer bevindt voorzien van dubbele deuren naar de voortuin.
2e WOONLAAG/VIDE
Aan de achterzijde gelegen heerlijke lichte woonkamer met hoge plafonds, fraaie visgraat parketvloer met bies, elektrische zonwering en schuifpui naar prachtige zonnige tuin met groot terras op het zuidoosten met achterom. Vanuit de woonkamer een trap naar de bovengelegen vide aan straatzijde met fraaie L-vormige keuken voorzien van diverse inbouwapparatuur, zoals keramische kookplaat, afzuigkap, oven, magnetron, koel/vriescombinatie en 1,5 spoelbak. Vanuit de keuken een fraai vrij uitzicht naar de Akkerwindestraat.
3e WOONLAAG
Overloop, royale achterslaapkamer met een vaste kastenwand en schuifpui voorzien van elektrische zonwering naar een klein balkon. Ruime badkamer met ligbad, douchecabine, 2 wastafels en handdoeken-radiator. Separaat toilet met fontein. Twee voorslaapkamers, waarvan 1 met klein balkon.
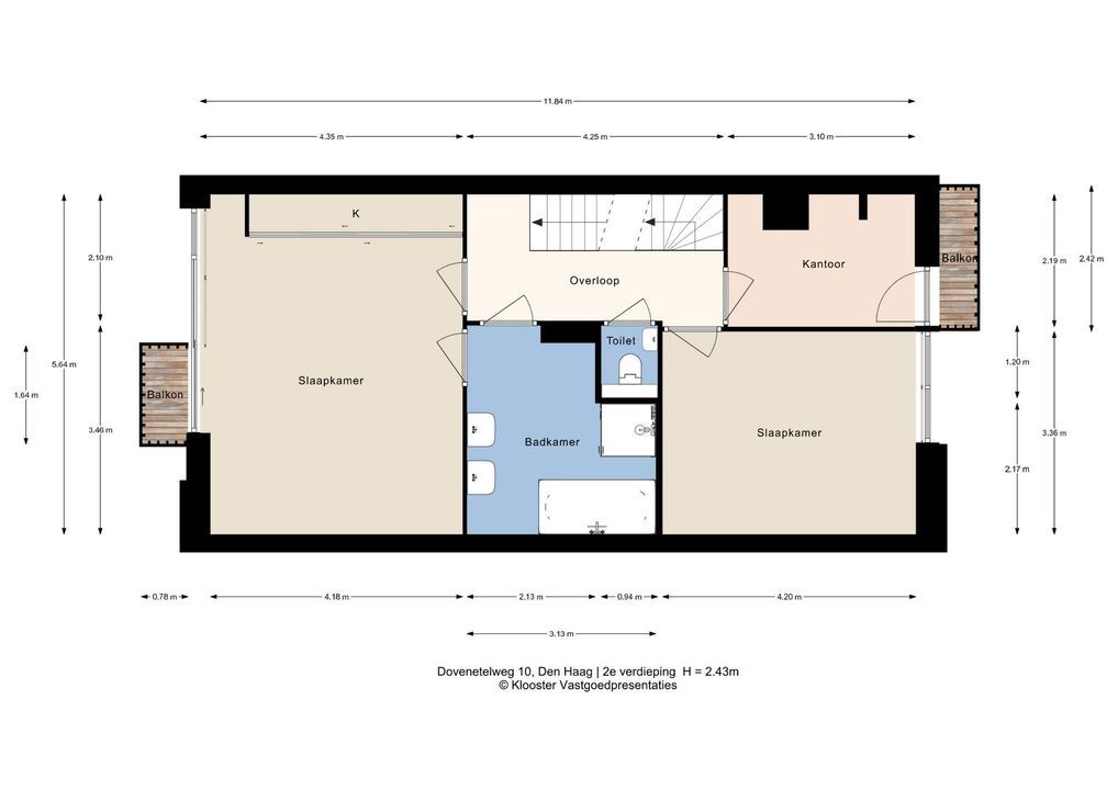
4e WOONLAAG
Overloop met dakraam, tweede ruime badkamer met douchecabine, 2 wastafels, toilet en handdoeken-radiator. Achterslaapkamer met nieuwe schuifpui voorzien van zonwering naar zonnig balkon op het zuidoosten. Voorslaapkamer met deur naar balkon op het noordwesten. Wasruimte met aansluiting voor de wasmachine en droger, opstelplaats van cv-ketel met een hybride warmtepomp, omvormer zonnepanelen en unit WTW installatie.
Onder de woning is een ruime garage, die vanuit het huis bereikbaar is en voorzien is van een elektrische roldeur en loopdeur. Met auto en fiets te bereiken via de hellingbaan (met vloerverwarming) en rijbaan.
De VvE (14 woningen) is verantwoordelijk voor het onderhoud van de helling- en rijbaan naar de garages. Via garage tevens toegang naar riante kruipruimte.
Samenvattend kunnen we u melden dat de woning is gebouwd in 4 bouwlagen en 2 verdiepingshoogtes die door splitlevel in elkaar overlopen. Hierdoor ontstaat een bijzondere woonkamer met een hoog plafond en ruime woonkeuken.
Voor de afmetingen van de kamers verwijzen wij u naar de plattegronden.
BIJZONDERHEDEN
Gelegen op eeuwigdurende erfpachtgrond, waarvan de canon is afgekocht.
Aanvaarding in overleg.
Rioolheffing 2026 € 195,40.
VvE bijdrage helling- en rijbaan naar de garages € 25,-- per maand.
Elektra 7 groepen met 2 aardlekschakelaars.
Verwarming middels hybride warmtepomp en c.v.-combiketel, merk Atag, bouwjaar 2018.
Warmwatervoorziening met c.v.-combiketel.
De onderhoudssituatie van het sanitair en de keuken is goed.
De onderhoudssituatie binnen en buiten is goed/uitstekend.
De woning is voorzien van houten/aluminium kozijnen met dubbel glas.
Koper is vrij in notariskeuze, echter wel in regio Haaglanden.
De lood- /asbest- en ouderdomsclausules zijn van toepassing.
Bouwjaar 2002.
Woonoppervlakte ca. 216 m².
De inhoud van de woning is ca. 860 m³.
De woning is bouwkundig gekeurd.
Model NVM-koopakte van toepassing.
NABIJ
Winkels aan het De Savornin Lohmanplein, Gousbloemlaan en Haagse binnenstad.
Bos van Pex, duinen, strand en zee, Badplaats Kijkduin, restaurants en musea.
Openbaar vervoer, (RandstadRail lijn 3, Bus 23 en 24), uitvalswegen via Hubertustunnel en Westlandroute.
Nabij Europese en/of International School of The Hague, basisscholen en diverse sportfaciliteiten.
KADASTRALE INFORMATIE:
Gemeente : Loosduinen
Sectie : H
Nummer : 7927
Grootte : 1 are 93 centiare
De Meetinstructie is gebaseerd op de NEN2580. De Meetinstructie is bedoeld om een meer eenduidige manier van meten toe te passen voor het geven van een indicatie van de gebruiksoppervlakte. De Meetinstructie sluit verschillen in meetuitkomsten niet volledig uit, door bijvoorbeeld interpretatieverschillen, afrondingen of beperkingen bij het uitvoeren van de meting.
Interesse in dit huis? Schakel direct uw eigen NVM-aankoopmakelaar in.
Uw NVM-aankoopmakelaar komt op voor uw belang en bespaart u tijd, geld en zorgen.
Adressen van collega NVM-aankoopmakelaars in Haaglanden vindt u op Funda.
####################################
Beautifully situated in the Bohemen Meer en Bos neighborhood, this 4-story split-level house offers 216 m² of living space, 5 bedrooms, 2 spacious bathrooms, 4 balconies, a beautiful living room with plenty of natural light, an integrated garage and a lovely sunny southeast-facing backyard with rear access.
Situated on perpetual leasehold land, the ground rent of which has been bought off.
The house is equipped with 17 solar panels. Energy label A++.
Within walking distance of the dunes, the beach and the Bosjes van Pex. Ideally located near the Savornin Lohmanplein shopping center for all your groceries. Public transport and various schools, including The International School and several sports clubs are also within walking distance.
LAY-OUT
Through the front garden, you enter the house, which has a hallway with the meter cupboard, a separate toilet and a sink and a door with a swing door. Stairs leading down to a study/hobby room with double doors leading to the front garden.
2ND FLOOR/VIDE
Located at the rear of the house is a lovely, bright living room with high ceilings, beautiful herringbone parquet flooring with a border, electric sun blinds, and sliding doors leading to a beautiful, sunny garden with a large southeast-facing terrace and rear access. Stairs from the living room leads to the upstairs loft on the street side, which features a beautiful L-shaped kitchen equipped with various built-in appliances, including a ceramic hob, extractor hood, oven, microwave, fridge/freezer and a 1.5-basin sink. From the kitchen a beautiful unobstructed view of the Akkerwindestraat.
3RD FLOOR
Landing, spacious rear bedroom with a built-in wardrobe and sliding doors with electric sun blinds leading to a small balcony. Spacious bathroom with a bathtub, shower, two washbasins, and a heated towel rail. Separate toilet with a hand basin. Two front bedrooms, one of which has a small balcony.
4TH FLOOR
Landing with skylight, second spacious bathroom with a shower, two washbasins, a toilet, and a heated towel rail. The rear bedroom features new sliding doors with sun blinds leading to a sunny southeast-facing balcony. The front bedroom with a door to the northwest-facing balcony. The laundry room includes connections for a washing machine and dryer and houses the central heating boiler with a hybrid heat pump, solar panel inverter, and heat recovery unit.
Under the house is a spacious garage, which is accessible from the house and is equipped with a, electric roller door and pedestrian door. It can be reached by car and bicycle via the ramp (with underfloor heating) and roadway.
The Owners Association (14 homes) is responsible for the maintenance of the ramp and roadway to the garages. Via the garage also access spacious crawl space.
In summary, we can tell you that the house is built in 4 floors and 2 floor heights that merge into each other by split level. This creates a special living room with a high ceiling and spacious kitchen.
For the dimensions of the rooms please refer to the floor plans.
SPECIAL FEATURES
Eternal lease-hold land which the rent charge has been bought off.
Acceptance in agreement.
Sewage charges 2026 € 195,40.
VvE contribution ramp and driveway to the garages € 25 per month.
Electricity 7 groups with 2 earth leakage circuit breakers.
Central heating system, brand ATAG, model 2018 + hybrid heat pump.
Hot water supply by central heating system.
The condition of the bathroom and the kitchen is good.
The interior and exterior is good/excellent.
The house has wooden/aluminum window frames with double glazing.
The buyer is free to choose a notary, but must be located in the Haaglanden region.
The lead-/asbestos and age clauses will be applied.
Built in 2022.
Living surface approx. 216 m².
The volume of the house approx. 860 m³.
NVM model deed applicable.
NEAR
Shops at the De Savornin Lohmanplein, Goudsbloemlaan and Center of The Hague.
Bosjes van Pex, dunes, beach and sea, Boulevard of Kijkduin, restaurants and museums.
Public transport (RandstadRail Line 3, Bus 23 and 24) and main roads through Westland Road and Hubertustunnel.
Close to European- and International School of The Hague, various schools and sport facilities.
The measurement instruction is based on NEN2580. The measurement instruction is intended to apply a more uniform way of measuring for giving an indication of the use surface. The measurement instruction can not completely close differences in measurement results, for example by differences in interpretation, rounding or limitations in the performance of the measurement.





Wilt u meer weten over deze woning of een bezichtiging plannen? Bel of mail ons of vul het formulier in.
Heeft u een vraag?
Bel ons (070) 365 00 00
of mail info@joostvanvliet.nl


