Talinglaan 21, Vogelwijk
Charmant uitgebouwd 6 kamer 2-onder-1 kap woning voorzien van 2 badkamers, prachtig aangelegde tuin op de hoek van de Zwanenlaan gelegen. De erfpacht is eeuwigdurend afgekocht.
INDELING
Entree met luifel, vestibule met een tochtseparatie met glas in lood en zwart/wit marmeren vloertegels over de gehele begane grond, verdiepte trappenkast, toilet met de originele wandtegels en fontein, sfeervol en uitgebouwde woon/eetkamer voorzien van zij- en achter aanbouw, voorerker, gas openhaard en veel daglicht toetreding door de vele ramen, uitgebouwde rode keuken met rvs aanrechtblad en diverse inbouw apparatuur zoals 4-pits gasfornuis, combi magnetron, koel-/vrieskast (3 laden) en wasmachine aansluiting. Prachtig aangelegde tuin voorzien van houten en stenen berging en diverse terrassen.
1e VERDIEPING
Overloop, modern toilet, achterzijkamer met openslaande deuren naar een groot zonnig balkon, achterslaapkamer met vaste kast en openslaande deuren, fraaie voorslaapkamer met erker en vaste kast, wit betegelde badkamer met grijze vloertegels, wastafelmeubel en inloopdouche.
2e VERDIEPING
Eén grote prachtige zolderkamer met in elke dakschikschild een dakkapel, 2 dakramen, vaste kast en 2e moderne badkamer met wastafelmeubel, toilet en inloopdouche.
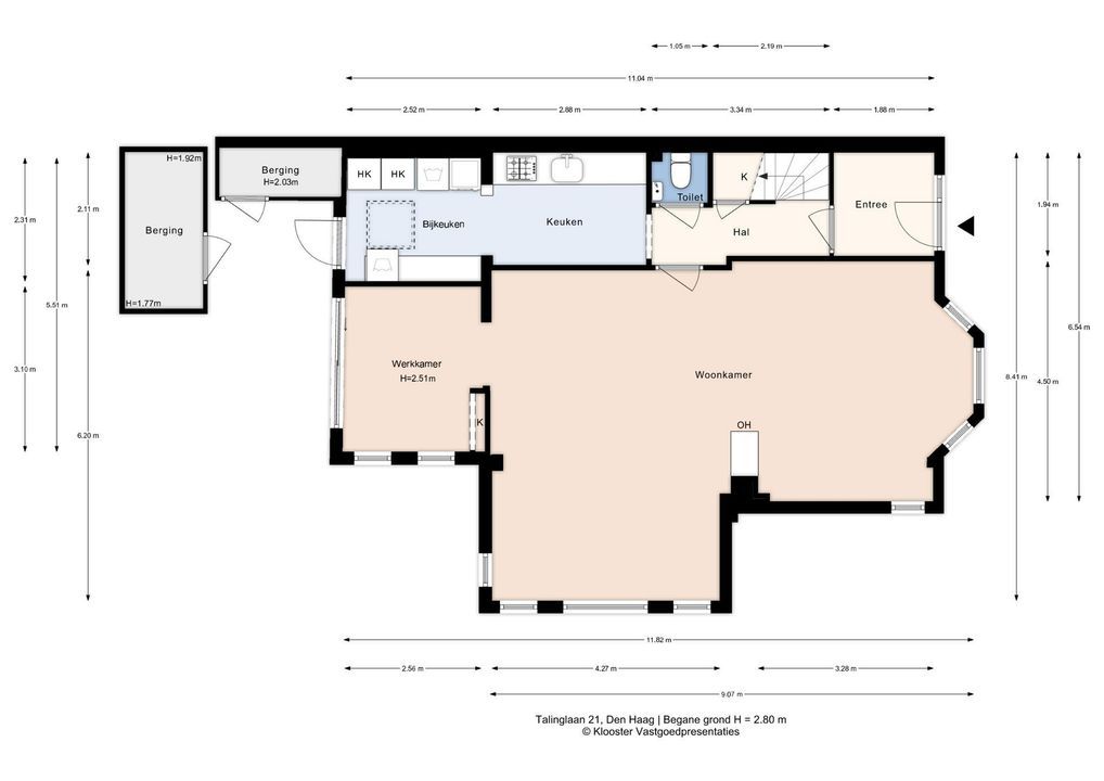
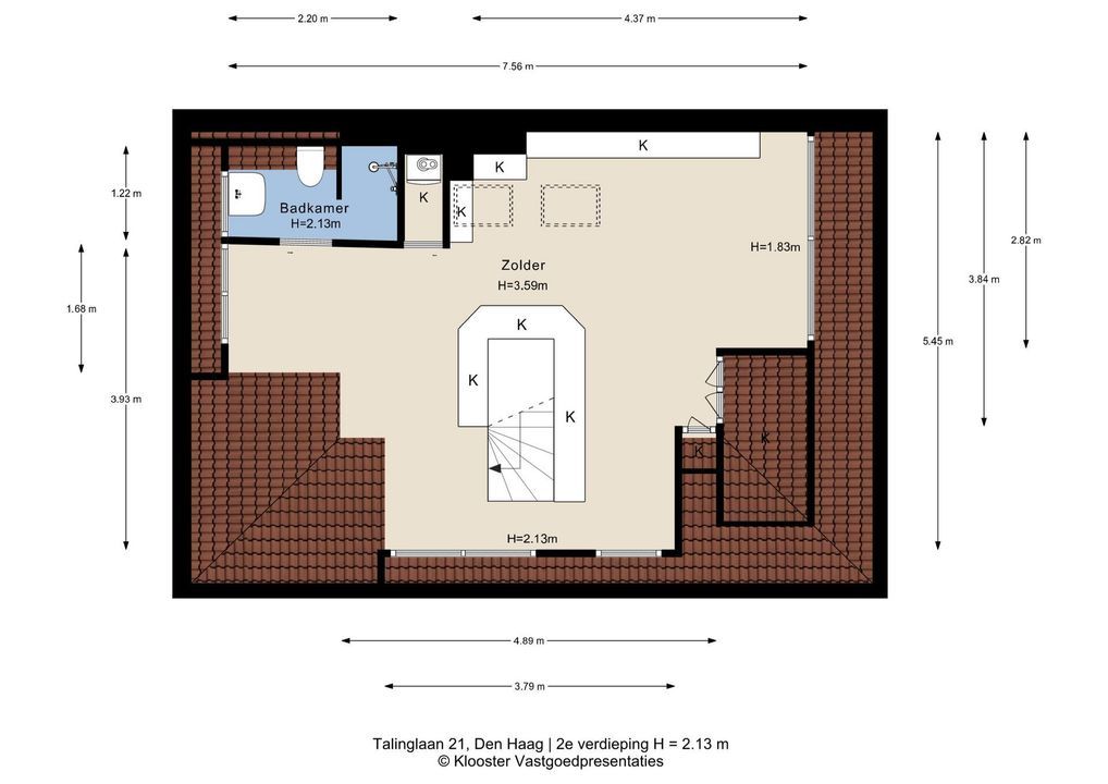
Voor de afmetingen van de kamers verwijzen wij u naar de plattegronden.
BIJZONDERHEDEN
Gelegen op eeuwigdurende erfpachtgrond, waarvan de canon is afgekocht.
Aanvaarding in overleg.
Rioolheffing 2025 € 191,15.
Elektra 9 groepen + 2 aardlekschakelaars en 1 hoofdschakelaar.
Verwarming middels c.v.-combiketel, merk Remeha, bouwjaar 2017.
Warmwatervoorziening middels c.v.-combiketel.
De onderhoudssituatie van het sanitair en de keuken is goed.
De onderhoudssituatie binnen en buiten is goed.
De woning is voorzien van houten kozijnen met deels dubbel glas.
Gemeentelijk beschermd stadsgezicht.
Koper is vrij in notariskeuze, echter wel in regio Haaglanden.
De lood- /asbest- en ouderdomsclausules zijn van toepassing.
Bouwkundig rapport aanwezig.
Bouwjaar 1927.
Woonoppervlakte ca. 162 m².
De inhoud van de woning is ca. 615 m³.
Model NVM-koopakte van toepassing.
NABIJ
Winkels aan de Fahrenheitstraat, Thomsonlaan, Frederik Hendriklaan, Goudsbloemlaan en Haagse binnenstad.
Bosjes van Poot, duinen, strand en zee, Haven van Scheveningen, restaurants en musea.
Openbaar vervoer, (tramlijn 12, bus 22 en 24), uitvalswegen via Hubertustunnel en Westlandroute.
Nabij Europese en/of International School of The Hague, basisscholen en diverse sportfaciliteiten.
KADASTRALE INFORMATIE:
Gemeente : ‘s-Gravenhage
Sectie : AO
Nummer : 741
Grootte : 3 are 11 centiare
De Meetinstructie is gebaseerd op de NEN2580. De Meetinstructie is bedoeld om een meer eenduidige manier van meten toe te passen voor het geven van een indicatie van de gebruiksoppervlakte. De Meetinstructie sluit verschillen in meetuitkomsten niet volledig uit, door bijvoorbeeld interpretatieverschillen, afrondingen of beperkingen bij het uitvoeren van de meting.
Interesse in dit huis? Schakel direct uw eigen NVM-aankoopmakelaar in.
Uw NVM-aankoopmakelaar komt op voor uw belang en bespaart u tijd, geld en zorgen.
Adressen van collega NVM-aankoopmakelaars in Haaglanden vindt u op Funda.
********************************************
Charming, extended 6-room semi-detached house with 2 bathrooms, beautifully landscaped garden on the corner of the Zwanenlaan. Leasehold land of which the rent charge has been bought off.
LAYOUT
Entrance with awning, vestibule with a draft divider featuring stained glass and black and white marble floor tiles throughout the ground floor, recessed underneath stair cupboard, toilet with original wall tiles and a hand basin, attractive and extended living/dining room with side and rear extensions, front bay window, gas fireplace and lots of natural light through the many windows, extended red kitchen with stainless steel countertops and various built-in appliances such as a 4-burner gas stove, combination microwave, refrigerator/freezer (3 drawers) and washing machine connection. Beautifully landscaped garden with a wooden and stone shed and several patios.
FIRST FLOOR
Landing, modern toilet, rear side room with French doors leading to a large sunny balcony, rear bedroom with built-in wardrobe and French doors, beautiful front bedroom with a bay window and built-in cupboard, white tiled bathroom with gray floor tiles, vanity unit and walk-in shower.
SECOND FLOOR
One large, beautiful attic room with a dormer window in each roof slope, two skylights, a built-in cupboard and a second modern bathroom with a vanity unit, toilet and walk-in shower
For the dimensions of the rooms please refer to the floor plans.
SPECIAL FEATURES
Eternal lease-hold land of which the rent charge has been bought off.
Acceptance in agreement.
Sewage charges 2025 € 191,15.
Electricity 9 groups + 2 circuit breakers and 1 main switch.
Central heating system, brand Remeha, model 2017.
Hot water supply by central heating system.
The condition of the bathroom and the kitchen is good.
The condition of the interior and exterior is good.
The house has wooden window frames with partly double glazing.
Part of the conservation area of the village or town (beschermd stads- of dorpsgezicht).
The buyer is free to choose a notary, but must be located in the Haaglanden region.
The lead-/asbestos and age clauses will be applied.
Technical inspection report available.
Built in 1927.
Living surface approx. 162 m².
The volume of the house approx. 615 m³.
NVM model deed applicable.
NEAR
Shops at the Fahrenheitstraat, Thomsonlaan, Frederik Hendriklaan, Goudsbloemlaan and Center of The Hague.
Bosjes van Poot, dunes, beach and sea, Harbor of Scheveningen, restaurants and museums.
Public transport (Tram Line 12 and Bus 22, 24) and main roads through Westland Road and Hubertustunnel.
Close to European- and International School of The Hague, various schools and sport facilities.
The measurement instruction is based on NEN2580. The measurement instruction is intended to apply a more uniform way of measuring for giving an indication of the use surface. The measurement instruction can not completely close differences in measurement results, for example by differences in interpretation, rounding or limitations in the performance of the measurement.




Wilt u meer weten over deze woning of een bezichtiging plannen? Bel of mail ons of vul het formulier in.
Heeft u een vraag?
Bel ons (070) 365 00 00
of mail info@joostvanvliet.nl

