Sportlaan 1098, Vogelwijk
Tegenover het Wielewaalplein gelegen en de achterzijde aan het Segbroekplantsoen zo te betrekken 4-kamer parterrewoning voorzien van groot zonnig terras op het zuidoosten en een berging in de onderbouw. Het appartement is recent voorzien van aluminium kozijnen met HR++ glas.
Uniek gelegen met op loopafstand van duinen, strand en zee, Bosjes van Pex, diverse winkels aan de Goudsbloemlaan.
INDELING:
Verzorgd gesloten entree met bellen- en brievenbustableau en videofoonsysteem.
Entree appartement, centrale hal met lamellen parketvloer doorgelegd in de woon-/ eetkamer, nis voor de garderobe met meterkast, ruim toilet met fontein.
Nette keuken met bijgetrokken inpandig balkon voorzien van 2 keukenblokken met diverse inbouwapparatuur zoals, 5-pits gasfornuis, afzuigkap, koel-/vrieskast, oven, vaatwasser en wasmachine en droger.
Voorslaapkamer met kastenwand, ruime voorslaapkamer voorzien van vaste kast annex nette badkamer voorzien van douchecabine en badkamermeubel.
Lichte woon-/eetkamer voorzien van gas open haard, 2 boekenkasten en openslaande deuren naar een groot zonnig terras grenzend aan het Segbroekplantsoen.
Berging in de onderbouw.
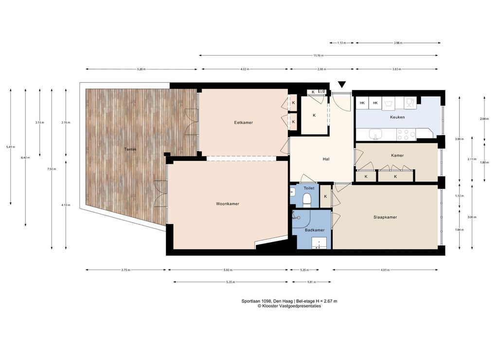
Voor de afmetingen van de kamers verwijzen wij u naar de plattegronden.
BIJZONDERHEDEN
Gelegen op erfpachtgrond, eindigende per 31 december 2027.
De canon bedraagt € 1,13 per jaar (wordt niet geïnd door de gemeente Den Haag).
Een vervroegde heruitgifte erfpacht is reeds aangevraagd bij de Gemeente
Den Haag. Kosten hiervan komen voor rekening van koper.
Aanvaarding in overleg.
Rioolheffing 2025 € 191,15 per jaar.
8/62ste aandeel in de gemeenschap.
Actieve Vereniging van Eigenaren, bijdrage € 259,88 per maand.
Elektra 6 groepen + 3 fase met 2 aardlekschakelaars en hoofdschakelaar.
Verwarming middels c.v.-combiketel, merk Remeha, bouwjaar 2019.
Warmwatervoorziening middels c.v.-combiketel.
De onderhoudssituatie van het sanitair en de keuken is goed.
De onderhoudssituatie binnen en buiten is goed.
Het gehele appartement is voorzien van aluminium kozijnen met HR++ glas en aan de achterzijde voorzien van elektrische zonwering.
De woning is voorzien van een videofoon systeem.
Gemeentelijk beschermd stadsgezicht.
Naar ontwerp van P. Zanstra en gebouwd door bouwbedrijf Meijer.
Verkoper heeft de woning nooit zelf feitelijk gebruikt, derhalve is de niet-bewoners clausule van toepassing.
Koper is vrij in notariskeuze, echter wel in regio Haaglanden.
De lood- /asbest- en ouderdomsclausules zijn van toepassing.
Bouwjaar ca. 1954.
Woonoppervlakte ca. 87 m².
De inhoud van het appartement is ca. 285 m³.
Model NVM-koopakte van toepassing.
NABIJ
Winkels aan het De Savornin Lohmanplein, Fahrenheitstraat, Thomsonlaan en Goudsbloemlaan.
Bosjes van Poot, Bosjes van Pex, duinen, strand en zee, Badplaats Kijkduin, Haven van Scheveningen, restaurants en musea.
Openbaar vervoer, (RandstadRail lijn 3, tramlijn 12, bus 24), uitvalswegen via Hubertustunnel en Westlandroute.
Nabij Europese en/of International School of The Hague, basisscholen en diverse sportfaciliteiten.
KADASTRALE INFORMATIE
Gemeente : ’s-Gravenhage
Sectie : AN
Nummer : 5585
Appartementsindex : -12
De Meetinstructie is gebaseerd op de NEN2580. De Meetinstructie is bedoeld om een meer eenduidige manier van meten toe te passen voor het geven van een indicatie van de gebruiksoppervlakte. De Meetinstructie sluit verschillen in meetuitkomsten niet volledig uit, door bijvoorbeeld interpretatieverschillen,afrondingen of beperkingen bij het uitvoeren van de meting.
Interesse in dit huis? Schakel direct uw eigen NVM-aankoopmakelaar in.
Uw NVM-aankoopmakelaar komt op voor uw belang en bespaart u tijd, geld en zorgen.
Adressen van collega NVM-aankoopmakelaars in Haaglanden vindt u op Funda.
*******************************************************
Located opposite Wielewaalplein and at the rear of Segbroekplantsoen, this 4-room ground floor apartment is ready to move into and features a large, sunny, southeast-facing terrace and a storage unit in the basement. The apartment has recently been fitted with aluminum window frames and HR++ glazing.
Uniquely situated within walking distance of the dunes, beach, and sea, Bosjes van Pex, and various shops on Goudsbloemlaan.
LAYOUT:
Neat closed entrance with bell and letterbox tableau and videophone system.
Entrance apartment, central hall with laminated parquet flooring extending into the living/dining room, alcove for the wardrobe with the meter cupboard, and a spacious toilet with a hand basin.
Neat kitchen with an integrated balcony featuring two kitchen units with various built-in appliances, including a 5-burner gas stove, extractor hood, refrigerator/freezer, oven, dishwasher, washing machine, and dryer.
Front bedroom with a wall of wardrobes, spacious bedroom with a built-in wardrobe, and a neat bathroom with a shower and vanity.
Bright living/dining room with a gas fireplace, two bookcases, and French doors leading to a large, sunny terrace overlooking Segbroekplantsoen.
Storage room in the basement.
For the dimensions of the rooms please refer to the floor plans.
SPECIAL FEATURES
Situated on lease-hold land, ending at December 31st, 2027.
The rent charge is € 1.13 per year but is not collected by the municipality of the Hague.
An early offer of the ground lease from the Municipality of The Hague for the purpose of the mortgage is already requested. The costs for this requested will be for account of the buyer.
Acceptance in agreement.
Sewerage charges 2025 € 191,15 per year.
8/62th share in the community.
Active Owners Association, contribution € 259.88 each month.
Electricity 6 groups + 3 fases with 2 circuit breakers and main switch.
Central heating system, brand Remeha, built in 2019.
Hot water supply by central heating system.
The condition of the bathroom and the kitchen is good.
The condition of the interior and exterior is good.
The entire apartment features aluminum window frames with HR++ glazing and electric sun blinds at the rear.
The apartment is equipped with a video intercom system.
Part of the conservation area of the village or town.
Designed by P. Zanstra and built by Meijer Construction.
The seller has never actually used the property herself, therefore the non-resident clause applies.
The buyer is free to choose a notary, but must be located in the Haaglanden region.
The lead-/asbestos and age clauses will be applied.
Built in approx. 1954.
Living surface approx. 87 m².
The volume of the apartment approx. 285 m³.
NVM model deed applicable.
NEAR
Shops at De Savornin Lohmanplein, Fahrenheitstraat, Thomsonlaan, and Goudsbloemlaan.
Bosjes van Poot, Bosjes van Pex, dunes, beach, and sea, Kijkduin seaside resort, Scheveningen Harbor, restaurants, and museums.
Public transport (RandstadRail line 3, tram line 12, bus 24), access main roads via the Hubertustunnel and the Westland Route.
Near the European and/or International School of The Hague, primary schools, and various sports facilities.
The measurement instruction is based on NEN2580. The measurement instruction is intended to apply a more uniform way of measuring for giving an indication of the use surface. The measurement instruction can not completely close differences in measurement results, for example by differences in interpretation, rounding or limitations in the performance of the measurement.


Wilt u meer weten over deze woning of een bezichtiging plannen? Bel of mail ons of vul het formulier in.
Heeft u een vraag?
Bel ons (070) 365 00 00
of mail info@joostvanvliet.nl

