Archimedesstraat 52, Den Haag

Archimedesstraat 52 vraagprijs  € 425.000 k.k.


Archimedesstraat 52, Duinoord

Met behoud van veel originele details, een goed onderhouden en zo te betrekken 4-kamer appartement op de 1e verdieping gelegen voorzien van woonkamer en suite met open keuken, 2 slaapkamers, moderne badkamer en een zonnig achterbalkon. Energielabel B.

Centraal gelegen op eigen grond in één van de leukste straten van het gewilde Duinoord, nabij winkels- en horeca van de Reinken- en Fahrenheitstraat, diverse scholen- en sportfaciliteiten, openbaar vervoer en op fietsafstand van de Haagse binnenstad, Badplaats / Haven van Scheveningen en het strand.

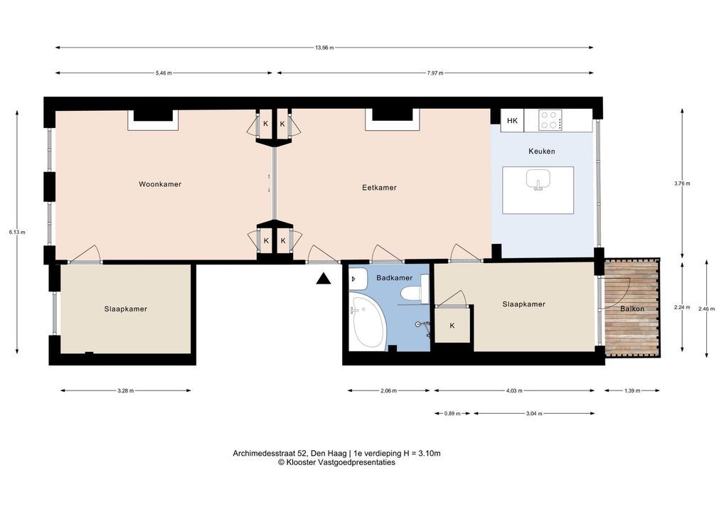
INDELING:
Via klassieke voordeur met glas in lood bovenlicht, ruime (gemeenschappelijke) hal met meterkast en binnentrap naar 1e verdieping.

Entree appartement, sfeervolle en lichte woonkamer en suite voorzien van fraaie glas in lood schuifdeuren, 4 vaste kasten, hoge plafonds, zwarte schouw in de voorkamer en een houten parketvloer doorgelegd in de woning.

Vanuit de voorkamer toegang tot de eerste slaapkamer.

Goed onderhouden keuken in de achterkamer voorzien van een spoeleiland met composiet aanrechtblad, vaatwasser, inductiekookplaat, afzuigkap, koel/vriescombinatie en combi-oven.

Vanuit de achterkamer toegang tot de moderne fraai betegelde badkamer voorzien van een ligbad, inloopdouche, toilet, wastafelmeubel met spiegelkast en designradiator.

Ruime achterslaapkamer met vaste kast met wasmachine-aansluiting, opstelplaats cv-ketel en deur naar het riante en zonnige achterbalkon, gelegen op het zuiden.

Voor de afmetingen van de kamers verwijzen wij u naar de plattegronden.

BIJZONDERHEDEN
Het appartement is gelegen op eigen grond.
Aanvaarding in overleg.
Rioolheffing 2025 € 191,15 per jaar.
1/3e aandeel in de gemeenschap.
Actieve Vereniging van Eigenaren, bijdrage € 85,-- per maand.
Elektra 5 groepen met aardlekschakelaar.
Verwarming middels c.v.-combiketel, merk Intergas, bouwjaar 2011. Warmwatervoorziening middels c.v.-combiketel.
De onderhoudssituatie van het sanitair is goed/uitstekend en van de keuken goed.
De onderhoudssituatie binnen is goed/uitstekend en buiten goed.
Het appartement is voorzien van houten kozijnen met dubbel glas.
Rijksbeschermd stadsgezicht.
Koper is vrij in notariskeuze, echter wel in regio Haaglanden.
De lood- /asbest- en ouderdomsclausules zijn van toepassing.
Bouwjaar 1904.
Woonoppervlakte ca. 74 m².
De inhoud van het appartement is ca. 280 m³.
Model NVM-koopakte van toepassing.

NABIJ
Winkels aan de Reinken- en Fahrenheitstraat, Thomsonlaan, Frederik Hendriklaan en Haagse binnenstad.
Duinen, strand en zee, Haven van Scheveningen, restaurants en musea.
Openbaar vervoer en uitvalswegen via Hubertustunnel en Westlandroute.
Nabij Europese en/of International School of The Hague, basisscholen en diverse sportfaciliteiten.

KADASTRALE INFORMATIE
Gemeente : ’s-Gravenhage
Sectie : N
Nummer : 7886
Appartementsindex : -7

De Meetinstructie is gebaseerd op de NEN2580. De Meetinstructie is bedoeld om een meer eenduidige manier van meten toe te passen voor het geven van een indicatie van de gebruiksoppervlakte. De Meetinstructie sluit verschillen in meetuitkomsten niet volledig uit, door bijvoorbeeld interpretatieverschillen,afrondingen of beperkingen bij het uitvoeren van de meting.

Interesse in dit huis? Schakel direct uw eigen NVM-aankoopmakelaar in.
Uw NVM-aankoopmakelaar komt op voor uw belang en bespaart u tijd, geld en zorgen.
Adressen van collega NVM-aankoopmakelaars in Haaglanden vindt u op Funda.

##########################################

Retaining many original details, this well-maintained, move-in ready 4-room apartment on the first floor features an en-suite living room with open-plan kitchen, 2 bedrooms, a modern bathroom and a sunny rear balcony. Energy label B.

Centrally located on freehold land in one of the most charming streets in the popular Duinoord neighborhood, near the shops and restaurants of the Reinkenstraat and Fahrenheitstraat, various schools and sports facilities, public transport and within cycling distance of The Hague city center, Scheveningen seaside resort/harbor and the beach.

LAY-OUT
Through a classic front door with a stained-glass skylight, you enter the spacious (shared) hall with the meter cupboard and internal staircase to the first floor.

The apartment entrance leads to the inviting and bright living room en-suite with beautiful stained-glass sliding doors, four built-in cupboards, high ceilings, a black mantelpiece in the front room and wooden parquet flooring throughout.

From the front room, you access the first bedroom.

The well-maintained kitchen in the back room features a kitchen island with sink, composite countertops, a dishwasher, an induction cooktop, an extractor hood, a fridge/freezer and a combination oven.

From the back room, you access the modern, beautifully tiled bathroom with a bathtub, a walk-in shower, a toilet, a vanity with a mirrored cabinet and a designer radiator.

The spacious back bedroom features a built-in wardrobe with a washing machine connection, the central heating boiler and a door to the spacious and sunny south-facing rear balcony.

For the dimensions of the rooms please refer to the floor plans.

SPECIAL FEATURES
The property is freehold.
Acceptance in agreement.
Sewerage charges 2025 € 191,15 per year.
1/3rd share in the community.
Active Owners Association, contribution € 85,-- each month.
Electricity 5 groups with circuit breaker.
Central heating system, brand Intergas, model 2011.
Hot water supply by central heating system.
The condition of the bathroom is good excellent and of the kitchen good.
The condition of the interior is good/excellent and of the exterior good.
The apartment has wooden window frames with double glazing.
Listed as a nationally building within the meaning of the Heritage Act.
The buyer is free to choose a notary, but must be located in the Haaglanden region.
The lead-/asbestos and age clauses will be applied.
Built in 1904.
Living surface approx. 74 m².
The volume of the apartment approx. 280 m³.
NVM model deed applicable.

NEAR
Shops on Reinkenstraat and Fahrenheitstraat, Thomsonlaan, Frederik Hendriklaan and The Hague city center.
Dunes, beach, and sea, Scheveningen Harbor, restaurants and museums.
Public transport and major roads via the Hubertus Tunnel and Westland Route.
Near the European and/or International School of The Hague, primary schools and various sports facilities.

The measurement instruction is based on NEN2580. The measurement instruction is intended to apply a more uniform way of measuring for giving an indication of the use surface. The measurement instruction can not completely close differences in measurement results, for example by differences in interpretation, rounding or limitations in the performance of the measurement.

Locatie

[ { "address": "Archimedesstraat 52", "zipCode": "2517 RW", "city": "Den Haag", "lat": 52.0808353, "lng": 4.2784402, "heading": 0, "pitch": 0 } ]

Kenmerken

Vraagprijs
€ 425.000 k.k.
Status
Beschikbaar
Oplevering
In overleg

Bouw

Soort appartement
Bovenwoning, Appartement
Woonlaag
2
Soort bouw
Bestaande bouw
Bouwjaar
1904
Onderhoud binnen
Uitstekend
Onderhoud buiten
Goed
Bijzonderheden
Beschermd stads- of dorpgezicht

Oppervlakten en inhoud

Woonoppervlakte
74m²
Inhoud
280m³

Indeling

Aantal kamers
4
Aantal slaapkamers
2
Aantal badkamers
1
Aantal verdiepingen
1
Voorzieningen
Mechanische ventilatie

Energie

Energielabel
B
Isolatie
Dubbel glas
Warm water
C.V.-ketel
Verwarming
C.V.-ketel
Ketel
Intergas (2011, Combi-ketel, Eigendom)

Buitenruimte

Ligging
Aan rustige weg, In woonwijk
Balkon
Ja

Garage

Plattegronden

Bekijk verloop van de zon

Uw browser ondersteunt geen WebGL

Afspraak of contact

Wilt u meer weten over deze woning of een bezichtiging plannen? Bel of mail ons of vul het formulier in.


Uw bericht is naar ons verzonden. Wij nemen zo snel mogelijk contact met u op.

Er is iets mis gegaan met het versturen van het formulier.
Controleer of u alle velden (goed) heeft ingevoerd en probeer het nog een keer.

recaptcha
reCAPTCHA
PrivacyTerms

Heeft u een vraag?
Bel ons (070) 365 00 00
of mail info@joostvanvliet.nl

Vergelijkbare woningen