Wijndaelerweg 1 J, Kijkduin
‘’Uniek en fantastisch appartement met vrij weids uitzicht over het groen’’
Werkelijk schitterend en luxueus verbouwd 3-kamer appartement (ca. 112 m²) voorzien van fraaie living met luxe woonkeuken, 2 slaapkamers, luxe sanitair en een riant, zonnig terras (ca. 19 m²) gelegen op het zuidwesten, parkeerplaats en separate berging in de ruime garage. Erfpacht eeuwigdurend afgekocht.
Het appartement is gelegen op de 2e etage van het prachtige nieuwbouwcomplex ‘’Zuiderduinen’’ (bouwjaar 2020) en beschikt over een energielabel A, aluminium kozijnen met HR++ glas en vloerverwarming.
In directe omgeving van Landgoed Ockenburgh, badplaats Kijkduin, de Internationale School, golfclub Ockenburgh en andere sportvoorzieningen en uitvalswegen.
INDELING:
Via afgesloten en hoogwaardig afgewerkte hoofdentree met bellen- en brievenbussen tableau, videofoonsysteem, trap of lift naar de 2e verdieping.
Entree appartement, ruime L-vormige overloop voorzien van fraaie pvc-vloer in visgraatmotief met vloerverwarming geheel doorgelegd in het appartement, meterkast en garderobekast met opstelplaats cv-ketel.
Separaat ruim toilet met fonteinmeubel, fraai geheel betegelde badkamer voorzien van ruime inloopdouche, dubbele wastafel met meubel en spiegelkast, designradiator en vloerverwarming.
Inpandige berging met aansluitingen voor wasmachine en droger.
Sfeervolle woon/eetkamer met zeer veel lichtinval door de hoekligging, een luxe woonkeuken voorzien van een composiet aanrechtblad, veel opbergruimte, dubbele spoelbak en diverse inbouwapparatuur zoals een inductiekookplaat met geïntrigeerde afzuiging (merk Berbel), grote koelkast, vrieskast (V-Zug) oven, magnetron, warmhoudlade en vaatwasser (Siemens).
Vanuit de woonkamer via grote schuifpui toegang tot het fantastische terras, gelegen op het zuidwesten, met vrij weids uitzicht op het groen, met elektra- en wateraansluiting.
Eerste lichte slaapkamer met op maat gemaakte kastenwand en tevens deuren naar terras. Tweede ruime slaapkamer met openslaande deuren naar Frans balkon.
Via interne lift toegang tot de ruime parkeergarage met eigen parkeerplaats en (fietsen)berging met elektra.
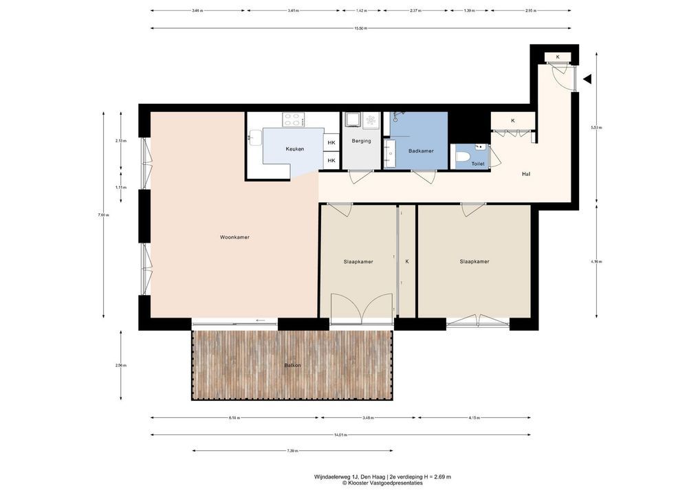
Voor de afmetingen van de kamers verwijzen wij u naar de plattegronden.
BIJZONDERHEDEN
Gelegen op eeuwigdurende erfpachtgrond, waarvan de canon is afgekocht.
Aanvaarding in overleg.
Rioolheffing 2026 € 195,40 per jaar.
22/429e aandeel in de gemeenschap (appartement).
1/66e aandeel in de gemeenschap. (parkeerplaats).
Actieve Vereniging van Eigenaren, bijdrage appartement € 225,55 per maand.
Bijdrage garage € 37,12 per maand
Elektra 8 groepen met aardlekschakelaar.
Verwarming middels HR c.v.-combiketel, merk Intergas, bouwjaar 2020.
Warmwatervoorziening middels HR c.v.-combiketel.
De onderhoudssituatie van het sanitair en de keuken is uitstekend.
De onderhoudssituatie binnen en buiten is uitstekend.
Het appartement is voorzien van aluminium kozijnen met HR++.
Alle kozijnen zijn voorzien van screens.
Er zijn zonnepanelen aanwezig, welke gebruikt worden voor de gemeenschappelijke ruimten.
Koper is vrij in notariskeuze, echter wel in regio Haaglanden.
Bouwjaar 2020.
Woonoppervlakte ca. 112 m².
De inhoud van het appartement is ca. 390 m³.
Model NVM-koopakte van toepassing.
NABIJ
Winkels Kijkduin, Alphons Diepenbrockhof, het De Savornin Lohmanplein.
Landgoed Ockenburgh, duinen, strand en zee, Badplaats Kijkduin, restaurants en musea.
Openbaar vervoer, (RandstadRail lijn 3, bus 23), uitvalswegen via Hubertustunnel en Westlandroute.
Nabij Europese en/of International School of The Hague, basisscholen en diverse sportfaciliteiten.
KADASTRALE INFORMATIE
Appartement
Gemeente : Loosduinen
Sectie : H
Nummer : 8189
Appartementsindex : -31
Parkeerplaats
Gemeente : Loosduinen
Sectie : H
Nummer : 8189
Appartementsindex : -93
De Meetinstructie is gebaseerd op de NEN2580. De Meetinstructie is bedoeld om een meer eenduidige manier van meten toe te passen voor het geven van een indicatie van de gebruiksoppervlakte. De Meetinstructie sluit verschillen in meetuitkomsten niet volledig uit, door bijvoorbeeld interpretatieverschillen,afrondingen of beperkingen bij het uitvoeren van de meting.
Interesse in dit huis? Schakel direct uw eigen NVM-aankoopmakelaar in.
Uw NVM-aankoopmakelaar komt op voor uw belang en bespaart u tijd, geld en zorgen.
Adressen van collega NVM-aankoopmakelaars in Haaglanden vindt u op Funda.
**********************************************
Unique and fantastic apartment with unobstructed panoramic views over the greenery
Truly stunning and luxuriously renovated 3-room apartment (approx. 112 m²) featuring a beautiful living room with a luxurious kitchen/diner, 2 bedrooms, luxurious bathroom fixtures, and a spacious, sunny southwest-facing terrace (approx. 19 m²), a parking space and a separate storage unit in the spacious garage. Eternal lease-hold land of which the rent charge has been bought off.
The apartment is located on the second floor of the beautiful new-build complex "Zuiderduinen" (built in 2020) and features an energy label A, aluminum window frames with HR++ glass and underfloor heating.
In the immediate vicinity of the Ockenburgh Estate, Kijkduin seaside resort, the International School, Ockenburgh Golf Club, other sports facilities and major roads.
LAY-OUT
Entrance to the second floor via a secured and high-quality main entrance with doorbells and mailboxes, a video intercom system and stairs or elevator.
Apartment entrance, spacious L-shaped landing with beautiful herringbone PVC flooring and underfloor heating throughout the apartment, meter cupboard and wardrobe with central heating boiler.
Separate spacious toilet with hand wash unit, beautifully tiled bathroom with a large walk-in shower, double vanity with vanity unit and mirrored cabinet, designer radiator and underfloor heating.
Indoor storage room with connections for a washing machine and dryer.
Charming living/dining room with lots of natural light thanks to its corner location. A luxurious kitchen diner features a composite countertop, ample storage space, a double sink and various built-in appliances, including an induction cooktop with integrated extractor fan (Berbel), a large refrigerator, a freezer (V-Zug), an oven, microwave, warming drawer and a Siemens dishwasher.
From the living room, large sliding doors open onto the fantastic southwest-facing terrace with unobstructed views over the greenery, with electricity and water connection.
The first bright bedroom features a custom-built wardrobe and doors to the terrace. The second spacious bedroom has French doors leading to a French balcony.
An internal elevator provides access to the spacious parking garage with a private parking space and (bicycle) storage with electricity.
For the dimensions of the rooms please refer to the floor plans.
SPECIAL FEATURES
Eternal lease-hold land of which the rent charge has been bought off.
Acceptance in agreement.
Sewerage charges 2026 € 195,40 per year.
22/429th share in the community (apartment).
1/66th share in the community (parking space).
Active Owners Association, contribution apartment € 225,55 each month.
Contribution parking space € 37,12 per month.
No active V.V.E., this will still have to be activated.
Electricity 8 groups with circuit breaker.
HR Central heating system, brand Intergas, built in 2020.
Hot water supply by HR central heating system.
The condition of the bathroom and the kitchen is excellent.
The condition of the interior and exterior is excellent.
The apartment has aluminum window frames with HR++ glazing.
All window frames are fitted with screens.
There are solar panels, which are used for the common areas.
The buyer is free to choose a notary, but must be located in the Haaglanden region.
Built in 2020.
Living surface approx. 112 m².
The volume of the apartment approx. 390 m³.
NVM model deed applicable.
NEAR
Shops in Kijkduin, Alphons Diepenbrockhof, and De Savornin Lohmanplein.
Ockenburgh Estate, dunes, beach, and sea, Kijkduin seaside resort, restaurants, and museums.
Public transport (RandstadRail line 3, bus 23), access roads via the Hubertustunnel and Westland Route.
Near the European and/or International School of The Hague, primary schools, and various sports facilities.
The measurement instruction is based on NEN2580. The measurement instruction is intended to apply a more uniform way of measuring for giving an indication of the use surface. The measurement instruction can not completely close differences in measurement results, for example by differences in interpretation, rounding or limitations in the performance of the measurement.



Wilt u meer weten over deze woning of een bezichtiging plannen? Bel of mail ons of vul het formulier in.
Heeft u een vraag?
Bel ons (070) 365 00 00
of mail info@joostvanvliet.nl
