Tomatenstraat 289, Vruchtenbuurt
Zeer gunstig gelegen, tegenover de Ananasstraat, sfeervol en zonder veel kosten te betrekken 7-kamer tussenwoning voorzien van 5 slaapkamers, 2 badkamers, voor- en diepe achtertuin.
Om de hoek van de winkels en horeca aan de Appel- en Vlierboomstraat, het De Savornin Lohmanplein, openbaar vervoer, diverse (Internationale) scholen, sportfaciliteiten, Bosjes van Pex, strand, zee en duinen.
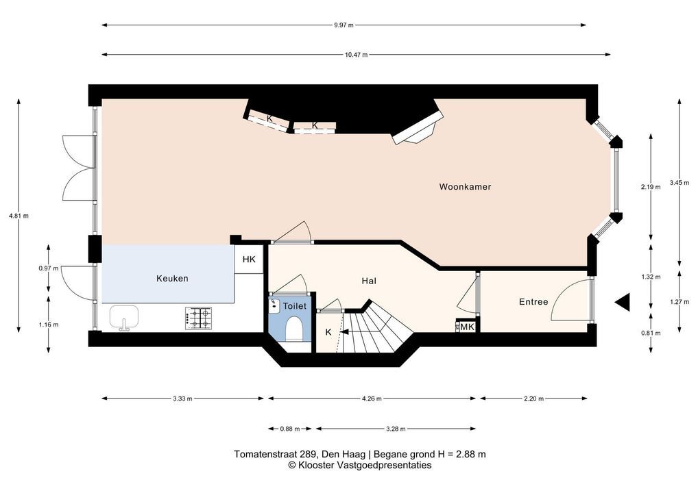
INDELING
Zonnige voortuin grotendeels bestraat voor het plaatsen van bijvoorbeeld fietsen, entree in boogvorm met een originele voordeur, vestibule met granieten vloer, orignele wandtegels en een tochtseparatie van glas in lood, gang met eiken houten vloerdelen doorgelegdn in de woonkamer, toilet met fontein.
Doorgebroken woon-/eetkamer met een gashaard, boekenkast en open witte houten keuken met granieten aanrechtblad met verzonken spoelbak, Quooker, oven, 5-pits gasfornuis, afzuigkap, vaatwasser, koel- en vrieskast.
Openslaande deuren naar een diepe zonnige achtertuin voorzien van een berging met elektra en achterom.
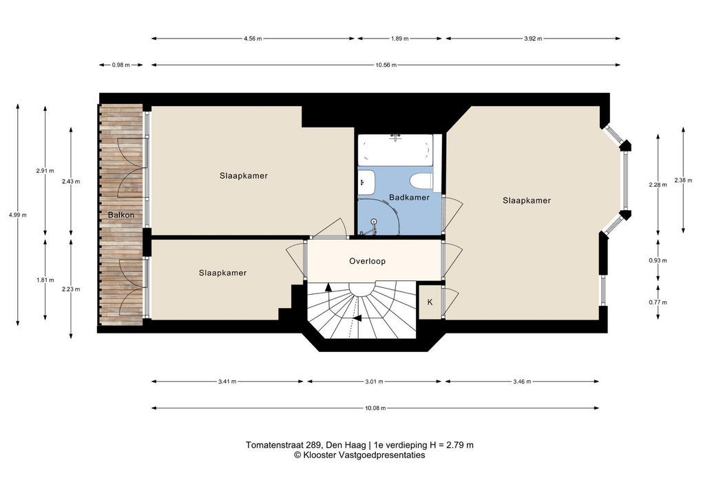
1e VERDIEPING
Overloop met lamellen parketvloer doorgelegd in alle kamers, ruime voorslaapkamer gelegen over de gehele breedte van de woning met vaste kast en erker voorzien van bovenramen van glas in lood.
Toegang naar een badkamer met mozaïek betegeld en voorzien van toilet, douche, wastafel en ligbad.
Lichte achterslaapkamer met openslaande deuren naar het balkon, achterzijkamer met openslaande deuren naar het balkon.
2e VERDIEPING
Overloop met parketvloer doorgelegd in alle kamers, voorslaapkamer over de gehele breedte van de woning met dakkapel, tussengelegen 2e badkamer voorzien van toilet, wastafel, douche en opstelplaats voor de wasmachine/droger.
Vanuit de badkamer vlizotrap naar de vliering voorzien van opstelplaats c.v.-combiketel en ventilatiebox.
Achterslaapkamer over de gehele breedte van de woning met dakkapel en bergruimte onder de knieschotten.
Voor de afmetingen van de kamers verwijzen wij u naar de plattegronden.
BIJZONDERHEDEN
Gelegen op eeuwigdurende erfpachtgrond. De canon bedraagt € 1.496,-- per jaar, gebaseerd op een grondwaarde van € 37.400,-- (=afkoopsom) en een canonpercentage van 4%. Herziening canonpercentage per 1 januari 2028.
Aanvaarding in overleg.
Rioolheffing 2025 € 191,15.
Elektra 9 groepen met 2 aardlekschakelaars en hoofdschakelaar.
Verwarming middels c.v.-combiketel, merk Remeha, bouwjaar 2014.
Warmwatervoorziening middels c.v.-combiketel.
De onderhoudssituatie van het sanitair en de keuken is goed.
De onderhoudssituatie binnen en buiten is goed.
De woning is voorzien van houten kozijnen met HR++ glas en dubbel glas.
De woning is voorzien van veel authentieke details zoals alle paneeldeuren, glas in lood, granieten vloer en prachtig trappenhuis.
De kruipruimte is geïsoleerd met Tonzon.
Verkoper heeft de woning nooit zelf feitelijk gebruikt.
Koper is vrij in notariskeuze, echter wel in regio Haaglanden.
De lood- /asbest- en ouderdomsclausules zijn van toepassing.
Bouwjaar ca. 1932.
Woonoppervlakte ca. 128 m².
De inhoud van het appartement is ca. 475 m³.
Het appartement is bouwkundig gekeurd.
Model NVM-koopakte van toepassing.
NABIJ
Winkels aan de Vlierboom- en Appelstraat, het De Savornin Lohmanplein, Fahrenheitstraat, Thomsonlaan, Goudsbloemlaan en de Haagse binnenstad.
Bosjes van Pex, duinen, strand en zee, Badplaats Kijkduin, restaurants en musea.
Openbaar vervoer, (RandstadRail lijn 3, tramlijn 2, bus 23), uitvalswegen via Hubertustunnel en Westlandroute.
Nabij Europese en/of International School of The Hague, basisscholen en diverse sportfaciliteiten.
KADASTRALE INFORMATIE:
Gemeente : Loosduinen
Sectie : I
Nummer : 4368
Grootte : 1 are 31 centiare
De Meetinstructie is gebaseerd op de NEN2580. De Meetinstructie is bedoeld om een meer eenduidige manier van meten toe te passen voor het geven van een indicatie van de gebruiksoppervlakte. De Meetinstructie sluit verschillen in meetuitkomsten niet volledig uit, door bijvoorbeeld interpretatieverschillen, afrondingen of beperkingen bij het uitvoeren van de meting.
Interesse in dit huis? Schakel direct uw eigen NVM-aankoopmakelaar in.
Uw NVM-aankoopmakelaar komt op voor uw belang en bespaart u tijd, geld en zorgen.
Adressen van collega NVM-aankoopmakelaars in Haaglanden vindt u op Funda.
#################################################################
Very conveniently located, opposite the Ananasstraat, this charming and without involving much expense 7-room house features 5 bedrooms, 2 bathrooms, and a front and deep back garden.
Around the corner from the shops and restaurants on Appel- en Vlierboomstraat, De Savornin Lohmanplein, public transport, various (international) schools, sports facilities, Bosjes van Pex, the beach, sea, and dunes.
LAYOUT
Sunny front garden, largely paved for storing bicycles, for example. An arched entrance with an original front door, a vestibule with granite flooring, original wall tiles, and a stained-glass draft divider, a hallway with oak flooring extending into the living room, and a toilet with a hand basin.
Open-plan living/dining room with a gas fireplace, bookcase, and an open-plan white wooden kitchen with a granite countertop and a recessed sink, Quooker, oven, 5-burner gas stove, extractor hood, dishwasher, refrigerator, and freezer.
French doors open onto a deep, sunny back garden with a shed with electricity and rear access.
FIRST FLOOR
Landing with laminated parquet flooring throughout all the rooms, spacious front bedroom spanning the entire width of the house with a built-in wardrobe and a bay window with stained glass windows.
Access to a mosaic-tiled bathroom with a toilet, shower, washbasin, and bathtub.
Bright rear bedroom with French doors leading to the balcony, and a rear side room with French doors leading to the balcony.
SECOND FLOOR
Landing with parquet flooring throughout all the rooms, front bedroom spanning the entire width of the house with a dormer window, and a second bathroom located between the two bedrooms with a toilet, washbasin, shower, and space for the washer/dryer.
From the bathroom, a loft ladder leads to the attic, which houses the central heating system and ventilation unit.
Rear bedroom spanning the entire width of the house with a dormer window and storage space under the knee walls.
- For the dimensions of the rooms please refer to the floor plans.
SPECIAL FEATURES
Eternal lease-hold land. The rent charge is € 1,496.00 per year, based on a land value of € 37,400.00 (= redemption) and a rent rate of 4%. Review rent rates by January 1st, 2028.
Acceptance in agreement.
Sewage charges 2025 € 191,15.
Electricity 9 groups with 2 circuit breakers and main switch.
Central heating system, brand Remeha, built in 2014.
Hot water supply by central heating system.
The condition of the bathroom and the kitchen is good.
The condition of the interior and the exterior is good.
The house has wooden window frames with HR++ glazing and double lazing.
The house features many authentic details, such as all the paneled doors, stained glass, granite floors, and a beautiful staircase.
The crawl space is insulated with Tonzon.
Seller has the house itself never actually used.
The buyer is free to choose a notary, but must be located in the Haaglanden region.
The lead-/asbestos and age clauses will be applied.
Built in approx. 1932.
Living surface approx. 128 m².
The volume of the apartment approx. 475 m³.
Technical survey available.
NVM model deed applicable.
NEAR
Shops on Vlierboom- and Appelstraat, the De Savornin Lohmanplein,
Fahrenheitstraat, Thomsonlaan, Goudsbloemlaan and Center of The Hague.
Bosjes van Pex, dunes, beach and sea, Boulevard of Kijkduin, restaurants and museums.
Public transport (RandstadRail Line 3, line 2, Bus 23) and main roads through Westland Road and Hubertustunnel.
Close to European- and International School of The Hague, various schools and sport facilities.
The measurement instruction is based on NEN2580. The measurement instruction is intended to apply a more uniform way of measuring for giving an indication of the use surface. The measurement instruction can not completely close differences in measurement results, for example by differences in interpretation, rounding or limitations in the performance of the measurement.





Wilt u meer weten over deze woning of een bezichtiging plannen? Bel of mail ons of vul het formulier in.
Heeft u een vraag?
Bel ons (070) 365 00 00
of mail info@joostvanvliet.nl
