Tasmanstraat 147, Duinoord
In het gewilde Duinoord, om de hoek van de 1e Sweelinckstraat, uniek, zeer sfeervol en ruim parterreappartement 124 m2 voorzien van luxe woonkeuken, riante living, 3 slaapkamers en verrassend diepe stadstuin.
Het voormalige woon- winkelhuis uit 1905 in neo-renaissance stijl met prachtig geschilderde muurreclames op de vrijstaande zijgevel is in 2015 geheel gerenoveerd en uitgebouwd en is een ideaal gezinsappartement.
Rustig gelegen naast afgesloten speeltuintje voor kinderen en in directe omgeving van winkels in de Prins Hendrikstraat, Piet Heinstraat en Reinkenstraat, horeca aan het Prins Hendrikplein, Anna Paulownaplein en Koningsplein en op fietsafstand van het centrum van Den Haag en het strand van Scheveningen.
Gelegen op eigen grond.
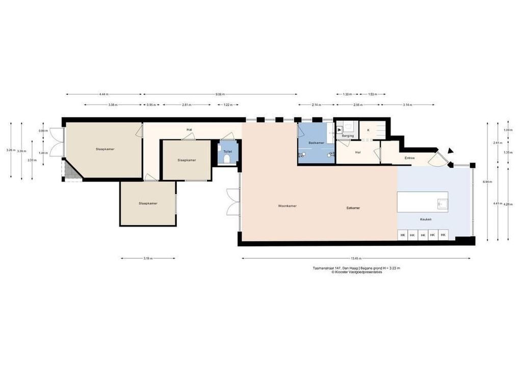
INDELING
Via klassieke voordeur toegang tot het appartement, garderobe, trapkast en vaste kast met extra opbergruimte.
Luxe woonkeuken (Bulthaup) aan de voorzijde, voorzien van een grote raampartij met glas in lood, met riant eiland voorzien van RVS-aanrechtblad, spoelbak, BORA inductiekookplaat met geïntegreerde afzuiging, koelkast en separate vrieskast (3-laden), combi-oven en vaatwasser.
Riante living 13.50m x 4.30m deels 7.00m voorzien van fraaie eiken lamelparketvloer, doorgelegd in het gehele appartement, hoge plafonds, 3 zijramen met vrij uitzicht en via de openslaande deuren naar de verrassend diepe en zonnige achtertuin met berging.
Modern, zwart wit betegelde badkamer voorzien van dubbele inloopdouche, dubbel wastafelmeubel, spiegelkasten, 2 zijramen en designradiator, separaat modern toilet met fontein. 3 Slaapkamers in de achterbouw, waarvan de achterslaapkamer via de openslaande deuren toegang biedt tot de sfeervolle stadstuin.
Voor de afmetingen van de kamers verwijzen wij u graag naar de plattegronden.
BIJZONDERHEDEN
Het appartement is gelegen op eigen grond.
Aanvaarding in overleg.
21/61e aandeel in de gemeenschap.
Actieve Vereniging van Eigenaren, bijdrage € 143,44 per maand.
Elektra 8 groepen met aardlekschakelaar.
Verwarming middels c.v.-combiketel, merk Remeha Avant, bouwjaar 2015.
Warmwatervoorziening middels c.v.-combiketel.
De onderhoudssituatie van de keuken en het sanitair is goed.
De onderhoudssituatie binnen en buiten is goed.
Het appartement is voorzien van houten kozijnen met deels dubbel glas.
Rijksbeschermd stadsgezicht.
De lood- /asbest- en ouderdomsclausules zijn van toepassing.
Bouwjaar 1905.
Woonoppervlakte ca. 124 m².
De inhoud van het appartement is ca. 545 m³.
Model NVM-koopakte van toepassing.
NABIJ
Winkels aan de Prins Hendrikstraat, Piet Heinstraat en Reinkenstraat, horeca aan het Prins Hendrikplein, Anna Paulownaplein en Koningsplein.
Scheveningse Bosjes, duinen, strand en zee, Haven van Scheveningen, restaurants en musea.
Openbaar vervoer, (RandstadRail lijn 3 en tram 17), uitvalswegen via Utrechtse Baan, Hubertustunnel en Westlandroute.
Nabij Europese school of The Hague, basisscholen en diverse sportfaciliteiten zoals tennis, voetbal en hockey.
KADASTRALE INFORMATIE
Gemeente : ‘s-Gravenhage
Sectie : N
Nummer : 8860
Appartementsindex : -1
De Meetinstructie is gebaseerd op de NEN2580. De Meetinstructie is bedoeld om een meer eenduidige manier van meten toe te passen voor het geven van een indicatie van de gebruiksoppervlakte. De Meetinstructie sluit verschillen in meetuitkomsten niet volledig uit, door bijvoorbeeld interpretatieverschillen,afrondingen of beperkingen bij het uitvoeren van de meting.
Interesse in dit huis? Schakel direct uw eigen NVM-aankoopmakelaar in.
Uw NVM-aankoopmakelaar komt op voor uw belang en bespaart u tijd, geld en zorgen.
Adressen van collega NVM-aankoopmakelaars in Haaglanden vindt u op Funda.
*********************************************************************************
In the popular Duinoord, around the corner from 1e Sweelinckstraat, unique, very attractive and spacious ground floor apartment (124 m2) with a luxurious kitchen, spacious living room, 3 bedrooms and a surprisingly deep city garden.
This former shop/residential house built-in 1905 in neo-Renaissance style with beautifully painted wall advertisements on the detached side wall was completely renovated and expanded in 2015 and is an ideal family apartment.
Quietly located next to a closed-off playground for children and in the immediate vicinity of shops in Prins Hendrikstraat, Piet Heinstraat and Reinkenstraat, restaurants on Prins Hendrikplein, Anna Paulownaplein and Koningsplein and within cycling distance of the center of The Hague and the beach of Scheveningen.
The property is freehold.
LAY-OUT
Access to the apartment via classic front door, wardrobe, stair cupboard and fixed cupboard with extra storage space.
Luxurious kitchen (Bulthaup) at the front, with large windows with stained glass, with a spacious island with stainless steel worktop, sink, BORA induction hob with integrated extraction, fridge and separate freezer (3 drawers), combi oven and dishwasher.
Spacious living room 13.50m x 4.30m partly 7.00m with beautiful oak parquet flooring, laid throughout the apartment, high ceilings, 3 side windows with unobstructed views and through the French doors access to the surprisingly deep and sunny backyard with storage room.
Modern, black and white tiled bathroom with double walk-in shower, double washbasin, mirror cabinets, 2 side windows and design radiator, separate modern toilet with hand basin. 3 Bedrooms in the rear building, of which the rear bedroom offers access to the attractive city garden through French doors.
We refer to the floor plans for the dimensions of the rooms.
SPECIAL FEATURES
The property is freehold.
Acceptance in agreement.
21/61st share in the community.
Active Owners Association, contribution € 143.44 each month.
Electricity 8 groups with circuit breaker.
Central heating system, brand Remeha Avant, model 2015.
Hot water supply by central heating system.
The condition of the kitchen and bathroom is good.
The condition of the interior and the exterior good.
The apartment has wooden window frames with partly double glazing.
Listed as a nationally building within the meaning of the Heritage Act.
The lead-/asbestos and age clauses will be applied.
Built in 1905.
Living surface approx. 124 m².
The volume of the apartment approx. 545 m³.
NVM model deed applicable.
NEAR
Shops at the Prins Hendrikstraat, Piet Heinstraat and Reinkenstraat, restaurants on Prins Hendrikplein, Anna Paulownaplein and Koningsplein.
Scheveningse Bosjes, dunes, beach and sea, Harbor of Scheveningen, restaurants and museums.
Public transport (RandstadRail Line 3 and tram 17) and main roads through Utrechtse Baan, Westland Road and Hubertustunnel.
Close to European School of The Hague, various schools and sport facilities such as tennis, soccer and hockey.
The measurement instruction is based on NEN2580. The measurement instruction is intended to apply a more uniform way of measuring for giving an indication of the use surface. The measurement instruction can not completely close differences in measurement results, for example by differences in interpretation, rounding or limitations in the performance of the measurement.


Wilt u meer weten over deze woning of een bezichtiging plannen? Bel of mail ons of vul het formulier in.
Heeft u een vraag?
Bel ons (070) 365 00 00
of mail info@joostvanvliet.nl

