Thomsonlaan 107, Bomenbuurt
In 2022/2023 getransformeerde prachtige luxe afgewerkte ruime 5 kamer parterre woning met souterrain, voorzien van 4 ruime slaapkamers, 2 badkamers en L-vormige zonnige achtertuin, volledig geïsoleerd met 8 zonnepanelen.
Zeer gunstig gelegen ten opzichte van winkels, restaurants, openbaar vervoer, strand, zee en duinen.
INDELING:
Entree op de begane grond, gang met een “eiken look” pvc vloer doorgelegd in het gehele appartement, openslaande zwart stalen taatsdeuren naar een riante woonkamer met een open luxe keuken, centraal geplaatst voorzien van kook- en spoeleiland met inductie kookplaat voorzien van geïntegreerde afzuiging, spoelbak met Quooker, vaatwasser en barblad afgewerkt met akoestische panelen. Verder een wand keukenblok met combimagnetron, magnetron, koel- en vrieskast (alle apparatuur van Siemens).
Vanuit de woonkamer toegang naar de achterbouw; gang, toilet met fontein, luxe badkamer, fraai betegeld met badkamermeubel en inloop (stort)douche, slaapkamer thans ingedeeld als kleedkamer voorzien van vaste kast, ruimere slaapkamer met openslaande deuren naar een gezellige en zonnige tuin voorzien van een pergola.
Souterrain, gang, modern toilet met fontein, vaste kast met wasmachine/droger opstelling, voorslaapkamer voorzien van lichtstraat, tussen gelegen fraai betegelde badkamer met ligbad, dubbele (stort)douche en badkamermeubel, ruime achterslaapkamer met walk-in-closet.
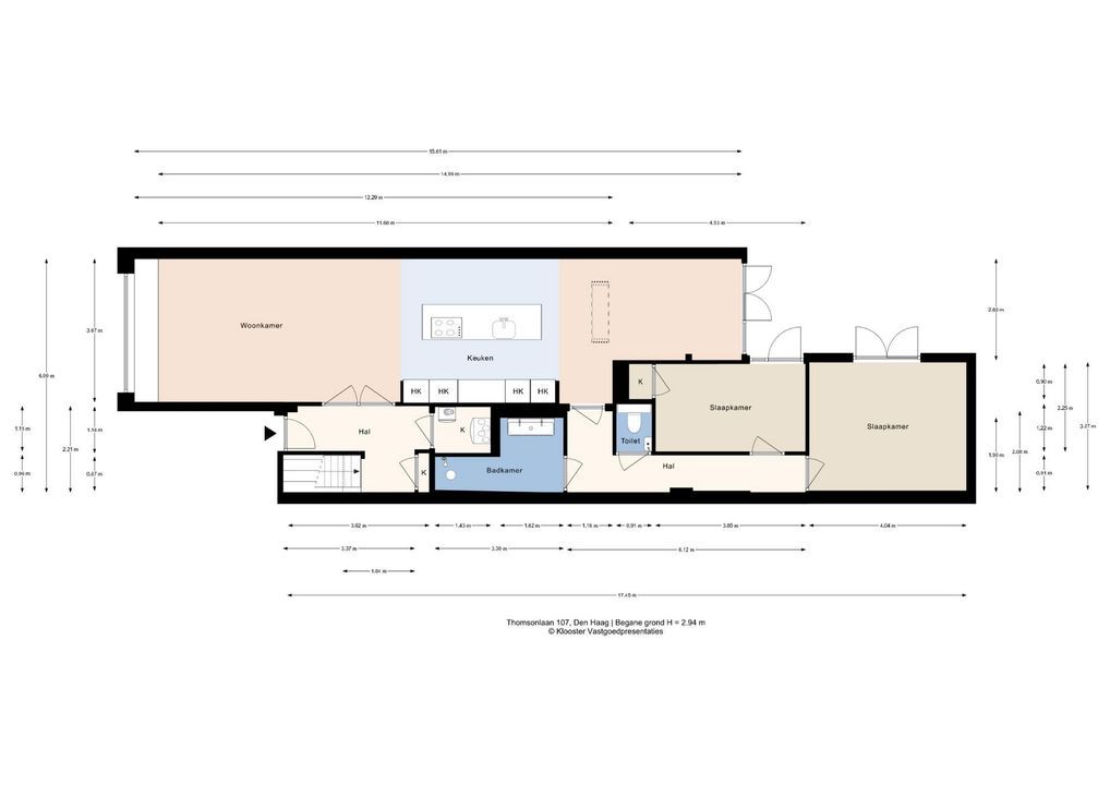
Voor de afmetingen van de kamers verwijzen wij u naar de plattegronden.
BIJZONDERHEDEN
Het appartement is gelegen op eigen grond.
Aanvaarding in overleg.
Rioolheffing 2025 € 191,15 per jaar.
42/406e aandeel in de gemeenschap.
Actieve Vereniging van Eigenaren, bijdrage € 169,73 per maand.
Elektra 9 groepen + 2 fases + 3 aardlekschakelaars + hoofdschakelaar.
Verwarming middels c.v.-combiketel, merk Remeha, bouwjaar 2023.
Warmwatervoorziening middels c.v.-combiketel en warmte terugwininstallatie.
De onderhoudssituatie van het sanitair en de keuken is goed/uitstekend
De onderhoudssituatie binnen en buiten is goed/uitstekend.
Het appartement is voorzien van kunststof kozijnen met HR++ glas.
Groen dak bij de tuinslaapkamers en de gang.
Koper is vrij in notariskeuze, echter wel in regio Haaglanden.
De lood- /asbest- en ouderdomsclausules zijn van toepassing.
Bouwjaar 1926.
Woonoppervlakte ca. 160 m².
De inhoud van het appartement is ca. 555 m³.
Model NVM-koopakte van toepassing.
NABIJ
Winkels aan de Thomsonlaan, Fahrenheitstraat, Goudsbloemlaan, Reinkenstraat, Frederik Hendriklaan en Haagse binnenstad.
Bosjes van Poot, duinen, strand en zee, Haven van Scheveningen, restaurants en musea.
Openbaar vervoer, (RandstadRail lijn 3, tramlijn 12), uitvalswegen via Hubertustunnel en Westlandroute.
Nabij Europese en/of International School of The Hague, basisscholen en diverse sportfaciliteiten.
KADASTRALE INFORMATIE
Gemeente : ’s-Gravenhage
Sectie : AN
Nummer : 6167
Appartementsindex : -2
De Meetinstructie is gebaseerd op de NEN2580. De Meetinstructie is bedoeld om een meer eenduidige manier van meten toe te passen voor het geven van een indicatie van de gebruiksoppervlakte. De Meetinstructie sluit verschillen in meetuitkomsten niet volledig uit, door bijvoorbeeld interpretatieverschillen, afrondingen of beperkingen bij het uitvoeren van de meting.
Interesse in dit huis? Schakel direct uw eigen NVM-aankoopmakelaar in.
Uw NVM-aankoopmakelaar komt op voor uw belang en bespaart u tijd, geld en zorgen.
Adressen van collega NVM-aankoopmakelaars in Haaglanden vindt u op Funda.
*********************************************************************************
Transformed in 2022/2023, this beautifully and luxuriously finished, spacious 5-room ground floor apartment with a souterrain features 4 spacious bedrooms, 2 bathrooms, and a L-shaped sunny back garden, fully insulated with 8 solar panels.
Very conveniently located close to shops, restaurants, public transport, beach, sea and dunes.
LAY-OUT
Entrance on the ground floor, hallway with “oak-look” PVC flooring throughout the apartment, black steel taats doors leading to a spacious living room with an luxury open-plan kitchen, centrally located and featuring a cooking and dishwashing island with an induction cooktop and integrated extractor hood, sink with Quooker, dishwasher, and a countertop, finished with acoustic panels. A kitchen wall unit with a combination microwave/oven, microwave, refrigerator, and freezer (all Siemens appliances).
The living room leads to the lockable rear extension, hallway, toilet with hand basin, luxurious bathroom, beautifully tiled with vanity and walk-in (rain)shower. A bedroom currently used as a dressing room with a built-in wardrobe, a more spacious bedroom with French doors leading to a cozy and sunny garden with a pergola.
Souterrain, hallway, modern toilet with hand basin, built-in wardrobe with washer/dryer setup, front bedroom with skylight, and a beautifully tiled bathroom with a bathtub, double (rain)shower and vanity, located between the two bedrooms. A spacious rear bedroom with a walk-in closet.
For the dimensions of the rooms please refer to the floor plans.
SPECIAL FEATURES
The property is freehold.
Acceptance in agreement.
Sewerage charges 2025 € 191,15 per year.
42/406th share in the community.
Active Owners Association, contribution € 169,73 each month.
Electricity 9 groups, 2 fases, 3 circuit breakers and 1 main switch.
Central heating system, brand Remeha, model 2023.
Hot water supply by central heating system and heat recovery installation.
The condition of the bathroom and the kitchen is good/excellent.
The condition of the interior and exterior is good/excellent.
The apartment has synthetic window frames with HR++ glazing.
Green roof at the garden bedrooms and the hallway.
The buyer is free to choose a notary, but must be located in the Haaglanden region.
The lead-/asbestos and age clauses will be applied.
Built in 1926.
Living surface approx. 160 m².
The volume of the apartment approx. 555 m³.
NVM model deed applicable.
NEAR
Shops at the Thomsonlaan, Fahrenheitstraat, Goudsbloemlaan, Reinkenstraat, Frederik Hendriklaan and Center of The Hague.
Bosjes van Poot, dunes, beach and sea, Harbor of Scheveningen, restaurants and museums.
Public transport (RandstadRail Line 3, Line 12 and main roads through Westland Road and Hubertustunnel.
Close to European- and International School of The Hague, various schools and sport facilities.
The measurement instruction is based on NEN2580. The measurement instruction is intended to apply a more uniform way of measuring for giving an indication of the use surface. The measurement instruction can not completely close differences in measurement results, for example by differences in interpretation, rounding or limitations in the performance of the measurement.



Wilt u meer weten over deze woning of een bezichtiging plannen? Bel of mail ons of vul het formulier in.
Heeft u een vraag?
Bel ons (070) 365 00 00
of mail info@joostvanvliet.nl

