Statenlaan 89B, Statenkwartier
Op de hoek van de Frankenslag gelegen achter een karakteristieke gevel, ruim en sfeervol 5-kamer appartement op de 2e verdieping welke met lift bereikbaar is.
Door de hoekligging ligt het woongedeelte grotendeels aan de rustige Frankenslag. De voorzijde met een monumentale Statenkwartier-gevel is gelegen op het zuidwesten waardoor er een prachtige lichtinval is. Het betreft een stijlvol renovatieproject (achter bestaande gevel) uit 2016 met onder andere: 3 slaapkamers, 2 badkamers, luxe open keuken met inbouwapparatuur, mooie houten vloer, open haard, 2 balkons en fietsenberging op straatniveau.
INDELING:
Prachtige entree voorzien van videofoonsysteem, vestibule met de meterkasten en een lift.
Entree van het appartement is op de 2e verdieping, gang met visgraatparketvloer voorzien van bies doorgelegd in de woon-/eetkamer. Vaste kast met wasmachine aansluiting en opstelplaats c.v.-combiketel, modern toilet met fontein.
Lichte voorslaapkamer voorzien van airco, vaste kast en prachtig vrij uitzicht over de Statenlaan, moderne badkamer met inloopdouche en badkamermeubel, achterslaapkamer voorzien van 2 kastenwanden, hoofdslaapkamer voorzien van airco, 2 kastenwanden en openslaande deuren naar een ruim balkon. Ruime moderne badkamer ensuite voorzien van dubbele wastafelmeubel, vloerverwarming, toilet en inloopdouche.
Vanuit de gang openslaande deuren met roedeverdeling naar een sfeervolle woon-/ eetkamer met zandstenen schouw en hout open haard, airco, op maat gemaakte boekenkast, openslaande deuren naar klein balkon en open keuken voorzien van een spoeleiland met barblad, vriezer, vaatwasser, Quooker, voedselrestenvermaler en een recht keukenblok voorzien van een 5-pits gasfornuis, combi-magnetron, warmtelade, oven, koelkast en afzuigkap.
Vanuit de keuken openslaande deuren naar een groot bevlonderd balkon.
Fietsenberging aan de Frankenslag.
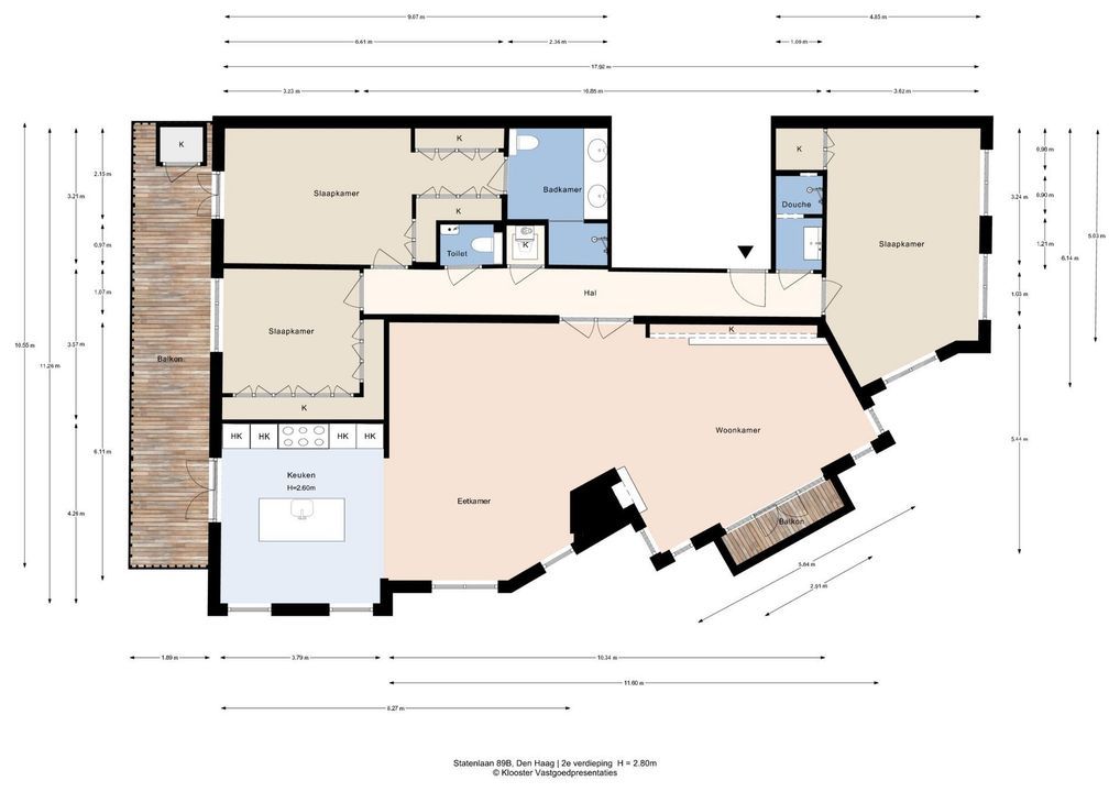
Voor de afmetingen van de kamers verwijzen wij u naar de plattegronden.
BIJZONDERHEDEN
Het appartement is gelegen op eigen grond.
Aanvaarding in overleg.
Rioolheffing 2026 € 195,40 per jaar.
26/100ste aandeel in de gemeenschap.
Actieve Vereniging van Eigenaren, bijdrage € 260,-- per maand.
Elektra 12 groepen + 3 aardlekschakelaars en hoofdschakelaar.
Verwarming middels c.v.-combiketel, merk Remeha, bouwjaar 2016.
Warmwatervoorziening middels c.v.-combiketel.
De woning is voorzien van een hydrofoor.
De onderhoudssituatie van het sanitair en de keuken is goed tot uitstekend.
De onderhoudssituatie binnen en buiten is goed.
Alle slaapkamers zijn voorzien van eikenhouten vloerdelen.
Het gehele appartement is voorzien van houten kozijnen met dubbel glas.
Rijksbeschermd stadsgezicht.
Koper is vrij in notariskeuze, echter wel in regio Haaglanden.
De lood- /asbest- en ouderdomsclausules zijn van toepassing.
Bouwjaar ca. 1910.
Woonoppervlakte ca. 154 m².
De inhoud van het appartement is ca. 525 m³.
Model NVM-koopakte van toepassing.
NABIJ
Winkels van gezellige Frederik Hendriklaan, Keizerstraat en op fietsafstand van Centrum-/ Haagse binnenstad.
Boulevard van en haven van Scheveningen, Scheveningse Bos, strand en zee.
Vele leuke restaurants en terrasjes en diverse musea.
Openbaar vervoer en uitvalswegen via Hubertustunnel.
Een diversiteit aan scholen zoals, Internationale Duitse School, Franse School en Europese International School en andere basisscholen.
Ook zijn er meerder sportfaciliteiten snel bereikbaar.
KADASTRALE INFORMATIE
Gemeente : ’s-Gravenhage
Sectie : AK
Nummer : 11430
Appartementsindex : -3
De Meetinstructie is gebaseerd op de NEN2580. De Meetinstructie is bedoeld om een meer eenduidige manier van meten toe te passen voor het geven van een indicatie van de gebruiksoppervlakte. De Meetinstructie sluit verschillen in meetuitkomsten niet volledig uit, door bijvoorbeeld interpretatieverschillen,afrondingen of beperkingen bij het uitvoeren van de meting.
Interesse in dit huis? Schakel direct uw eigen NVM-aankoopmakelaar in.
Uw NVM-aankoopmakelaar komt op voor uw belang en bespaart u tijd, geld en zorgen.
Adressen van collega NVM-aankoopmakelaars in Haaglanden vindt u op Funda.
**********************************************
Situated on the corner of Frankenslag, behind a characteristic facade, this spacious and charming 5-room apartment is located on the second floor and is accessible by elevator.
Due to its corner location, the living area largely faces the quiet Frankenslag. The southwest-facing front, with its monumental Statenkwartier facade, allows for beautiful natural light. This stylish renovation project (behind the existing facade) was completed in 2016 and includes: 3 bedrooms, 2 bathrooms, a luxurious open-plan kitchen with integrated appliances, beautiful wooden floors, a fireplace, 2 balconies, and a bicycle storage on street level.
LAY-OUT
Beautiful entrance hall with a video intercom system, vestibule with meter cupboards, and an elevator.
The apartment entrance is on the second floor. A hallway features herringbone parquet flooring with a border extending into the living/dining room. A built-in closet houses the connection of the washing machine and the position of the central heating boiler. A modern toilet with a hand basin.
A bright front bedroom with air conditioning, a built-in closet, and a beautiful unobstructed view over the Statenlaan, a modern bathroom with a walk-in shower and vanity unit, bedroom at the rear with two wall closets, master bedroom features two wall closets, air conditioning, and French doors leading to a spacious balcony. Spacious modern bathroom ensuite with a double vanity, underfloor heating, a toilet, and a walk-in shower.
From the hallway, French doors with glazing bars open into a charming living/dining room with a sandstone mantelpiece and wood-burning fireplace, air conditioning, a custom-made bookcase, French doors leading to a small balcony, and an open-plan kitchen featuring a sink island with a bar top, freezer, dishwasher, Quooker, food waste disposer, and a straight kitchen unit equipped with a 5-burner gas stove, combination microwave, warming drawer, oven, refrigerator, and extractor hood.
From the kitchen, French doors open onto a large, decked balcony.
Bicycle storage a the Frankenslag.
For the dimensions of the rooms please refer to the floor plans.
SPECIAL FEATURES
The property is freehold.
Acceptance in agreement.
Sewerage charges 2026 € 195,40 per year.
26/100th share in the community.
Active Owners Association, contribution € 260,-- each month.
Electricity 12 groups with 3 circuit breakers and main switch.
Central heating system, brand Remeha, built in 2016.
Hot water supply by central heating system.
The house is equipped with a hydrophore.
The condition of the bathroom and the kitchen is good/excellent.
The condition of the interior and exterior is good.
The apartment has wooden window frames with double glazing.
Listed as a nationally building within the meaning of the Heritage Act.
The buyer is free to choose a notary, but must be located in the Haaglanden region.
The lead-/asbestos and age clauses will be applied.
Built in approx. 1910.
Living surface approx. 154 m².
The volume of the apartment approx. 525 m³.
NVM model deed applicable.
NEAR
Shops on the lively Frederik Hendriklaan and Keizerstraat are within cycling distance of The Hague city center.
Scheveningen boulevard and harbor, Scheveningen Forest, beach, and sea.
Many lovely restaurants and terraces, and several museums.
Public transport and arterial roads are accessible via the Hubertustunnel.
A variety of schools, including the International German School, the French School, the European International School, and other primary schools.
Several sports facilities are also easily accessible.
The measurement instruction is based on NEN2580. The measurement instruction is intended to apply a more uniform way of measuring for giving an indication of the use surface. The measurement instruction can not completely close differences in measurement results, for example by differences in interpretation, rounding or limitations in the performance of the measurement.


Wilt u meer weten over deze woning of een bezichtiging plannen? Bel of mail ons of vul het formulier in.
Heeft u een vraag?
Bel ons (070) 365 00 00
of mail info@joostvanvliet.nl

