Sportlaan 944, Den Haag

Sportlaan 944 vraagprijs  € 450.000 k.k.


Sportlaan 944, Vogelwijk

Gunstig gelegen tegenover de Patrijslaan en aan het Segbroekplantsoen, vijf kamer maisonette met groot zonnig dakterras en ruime berging in de onderbouw. De woning dient gemoderniseerd te worden.

INDELING:
Verzorgd gesloten portiek met videofoon systeem en lift.
Entree op de 4e woonlaag. Centrale hal met visgraatparket vloer en meterkast, toilet met duoblok en fontein, kamer ensuite voorzien van blokparketvloer, schouw en vrij uitzicht op het groen van het Segbroekplantsoen, keuken voorzien van wit keukenblok, ruime en lichte slaapkamer voorzien van een vaste kast, uitzicht door de Patrijslaan en annex badkamer met ligbad en wastafel.

5E WOONLAAG:
Overloop met groot raam en vaste kast, kleine slaapkamer met een wastafel annex groot, zonnig dakterras, ruimere slaapkamer voorzien van 2 vaste kasten en tevens annex dakterras.

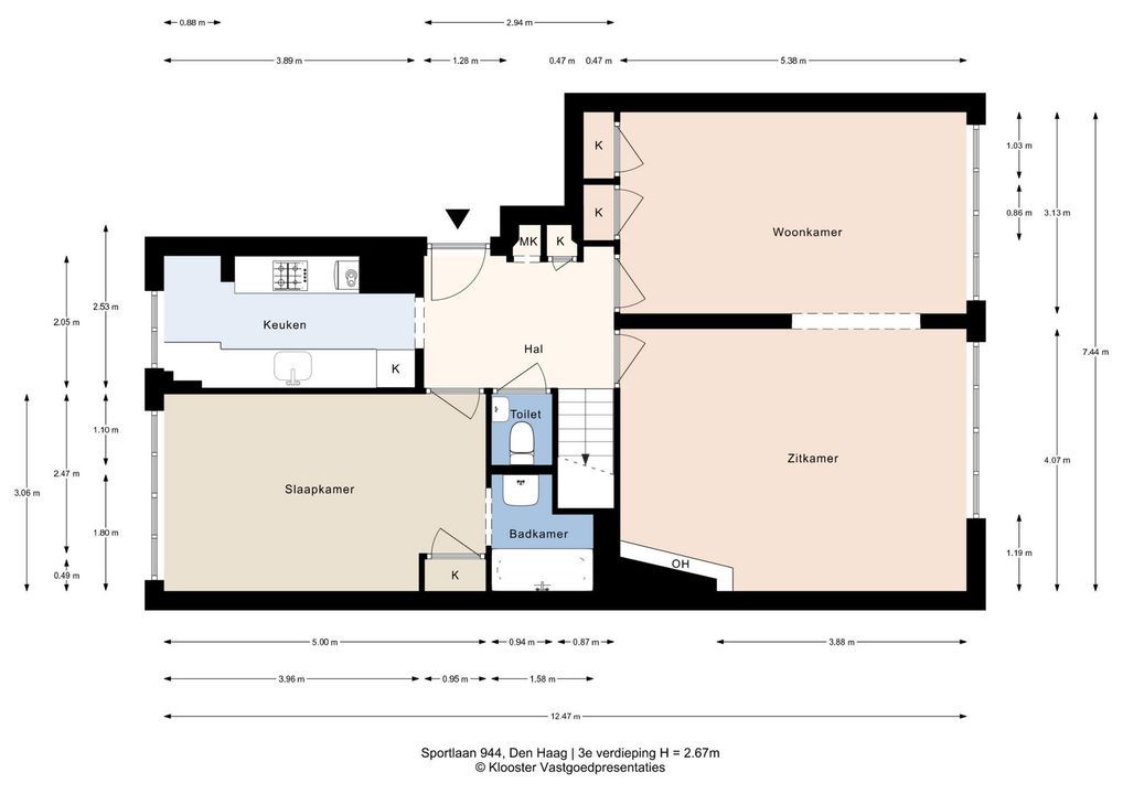
Voor de afmetingen van de kamers verwijzen wij u naar de plattegronden.

BIJZONDERHEDEN
Gelegen op erfpachtgrond, eindigende per 31-12-2027. De canon bedraagt € 83,08 per jaar.
Een vervroegde heruitgifte erfpacht is reeds aangevraagd bij de Gemeente Den Haag. Kosten hiervan komen voor rekening van koper.
Aanvaarding in overleg.
Rioolheffing 2026 € 195,40 per jaar.
468/10.000ste aandeel in de gemeenschap.
Actieve Vereniging van Eigenaren, bijdrage € 310,31 per maand.
Elektra 4 groepen + 3 fases met aardlekschakelaar.
Verwarming middels c.v.-combiketel, merk Vaillant 2013.
Warmwatervoorziening middels c.v.-combiketel.
De onderhoudssituatie van het sanitair en de keuken is redelijk.
De onderhoudssituatie binnen redelijk en buiten goed.
Het appartement is voorzien van aluminium kozijnen met HR++ glas.
Gemeentelijk beschermd stadsgezicht.
Verkoper heeft de woning nooit zelf feitelijk gebruikt, derhalve is de niet-bewoners clausule van toepassing.
Koper is vrij in notariskeuze, echter wel in regio Haaglanden.
De lood- /asbest- en ouderdomsclausules zijn van toepassing.
Bouwjaar 1954.
Naar ontwerp van architect P. Zanstra gebouwd door bouwbedrijf B. Meijer. Kenmerkend voor de bouw is de combinatie van betonnen (Cusveller) vloeren met houten opdekvloeren. Ontworpen met grote dagopeningen in de gevel wat een essentieel onderdeel is voor veel daglichttoetreding.
Woonoppervlakte ca. 104 m².
De inhoud van het appartement is ca. 350 m³.
Model NVM-koopakte van toepassing.

NABIJ
Winkels aan de Goudsbloemlaan, Thomsonlaan, Fahrenheitstraat, Frederik Hendriklaan en Haagse binnenstad.

Bosjes van Poot, Bosjes van Pex, duinen, strand en zee, Haven van Scheveningen, restaurants en musea.
Openbaar vervoer, (tramlijn 12, bus 24), uitvalswegen via Hubertustunnel en Westlandroute.

Nabij Europese en/of International School of The Hague, basisscholen en diverse sportfaciliteiten.

KADASTRALE INFORMATIE
Gemeente : ’s-Gravenhage
Sectie : AN
Nummer : 5605
Appartementsindex : -22

De Meetinstructie is gebaseerd op de NEN2580. De Meetinstructie is bedoeld om een meer eenduidige manier van meten toe te passen voor het geven van een indicatie van de gebruiksoppervlakte. De Meetinstructie sluit verschillen in meetuitkomsten niet volledig uit, door bijvoorbeeld interpretatieverschillen,afrondingen of beperkingen bij het uitvoeren van de meting.

Interesse in dit huis? Schakel direct uw eigen NVM-aankoopmakelaar in.
Uw NVM-aankoopmakelaar komt op voor uw belang en bespaart u tijd, geld en zorgen.
Adressen van collega NVM-aankoopmakelaars in Haaglanden vindt u op Funda.

*************************************

Conveniently located opposite Patrijslaan and Segbroekplantsoen, this five-room maisonette features a large, sunny roof terrace and ample storage in the basement. The property requires modernization.

LAY-OUT
A well-maintained, enclosed porch with a video intercom system and elevator.
Entrance on the 4th floor. Central hall with herringbone parquet flooring and meter cupboard, toilet with hand basin, ensuite bedroom with block parquet flooring, a mantel piece and unobstructed views of the greenery of Segbroekplantsoen. Kitchen with a white kitchen unit, spacious and bright bedroom with a built-in wardrobe, views through the Patrijslaan and an adjoining bathroom with a bathtub and wash basin.

5th FLOOR
Landing with a large window and built-in wardrobe, small bedroom with a wash basin and a large sunny roof terrace and a larger bedroom with two built-in wardrobes and an adjoining roof terrace.






For the dimensions of the rooms please refer to the floor plans.

SPECIAL FEATURES
Situated on lease-hold land, ending at 31-12-2027. The rent charge is € 83,08 per year.
An early offer of the ground lease from the Municipality of The Hague for the purpose of the mortgage is already requested. The costs for this requested will be for account of the buyer.
Acceptance in agreement.
Sewerage charges 2026 € 195,40 per year.
468/10.000th share in the community.
Active Owners Association, contribution € 310,31 each month.
Electricity 4 groups + 3 fases and ircuit breaker.
Central heating system, brand Vaillant, model 2013.
Hot water supply by central heating system.
The condition of the bathroom and the kitchen is reasonable.
The condition of the interior is reasonable and of the exterior good.
The apartment has aluminum window frames with HR++ glazing.
Part of the conservation area of the village or town (beschermd stads- of dorpsgezicht)
Seller has the apartment itself never actually used, therefor the non-resident clause applicable.
The buyer is free to choose a notary, but must be located in the Haaglanden region.
The lead-/asbestos and age clauses will be applied.
Built in 1954.
Designed by architect P. Zanstra, the building was built by construction company B. Meijer. The building is characterized by the combination of concrete (Cusveller) floors with wooden screeds. The design incorporates large openings in the facade, essential for allowing ample daylight to enter.
Living surface approx. 104 m².
The volume of the apartment approx. 350 m³.
NVM model deed applicable.

NEAR
Shops at the Goudsbloemlaan, Fahrenheitstraat, Thomsonlaan, Frederik Hendriklaan and Center of The Hague.

Bosjes van Poot, Bosjes van Pex, dunes, beach and sea, Harbor of Scheveningen, restaurants and museums.
Public transport (Tram line 12, Bus 24) and main roads through Westland Road and Hubertustunnel.

Close to European- and International School of The Hague, various schools and sport facilities.

The measurement instruction is based on NEN2580. The measurement instruction is intended to apply a more uniform way of measuring for giving an indication of the use surface. The measurement instruction can not completely close differences in measurement results, for example by differences in interpretation, rounding or limitations in the performance of the measurement.

Locatie

[ { "address": "Sportlaan 944", "zipCode": "2566 ND", "city": "Den Haag", "lat": 52.0789542, "lng": 4.257896, "heading": 0, "pitch": 0 } ]

Kenmerken

Vraagprijs
€ 450.000 k.k.
Status
Verkocht onder voorbehoud
Oplevering
In overleg

Bouw

Soort appartement
Maisonnette, Appartement
Woonlaag
4
Soort bouw
Bestaande bouw
Bouwjaar
1954
Onderhoud binnen
Redelijk
Onderhoud buiten
Goed
Bijzonderheden
Beschermd stads- of dorpgezicht

Oppervlakten en inhoud

Woonoppervlakte
104m²
Inhoud
350m³

Indeling

Aantal kamers
5
Aantal slaapkamers
3
Aantal badkamers
1
Aantal verdiepingen
2
Voorzieningen
Lift

Energie

Energielabel
E
Warm water
C.V.-ketel
Verwarming
C.V.-ketel
Ketel
Vaillant (2013, Combi-ketel, Eigendom)

Buitenruimte

Ligging
Aan park, In bosrijke omgeving, In woonwijk, Open ligging
Schuur
Inpandig

Garage

Plattegronden

Bekijk verloop van de zon

Uw browser ondersteunt geen WebGL

Afspraak of contact

Wilt u meer weten over deze woning of een bezichtiging plannen? Bel of mail ons of vul het formulier in.


Uw bericht is naar ons verzonden. Wij nemen zo snel mogelijk contact met u op.

Er is iets mis gegaan met het versturen van het formulier.
Controleer of u alle velden (goed) heeft ingevoerd en probeer het nog een keer.

recaptcha
reCAPTCHA
PrivacyTerms

Heeft u een vraag?
Bel ons (070) 365 00 00
of mail info@joostvanvliet.nl

Vergelijkbare woningen