Sportlaan 842, Vogelwijk
Vrij gelegen aan het Segbroekplantsoen met de Haagse Beek, in vrijwel originele staat verkerend ruim 6-kamer maisonnette appartement met zonnig balkon en dakterras en ruime berging in de onderbouw.
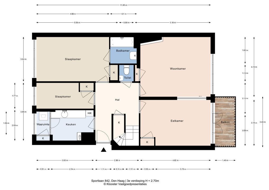
INDELING:
Verzorgd gesloten portiek met lift en videofoonsysteem.
Entree op de 3e verdieping.
Hal met visgraat parketvloer, toilet met originele wandtegels en fontein,
Keuken met een eenvoudig vrijwel origineel keukenblok annex inpandig balkon.
Tussengelegen slaapkamer met een vaste kast, ouderslaapkamer met een vaste kast en annex originele badkamer voorzien van ligbad.
Kamer en suite met schuifdeur, originele schouw, 2 vaste kasten en openslaande deuren naar een zonnig balkon.
TWEEDE WOONLAAG
Twee ruime slaapkamers grenzend aan een zonnig dakterras.
Voor de afmetingen van de kamers verwijzen wij u naar de plattegronden.
BIJZONDERHEDEN
Gelegen op erfpachtgrond, eindigende per 31 december 2027. De canon bedraagt € 82,46 per jaar.
Een vervroegde heruitgifte erfpacht is reeds aangevraagd bij de Gemeente Den Haag. Kosten hiervan komen voor rekening van koper.
Aanvaarding in overleg.
Rioolheffing 2025 € 191,15 per jaar.
301/10.000ste aandeel in de gemeenschap.
Actieve Vereniging van Eigenaren, bijdrage € 353,45 per maand.
Elektra 3 groepen met 1 aardlekschakelaar.
Verwarming middels c.v.-combiketel, merk Intergas, bouwjaar 2006.
Warmwatervoorziening middels c.v.-combiketel.
De onderhoudssituatie van het sanitair is redelijk/matig en de keuken is matig.
De onderhoudssituatie binnen is matig tot redelijk en buiten goed.
Het appartement is voorzien van stalen en aluminium kozijnen met gedeeltelijk dubbel glas (HR glas).
Gemeentelijk beschermd stadsgezicht.
Verkoper heeft de woning nooit zelf feitelijk gebruikt.
Koper is vrij in notariskeuze, echter wel in regio Haaglanden.
De lood- /asbest- en ouderdomsclausules zijn van toepassing.
Naar ontwerp van architect P. Zanstra gebouwd door bouwbedrijf B. Meijer. Kenmerkend voor de bouw is de combinatie van betonnen (Cusveller) vloeren met houten opdekvloeren. Ontworpen met grote dagopeningen in de gevel wat een essentieel onderdeel is voor veel daglichttoetreding.
Bouwjaar 1954.
Woonoppervlakte ca. 115 m².
De inhoud van het appartement is ca. 385 m³.
Model NVM-koopakte van toepassing.
NABIJ
Winkels aan het de Goudsbloemlaan, het De Savornin Lohmanplein, Fahrenheitstraat, Thomsonlaan, Frederik Hendriklaan en Haagse binnenstad.
Bosjes van Poot, duinen, strand en zee, Haven van Scheveningen, restaurants en musea.
Openbaar vervoer, (RandstadRail lijn 3, tramlijn 12, bus 24), uitvalswegen via Hubertustunnel en Westlandroute.
Nabij Europese en/of International School of The Hague, basisscholen en diverse sportfaciliteiten.
KADASTRALE INFORMATIE
Gemeente : ’s-Gravenhage
Sectie : AN
Nummer : 5604
Appartementsindex : -43
De Meetinstructie is gebaseerd op de NEN2580. De Meetinstructie is bedoeld om een meer eenduidige manier van meten toe te passen voor het geven van een indicatie van de gebruiksoppervlakte. De Meetinstructie sluit verschillen in meetuitkomsten niet volledig uit, door bijvoorbeeld interpretatieverschillen,afrondingen of beperkingen bij het uitvoeren van de meting.
Interesse in dit huis? Schakel direct uw eigen NVM-aankoopmakelaar in.
Uw NVM-aankoopmakelaar komt op voor uw belang en bespaart u tijd, geld en zorgen.
Adressen van collega NVM-aankoopmakelaars in Haaglanden vindt u op Funda.
**********************************************************************************************
Situated on the Segbroekplantsoen with the Haagse Beek, spacious 6-room maisonette apartment in almost original condition with sunny balcony and roof terrace and ample storage room in the basement
LAYOUT
Well-maintained enclosed porch with elevator and video intercom system. Entrance on the 3rd floor.
Hallway with herringbone parquet flooring, toilet with original wall tiles and wash basin.
Kitchen with a basic almost original kitchen unit and adjoining enclosed balcony.
Intermediate bedroom with a built-in closet, master bedroom with a built-in closet and adjoining original bathroom provided with a bathtub.
En-suite room with sliding doors, original fireplace, 2 built-in closets, and French doors leading to a sunny balcony.
SECOND FLOOR
Two spacious bedrooms adjacent to a sunny roof terrace.
For the dimensions of the rooms please refer to the floor plans.
SPECIAL FEATURES
Situated on lease-hold land, ending on 31 December 2027. The rent charge is € 82.46 per year.
An early offer of the ground lease from the Municipality of The Hague for the purpose of the mortgage is already requested. The costs for this requested will be for account of the buyer.
Acceptance in agreement.
Sewerage charges 2025 € 191,15 per year.
301/10.000th share in the community.
Active Owners Association, contribution € 353.45 each month.
Electricity 3 groups with one circuit breaker.
Central heating system, brand Intergas, built in 2006.
Hot water supply by central heating system.
The condition of the bathroom is reasonable/mediocre and the kitchen is mediocre.
The condition of the interior is mediocre to reasonable and the exterior good.
The apartment has steel and aluminum window frames with partly double glazing.
Part of the conservation area of the village or town.
Seller has the apartment itself never actually used.
The buyer is free to choose a notary, but must be located in the Haaglanden region.
The lead-/asbestos and age clauses will be applied.
Designed by architect P. Zanstra, the building was built by construction company B. Meijer. The building is characterized by the combination of concrete (Cusveller) floors with wooden screeds. The design incorporates large openings in the facade, essential for allowing ample daylight to enter.
Built in 1954.
Living surface approx. 115 m².
The volume of the apartment approx. 385 m³.
NVM model deed applicable.
NEAR
Shops at het de Goudsbloemlaan, De Savornin Lohmanplein, Fahrenheitstraat, Thomsonlaan, Frederik Hendriklaan and City Center of The Hague.
Bosjes van Poot, dunes, beach and sea, Harbor of Scheveningen, restaurants and museums.
Public transport (RandstadRail Line 3, Line12 and bus 24) and main roads through Westland Road and Hubertustunnel.
Close to European- and International School of The Hague, various schools and sport facilities.
The measurement instruction is based on NEN2580. The measurement instruction is intended to apply a more uniform way of measuring for giving an indication of the use surface. The measurement instruction can not completely close differences in measurement results, for example by differences in interpretation, rounding or limitations in the performance of the measurement.



Wilt u meer weten over deze woning of een bezichtiging plannen? Bel of mail ons of vul het formulier in.
Heeft u een vraag?
Bel ons (070) 365 00 00
of mail info@joostvanvliet.nl