Pomonaplein 36, Den Haag

Pomonaplein 36 vraagprijs  € 575.000 k.k.


Pomonaplein 36, Vruchtenbuurt

Zeer gunstig vrij en op afgekochte erfpachtgrond gelegen ruim 4-kamer parterre appartement met behoud van veel authentieke elementen en de achtertuin op het zuidwesten voorzien van een achterom.

INDELING:
Verhoogde entree met terrazzovloer, vestibule met tochtseparatie van glas in lood, granitovloer en originele wandtegels.
Ruime gang voorzien van laminaatvloer doorgelegd in alle kamers, modern toilet met fontein, lichte voorzijkamer met de wasmachineaansluiting.

Prachtige kamer en suite voorzien van een schuifseparatie met glas in lood en 4 vaste kasten, 2 marmeren schouwen, voorerker met vrij uitzicht en openslaande deuren naar een zonnige achtertuin gelegen op het zuidwesten met houten en stenen berging uitkomend op een achterom bereikbaar vanuit de Meloenstraat.

Tussengelegen nette keuken voorzien van een 4-pits gasfornuis, vaatwasser, koel-/vrieskast en zwart, natuurstenen aanrechtblad.

Achterslaapkamer met een vaste kast en annex badkamer met inloopdouche en wastafel.

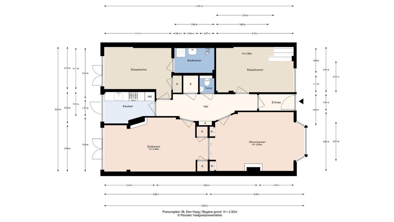
Voor de afmetingen van de kamers verwijzen wij u naar de plattegronden.

BIJZONDERHEDEN
Gelegen op eeuwigdurende erfpachtgrond, waarvan de canon is afgekocht.
Aanvaarding in overleg.
Rioolheffing 2026 € 195,40 per jaar.
2/7e aandeel in de gemeenschap.
Actieve Vereniging van Eigenaren, bijdrage € 121,-- per maand.
Elektra 7 groepen met aardlekschakelaar.
Verwarming middels c.v.-combiketel, merk Remeha, bouwjaar 2010.
Warmwatervoorziening middels c.v.-combiketel.
De onderhoudssituatie van het sanitair is goed/redelijk en de keuken is goed.
De onderhoudssituatie is zowel binnen als buiten goed.
Het appartement is aan de voorzijde voorzien van aluminium kozijnen met dubbel glas en de achterzijde is voorzien van houten kozijnen met gedeeltelijk dubbel glas.
Het appartement is voorzien van enkele originele details, zoals paneeldeuren, schuifseparatie, marmeren schouwen etc.
Verkoper heeft de woning nooit zelf feitelijk gebruikt, derhalve is de niet-bewonersclausule van toepassing.
Koper is vrij in notariskeuze, echter wel in regio Haaglanden.
De lood- /asbest- en ouderdomsclausules zijn van toepassing.
Bouwjaar 1931.
Woonoppervlakte ca. 103 m².
De inhoud van het appartement is ca. 405 m³.
Het appartement is bouwkundig gekeurd.
Model NVM-koopakte van toepassing.

NABIJ
Winkels aan Goudsbloemlaan, Vlierboom- en Appelstraat en het De Savornin Lohmanplein tevens op fietsafstand van het Alphons Diepenbrockhof , Frederik Hendriklaan en de Haagse binnenstad.

Bosjes van Pex, duinen, strand en zee, haven van Scheveningen en Badplaats Kijkduin.

Openbaar vervoer, (RandstadRail lijn 3, bus 23 en 24), uitvalswegen via Hubertustunnel en Westlandroute.

Nabij diverse scholen o.a. Europese en/of International School of The Hague en sportfaciliteiten.

KADASTRALE INFORMATIE
Gemeente : ’s-Gravenhage
Sectie : AV
Nummer : 2900
Appartementsindex : -1

De Meetinstructie is gebaseerd op de NEN2580. De Meetinstructie is bedoeld om een meer eenduidige manier van meten toe te passen voor het geven van een indicatie van de gebruiksoppervlakte. De Meetinstructie sluit verschillen in meetuitkomsten niet volledig uit, door bijvoorbeeld interpretatieverschillen,afrondingen of beperkingen bij het uitvoeren van de meting.

Interesse in dit huis? Schakel direct uw eigen NVM-aankoopmakelaar in.
Uw NVM-aankoopmakelaar komt op voor uw belang en bespaart u tijd, geld en zorgen.
Adressen van collega NVM-aankoopmakelaars in Haaglanden vindt u op Funda.

**********************************************************

Spacious very favourably located 4-room ground floor apartment situated on leasehold land of which the rent charge has been bought off, with many original features retained and a southwest-facing back garden with rear access.

LAYOUT
Raised entrance with terrazzo flooring, vestibule with stained glass, granite flooring, and original wall tiles.
Spacious hallway with laminate flooring throughout, modern toilet with hand basin, and bright front room with the washing machine connection.

Beautiful en-suite bedroom with sliding doors featuring stained glass and 4 built-in wardrobes, 2 marble fireplaces, a bay window with unobstructed views, and French doors leading to a sunny southwest-facing back garden with a wooden and stone shed, accessible from the rear of Meloenstraat.

Adjacent, neat kitchen with a 4-burner gas stove, dishwasher, refrigerator/freezer, and black natural stone countertop.

Rear bedroom with a built-in wardrobe and adjoining bathroom with a walk-in shower and wash basin.

For the dimensions of the rooms please refer to the floor plans.

SPECIAL FEATURES
Eternal lease-hold land of which the rent charge has been bought off.
Acceptance in agreement.
Sewerage charges 2026 € 195,40 per year.
2/7th share in the community.
Active Owners Association, contribution € 121,-- each month.
Electricity 7 groups with circuit breaker.
Central heating system, brand Remeha, built in 2010.
Hot water supply by central heating system.
The condition of the bathroom is good/reasonable and the kitchen is good.
The condition of the interior as well as the exterior is good.
The apartment has at the front aluminium window frames with double glazing and at the rear wooden window frames with partly double glazing.
The apartment is equipped with some original features such as panel doors, sliding separations, stained glass, marble fireplaces, etc.
Seller has the apartment itself never actually used, therefor the non-resident clause will be applicable.
The buyer is free to choose a notary, but must be located in the Haaglanden region.
The lead-/asbestos and age clauses will be applied.
Built in 1931.
Living surface approx. 103 m².
The volume of the apartment approx. 405 m³.
Technical survey available.
NVM model deed applicable.

NEAR
Shops on Goudsbloemlaan, Vlierboom- en Appelstraat and De Savornin Lohmanplein are also within cycling distance of Alphons Diepenbrockhof, Frederik Hendriklaan and the city center of The Hague.

Bosjes van Pex, dunes, beach and sea, harbor of Scheveningen and seaside resort Kijkduin.

Public transport (RandstadRail line 3, bus 23 and 24), arterial roads via Hubertus tunnel and Westland route.

Near various schools, including European and/or International School of The Hague and sports facilities.

The measurement instruction is based on NEN2580. The measurement instruction is intended to apply a more uniform way of measuring for giving an indication of the use surface. The measurement instruction can not completely close differences in measurement results, for example by differences in interpretation, rounding or limitations in the performance of the measurement.

Locatie

[ { "address": "Pomonaplein 36", "zipCode": "2564 XR", "city": "Den Haag", "lat": 52.0696762, "lng": 4.2589946, "heading": 0, "pitch": 0 } ]

Kenmerken

Vraagprijs
€ 575.000 k.k.
Status
Beschikbaar
Oplevering
In overleg

Bouw

Soort appartement
Benedenwoning, Appartement
Woonlaag
1
Soort bouw
Bestaande bouw
Bouwjaar
1931
Onderhoud binnen
Goed
Onderhoud buiten
Goed

Oppervlakten en inhoud

Woonoppervlakte
103m²
Inhoud
405m³

Indeling

Aantal kamers
4
Aantal slaapkamers
2
Aantal badkamers
1
Aantal verdiepingen
1

Energie

Energielabel
C
Isolatie
Dubbel glas, Gedeeltelijk dubbel glas
Warm water
C.V.-ketel
Verwarming
C.V.-ketel
Ketel
Remeha (2010, Combi-ketel, Eigendom)

Buitenruimte

Ligging
Aan rustige weg, In woonwijk, Vrij uitzicht
Tuin
Achtertuin
Achtertuin
Zuidwest, 100m², 1000×1000cm
Schuur
Vrijstaand hout

Garage

Plattegronden

Bekijk verloop van de zon

Uw browser ondersteunt geen WebGL

Afspraak of contact

Wilt u meer weten over deze woning of een bezichtiging plannen? Bel of mail ons of vul het formulier in.


Uw bericht is naar ons verzonden. Wij nemen zo snel mogelijk contact met u op.

Er is iets mis gegaan met het versturen van het formulier.
Controleer of u alle velden (goed) heeft ingevoerd en probeer het nog een keer.

recaptcha
reCAPTCHA
PrivacyTerms

Heeft u een vraag?
Bel ons (070) 365 00 00
of mail info@joostvanvliet.nl

Vergelijkbare woningen