Parsifalstraat 35, Bohemen links
Met behoud van vrijwel alle originele elementen sfeervol ruim 7-kamer tussenwoning in een nette staat van onderhoud. Gelegen in een rustige en kindvriendelijke straat nabij Landgoed Meer en Bos, badplaats Kijkduin, (internationale) scholen, Bosjes van Pex en winkelcentrum.
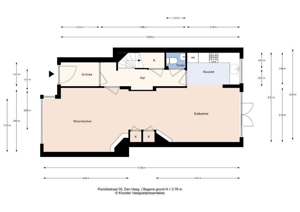
INDELING
Overdekt entree met originele voordeur voorzien van glas in lood, vestibule met granieten vloer, originele wandtegels en tochtseparatie van glas in lood, gang met nis, verdiepte kast onder de trap, toilet met duoblok, originele wandtegels en fontein.
Ruime en sfeervolle kamer ensuite met 2 vaste kasten, 2 marmeren schouwen met hout open haarden en open keuken voorzien van L-vormig keukenblok met oven, magnetron, koel-/vrieskast, 4-pits gasfornuis, vaatwasser en close in boiler.
Openslaande deuren naar een zonnige achtertuin voorzien van houten berging.
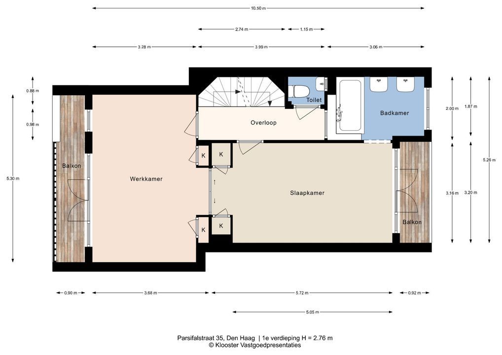
1e VERDIEPING
Overloop, toilet met duoblok, originele wandtegels en fontein, kamer ensuite met een schuifseparatie voorzien van glas in lood en 4 vaste kasten, waarvan de voorkamer is gelegen over de gehele breedte van de woning grenzend aan een balkon.
Tweede ruime slaapkamer aan de achterzijde tevens grenzend aan een balkon en open doorgang naar een nette badkamer voorzien van ligbad-/douchecombinatie en 2 wastafels.
2e VERDIEPING
Overloop, bergruimte, voorslaapkamer met een grote dakkapel en vaste kast, ruime achterslaapkamer met een grote dakkapel en vaste kast en een achterzijkamer voorzien van dakkapel ingedeeld als waskamer.
Voor de afmetingen van de kamers verwijzen wij u naar de plattegronden.
BIJZONDERHEDEN
Gelegen op eeuwigdurende erfpachtgrond. De canon bedraagt € 470,25 per jaar, gebaseerd op een grondwaarde van € 52.250,-- (=afkoopsom) en een canonpercentage van 0.9%. Herziening canonpercentage per 1 januari 2026.
Aanvaarding in overleg.
Rioolheffing 2025 € 191,15.
Elektra 11 groepen met 3 aardlekschakelaars en hoofdschakelaar. In 2025 is 3-fasenaansluiting aangebracht.
Verwarming middels c.v.-combiketel, merk Remeha, bouwjaar 2011.
Warmwatervoorziening middels c.v.-combiketel en elektrische boiler (eigendom).
De onderhoudssituatie van het sanitair en de keuken is goed.
De onderhoudssituatie is binnen en buiten goed.
De woning is aan de voorzijde voorzien van aluminium en houten kozijnen met dubbel glas en aan de achterzijde voorzien van houten kozijnen met dubbel glas.
De woning is voorzien van vrijwel alle originele elementen zoals paneeldeuren, glas in lood, marmeren schouwen, granieten vloer, schuifseparatie etc.
Glasvezelkabel aanwezig.
Zonwering op de 1e verdieping aan de voorzijde.
Koper is vrij in notariskeuze, echter wel in regio Haaglanden.
De lood- /asbest- en ouderdomsclausules zijn van toepassing.
Bouwjaar ca. 1936.
Woonoppervlakte ca. 147 m².
De inhoud van de woning is ca. 535 m³.
De woning is bouwkundig gekeurd.
Model NVM-koopakte van toepassing.
NABIJ
Winkelcentra aan het Alphons Diepenbrockhof en het de Savornin Lohmanplein,
Badplaats Kijkduin, Landgoed Meer en Bos, Bosjes van Pex, duinen, strand en zee.
Openbaar vervoer, (RandstadRail lijn 3 en bus 24, uitvalswegen via Hubertustunnel en Westlandroute.
Europese en/of International School of The Hague), basisscholen en diverse sportfaciliteiten.
KADASTRALE INFORMATIE:
Gemeente : Loosduinen
Sectie : H
Nummer : 2936
Grootte : 1 are 37 centiare
De Meetinstructie is gebaseerd op de NEN2580. De Meetinstructie is bedoeld om een meer eenduidige manier van meten toe te passen voor het geven van een indicatie van de gebruiksoppervlakte. De Meetinstructie sluit verschillen in meetuitkomsten niet volledig uit, door bijvoorbeeld interpretatieverschillen, afrondingen of beperkingen bij het uitvoeren van de meting.
Interesse in dit huis? Schakel direct uw eigen NVM-aankoopmakelaar in.
Uw NVM-aankoopmakelaar komt op voor uw belang en bespaart u tijd, geld en zorgen.
Adressen van collega NVM-aankoopmakelaars in Haaglanden vindt u op Funda.
####################################################
Retaining almost all original features, this charming, spacious, well-maintained 7-room terraced house is located in a quiet and child-friendly street near the Meer en Bos estate, Kijkduin seaside resort, (international) schools, Bosjes van Pex, and shopping center.
LAYOUT
Covered entrance with the original front door featuring stained glass, a vestibule with granite flooring, original wall tiles, and a stained glass draft divider, a hallway with an alcove, a recessed under-stairs cupboard, a toilet with original wall tiles, and a hand basin.
Spacious and charming ensuite room with two built-in wardrobes, two marble fireplaces with wood-burning stovetops, and an open-plan kitchen with an L-shaped unit equipped with an oven, microwave, refrigerator/freezer, 4-burner gas stove, dishwasher, and a close-in water heater.
French doors open onto a sunny back garden with a wooden shed.
FIRST FLOOR
Landing, toilet with original wall tiles, and a hand basin, ensuite bedroom with sliding doors featuring stained glass and four built-in wardrobes. The front room spans the entire width of the house and opens onto a balcony.
Second spacious bedroom at the rear also opens onto a balcony and provides access to a neat bathroom with a bath/shower combination and two washbasins.
SECOND FLOOR
Landing, storage space, front bedroom with a large dormer window and built-in wardrobe, spacious rear bedroom with a large dormer window and built-in wardrobe and a rear side room with dormer window classified as a laundry room.
- For the dimensions of the rooms please refer to the floor plans.
SPECIAL FEATURES
Eternal lease-hold land. The rent charge is € 470.25 per year, based on a land value of
€ 52,250.00 (= redemption) and a rent rate of 0,9%. Review rent rates by January 1st, 2026.
Acceptance in agreement.
Sewage charges 2025 € 191,15.
Electricity 11 groups with 3 circuit breakers and a main switch. In 2025, a 3-phase connection was installed.
Central heating system, brand Remeha, built in 2011.
Hot water supply by central heating system and electric water heater (owned).
The condition of the bathroom and kitchen is good.
The condition of the interior and exterior is good.
The house has in front wooden and aluminium window frames with double glazing and at the back wooden window frames with double glazing.
The house has almost all original features such as panel doors, stained glass, marble fireplaces, granite floors, sliding doors, etc.
Fiber optic cable available.
Sun blinds on the first floor at the front.
The buyer is free in his choice of notary, but in the Haaglanden region.
The lead-/asbestos and age clauses will be applied.
Built in approx. 1936.
Living surface approx. 147 m².
The volume of the house is approx. 535 m³.
Technical survey available.
NVM model deed applicable.
NEAR
Shops at The Savornin Lohmanplein and Alphons Diepenbrockhof,
Boulevard of Kijkduin, Meer and Bos, Bosjes van Pex, dunes, beach and sea.
Public transport, (RandstadRail line 3 and busline 23, main roads through Hubertus tunnel and Westland Road.
European- and International School of The Hague, various schools and sport facilities.
The measurement instruction is based on NEN2580. The measurement instruction is intended to apply a more uniform way of measuring for giving an indication of the use surface. The measurement instruction can not completely close differences in measurement results, for example by differences in interpretation, rounding or limitations in the performance of the measurement.




Wilt u meer weten over deze woning of een bezichtiging plannen? Bel of mail ons of vul het formulier in.
Heeft u een vraag?
Bel ons (070) 365 00 00
of mail info@joostvanvliet.nl


