Kruisbeklaan 39, Vogelwijk
Op een mooie locatie in de Vogelwijk gelegen tussen de Tortel- en Kramsvogellaan, een 7-kamer tussenwoning voorzien van een riante achtertuin (17 meter diep).
Op steenworp afstand van duinen, strand en zee, het Westduinpark en in de directe nabijheid van winkels, scholen (waaronder de International en European School), diverse sportfaciliteiten, openbaar vervoer en uitvalswegen.
De woning dient volledig gemoderniseerd te worden.
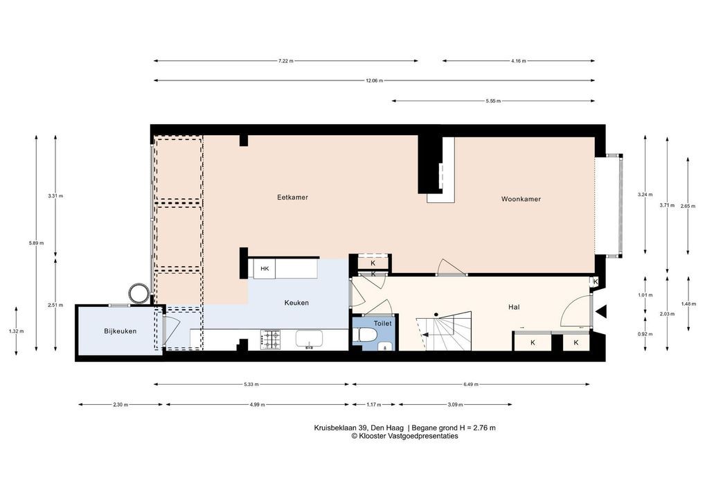
INDELING
Via de ruime voortuin, gelegen op het zuidwesten, bereikt u de entree van de woning. Binnenkomst in de gang met vloertegels, meterkast en een separaat toilet.
Ruime, doorgebroken woon-/eetkamer voorzien van houten vloer, voorerker, open haard, halfopen keuken (ook bereikbaar vanuit de gang), uitbouw met aangebouwde stenen berging.
Via schuifpui toegang tot de riante, zonnige 17 meter diepe achtertuin gelegen op het noordoosten met veel privacy en voorzien van een houten berging.
1e VERDIEPING
Overloop, vaste kast met geiser en aansluiting voor wasmachine- en droger. Voorzijkamer, lichte voorslaapkamer met vaste kasten en originele schuifseparatie naar de achterslaapkamer en deur naar het achterbalkon, gelegen over de gehele breedte van de woning op het noordoosten. Badkamer aan de achterzijde voorzien van ligbad, toilet en 2 wastafels.
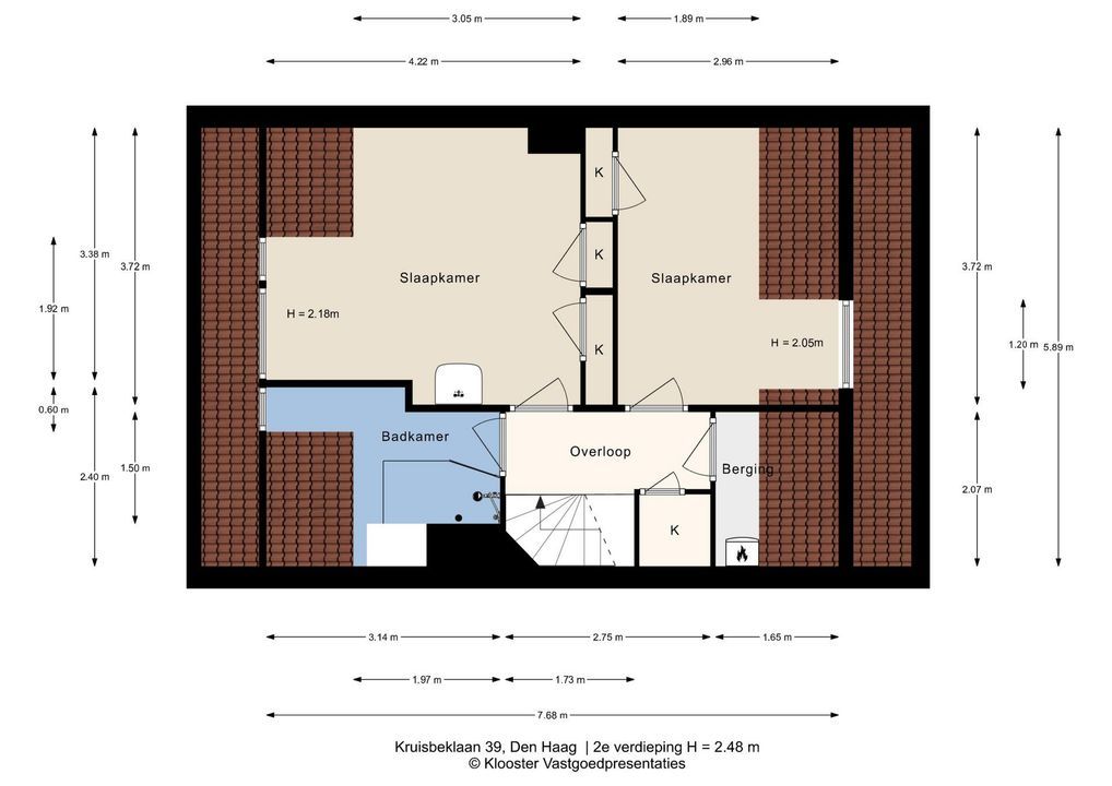
2e VERDIEPING
Overloop, bergruimte met opstelplaats cv-ketel en 2e badkamer met douche. Voorslaapkamer met dakkapel en 1 vaste kast. Achterslaapkamer met dakkapel, een wastafel en 2 vaste kasten.
Voor de afmetingen van de kamers verwijzen wij u naar de plattegronden.
BIJZONDERHEDEN
Gelegen op eeuwigdurende erfpachtgrond. De canon bedraagt € 1.022,46 + € 33,-- beheerkosten per jaar, gebaseerd op een grondwaarde van € 92.950, -- (=afkoopsom) en een canonpercentage van 1.1%. Herziening canonpercentage per 01-01-2026.
Aanvaarding in overleg.
Rioolheffing 2025 € 191,15.
Elektra 6 groepen zonder aardlekschakelaar.
Verwarming middels c.v.-ketel, merk Intergas, bouwjaar 2023.
Warmwatervoorziening middels c.v.-ketel en geiser in eigendom.
De onderhoudssituatie van het sanitair is matig tot slecht en de keuken slecht.
De onderhoudssituatie is binnen matig en buiten redelijk tot goed.
De woning is voorzien van aluminium en houten kozijnen met gedeeltelijk dubbel glas.
Gemeentelijk beschermd stadsgezicht.
Verkoper heeft de woning nooit zelf feitelijk gebruikt, derhalve is de niet-bewonersclausule van toepassing.
Koper is vrij in notariskeuze, echter wel in regio Haaglanden.
De lood- /asbest- en ouderdomsclausules zijn van toepassing.
Bouwjaar 1950.
Woonoppervlakte ca. 165 m².
De inhoud van de woning is ca. 590 m³.
De woning is bouwkundig gekeurd.
Model NVM-koopakte van toepassing.
NABIJ
Winkels aan De Savornin Lohmanplein, Alphons Diepenbrockhof, Goudsbloemlaan en Fahrenheitstraat en op fietsafstand van gezellige Frederik Hendriklaan en Haagse binnenstad.
Bosjes van Pex, duinen, strand en zee, Badplaats Kijkduin, Haven van Scheveningen, restaurants en musea.
Nabij Europese en/of International School of The Hague, basisscholen en diverse sportfaciliteiten zoals tennis, voetbal, hockey, honk-/softbal, paardrijden en handbal.
KADASTRALE INFORMATIE:
Gemeente : Loosduinen
Sectie : I
Nummer : 5813
Grootte : 2 are 30 centiare
De Meetinstructie is gebaseerd op de NEN2580. De Meetinstructie is bedoeld om een meer eenduidige manier van meten toe te passen voor het geven van een indicatie van de gebruiksoppervlakte. De Meetinstructie sluit verschillen in meetuitkomsten niet volledig uit, door bijvoorbeeld interpretatieverschillen, afrondingen of beperkingen bij het uitvoeren van de meting.
Interesse in dit huis? Schakel direct uw eigen NVM-aankoopmakelaar in.
Uw NVM-aankoopmakelaar komt op voor uw belang en bespaart u tijd, geld en zorgen.
Adressen van collega NVM-aankoopmakelaars in Haaglanden vindt u op Funda.
#################################
In a beautiful location in the Vogelwijk, between Tortellaan and Kramsvogellaan, this 7-room terraced house features a spacious back garden (17 meters deep).
A stone's throw from the dunes, beach and sea, Westduinpark, and in the immediate vicinity of shops, schools (including the International and European Schools), various sports facilities, as well as public transport and main roads.
The house requires complete modernization.
LAY-OUT
You reach the entrance of the house through the spacious southwest-facing front garden. Enter into the hallway with tiled floors, the meter cupboard, and a separate toilet.
Spacious broken-through living-/dining room with wooden flooring, a bay window, fireplace, semi-open kitchen (also accessible from the hallway), and an extension with an attached stone shed.
Sliding doors provide access to the spacious, sunny back garden 17 meter deep, facing northeast with plenty of privacy and featuring a wooden shed.
FIRST FLOOR
Landing, built-in cupboard with a geyser and connections for a washing machine and dryer. A side room at the front, a bright front bedroom with built-in cupboards leading to the rear bedroom and a door to the rear balcony, which spans the entire width of the house and faces northeast. A bathroom at the rear features a bathtub, toilet, and two wash basins.
SECOND FLOOR
Landing, storage room with central heating boiler, and second bathroom with shower. Front bedroom with dormer window and fixed cupboard. Rear bedroom with dormer window, a sink, and two fixed cupboards.
- For the dimensions of the rooms please refer to the floor plans.
SPECIAL FEATURES
Eternal lease-hold land. The rent charge is € 1.022,46 + € 33,-- management fee per year, based on a land value of € 92.950,-- (= redemption) and a rent rate of 1.1.%. Review rent rates by 01-01-2026.
Acceptance in agreement.
Sewage charges 2025 € 191,15.
Electricity 6 groups without circuit breaker.
Central heating system, brand Intergas, built in 2023.
Hot water supply by central heating system and geyser (owned).
The condition of the bathroom is moderate to poor and the kitchen is poor.
The condition of the interior is poor and the exterior reasonable/good.
The house has aluminium and wooden window frames with partly double glazing.
Part of the conservation area of the village or town.
Seller has the house itself never actually used, therefore the non-occupancy clause applies.
The buyer is free in his choice of notary, but in the Haaglanden region.
The lead-/asbestos and age clauses will be applied.
Built in 1950.
Living surface approx. 165 m².
The volume of the house is approx. 590 m³.
Technical survey available.
NVM model deed applicable.
NEAR
Shops at De Savornin Lohmanplein, Alphons Diepenbrockhof, Goudsbloemlaan, and Fahrenheitstraat are within cycling distance of the cozy Frederik Hendriklaan and The Hague's city center.
Bosjes van Poot, Bosjes van Pex, dunes, beach and sea, Boulevard of Kijkduin, Harbor of Scheveningen, restaurants and museums.
Public transport (RandstadRail Line 3, Bus 14 and 24 of 23) and main roads through Westland Road and Hubertustunnel.
Close to European- and International School of The Hague, various schools and sport facilities such as tennis, soccer, hockey, horseback riding and handball.
The measurement instruction is based on NEN2580. The measurement instruction is intended to apply a more uniform way of measuring for giving an indication of the use surface. The measurement instruction can not completely close differences in measurement results, for example by differences in interpretation, rounding or limitations in the performance of the measurement.




Wilt u meer weten over deze woning of een bezichtiging plannen? Bel of mail ons of vul het formulier in.
Heeft u een vraag?
Bel ons (070) 365 00 00
of mail info@joostvanvliet.nl


