Hyacinthweg 12, Bloemenbuurt
Prachtig royaal uitgebouwde 3-laags tussenwoning met sfeervolle lichte woon-/eetkamer voorzien van open keuken, 6 slaapkamers, 2 badkamers en 2 zonnige balkons en tuin op het zuidoosten. Woonoppervlakte 175 m2 en 14 zonnepanelen. De verplichting tot canonbetaling is eeuwigdurend afgekocht.
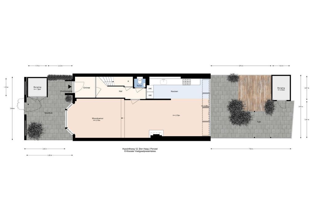
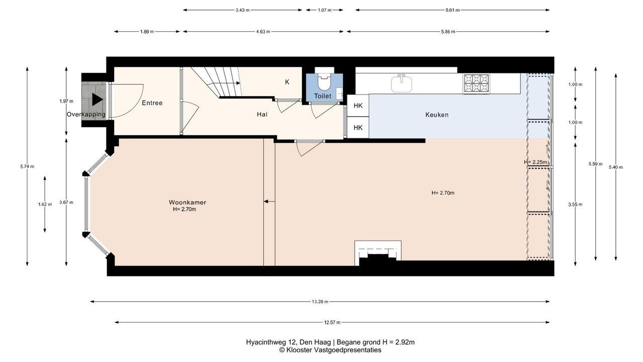
INDELING
Via verzorgde voortuin met houten berging naar entree, hal met tochtdeur, trappenkast met groepenkast, modern vrijhangend toilet met fontein.
Prachtige lichte uitgebouwde woon-/eetkamer voorzien van eikenhouten vloer, openhaard, erker aan voorzijde met bovenlichten van glas in lood en fraaie glazen achterpui voorzien van 2 schuifdeuren naar de zonnige achtertuin op het zuidoosten voorzien van stenen berging. Fraaie open L-vormige keuken voorzien van composiet keukenblad en diverse inbouwapparatuur zoals koel/vries combinatie, 6-pits gasfornuis met oven, afzuigkap, vaatwasser en Quooker.
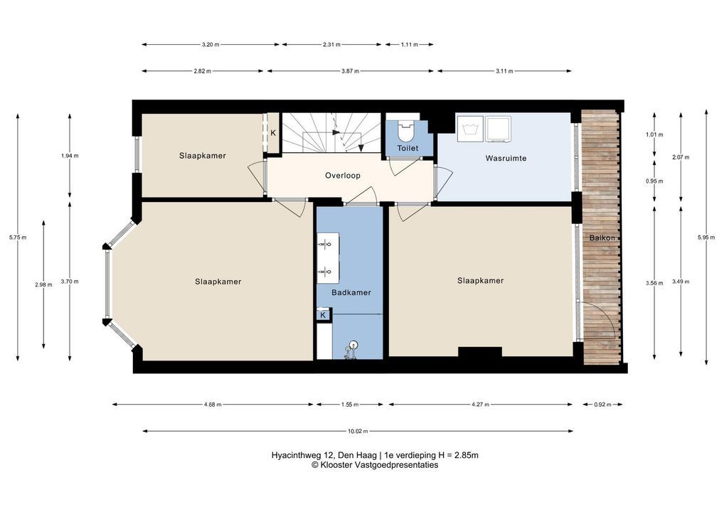
1e VERDIEPING
Overloop, modern vrijhangend toilet, voorzijkamer, riante voorslaapkamer met erker. Tussengelegen badkamer voorzien van inloopdouche, dubbel wastafelmeubel en handdoekenradiator. Achterzijkamer met aansluiting wasmachine. Royale achterslaapkamer met deur naar zonnig balkon over de gehele breedte.
2e VERDIEPING
Overloop met groot dakraam, ruime voorslaapkamer. Voorzijkamer met omvormer voor 14 zonnepanelen. Moderne badkamer met douchecabine, vrijhangend toilet, wastafelmeubel en handdoekenradiator. Ruime achterslaapkamer met vaste kastenwand en toegang naar ruim zonnig balkon over de gehele breedte.
Voor de afmetingen van de kamers verwijzen wij u naar de plattegronden.
BIJZONDERHEDEN
Gelegen op eeuwigdurende erfpachtgrond, waarvan de canon is afgekocht.
Aanvaarding in overleg.
Rioolheffing 2025 € 191,15.
Elektra 14 groepen + 1 groep voor de zonnepanelen met aardlekschakelaar.
Verwarming middels c.v.-combiketel, merk Remeha, bouwjaar 2016.
Warmwatervoorziening middels c.v.-combiketel.
De onderhoudssituatie van het sanitair en de keuken is goed/uitstekend.
De onderhoudssituatie binnen en buiten is goed.
De woning is aan de voorzijde voorzien van houten kozijnen met dubbel glas en aan de achterzijde van kunststof/aluminium kozijnen met dubbel glas.
Koper is vrij in notariskeuze, echter wel in regio Haaglanden.
De lood- /asbest- en ouderdomsclausules zijn van toepassing.
Bouwjaar 1927.
Woonoppervlakte ca. 175 m².
De inhoud van de woning is ca. 620 m³.
De woning is bouwkundig gekeurd.
Model NVM-koopakte van toepassing.
NABIJ
Winkels aan het De Savornin Lohmanplein, Goudsbloemlaan, Fahrenheitstraat, Thomsonlaan en Haagse binnenstad.
Bosjes van Pex, duinen, strand en zee, Badplaats Kijkduin, Haven van Scheveningen, restaurants en musea.
Openbaar vervoer, (RandstadRail lijn 3, bus 23 en 24), uitvalswegen via Hubertustunnel en Westlandroute.
Nabij Europese en/of International School of The Hague, basisscholen en diverse sportfaciliteiten.
KADASTRALE INFORMATIE:
Gemeente : ‘s-Gravenhage
Sectie : AV
Nummer : 162
Grootte : 1 are 53 centiare
De Meetinstructie is gebaseerd op de NEN2580. De Meetinstructie is bedoeld om een meer eenduidige manier van meten toe te passen voor het geven van een indicatie van de gebruiksoppervlakte. De Meetinstructie sluit verschillen in meetuitkomsten niet volledig uit, door bijvoorbeeld interpretatieverschillen, afrondingen of beperkingen bij het uitvoeren van de meting.
Interesse in dit huis? Schakel direct uw eigen NVM-aankoopmakelaar in.
Uw NVM-aankoopmakelaar komt op voor uw belang en bespaart u tijd, geld en zorgen.
Adressen van collega NVM-aankoopmakelaars in Haaglanden vindt u op Funda.
******************************************************
Beautiful, spacious, extended three-story house with a charming, bright living/dining room featuring an open-plan kitchen, 6 bedrooms, two bathrooms, two sunny balconies and a southeast-facing garden. Living area 175 m² and 14 solar panels. The leasehold rent has been bought off.
LAYOUT
Through a well-maintained front garden with a wooden shed, you enter the entrance hall with a door, an underneath staircase cupboard with the fuse box and a modern wall-mounted toilet with a hand basin.
Beautiful, bright, extended living/dining room with oak flooring, a fireplace, a bay window at the front with stained-glass skylights and a beautiful glass rear façade with two sliding doors leading to the sunny southeast-facing back garden with a stone shed. A beautiful open-plan L-shaped kitchen features a composite countertop and various built-in appliances including a fridge/freezer, a 6-burner gas stove with oven, extractor hood, dishwasher and Quooker.
FIRST FLOOR
Landing, modern wall-mounted toilet, front room, spacious front bedroom with a bay window. An adjacent bathroom with a walk-in shower, double vanity and a heated towel rail. A rear room with a washing machine connection. A spacious rear bedroom with a door leading to a sunny balcony spanning the entire width of the house.
SECOND FLOOR
Landing with a large skylight, a spacious front bedroom. A front room with an inverter for 14 solar panels. Modern bathroom with a shower, wall-mounted toilet, vanity and heated towel rail. Spacious rear bedroom with built-in wardrobes and access to a spacious sunny balcony spanning the entire width of the house.
For the dimensions of the rooms please refer to the floor plans.
SPECIAL FEATURES
Eternal lease-hold land which the rent charge has been bought off.
Acceptance in agreement.
Sewage charges 2025 € 191,15.
Electricity 14 groups + 1 for the solarpanels with circuit breaker.
Central heating system, brand Remeha, model 2016.
Hot water supply by central heating system.
The condition of the bathroom and the kitchen is good/excellent.
The condition of the interior and exterior is good.
The house has wooden window frames with double glazing at the front and at the back synthetic/ aluminum window frames with double glazing.
The buyer is free to choose a notary, but must be located in the Haaglanden region.
The lead-/asbestos and age clauses will be applied.
Built in 1927.
Living surface approx. 175 m².
The volume of the house approx. 620 m³.
Technical survey available.
NVM model deed applicable.
NEAR
Shops at the De Savornin Lohmanplein, Goudsbloemlaan, Fahrenheitstraat, Thomsonlaan and Center of The Hague.
Bosjes van Pex, dunes, beach and sea, Boulevard of Kijkduin, Harbor of Scheveningen, restaurants and museums.
Public transport (RandstadRail Line 3, Bus 23 and 24 and main roads through Westland Road and Hubertustunnel.
Close to European- and International School of The Hague, various schools and sport facilities.
The measurement instruction is based on NEN2580. The measurement instruction is intended to apply a more uniform way of measuring for giving an indication of the use surface. The measurement instruction can not completely close differences in measurement results, for example by differences in interpretation, rounding or limitations in the performance of the measurement.




Wilt u meer weten over deze woning of een bezichtiging plannen? Bel of mail ons of vul het formulier in.
Heeft u een vraag?
Bel ons (070) 365 00 00
of mail info@joostvanvliet.nl


