Fahrenheitstraat 491 Valkenboskwartier
Charmant parterre-appartement (ca. 83 m²) met authentieke details, moderne afwerking en royale achtertuin. Het appartement is gelegen op eigen grond en voorzien van energielabel C.
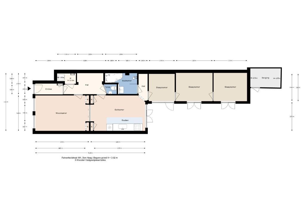
INDELING
Via de eigen entree stapt u binnen in de vestibule met schoenenkast en tochtdeur. De gang is voorzien van een op maat gemaakte kastenwand en biedt toegang tot een apart toilet met fontein en een praktische bergkast onder de trap met wasmachine-aansluiting.
De woonkamer en suite is voorzien van teak houten vloerdelen, glas-in-lood bovenlichten en fraaie schuifseparatie met glas in looddeuren en 4 vaste kasten.
In de achterkamer bevindt zich de moderne open keuken, voorzien van een composiet aanrechtblad, dubbele spoelbak, inductiekookplaat, afzuigkap, inbouw combi-oven en aansluiting voor een vaatwasser.
De keuken kan desgewenst eenvoudig in de oorspronkelijke keukenruimte worden teruggeplaatst; de aansluitingen voor water en elektra zijn nog aanwezig, waardoor terugplaatsing van de keuken gemakkelijk gerealiseerd kan worden.
Via openslaande deuren bereikt u de ruime L-vormige achtertuin (noordoosten), voorzien van een overkapping en een aangebouwde houten berging met elektra.
De hal fungeert tevens als study en opstelplaats cv-installatie. De goed onderhouden tussengelegen badkamer is voorzien van een ligbad, inloopdouche, wastafel, spiegelkast en handdoekradiator.
In de achterbouw bevinden zich drie slaapkamers, die met elkaar verbonden zijn en elk directe toegang tot de tuin bieden, waardoor een praktische en gezellige indeling ontstaat.
Voor de exacte afmetingen van de ruimtes verwijzen wij u naar de plattegronden.
BIJZONDERHEDEN
Het appartement is gelegen op eigen grond.
Aanvaarding in overleg, kan spoedig.
Rioolheffing 2025 € 191,15.
1/3de aandeel in de gemeenschap. Dit aandeel zal worden aangepast bij het opstellen van een nieuwe splitsingsakte, vanwege de gerealiseerde dakopbouw 3e verdieping.
Actieve Vereniging van Eigenaren, bijdrage € 50,-- per maand.
Elektra 8 groepen met aardlekschakelaar.
Verwarming middels c.v.-combiketel, merk Remeha Avanta, bouwjaar 2008.
Warmwatervoorziening middels c.v.-combiketel.
De onderhoudssituatie van het sanitair en de keuken is goed.
De onderhoudssituatie is zowel binnen alsmede buiten goed.
Het appartement is aan de voorzijde voorzien van houten kozijnen met voorzetramen en aan de achterzijde voorzien van houten kozijnen met dubbel glas en HR glas.
Gemeentelijk beschermd stadsgezicht.
Koper is vrij in notariskeuze, echter wel in regio Haaglanden.
De lood- /asbest- en ouderdomsclausules zijn van toepassing.
Bouwjaar 1916.
Woonoppervlakte ca. 83 m².
De inhoud van het appartement is ca. 370 m³.
Het appartement is bouwkundig gekeurd.
Model NVM-koopakte van toepassing.
NABIJ
Winkels aan Fahrenheitstraat, Weimarstraat, Thomsonlaan, Goudsbloemlaan, Reinkenstraat, Prins Hendrikstraat, Frederik Hendriklaan en Haagse binnenstad.
Strand, zee en duinen, parken, Bosjes van Poot en Bosjes van Pex, Haven van Scheveningen, Badplaats Kijkduin en diverse restaurants en musea in omgeving.
Openbaar vervoer en uitvalswegen via Hubertustunnel en Westlandroute.
Diverse sportfaciliteiten zoals tennis, voetbal, hockey, honk-/softbal, paardrijden en handbal.
Tevens in directe omgeving van scholen, Europese, Duitse en Franse school.
KADASTRALE INFORMATIE
Gemeente : ’s-Gravenhage
Sectie : AM
Nummer : 6341
Appartementsindex : -1
De Meetinstructie is gebaseerd op de NEN2580. De Meetinstructie is bedoeld om een meer eenduidige manier van meten toe te passen voor het geven van een indicatie van de gebruiksoppervlakte. De Meetinstructie sluit verschillen in meetuitkomsten niet volledig uit, door bijvoorbeeld interpretatieverschillen,afrondingen of beperkingen bij het uitvoeren van de meting.
Interesse in dit huis? Schakel direct uw eigen NVM-aankoopmakelaar in.
Uw NVM-aankoopmakelaar komt op voor uw belang en bespaart u tijd, geld en zorgen.
Adressen van collega NVM-aankoopmakelaars in Haaglanden vindt u op Funda.
************************************************************************************************
Charming ground floor apartment (approx. 83 m²) with authentic details, modern finishes, and a spacious back garden. The apartment is located on freehold land and has an energy label C.
LAYOUT
Through the private entrance, you enter the vestibule with a shoe cupboard and a door. The hallway features a custom-made wall of cupboards and provides access to a separate toilet with a hand basin and a practical under-stairs storage cupboard with a washing machine connection.
The en-suite living room features teak flooring, stained-glass skylights, a beautiful sliding door with stained-glass doors, and four built-in cupboards. In the back room is the modern open-plan kitchen, equipped with a composite countertop, double sink, induction cooktop, extractor hood, built-in combination oven, and dishwasher connections. The kitchen can easily be reinstalled in its original space if desired; the water and electricity connections are still present, making reinstallation a breeze.
Through French doors, you reach the spacious, northeast-facing L-shaped back garden, featuring a covered patio and an attached wooden shed with electricity.
The hallway also serves as a study and houses the central heating system. The well-maintained bathroom is fitted with a bathtub, walk-in shower, wash basin, mirrored cabinet and heated towel rail.
The rear extension houses three interconnecting bedrooms, each with direct access to the garden, creating a practical and inviting layout.
- For the dimensions of the rooms please refer to the floor plans.
SPECIAL FEATURES
The property is freehold.
Acceptance in agreement, quick delivery of the house possible.
Sewage charges 2025 € 191,15.
1/3th share in the community. This share will be adjusted when drawing up a new division deed, due to the completed roof extension on the 3rd floor.
Active Owners Association, contribution € 50,-- monthly.
Electricity 8 groups with circuit breaker.
Central heating system, brand Remeha Avanta, model 2008.
Hot water supply by central heating system.
The condition of the bathroom and the kitchen is good.
The condition of the interior and the exterior is good.
The apartment has in front wooden window frames with secondary windows and at the back wooden window frames with double and HR glazing.
Part of the conservation area of the village or town.
The lead-/asbestos and age clauses will be applied.
Built in 1916 .
Living surface approx. 83 m².
The volume of the apartment approx. 370 m³.
Technical survey available.
NVM model deed applicable.
NEAR
Shops on Fahrenheitstraat, Weimarstraat, Thomsonlaan, Goudsbloemlaan, Reinkenstraat, Prins Hendrikstraat, Frederik Hendriklaan and The Hague city centre.
Beach, sea and dunes, parks, Bosjes van Poot and Bosjes van Pex, Port of Scheveningen, seaside resort Kijkduin and various restaurants and museums in the area.
Public transport and roads via Hubertustunnel and Westlandroute.
Various sports facilities such as tennis, football, hockey, baseball/softball, horse riding and handball.
Also in the immediate vicinity of schools, European, German and French school.
The measurement instruction is based on NEN2580. The measurement instruction is intended to apply a more uniform way of measuring for giving an indication of the use surface. The measurement instruction can not completely close differences in measurement results, for example by differences in interpretation, rounding or limitations in the performance of the measurement.


Wilt u meer weten over deze woning of een bezichtiging plannen? Bel of mail ons of vul het formulier in.
Heeft u een vraag?
Bel ons (070) 365 00 00
of mail info@joostvanvliet.nl

