Duinslag 23, Kijkduin
In de duinen, nabij badplaats “Nieuw Kijkduin” gelegen, opgedeeld 4-laags hoekwoning van bouwjaar 2021, nu bewoond als dubbele bewoning met 2 keukens, 2 badkamers en 2 voordeuren. De woning is ook ideaal om met 2 stellen te bewonen, of te latten onder een dak, of gescheiden samen te wonen met kind, vriend, vriendin e.d. De woning is volledig verduurzaamd (hoogste duurzaamheidsklasse) en voorzien van o.a. een aardwarmtepomp.
INDELING
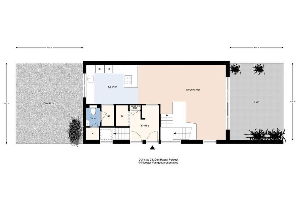
Entree aan de zijgevel, gang met garderobe en zwart metalen schuifdeur naar de lichte woonkamer met ruime dubbeldeurs glazen achterschuifpui.
Open keuken in U-vormige opstelling voorzien van inductiekookplaat (Bora), combi oven, koel-/vrieskast, Quooker, vaatwasser en natuurstenen aanrechtblad.
Toilet met fontein.
Achterpui grenzend aan een vrij gelegen achtertuin.
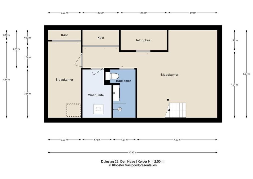
Vanuit de woonkamer open trap naar het souterrain voorzien van inloopkast, geheel betegelde badkamer met toilet, badkamermeubel en inloop(stort)douche.
Installatieruimte met bodemwarmtepomp, boiler (210 liter), kastenwand, slaapkamer met kastenwand.
1e VERDIEPING
Overloop, toilet met fontein, zeer lichte woonkamer met open keuken voorzien van combimagnetron en stoomoven, koelkast en separate vriezer met 5 laden, Quooker, vaatwasser, inductiekookplaat (Bora), vaste kast en zeer hoge schuifpui-vide- naar het terras gelegen op het zuidoosten.
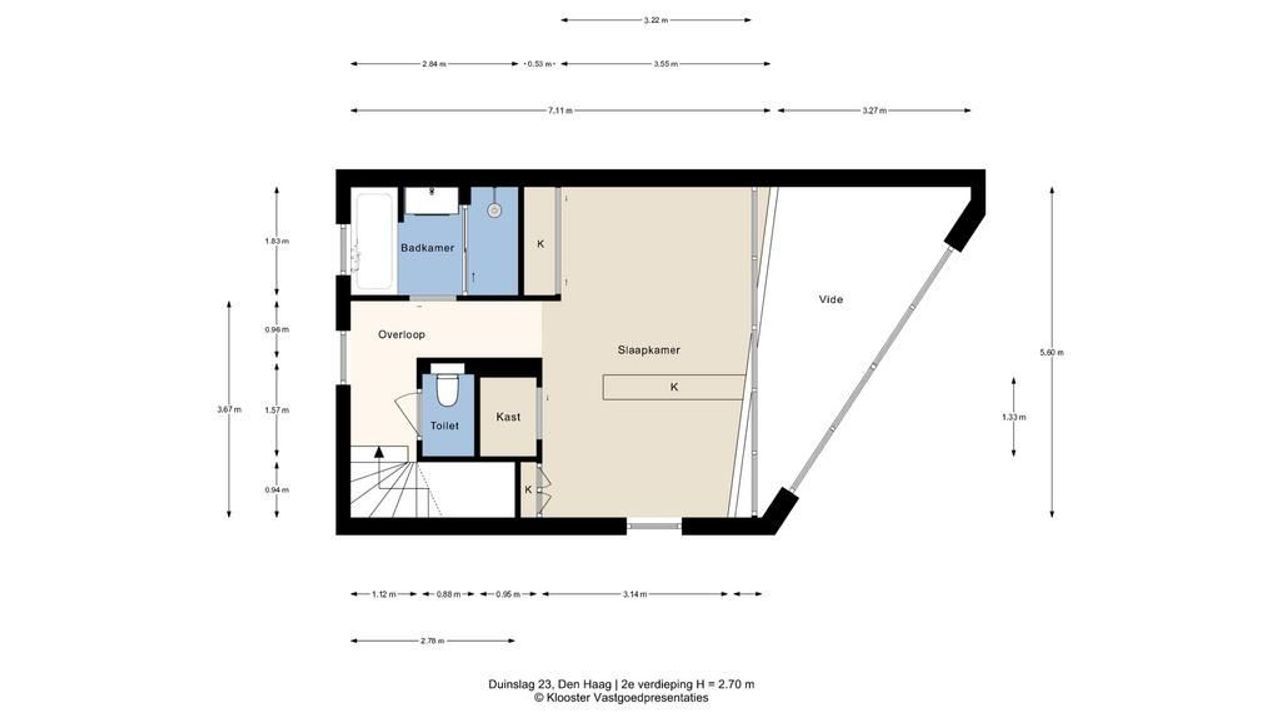
2e VERDIEPING
Overloop, toilet met fontein, badkamer met ligbad, inloop(stort)douche en badkamermeubel.
Slaapkamer op een vide met kastenwanden en grenzend aan een werkkamer.
Voor de afmetingen van de kamers verwijzen wij u naar de plattegronden.
BIJZONDERHEDEN
Gelegen op eeuwigdurende erfpachtgrond. De grondwaarde bedraagt € 210.742,15 (dit is ook de eventuele afkoopsom), de eerstvolgende canonherziening vindt plaats op 1 januari 2030. Canon na overstap AB2024 bedraagt € 4.425,60 per jaar en is gebaseerd op een canonpercentage van 2.1%
De verklaring omzetting naar Algemene Bepalingen 2024 (AB2024) is geaccepteerd door de verkoper.
Aanvaarding in overleg.
Rioolheffing 2025 € 191,15.
Elektra 18 groepen + 2x 2 fases + 6 aardlekschakelaars.
Verwarming met aardwarmtepomp.
De woning is voorzien van een warmte terugwininstallatie (2x).
De woning is voorzien van 22 zonnepanelen.
De gehele woning is voorzien van een PVC vloer met vloerverwarming.
Parkeren op eigen terrein ( 2 auto’s ), voorzien van een laadpaal.
Warmwatervoorziening met warmte pomp en quookers (2x).
De onderhoudssituatie van het sanitair en de keuken is goed tot uitstekend.
De onderhoudssituatie is binnen en buiten goed tot uitstekend.
De gehele woning is voorzien van kunststof kozijnen met triple glas.
Koper is vrij in notariskeuze, echter wel in regio Haaglanden.
Bouwjaar ca. 2021.
Woonoppervlakte ca. 196 m².
De inhoud van de woning is ca. 720 m³.
Model NVM-koopakte van toepassing.
NABIJ
Winkels Beach resort Kijduin, winkelcentrum Loosduinen en het De Savornin Lohmanplein.
Landgoed Ockenburgh, badplaats Kijkduin, duinen, strand en zee, restaurants en musea.
Openbaar vervoer, uitvalswegen via Westlandroute.
Nabij Europese en/of International School of The Hague, basisscholen en diverse sportfaciliteiten.
KADASTRALE INFORMATIE:
Gemeente : Loosduinen
Sectie : H
Nummer : 8257
Grootte : 1 are 22 centiare
De Meetinstructie is gebaseerd op de NEN2580. De Meetinstructie is bedoeld om een meer eenduidige manier van meten toe te passen voor het geven van een indicatie van de gebruiksoppervlakte. De Meetinstructie sluit verschillen in meetuitkomsten niet volledig uit, door bijvoorbeeld interpretatieverschillen, afrondingen of beperkingen bij het uitvoeren van de meting.
Interesse in dit huis? Schakel direct uw eigen NVM-aankoopmakelaar in.
Uw NVM-aankoopmakelaar komt op voor uw belang en bespaart u tijd, geld en zorgen.
Adressen van collega NVM-aankoopmakelaars in Haaglanden vindt u op Funda.
#########################################
In the dunes near the seaside resort of "Nieuw Kijkduin," a divided 4-layer corner house, built in 2021, is currently occupied as a duplex with two kitchens, two bathrooms, and two front doors. The house is also ideal for two couples, sharing a roof, or living separately with a child, boyfriend, girlfriend, or other family member. The house has been fully sustainably renovated (highest sustainability rating) and is equipped with, among other things, a geothermal heat pump.
LAYOUT
Entrance on the side wall, hallway with wardrobe and black steel sliding door to the bright living room with spacious double glass sliding doors at the rear sliding door.
Open kitchen in U-shaped kitchen unit with induction hob (Bora), combi oven, fridge/freezer, Quooker, dishwasher and natural stone worktop.
Toilet with handbasin.
Rear facade is adjacent to a secluded back garden.
From the living room open stairs to the basement with walk-in closet, fully tiled bathroom with toilet, bathroom furniture and walk-in (drain) shower.
Installation room with ground source heat pump, boiler (210 liters), cupboard wall, bedroom with cupboard wall.
1st FLOOR
Landing, toilet with handbasin, very bright living room with open kitchen with combination microwave and steam oven, refrigerator and separate freezer with 5 drawers, Quooker, dishwasher, induction hob (Bora), fixed cupboard and very high sliding doors - vide - to the terrace facing on the southeast.
2ND FLOOR
Landing, toilet with handbasin, bathroom with bath, walk-in (drain) shower and bathroom furniture.
Bedroom on a loft with cupboard walls and adjacent to an office.
- For the dimensions of the rooms please refer to the floor plans.
SPECIAL FEATURES
The land value is € 210,742.15 (= also the redemption price) The next leasehold review will take place on January 1st, 2030. The leasehold after the AB2024 transition is
€ 4,425.60 per year and is based on a leasehold rate of 2.1%.
The declaration of conversion to General Terms and Conditions 2024 (AB2024) has been accepted by the seller.
Acceptance in agreement.
Sewage charges 2025 € 191,15.
Electricity 18 groups + 2 x 2 phases + 6 earth leakage circuit breakers.
The house is equipped with a heat recovery system (2x).
The house is equipped with 22 solar panels.
The entire house has a PVC floor with underfloor heating.
Parking on site, equipped with a charging station.
Heating by geothermal heat pump and quookers (2x).
The condition of the bathroom and the kitchen is good to excellent.
The condition of the interior and the exterior is good to excellent.
The house has synthetic window frames with triple glazing.
The buyer is free in his choice of notary, but in the Haaglanden region.
Built in approx. 2021.
Living surface approx. 196 m².
The volume of the house is approx. 720 m³.
NVM model deed applicable.
NEAR
Shops Beach resort Kijduin, Loosduinen shopping center and De Savornin Lohmanplein.
Ockenburgh estate, seaside resort Kijkduin, dunes, beach and sea, restaurants and museums.
Public transport and main roads via Westland Route.
Near European and/or International School of The Hague, primary schools and various sports facilities.
Close to European- and International School of The Hague, various schools and sport facilities such as tennis, soccer, hockey, horseback riding and handball.
The measurement instruction is based on NEN2580. The measurement instruction is intended to apply a more uniform way of measuring for giving an indication of the use surface. The measurement instruction can not completely close differences in measurement results, for example by differences in interpretation, rounding or limitations in the performance of the measurement.





Wilt u meer weten over deze woning of een bezichtiging plannen? Bel of mail ons of vul het formulier in.
Heeft u een vraag?
Bel ons (070) 365 00 00
of mail info@joostvanvliet.nl