Dibbetsstraat 83, Den Haag

Dibbetsstraat 83 vraagprijs  € 525.000 k.k.


Dibbetsstraat 83, Regentessekwartier

Prachtig en karaktervol 4-kamer parterre appartement met achterbouw voorzien van moderne open keuken, luxe badkamer, 2 ruime slaapkamers en beschutte L-vormige achtertuin.

De woning is gelegen in een rustige straat in het gewilde Regentessekwartier. Het centrum van Den Haag met cultuur, winkels, restaurants, uitgaansgelegenheden en openbaar vervoer liggen op loopafstand.

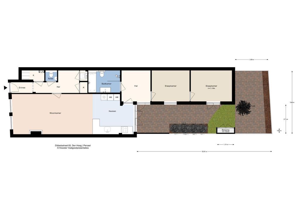
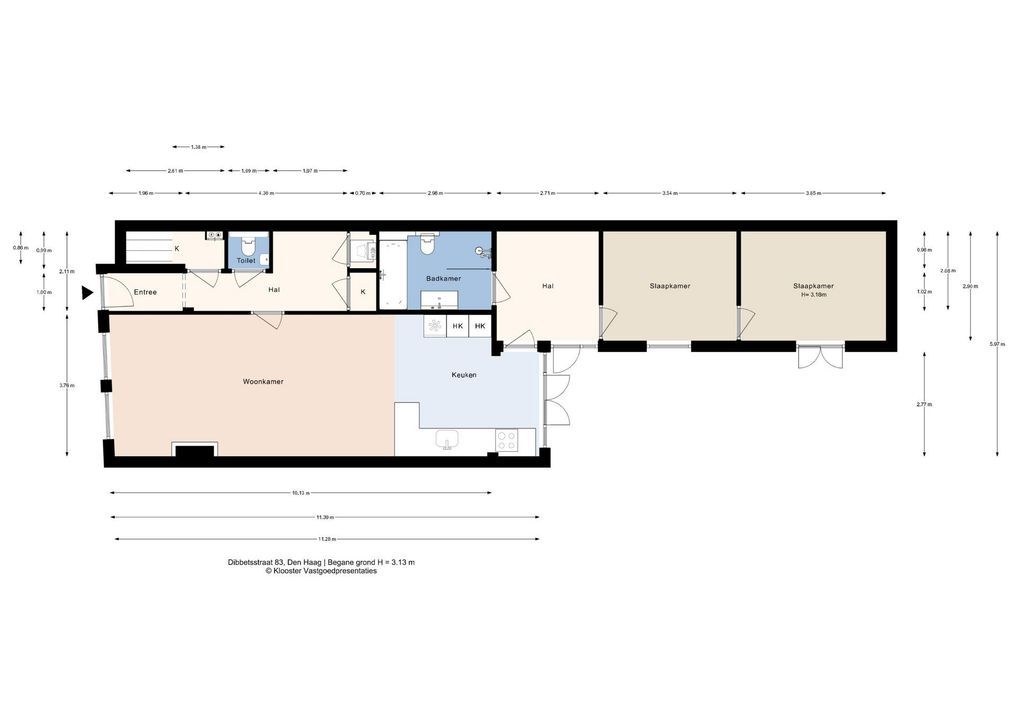
INDELING
Hal met fraaie granito vloer, L-vormige gang met trapkast, modern vrijhangend toilet met fontein en aan het einde van de gang 2 vaste kasten, waarvan de één als opstelplaats voor de c.v.-combiketel en aansluiting wasmachine en droger en de ander als bergkast.

Sfeervolle royale woon-/eetkamer met moderne open keuken voorzien van diverse inbouwapparatuur, zoals keramische kookplaat (merk Bora), vaatwasser, koel/vriescombinatie, hete lucht/stoom oven. Aan achterzijde dubbele deuren naar heerlijke beschutte L-vormige achtertuin ca. 12.65 x 2.37 m deels 5.88 m voorzien van houten berging.

Tevens aan achterzijde van de woonkamer enkele deur naar hal van de achterbouw voorzien van mooie grote kastenwand. Thans in gebruik als walk-in closet. Luxe badkamer voorzien van inloopdouche, groot ligbad, fraai wastafelmeubel, vloerverwarming en handdoeken radiator. Ruime achterslaapkamer. Tweede ruime achterslaapkamer voorzien van dubbele deuren naar tuin.

Voor de afmetingen van de kamers verwijzen wij u naar de plattegronden.

BIJZONDERHEDEN
Het appartement is gelegen op eigen grond.
Aanvaarding in overleg.
Rioolheffing 2025 € 191,15 per jaar.
1/3e aandeel in de gemeenschap.
Actieve Vereniging van Eigenaren, bijdrage € 160,36 per maand.
Elektra 10 groepen met aardlekschakelaar.
Verwarming middels c.v.-combiketel, merk Remeha Tzerra, bouwjaar 2020.
Warmwatervoorziening middels c.v.-combiketel.
De onderhoudssituatie van het sanitair en de keuken is goed tot uitstekend.
De onderhoudssituatie binnen en buiten is goed.
Het appartement is aan de voorzijde voorzien van houten kozijnen met dubbel glas en aan de achterzijde voorzien van houten en kunststof kozijnen met dubbel glas.
Gemeentelijk beschermd stadsgezicht.
Koper is vrij in notariskeuze, echter wel in regio Haaglanden.
De lood- /asbest- en ouderdomsclausules zijn van toepassing.
Bouwjaar ca. 1915.
Woonoppervlakte ca. 93 m².
De inhoud van het appartement is ca. 400 m³.
Model NVM-koopakte van toepassing.

NABIJ
Winkels aan de Reinkenstraat, Fahrenheitstraat, Frederik Hendriklaan, Weimarstraat en Haagse binnenstad. Duinen, strand en zee, Haven van Scheveningen, restaurants en musea.
Openbaar vervoer, RandstadRail lijn 3 en tramlijn 11 en 12, uitvalswegen via Hubertustunnel en Westlandroute. Nabij Europese School of The Hague, basisscholen en diverse sportfaciliteiten.

KADASTRALE INFORMATIE
Gemeente : ’s-Gravenhage
Sectie : Y
Nummer : 2547
Appartementsindex : -1

De Meetinstructie is gebaseerd op de NEN2580. De Meetinstructie is bedoeld om een meer eenduidige manier van meten toe te passen voor het geven van een indicatie van de gebruiksoppervlakte. De Meetinstructie sluit verschillen in meetuitkomsten niet volledig uit, door bijvoorbeeld interpretatieverschillen, afrondingen of beperkingen bij het uitvoeren van de meting.

Interesse in dit huis? Schakel direct uw eigen NVM-aankoopmakelaar in.
Uw NVM-aankoopmakelaar komt op voor uw belang en bespaart u tijd, geld en zorgen.
Adressen van collega NVM-aankoopmakelaars in Haaglanden vindt u op Funda.

**********************************************

Beautiful and characterful 4-room ground floor apartment with a rear extension featuring a modern open-plan kitchen, luxurious bathroom, 2 spacious bedrooms, and a secluded L-shaped back garden.

The house is located in a quiet street in the desirable Regentessekwartier. The Hague city center, with its cultural scene, shops, restaurants, nightlife, and public transport, is within walking distance.

LAYOUT
Hallway with beautiful granite flooring, L-shaped hallway with under-stairs cupboard, modern wall-mounted toilet with hand basin, and at the end of the hallway, 2 built-in cupboards, one of which houses the central heating system and connections for the washing machine and dryer, and the other serves as storage.

Attractive, spacious living/dining room with a modern open-plan kitchen equipped with various built-in appliances, including a Bora ceramic cooktop, dishwasher, fridge/freezer, and convection/steam oven. Double doors at the rear lead to a lovely, secluded L-shaped back garden approx. 12.65 x 2.73 m partly 5.88 m with a wooden shed.

Also at the rear of the livingroom, a single door leads to the hallway of the rear extension, which features a beautiful, large wall of cupboards. At the moment used as a walk-in wardrobe. Luxurious bathroom with a walk-in shower, large bathtub, beautiful vanity, underfloor heating, and a towel radiator. Spacious rear bedroom. Second spacious rear bedroom with double doors leading to the garden.

SPECIAL FEATURES
The property is freehold.
Acceptance in agreement.
Sewerage charges 2025 € 191,15 per year.
1/3rd share in the community.
Active Owners Association, contribution € 160.36 each month.
Electricity 10 groups with circuit breaker.
Central heating system, brand Remeha Tzerra, built in 2020.
Hot water supply by central heating system.
The condition of the bathroom and the kitchen is good/excellent.
The condition of the interior and exterior is good.
The apartment has in front wooden window frames with double glazing and at the back wooden and synthetic window frames with double glazing.
Part of the conservation area of the town. (beschermd stadsgezicht).
The buyer is free to choose a notary, but must be located in the Haaglanden region.
The lead-/asbestos and age clauses will be applied.
Built in approx. 1915.
Living surface approx. 93 m².
The volume of the apartment approx. 400 m³.
NVM model deed applicable.

NEAR
Shops on Reinkenstraat, Thomsonlaan, Fahrenheitstraat, Weimarstraat and
Center of The Hague.
Dunes, beach and sea, Harbor of Scheveningen, restaurants and museums.
Public transport (RandstadRail Line 3, Line 11 en 12) and main roads through Westland Road and Hubertustunnel.
Close to European School of The Hague, various schools and sport facilities.

The measurement instruction is based on NEN2580. The measurement instruction is intended to apply a more uniform way of measuring for giving an indication of the use surface. The measurement instruction can not completely close differences in measurement results, for example by differences in interpretation, rounding or limitations in the performance of the measurement.

Locatie

[ { "address": "Dibbetsstraat 83", "zipCode": "2518 PP", "city": "Den Haag", "lat": 52.0777624, "lng": 4.2918727, "heading": 0, "pitch": 0 } ]

Kenmerken

Vraagprijs
€ 525.000 k.k.
Status
Beschikbaar
Oplevering
In overleg

Bouw

Soort appartement
Benedenwoning, Appartement
Woonlaag
1
Soort bouw
Bestaande bouw
Bouwjaar
1915
Onderhoud binnen
Goed
Onderhoud buiten
Goed
Bijzonderheden
Beschermd stads- of dorpgezicht

Oppervlakten en inhoud

Woonoppervlakte
93m²
Inhoud
400m³

Indeling

Aantal kamers
4
Aantal slaapkamers
2
Aantal badkamers
1
Aantal verdiepingen
1

Energie

Energielabel
B
Isolatie
Dubbel glas
Warm water
C.V.-ketel
Verwarming
C.V.-ketel
Ketel
Remeha Tzerra (2020, Combi-ketel, Eigendom)

Buitenruimte

Ligging
Aan rustige weg, In woonwijk
Tuin
Achtertuin
Achtertuin
Noordoost, 35m², 273×1265cm
Schuur
Vrijstaand hout

Garage

Plattegronden

Bekijk verloop van de zon

Uw browser ondersteunt geen WebGL

Afspraak of contact

Wilt u meer weten over deze woning of een bezichtiging plannen? Bel of mail ons of vul het formulier in.


Uw bericht is naar ons verzonden. Wij nemen zo snel mogelijk contact met u op.

Er is iets mis gegaan met het versturen van het formulier.
Controleer of u alle velden (goed) heeft ingevoerd en probeer het nog een keer.

recaptcha
reCAPTCHA
PrivacyTerms

Heeft u een vraag?
Bel ons (070) 365 00 00
of mail info@joostvanvliet.nl

Vergelijkbare woningen