De Savornin Lohmanlaan 471, Vogelwijk
Op loopafstand van de duinen, strand en zee gelegen, een prachtig uitgebouwd tussenherenhuis met een voor- en achtertuin voorzien van een achterom. De woning heeft een goede indeling voorzien van een royale lichte woonkamer met een halfopen keuken, 5 slaapkamers en 2 badkamers. De woning is voorzien van 9 zonnepanelen en is gelegen op EIGEN GROND.
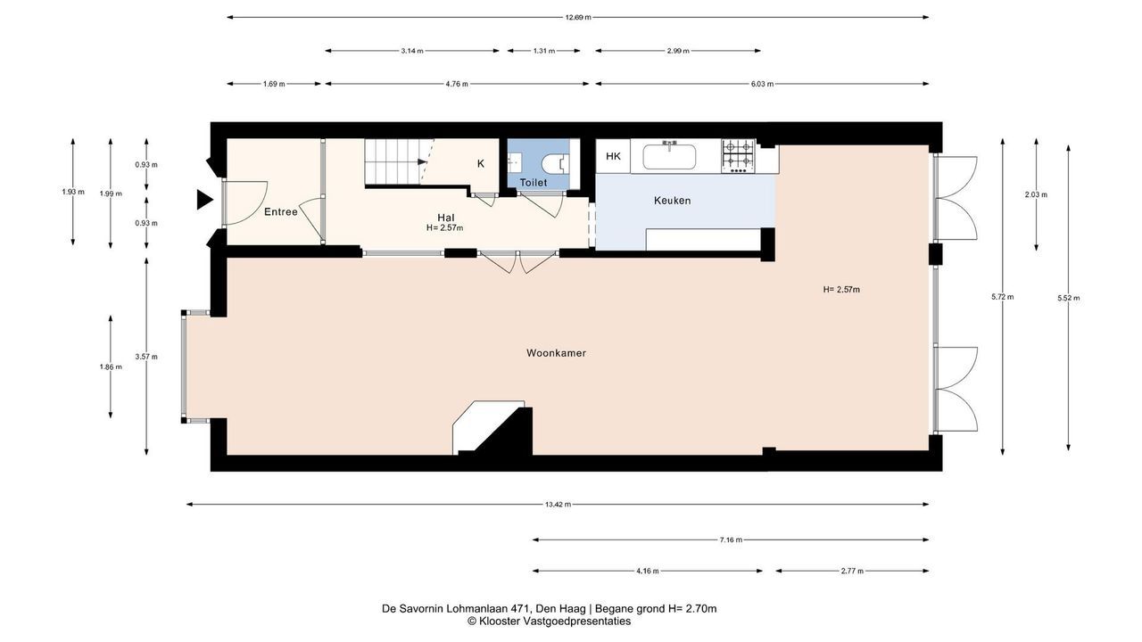
INDELING
Via de verzorgde voortuin de entree van de woning met vestibule en tochtdeur. Gang met vaste trappenkast en moderne vrij hangend toilet en fontein. Via dubbele glazen deuren toegang naar de royale sfeervolle woon-/eetkamer voorzien van openhaard en half open keuken voorzien van diverse apparatuur, zoals 4-pitsgasfornuis, afzuigkap, oven, magnetron, vaatwasser, 1,5 spoelbak en, koel/vriescombinatie.
Via openslaande deuren toegang naar de heerlijke zonnige achtertuin met stenen berging en achterom.
1e VERDIEPING
Overloop voorzien van vaste kast en een separaat modern toilet. Ruime voorslaapkamer voorzien van een zonnescherm. Voorzij slaapkamer, badkamer voorzien van groot ligbad, dubbele wastafelmeubel en inloopdouche. Ruime achterslaapkamer voorzien van kastenwand met spiegeldeuren en schuifpui naar het balkon.
2e VERDIEPING
Overloop met de aansluiting voor de wasmachine- en droger alsmede de opstelplaats van de cv-ketel en de boiler. Tweede badkamer voorzien van douche, wastafelmeubel en mechanische ventilatie.
Voorslaapkamer met groot dakkapel en vaste kast. Achter slaapkamer met grote dakkapel en twee ingebouwde kasten. Tevens een luik ter plaatse van de overloop met toegang naar de vliering met bergruimte.
Voor de afmetingen van de kamers verwijzen wij u naar de plattegronden.
BIJZONDERHEDEN
De woning is gelegen op eigen grond.
Aanvaarding in overleg.
Rioolheffing 2026 € 195,40.
Elektra 13 groepen met aardlekschakelaar.
Verwarming middels c.v.-combiketel, merk Vaillant, bouwjaar 2009.
Warmwatervoorziening middels c.v.-combiketel en elektrisch boiler in eigendom.
De woning is voorzien van glasvezel aansluiting.
De onderhoudssituatie van het sanitair en de keuken is goed.
De onderhoudssituatie is zowel binnen als buiten goed.
De woning is voorzien van kunststof kozijnen met dubbel glas.
Gemeentelijk beschermd stadsgezicht
Geen olietank. KIWA-certificaat aanwezig.
Koper is vrij in notariskeuze, echter wel in regio Haaglanden.
De lood- /asbest- en ouderdomsclausules zijn van toepassing.
Bouwjaar 1948.
Woonoppervlakte ca. 165 m².
De inhoud van de woning is ca. 590 m³.
De woning is bouwkundig gekeurd.
Model NVM-koopakte van toepassing.
NABIJ
Winkels aan het De Savornin Lohmanplein en de Goudsbloemlaan. Ook op fietsafstand van Frederik Hendriklaan en de Haagse binnenstad.
Bosjes van Pex, duinen, strand en zee, Badplaats Kijkduin, Haven van Scheveningen, restaurants en musea.
Openbaar vervoer om de hoek (buslijn 24) met directe verbinding naar het centrum van Den Haag alsmede het centraal station en RandstadRail lijn 3. Uitvalswegen via Hubertustunnel en Westlandroute.
Nabij Europese en/of International School of The Hague, basisscholen en diverse sportfaciliteiten.
KADASTRALE INFORMATIE:
Gemeente : Loosduinen
Sectie : I
Nummer : 5780
Grootte : 2 are 10 centiare
De Meetinstructie is gebaseerd op de NEN2580. De Meetinstructie is bedoeld om een meer eenduidige manier van meten toe te passen voor het geven van een indicatie van de gebruiksoppervlakte. De Meetinstructie sluit verschillen in meetuitkomsten niet volledig uit, door bijvoorbeeld interpretatieverschillen, afrondingen of beperkingen bij het uitvoeren van de meting.
Interesse in dit huis? Schakel direct uw eigen NVM-aankoopmakelaar in.
Uw NVM-aankoopmakelaar komt op voor uw belang en bespaart u tijd, geld en zorgen.
Adressen van collega NVM-aankoopmakelaars in Haaglanden vindt u op Funda.
#############################
Located within walking distance of the dunes, beach, and sea, a beautifully extended terraced townhouse with a front and back garden featuring a rear entrance. The property has a good layout, featuring a spacious, bright living room with a semi-open kitchen, 5 bedrooms, and 2 bathrooms. The house is equipped with 9 solar panels and is situated on FREEHOLD LAND.
LAYOUT
Through the well-maintained front garden, the entrance to the home features a vestibule and draft door. The hallway includes a built-in stair cupboard and a modern wall-mounted toilet and hand basin. Double glass doors provide access to the spacious, atmospheric living-/dining room, which features a fireplace, and a semi-open kitchen equipped with various appliances, such as a 4-burner gas hob, extractor hood, oven, microwave, dishwasher, 1.5 sink, and fridge-freezer. French doors provide access to the lovely sunny back garden with a stone shed and rear access.
FIRST FLOOR
Landing with built-in cupboard and a separate modern toilet. Spacious front bedroom equipped with an awning. Front bedroom, bathroom with large bathtub, double vanity unit, and walk-in shower. Spacious rear bedroom with wall unit with mirrored doors and sliding doors to the balcony.
SECOND FLOOR
Landing with connections for the washing machine and dryer, as well as the location for the central heating boiler and water heater. Second bathroom equipped with a shower, vanity unit, and mechanical ventilation.
Front bedroom with a large dormer window and built-in wardrobe. Rear bedroom with a large dormer window and two built-in wardrobes. Also, a hatch on the landing provides access to the attic with storage space.
- For the dimensions of the rooms please refer to the floor plans.
SPECIAL FEATURES
The property is freehold.
Acceptance in agreement.
Sewage charges 2026 € 195,40.
Electricity 13 groups with circuit breaker.
Central heating system, brand Vaillant, model 2009.
Hot water supply by central heating system and electric boiler (owned).
The house is equipped with a fiber optic connection.
The condition of the bathroom and the kitchen is good.
The condition of the interior and exterior is good.
The house has synthetic window frames with double lazing.
Part of the conservation area of the village or town.
The buyer is free to choose a notary but must be in the Haaglanden region.
The lead-/asbestos and age clauses will be applied.
Built in 1948.
Living surface approx. 165 m².
The volume of the house approx. 590 m³.
Technical survey available.
NVM model deed applicable.
NEAR
Shops on De Savornin Lohmanplein and Goudsbloemlaan. Also within cycling distance of Frederik Hendriklaan and The Hague city centre.
Bosjes van Pex, dunes, beach and sea, Kijkduin seaside resort, Scheveningen Harbour, restaurants and museums.
Public transport around the corner (bus line 24) with a direct connection to the centre of The Hague as well as the central station and RandstadRail line 3. Access to highway via the Hubertus Tunnel and Westland Route.
Near the European and/or International School of The Hague, primary schools and various sports facilities.
The measurement instruction is based on NEN2580. The measurement instruction is intended to apply a more uniform way of measuring for giving an indication of the use surface. The measurement instruction can not completely close differences in measurement results, for example by differences in interpretation, rounding or limitations in the performance of the measurement.





Wilt u meer weten over deze woning of een bezichtiging plannen? Bel of mail ons of vul het formulier in.
Heeft u een vraag?
Bel ons (070) 365 00 00
of mail info@joostvanvliet.nl
