Cypresstraat 36, Bomenbuurt
Sfeervol, speels ingedeeld en zo te betrekken parterre appartement (ca. 109 m²) voorzien van ruime woon-/eetkamer met vrije doorkijk naar de Lindestraat, een luxe open keuken, moderne badkamer, voorzijkamer, een fraaie achteruitbouw (gerealiseerd in 2012) met 2 slaapkamers, interne berging, patio en een riante zonnig gelegen achtertuin. Eigen grond.
Centraal gelegen in de gewilde Bomenbuurt om de hoek van winkels en horeca van de Fahrenheitstraat en Frederik Hendriklaan, openbaar vervoer, diverse uitvalswegen, scholen (o.a. Europese school) en sportfaciliteiten, Bosjes van Poot, Haven van Scheveningen, strand, zee en duinen.
INDELING:
Via verzorgd gesloten portiek met videofoonsysteem, entree appartement, lange gang voorzien van fraaie eikenhouten vloer geheel doorgelegd in de woning, voorzijkamer met meterkast, separaat ruim toilet, een ruime hal met toegang tot de moderne geheel betegelde badkamer voorzien van inloopdouche, wastafelmeubel, wasmachineaansluiting en opstelplaats cv-ketel.
Sfeervolle, lichte en speels ingerichte woon/eetkamer, vanuit de voorkamer een vrije doorkijk naar de Lindestraat en via openslaande deuren met roedeverdeling en 2 vaste kasten toegang tot de achterkamer met tuingerichte eetkamer voorzien van luxe open keuken voorzien van composiet aanrechtblad, dubbele 1¼ spoelbak met close-in boiler, inductiekookplaat, afzuigkap, combi-oven, koel/vriescombinatie (3-laden) en vaatwasser.
Vanuit de achterkamer via openslaande deuren en 2 deuren toegang tot de riante, verzorgde, zonnige en L-vormige achtertuin, gelegen op het zuidoosten/westen, met vrijstaande houten berging.
Vanuit de achterkamer toegang tot de fraaie uitbouw (gerealiseerd in 2012 met een geïsoleerd sedumdak), gang, patio met elektra-aansluiting, ruime ouderslaapkamer met een interne bergruimte (walk-in closet) en openslaande deuren naar de tuin, achterslaapkamer met tevens deur naar de tuin.
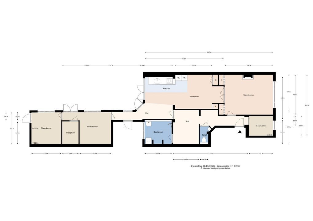
Voor de afmetingen van de kamers verwijzen wij u naar de plattegronden.
BIJZONDERHEDEN
Het appartement is gelegen op eigen grond.
Aanvaarding in overleg.
Rioolheffing 2025 € 191,15 per jaar.
2/13e aandeel in de gemeenschap.
Actieve Vereniging van Eigenaren, bijdrage € 107,12 per maand.
Elektra 8 groepen met aardlekschakelaar.
Verwarming middels c.v.-combiketel, merk Intergas, bouwjaar 2019.
Warmwatervoorziening middels c.v.-combiketel en elektrische boiler (eigendom).
De onderhoudssituatie van het sanitair en de keuken is uitstekend.
De onderhoudssituatie binnen is goed/uitstekend en buiten goed.
Het appartement is aan de voorzijde voorzien van kunststof (met houtnerf) kozijnen met HR ++ glas (2024) en aan de achterzijde voorzien van houten kozijnen met HR+ glas.
Koper is vrij in notariskeuze, echter wel in regio Haaglanden.
De lood- /asbest- en ouderdomsclausules zijn van toepassing.
Bouwjaar 1924.
Woonoppervlakte ca. 109 m².
De inhoud van het appartement is ca. 400 m³.
Model NVM-koopakte van toepassing.
NABIJ
Winkels aan Fahrenheitstraat, Thomsonlaan, Goudsbloemlaan, Frederik Hendriklaan, Weimarstraat, Reinkenstraat, Centrum en Haagse binnenstad.
Bosjes van Poot, duinen, strand en zee, Haven van Scheveningen, restaurants en musea.
Openbaar vervoer, (RandstadRail lijn 3) en uitvalswegen via Hubertustunnel en Westlandroute.
Nabij Europese en/of International School of The Hague, basisscholen en diverse sportfaciliteiten..
KADASTRALE INFORMATIE
Gemeente : ’s-Gravenhage
Sectie : W
Nummer : 3885
Appartementsindex : -1
De Meetinstructie is gebaseerd op de NEN2580. De Meetinstructie is bedoeld om een meer eenduidige manier van meten toe te passen voor het geven van een indicatie van de gebruiksoppervlakte. De Meetinstructie sluit verschillen in meetuitkomsten niet volledig uit, door bijvoorbeeld interpretatieverschillen,afrondingen of beperkingen bij het uitvoeren van de meting.
Interesse in dit huis? Schakel direct uw eigen NVM-aankoopmakelaar in.
Uw NVM-aankoopmakelaar komt op voor uw belang en bespaart u tijd, geld en zorgen.
Adressen van collega NVM-aankoopmakelaars in Haaglanden vindt u op Funda.
****************************************************************************************
Charming, playfully designed, and move-in ready ground floor apartment (approx. 109 m²) featuring a spacious living/dining room with unobstructed views of Lindestraat, a luxurious open-plan kitchen, modern bathroom, a side room, a beautiful rear extension (completed in 2012) with two bedrooms, internal storage, a patio, and a spacious, sunny back garden. The property is freehold.
Centrally located in the desirable Bomenbuurt neighborhood, just around the corner from the shops and restaurants of Fahrenheitstraat and Frederik Hendriklaan, public transport, various arterial roads, schools (including the European School), and sports facilities, Bosjes van Poot, Scheveningen Harbor, the beach, sea, and dunes.
LAYOUT
Through a well-maintained enclosed porch with a video intercom system you enter the apartment through a long hallway with beautiful oak flooring throughout the house, a front room with the meter cupboard, a separate spacious toilet and a spacious hallway leading to the modern, fully tiled bathroom with a walk-in shower, vanity unit, washing machine connection and central heating boiler.
Attractive, bright and playfully furnished living/dining room. The front room offers unobstructed views of Lindestraat, and through French doors with glazing bars and two built-in cupboards, you access the rear room, which features a garden-facing dining area and a luxurious open-plan kitchen with composite countertops, a double 1¼ sink with a close-in boiler, an induction cooktop, extractor hood, combination oven, fridge/freezer (3 drawers) and a dishwasher.
From the rear room through French doors and two other doors, you access the spacious, well-maintained, sunny, L-shaped back garden facing southeast/west with a detached wooden shed.
From the rear room access to the beautiful extension (completed in 2012 with an insulated sedum roof), hallway, patio with electricity connection, spacious master bedroom with an internal storage space (walk-in closet) and French doors to the garden, rear bedroom also with a door to the garden.
For the dimensions of the rooms please refer to the floor plans.
SPECIAL FEATURES
The property is freehold.
Acceptance in agreement.
Sewerage charges 2025 € 191,15 per year.
2/13th share in the community.
Active Owners Association, contribution € 107.12 each month.
Electricity 8 groups with circuit breaker.
Central heating system, brand Intergas, built in 2019.
Hot water supply by central heating system and electric water heater (owned).
The condition of the bathroom and the kitchen is excellent.
The condition of the interior is good/excellent and the exterior good.
The apartment has at the front synthetic window frames (with wood grain) and HR++ window frames (2024) and at the rear wooden window frames with HR+ glazing.
The buyer is free to choose a notary, but must be located in the Haaglanden region.
The lead-/asbestos and age clauses will be applied.
Built in 1924.
Living surface approx. 109 m².
The volume of the apartment approx. 400 m³.
NVM model deed applicable.
NEAR
Shops on Fahrenheitstraat, Thomsonlaan, Goudsbloemlaan,
Frederik Hendriklaan, Weimarstraat, Reinkenstraat and Center of The Hague.
Bosjes van Poot, dunes, beach and sea, Harbor of Scheveningen, restaurants and museums.
Public transport (RandstadRail Line 3) and main roads through Westland Road and Hubertustunnel.
Close to European- and International School of The Hague, various schools and sport facilities.
The measurement instruction is based on NEN2580. The measurement instruction is intended to apply a more uniform way of measuring for giving an indication of the use surface. The measurement instruction can not completely close differences in measurement results, for example by differences in interpretation, rounding or limitations in the performance of the measurement.


Wilt u meer weten over deze woning of een bezichtiging plannen? Bel of mail ons of vul het formulier in.
Heeft u een vraag?
Bel ons (070) 365 00 00
of mail info@joostvanvliet.nl


