Adriana van Roonlaan 122, Den Haag
‘’De Riethoven – Exclusief wonen in het groen’’
Werkelijk schitterende rietgedekte en luxueus afgewerkte 2-onder-1 kapwoning (ca. 185 m²) voorzien van ruime en uitgebouwde woon/eetkamer met woonkeuken aan de voorzijde, 3 slaapkamers en ruime badkamer op de 1e verdieping, riante 2e (kap)verdieping (mogelijkheid tot creëren van 2 slaapkamers en een 2e badkamer) en een vliering.
Gelegen op een kaveloppervlakte van ca. 400m2 met de gehele dag zon met een eigen oprit met elektrisch oplaadpunt. De woning is gebouwd in 2018, volledig verduurzaamd met vloerverwarming op iedere verdieping, een hybride pomp en HR++- beglazing.
Centraal gelegen in de kindvriendelijke nieuwbouwwijk ‘’Villapark Uithof’’ aan de zuidwestelijke rand van Den Haag, nabij diverse uitvalswegen en op loop- en fietsafstand van diverse scholen (o.a. International School), winkels, openbaar vervoer, recreatiegebied De Uithof en Madestein, centrum van Wateringen en het strand van Kijkduin.
INDELING
Via ruime voortuin, entree van de woning, hal voorzien van fraaie PVC-vloer in visgraatmotief doorgelegd op de begane grond, meterkast en ruim modern toilet met fontein.
Via dubbele deuren toegang tot de sfeervolle, lichte en uitgebouwde woon-/eetkamer met luxe open keuken aan de voorzijde met een kookeiland voorzien van een inductiekookplaat met geïntregeerde afzuiging, oven/stoomoven, wijnklimaatkast, Quooker, koel/vriescombinatie, vaatwasser en veel opbergruimte.
Via openslaande deuren aan de voorzijde toegang tot de riante voortuin, gelegen op het zuiden, met vrij uitzicht op het groen.
De woonkamer is voorzien van een elektrische gashaard centraal in het zitgedeelte, zijramen, is uitgebouwd en is voorzien van een fraaie harmonica pui naar de achtertuin.
De riante, fraai aangelegde en zonnig gelegen achter-/zijtuin is voorzien van meerdere terrassen en een houten berging met elektra. Door de ligging van de tuin is er de gehele dag zon.
1e VERDIEPING
Overloop met zijraam, separaat modern toilet met fontein. Ruime en lichte voorslaapkamer met vrij uitzicht. Tussengelegen moderne fraai betegelde badkamer voorzien van een ligbad, inloop(regen)douche, 2 wastafels met meubel en inbouwkranen. Twee slaapkamers aan de achterzijde.
2e VERDIEPING
Ruime kapverdieping, op dit moment ingedeeld als 1 open ruimte, voorzien van 3 Velux dakramen, aansluitingen voor de wasmachine- en droger en opstelplaats warmtepomp. De verdieping kan worden opgedeeld in 2 slaapkamers en een 2e badkamer.
Via de vlizotrap toegang naar de riante vliering.
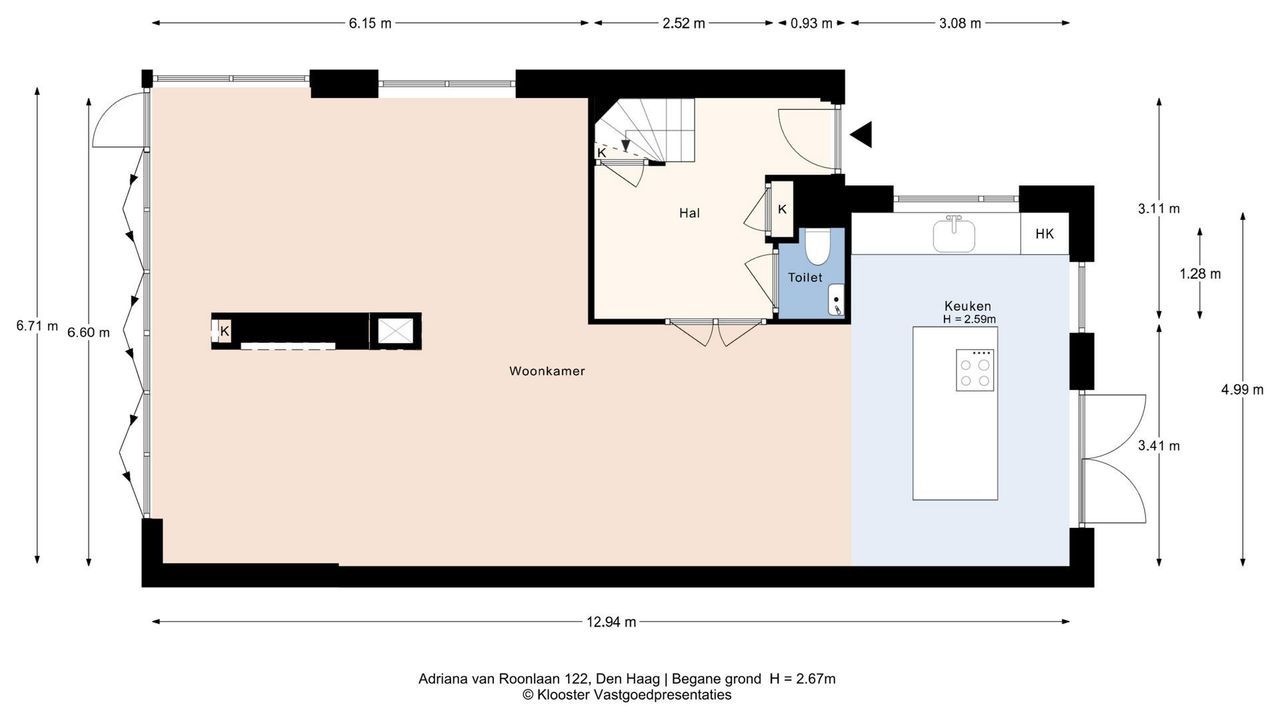
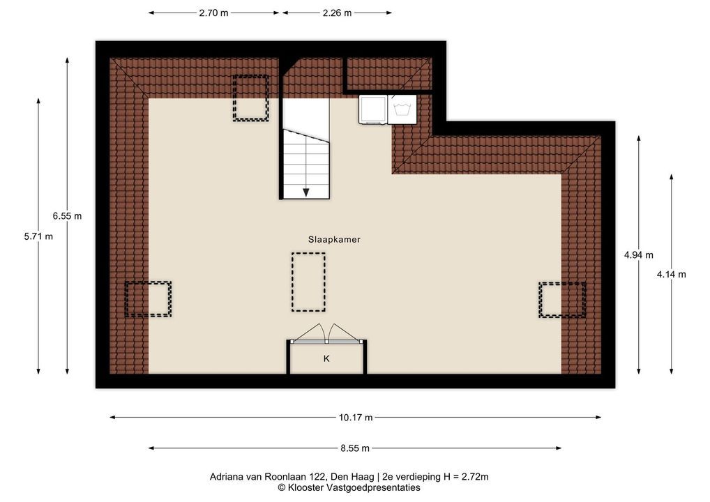
Voor de afmetingen van de kamers verwijzen wij u naar de plattegronden.
BIJZONDERHEDEN
Gelegen op eeuwigdurende erfpachtgrond. De canon bedraagt € 1.637,01 per jaar, gebaseerd op een grondwaarde van € 181.890,-- (=afkoopsom) en een canonpercentage van 0.9%. Herziening canonpercentage per 1 juli 2027.
Aanvaarding in overleg.
Rioolheffing 2026 € 195,40.
Elektra 8 groepen met aardlekschakelaar.
Verwarming middels warmtepomp.
Warmwatervoorziening middels elektrische boiler.
De onderhoudssituatie van het sanitair en de keuken is uitstekend.
De onderhoudssituatie binnen en buiten is uitstekend.
De gehele woning is voorzien van vloerverwarming.
Het woning is voorzien van houten kozijnen met HR++ glas.
De woning is aan de achterzijde voorzien van een prachtige harmonica pui.
Koper is vrij in notariskeuze, echter wel in regio Haaglanden.
Bouwjaar ca. 2018.
Woonoppervlakte ca. 185 m².
De inhoud van de woning is ca. 665 m³.
Model NVM-koopakte van toepassing.
NABIJ
Gelegen aan de rand van natuur- en recreatiegebied "De Uithof" biedt deze locatie volop ruimte voor wandelen, fietsen en sporten in de buitenlucht. Stap de deur uit en sta binnen enkele minuten in het groen, of fiets in 25 minuten naar het strand van Kijkduin. Ondanks de rustige ligging zijn alle voorzieningen dichtbij. Supermarkten, scholen en sportfaciliteiten liggen op fietsafstand en The International School of The Hague is goed bereikbaar. Ook de gezellige winkelstraat "De Fred" en het centrum van Den Haag en Delft zijn snel te bereiken. Met de N211, A4, A13 en A20 in de buurt is er een uitstekende verbinding naar andere steden en regio’s. Een ideale locatie voor wie comfortabel en ruim wil wonen met alle dagelijkse gemakken binnen handbereik.
KADASTRALE INFORMATIE:
Gemeente : Loosduinen
Sectie : L
Nummer : 1153
Grootte : 3 are 97 centiare
De Meetinstructie is gebaseerd op de NEN2580. De Meetinstructie is bedoeld om een meer eenduidige manier van meten toe te passen voor het geven van een indicatie van de gebruiksoppervlakte. De Meetinstructie sluit verschillen in meetuitkomsten niet volledig uit, door bijvoorbeeld interpretatieverschillen, afrondingen of beperkingen bij het uitvoeren van de meting.
Interesse in dit huis? Schakel direct uw eigen NVM-aankoopmakelaar in.
Uw NVM-aankoopmakelaar komt op voor uw belang en bespaart u tijd, geld en zorgen.
Adressen van collega NVM-aankoopmakelaars in Haaglanden vindt u op Funda.
####################################################################################
"De Riethoven – Exclusive living surrounded by nature"
Truly stunning, thatched, and luxuriously finished semi-detached house (approx. 185 m²) featuring a spacious and extended living/dining room with a kitchen/diner at the front, three bedrooms and a spacious bathroom on the first floor, a generous second floor (with the possibility of creating two more bedrooms and a second bathroom), and an attic.
Situated on a plot of approximately 400m2 with sun all day long with a private driveway and an electric charging station. Built in 2018, the house is fully sustainable, with underfloor heating on every floor, a hybrid pump, and HR++ glazing.
Centrally located in the child-friendly new residential area "Villapark Uithof" on the southwestern edge of The Hague, near various arterial roads and within walking and cycling distance of various schools (including the International School), shops, public transport, the De Uithof and Madestein recreation areas, the center of Wateringen and Kijkduin beach.
LAYOUT
Through the spacious front garden, entrance to the house, hall with beautiful PVC flooring in a herringbone pattern laid on the ground floor, meter cupboard and spacious modern toilet with washbasin.
Double doors lead to the inviting, bright, and extended living/dining room with a luxurious open-plan kitchen at the front, featuring a cooking island with an induction cooktop and integrated extractor hood, oven/steam oven, wine cooler, Quooker, fridge/freezer, dishwasher, and ample storage space.
French doors at the front open onto the spacious south-facing front garden with unobstructed views of the greenery.
The living room features an electric fireplace centrally located in the seating area, side windows, and has been extended with a beautiful folding door leading to the back garden.
The spacious, beautifully landscaped, and sunny back/side garden boasts several patios and a wooden shed with electricity. Due to the location of the garden, there is sun all day long.
FIRST FLOOR
Landing with side window, separate modern toilet with hand basin. Spacious and bright front bedroom with unobstructed views. Adjacent, a modern, beautifully tiled bathroom with a bathtub, walk-in (rain) shower, two vanity units, and built-in faucets. Two bedrooms at the rear.
SECOND FLOOR
Spacious attic floor, currently divided as a single open space, featuring three Velux skylights, connections for a washer and dryer, and the position of the heat pump. This floor could be divided into two bedrooms and a second bathroom.
A loft ladder provides access to the spacious attic.
- For the dimensions of the rooms please refer to the floor plans.
SPECIAL FEATURES
Eternal lease-hold land. The rent charge is € 1.637.01 per year, based on a land value of € 181.890,-- (= redemption) and a rent rate of 0.9%. Review rent rates by July 1st, 2027.
Acceptance in agreement.
Sewage charges 2026 € 195,40.
Electricity 8 groups with circuit breaker.
Central heating system by heat pump.
Hot water supply by electric water heater (owned).
The condition of the bathroom and the kitchen is excellent.
The condition of the interior and the exterior is excellent.
The entire house has underfloor heating.
The house has wooden window frames with HR++ glazing.
The house has a beautiful folding door leading to the back garden.
The buyer is free to choose a notary, but must be located in the Haaglanden region.
Built in approx. 2018.
Living surface approx. 185 m².
The volume of the house approx. 665 m³.
NVM model deed applicable.
NEAR
Located on the edge of ‘De Uithof’ nature and recreation area, this location offers plenty of space for walking, cycling and outdoor sports. Step out of the door and be in the green within minutes, or cycle to Kijkduin beach in 25 minutes. Despite the quiet location, all amenities are close by. Supermarkets, schools and sports facilities are within cycling distance and The International School of The Hague is within easy reach. The cosy shopping street ‘De Fred’ and the centre of The Hague and Delft can also be reached quickly.With the N211, A4, A13 and A20 nearby, there is an excellent connection to other cities and regions.An ideal location for those who want comfortable and spacious living with all daily conveniences within easy reach.
The measurement instruction is based on NEN2580. The measurement instruction is intended to apply a more uniform way of measuring for giving an indication of the use surface. The measurement instruction can not completely close differences in measurement results, for example by differences in interpretation, rounding or limitations in the performance of the measurement.





Wilt u meer weten over deze woning of een bezichtiging plannen? Bel of mail ons of vul het formulier in.
Heeft u een vraag?
Bel ons (070) 365 00 00
of mail info@joostvanvliet.nl

