Van Heurnstraat 51, Voorburg
Centraal gelegen in de gewilde wijk Voorburg Noord en op steenworp afstand van het Bezuidenhout, station Laan van NOI, de gezellige Theresiastraat, winkels, restaurants en diverse uitvalswegen, een goed onderhouden appartement voorzien van een woonkeuken, 3 slaapkamers en een zonnig balkon. Energielabel C.
Het appartement is erg geschikt voor starters met ruime thuiswerkplekken, tevens voorzien van volledige dubbele beglazing.
INDELING:
Via Haags portiek, trap naar de eerste verdieping.
Entree appartement, ruime centrale hal, separaat toilet, geheel betegelde badkamer voorzien van douche en vaste wastafel.
Lichte voorslaapkamer, woon-/eetkamer aan de voorzijde gelegen, ruime achterslaapkamer voorzien van vaste kastenwand, schouw en toegang tot het zonnige balkon, gelegen op het noordwesten met uitzicht op de Skyline van Den Haag.
Goed onderhouden keuken met wit keukenblok voorzien van losse apparatuur waaronder een inductiekookplaat, koelkast met vriesvak, vaatwasser en aansluitingen voor wasmachine en droger.
Tevens vanuit de keuken toegang tot de derde slaapkamer aan de achterzijde.
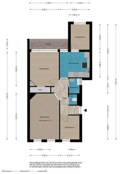
Voor de afmetingen van de kamers verwijzen wij u naar de plattegronden.
BIJZONDERHEDEN
Het appartement is gelegen op eigen grond.
Aanvaarding in overleg.
1/3e aandeel in de gemeenschap.
Actieve Vereniging van Eigenaren, bijdrage € 115,-- per maand.
Elektra 9 groepen met aardlekschakelaar.
Verwarming middels c.v.-combiketel, merk Remeha Avanta, bouwjaar 2017. Warmwatervoorziening middels c.v.-combiketel.
De onderhoudssituatie van het sanitair en de keuken is goed.
De onderhoudssituatie binnen en buiten is goed.
Het appartement is voorzien van kunststof kozijnen met dubbel glas.
Verkoper heeft de woning nooit zelf feitelijk gebruikt, derhalve is de niet-bewonersclausule van toepassing.
Koper is vrij in notariskeuze, echter wel in regio Haaglanden.
De lood- /asbest- en ouderdomsclausules zijn van toepassing.
Bouwjaar 1925.
Woonoppervlakte ca. 64 m².
De inhoud van het appartement is ca. 221 m³.
Model NVM-koopakte van toepassing.
NABIJ
Nabij winkels aan de Koningin Julianalaan en Theresiastraat.
Op fietsafstand van het Centrum van Den Haag, Westfield Mall of the Netherlands, zwembad Forum Kwadraat en Forum Sport .
Op loopafstand van Station Laan van NOI en openbaar vervoer bussen 23, 45 en 46 en tramlijn 2 en in directe omgeving van uitvalswegen via A12.
KADASTRALE INFORMATIE
Gemeente : Voorburg
Sectie : F
Nummer : 7355
Appartementsindex : -2
De Meetinstructie is gebaseerd op de NEN2580. De Meetinstructie is bedoeld om een meer eenduidige manier van meten toe te passen voor het geven van een indicatie van de gebruiksoppervlakte. De Meetinstructie sluit verschillen in meetuitkomsten niet volledig uit, door bijvoorbeeld interpretatieverschillen,afrondingen of beperkingen bij het uitvoeren van de meting.
Interesse in dit huis? Schakel direct uw eigen NVM-aankoopmakelaar in.
Uw NVM-aankoopmakelaar komt op voor uw belang en bespaart u tijd, geld en zorgen.
Adressen van collega NVM-aankoopmakelaars in Haaglanden vindt u op Funda.
Adressen van collega NVM-makelaars in Haaglanden vindt u op Funda.
*********************************************************
Centrally located in the sought-after Voorburg Noord district and just a stone's throw from Bezuidenhout, Laan van NOI station, the lively Theresiastraat, shops, restaurants and various arterial roads, a well-maintained apartment featuring an eat-in kitchen, 3 bedrooms, and a sunny balcony. Energy label C.
The apartment is very suitable for starters with spacious home workplaces, also equipped with full double glazing.
LAY-OUT
Via “Haags portiek”, stairs to the first floor.
Apartment entrance, spacious central hall, separate toilet, fully tiled bathroom equipped with shower and fixed washbasin.
Bright front bedroom, living/dining room located at the front, spacious rear bedroom featuring a built-in wardrobe, fireplace and access to the sunny balcony, situated on the northwest with a view on the The Hague skyline.
Well-maintained kitchen with white kitchen units equipped with freestanding appliances including an induction hob, refrigerator with freezer compartment, dishwasher and connections for a washing machine and dryer.
Also accessible from the kitchen is the third bedroom at the rear.
For the dimensions of the rooms please refer to the floor plans.
SPECIAL FEATURES
The property is freehold.
Acceptance in agreement.
1/3rd share in the community.
Active Owners Association, contribution € 115,-- each month.
Electricity 9 groups with circuit breaker.
Central heating system, brand Remeha Avanta, built in 2017.
Hot water supply by central heating system.
The condition of the bathroom and the kitchen is good.
The condition of the interior and exterior is good.
The apartment has synthetic window frames with double glazing.
Seller has the apartment itself never actually used, therefore the non-resident clause applies.
The buyer is free to choose a notary, but must be located in the Haaglanden region.
The lead-/asbestos and age clauses will be applied.
Built in 1925.
Living surface approx. 64 m².
The volume of the apartment approx. 221 m³.
NVM model deed applicable.
NEAR
Shops at the Koningin Julianalaan and Theresiastraat.
On cycling distance of the City Centre of the Hague, Westfield Mall of the Netherlands, swimming pool Forum Kwadraat and Forum Sport.
On walking distance of Station Laan van NOI and public transport (buses 23, 45 and 46 and tram 2) and main road A12.
The measurement instruction is based on NEN2580. The measurement instruction is intended to apply a more uniform way of measuring for giving an indication of the use surface. The measurement instruction can not completely close differences in measurement results, for example by differences in interpretation, rounding or limitations in the performance of the measurement.
!

Wilt u meer weten over deze woning of een bezichtiging plannen? Bel of mail ons of vul het formulier in.
Heeft u een vraag?
Bel ons (070) 365 00 00
of mail info@joostvanvliet.nl

