Rijnweg 301, Monster

Rijnweg 301 vraagprijs  € 495.000 k.k.


Rijnweg 301, Monster

Prachtig gelegen tegenover de duinen en strandopgang, 3-laags tussenwoning met 5 slaapkamers en zonnige achtertuin voorzien van achterom.

INDELING
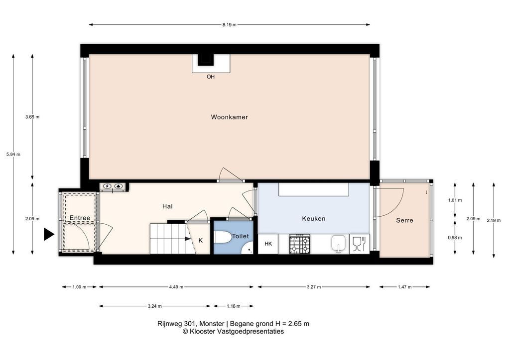
Entree in een aangebouwde vestibule, gang, bergruimte onder de trap, toilet met fontein.
Lichte woonkamer met schitterend vrij uitzicht op de duinen en strandopgang, houten vloerdelen en schouw voorzien van een gashaard.
Keuken voorzien van een gedateerd keukenblok, toegang naar den serre/bijkeuken en tuin op het zuidoosten voorzien van een achterom en 2 bergingen.

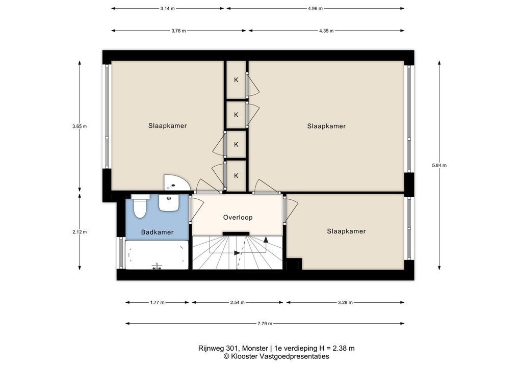
1e VERDIEPING
Overloop, achterzijkamer, achterslaapkamer voorzien van 2 vaste kasten, voorslaapkamer met dito uitzicht en wastafelmeubel, geheel betegelde badkamer voorzien van ligbad/douchecombinatie, toilet en wastafel.

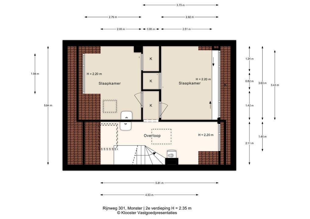
2e VERDIEPING
Riante overloop, wasmachineaansluiting en wastafel, toegang naar de vliering voorslaapkamer met dakkapel, vaste kast en wastafelmeubel, achterslaapkamer tevens met een groot dakkapel en een vaste kast.

Voor de afmetingen van de kamers verwijzen wij u naar de plattegronden.

BIJZONDERHEDEN
De woning is gelegen op eigen grond.
Aanvaarding in overleg.
In 2026 wordt gestart met het project "De Nieuwe Duinvallei, meer informatie www.deduinvallei.nl.
Rioolheffing 2025 € 66,91.
Elektra 5 groepen met aardlekschakelaar.
Verwarming middels c.v.-combiketel, merk Intergas, bouwjaar 2010.
Warmwatervoorziening middels c.v.-combiketel.
De onderhoudssituatie van het sanitair en de keuken is redelijk.
De onderhoudssituatie is zowel binnen als buiten goed.
De woning is aan de voorzijde van aluminium en houten kozijnen en aan de achterzijde voorzien van kunststof en aluminium kozijnen met dubbel glas.
Verkoper heeft de woning nooit zelf feitelijk gebruikt, derhalve is de niet-bewonersclausule van toepassing.
Koper is vrij in notariskeuze, echter wel in regio Haaglanden.
De lood- /asbest- en ouderdomsclausules zijn van toepassing.
Bouwjaar 1966.
Woonoppervlakte ca. 130 m².
De inhoud van de woning is ca. 445 m³.
De woning is bouwkundig gekeurd.
Model NVM-koopakte van toepassing.


NABIJ
Diverse winkels, uitvalswegen, openbaar vervoer, wandelgebied van de duinen, strand en zee. Tevens op 10-15 minuten met de auto van gezellige winkels van Naaldwijk met leuke restaurants op het plein en winkelscentrum Loosduinen (Den Haag), scholen en sportfaciliteiten.

KADASTRALE INFORMATIE:
Gemeente : Monster
Sectie : H
Nummer : 2130
Grootte : 1 are 37 centiare

De Meetinstructie is gebaseerd op de NEN2580. De Meetinstructie is bedoeld om een meer eenduidige manier van meten toe te passen voor het geven van een indicatie van de gebruiksoppervlakte. De Meetinstructie sluit verschillen in meetuitkomsten niet volledig uit, door bijvoorbeeld interpretatieverschillen, afrondingen of beperkingen bij het uitvoeren van de meting.

Interesse in dit huis? Schakel direct uw eigen NVM-aankoopmakelaar in.
Uw NVM-aankoopmakelaar komt op voor uw belang en bespaart u tijd, geld en zorgen.

Adressen van collega NVM-aankoopmakelaars in Haaglanden vindt u op Funda.


#######################################


Beautifully situated opposite the dunes and beach access, this three-story terraced house features five bedrooms and a sunny back garden provided with rear access.

LAYOUT
Entrance into an attached vestibule, hallway, under-stairs storage space and a toilet with hand basin.
Bright living room with stunning unobstructed views of the dunes and beach access, wooden flooring and a gas fireplace.
Kitchen with a dated kitchen unit, access to the conservatory/utility room and southeast-facing garden with rear access and two storages.

FIRST FLOOR
Landing, rear side room, rear bedroom with two built-in wardrobes, front bedroom with a matching view and vanity and a fully tiled bathroom with a bath/shower combination, toilet, and vanity.

SECOND FLOOR
Spacious landing, washing machine connection and vanity, access to the attic, front bedroom with a dormer window, built-in wardrobe, and vanity, and rear bedroom also with a large dormer window and a built-in wardrobe.

For the dimensions of the rooms please refer to the floor plans.

SPECIAL FEATURES
The property is freehold.
Acceptance in agreement.
The "The New Dune Valley" project will start in 2026, more information is available at www.deduinvallei.nl.
Sewage charges 2025 € 66,91.
Electricity 5 groups with circuit breaker.
Central heating system, brand Intergas, built in 2010.
Hot water supply by central heating system.
The condition of the bathroom and kitchen is reasonable.
The condition of the interior as well as the exterior is good.
The house has at the frond aluminium and wooden window frames and at the rear synthetic and aluminium window frames with double glazing.
Seller has the house itself never actually used, therefore the non-occupancy clause applies.
The buyer is free in his choice of notary, but in the Haaglanden region.
The lead-/asbestos and age clauses will be applied.
Built in 1966.
Living surface approx. 130 m².
The volume of the house is approx. 445 m³.
Technical survey available.
NVM model deed applicable.

NEAR
Various shops, major roads, public transport, a walking area with dunes, beach, and sea nearby. It's also just a 10-15 minute drive from Naaldwijk's charming shops with lovely restaurants on the square, the Loosduinen shopping center (The Hague), schools, and sports facilities.


The measurement instruction is based on NEN2580. The measurement instruction is intended to apply a more uniform way of measuring for giving an indication of the use surface. The measurement instruction can not completely close differences in measurement results, for example by differences in interpretation, rounding or limitations in the performance of the measurement.

Locatie

[ { "address": "Rijnweg 301", "zipCode": "2681 SL", "city": "Monster", "lat": 52.031598, "lng": 4.1766576, "heading": 0, "pitch": 0 } ]

Kenmerken

Vraagprijs
€ 495.000 k.k.
Status
Beschikbaar
Oplevering
In overleg

Bouw

Soort woonhuis
Eengezinswoning, Tussenwoning
Soort bouw
Bestaande bouw
Bouwjaar
1966
Onderhoud binnen
Goed
Onderhoud buiten
Goed

Oppervlakten en inhoud

Woonoppervlakte
130m²
Perceeloppervlakte
137m²
Overig oppervlakte
3m²
Inhoud
445m³

Indeling

Aantal kamers
6
Aantal slaapkamers
5
Aantal badkamers
1
Aantal verdiepingen
3

Energie

Energielabel
C
Isolatie
Dubbel glas
Warm water
C.V.-ketel
Verwarming
C.V.-ketel
Ketel
Intergas (2010, Combi-ketel, Eigendom)

Buitenruimte

Ligging
Aan bosrand, Aan rustige weg, In woonwijk, Open ligging
Tuin
Achtertuin, Voortuin
Achtertuin
Zuidoost, 45m², 606×735cm
Schuur
Vrijstaand steen
Faciliteiten schuur
Voorzien van elektra

Garage

Plattegronden

Video titel

Bekijk verloop van de zon

Uw browser ondersteunt geen WebGL

Afspraak of contact

Wilt u meer weten over deze woning of een bezichtiging plannen? Bel of mail ons of vul het formulier in.


Uw bericht is naar ons verzonden. Wij nemen zo snel mogelijk contact met u op.

Er is iets mis gegaan met het versturen van het formulier.
Controleer of u alle velden (goed) heeft ingevoerd en probeer het nog een keer.

recaptcha
reCAPTCHA
PrivacyTerms

Heeft u een vraag?
Bel ons (070) 365 00 00
of mail info@joostvanvliet.nl