--------------------- See below for English version ---------------------------
Op een unieke locatie op loopafstand van strand en duinen van Monster staat deze exclusieve, onder architectuur gebouwde villa met separaat hoogwaardig gastenverblijf, gelegen op een prachtig hoekperceel dat grotendeels wordt omringd door water.
De woning biedt circa 231 m² woonoppervlakte en staat op een hoekperceel van circa 549 m². Hier komen moderne architectuur, rust, privacy en de nabijheid van zee samen in een bijzondere woonomgeving.
Exclusieve architectuur
De villa is ontworpen door BAAS Architecten en kenmerkt zich door een krachtige en tijdloze architectuur met grote glaspartijen, strakke lijnen en een optimale verbinding tussen binnen en buiten.
Het hart van de woning bevindt zich op de verdieping. Hier vormt de royale living (ca. 70 m2) met woonkamer, eetruimte en woonkeuken een indrukwekkende leefruimte met panoramisch uitzicht over het water en het omliggende groen. Dankzij de grote raampartijen en de verhoogde ligging is de lichtinval gedurende de dag bijzonder.
De luxe woonkeuken is uitgerust met hoogwaardige apparatuur van Gaggenau en vormt een stijlvol middelpunt van de leefruimte.
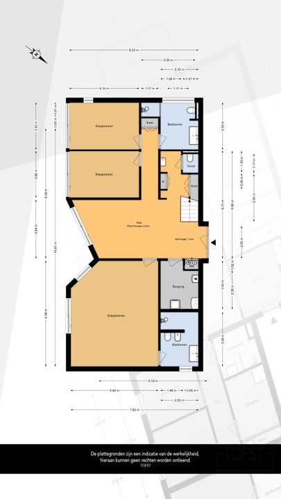
Indeling
De begane grond beschikt momenteel over drie ruime slaapkamers en twee badkamers. Door de royale opzet en slimme indeling is het eenvoudig mogelijk om een vierde slaapkamer en een separate werkkamer te realiseren. Hierdoor kan de woning zich moeiteloos aanpassen aan uiteenlopende woonwensen, zoals thuiswerken, een hobbyruimte of extra logeergelegenheid.
De riante slaapkamer van ca. 34 m2 beschikt over een luxe garderobekast op maat, schuifpui naar het terras aan het water en een badkamer ensuite, uitgerust met een inloopdouche, wastafelmeubel, toilet en bidet.
De tweede badkamer is eveneens uitgerust met een inloopdouche, een wastafelmeubel en een toilet, wat het comfort van de woning verder versterkt.
Op de eerste verdieping ervaart u de een warme en uitnodigende sfeer, die perfect wordt versterkt door het panoramische uitzicht op de omliggende natuur. Het speelse ontwerp, de velen raampartijen, de elegante eiken vloer met vloerverwarming en de sfeervolle gashaard dragen hier aan bij.
Hoogwaardig gastenverblijf
Een bijzonder pluspunt van deze woning is het separaat gelegen, hoogwaardig afgewerkte gastenverblijf. Dit volledig geïsoleerde bijgebouw is gerealiseerd in dezelfde architectonische stijl als de hoofdwoning en beschikt over eigen installaties.
Het gastenverblijf biedt tal van mogelijkheden en kan eventueel ook uitstekend dienstdoen als kantoor aan huis, atelier, praktijkruimte of mantelzorgwoning.
Buitenruimte
De villa ligt op een prachtig hoekperceel van circa 549 m², dat grotendeels wordt omringd door water. Deze bijzondere ligging zorgt voor een uitzonderlijk gevoel van rust, privacy en ruimte.
De tuin beschikt over meerdere terrassen, waardoor op ieder moment van de dag een fijne plek in de zon of schaduw te vinden is.
Vanaf de eigen aanlegsteiger kunt u in de zomermaanden genieten van passerende bootjes, terwijl u zich omringd voelt door rust en natuur.
De voortuin is ruim en fraai aangelegd en biedt twee eigen parkeerplaatsen. De vrijstaande garage is voorzien van een laadpaal voor uw elektrische auto.
Ligging
De woning ligt op korte loopafstand van strand en duinen van Monster. Tegelijkertijd zijn steden als Den Haag en Rotterdam uitstekend bereikbaar.
Hier woont u in alle rust, met natuur, zee en water altijd dichtbij.
Planvorming omgeving
Aan de overzijde van het water zal een woonwijk worden gebouwd, waarvan de bouwplannen gedeeld zijn. De verwachting is dat men vanaf Q4 2026 zal gaan beginnen met de bouw. Meer informatie is beschikbaar via de makelaar en de website van de Westlandse Zoom.
Bijzonderheden:
- Vrijstaande woning op een perceel eigen grond van ca. 549 m2;
- Hoogwaardig bijgebouw in 2021 gerealiseerd;
- Woonoppervlakte van ca. 231 m2 (indicatieve meting, conform NEN2580 meetinstructie);
- De woning wordt verwarmd middels warmte-terug-win-installatie en vloerverwarming door de gehele woning;
- Bouwjaar 2016, ontworpen door BAAS Architecten;
- Energielabel A;
- 18 zonnepanelen;
- Voorzien van HR++ (beneden) en HR+++ (boven) beglazing met aluminium kozijnen;
- Voorzien van drie goed bemeten slaapkamers en twee badkamers op de begane grond;
- Bijzondere living op de eerste verdieping met prachtig uitzicht op het omringde natuurgebied;
- Stijlvolle Poliform maatwerk keuken met spoeleiland, voorzien van diverse inbouwapparatuur van het merk Gaggenau;
- Inbouwapparatuur keuken: gasfornuis, afzuigkap, koelvriescombinatie, vaatwasser, oven, stoomoven en Quooker;
- Vrijstaande garage voorzien van laadpaal;
- Gelegen aan water die in verbinding staat met o.a. de 'Booma Watering';
- Op korte afstand van het Monsterse strand;
- Oplevering in overleg.
-----------------------------------------------------------------------------------------------------------------------
In a unique location within walking distance of the beach and dunes of Monster, stands this exclusive, architect-designed villa with a separate, high-quality guest house, situated on a beautiful corner plot largely surrounded by water.
The house offers approximately 231 m² of living space and is situated on a corner plot of approximately 549 m². Here, modern architecture, tranquility, privacy, and proximity to the sea converge in a truly unique living environment.
Exclusive architecture
The villa, designed by BAAS Architects, is characterized by a powerful and timeless architecture with large glass windows, clean lines, and an optimal connection between indoors and outdoors.
The heart of the home is located on the upper floor. Here, the spacious living room (approx. 70 m²) with lounge, dining area, and kitchen-diner creates an impressive living space with panoramic views of the water and the surrounding greenery. Thanks to the large windows and elevated position, the natural light is exceptionally bright throughout the day.
The luxurious kitchen-diner is equipped with high-quality Gaggenau appliances and forms a stylish focal point of the living space.
Layout
The ground floor currently features three spacious bedrooms and two bathrooms. The generous layout and clever design make it easy to create a fourth bedroom and a separate office. This allows the home to easily adapt to a variety of living needs, such as working from home, a hobby room, or additional guest space.
The generously sized bedroom, approximately 34 m², features a luxurious custom-made wardrobe, sliding doors leading to the waterfront terrace, and an ensuite bathroom equipped with a walk-in shower, vanity, toilet, and bidet.
The second bathroom is also equipped with a walk-in shower, vanity, and toilet, further enhancing the comfort of the home.
On the first floor, you'll experience a warm and inviting atmosphere, perfectly enhanced by the panoramic views of the surrounding nature. The playful design, the numerous windows, the elegant oak flooring with underfloor heating, and the inviting gas fireplace contribute to this.
High-quality guesthouse
A special highlight of this property is the separate, high-quality guesthouse. This fully insulated outbuilding is built in the same architectural style as the main house and has its own utilities.
The guesthouse offers numerous possibilities and could also serve as an excellent home office, studio, practice space, or care home.
Outdoor Space
The villa is situated on a beautiful corner plot of approximately 549 m², largely surrounded by water. This unique location provides an exceptional sense of peace, privacy, and space.
The garden features several terraces, allowing you to find a pleasant spot in the sun or shade at any time of day.
From the private jetty, you can enjoy passing boats during the summer months, while feeling surrounded by peace and nature.
The front garden is spacious and beautifully landscaped and offers two private parking spaces. The detached garage is equipped with a charging station for your electric car.
Location
The house is a short walk from the beach and dunes of Monster. At the same time, cities such as The Hague and Rotterdam are easily accessible.
Here you'll live in peace, with nature, the sea, and water always close by.
Planning for the surrounding area
Across the water, a residential area will be built, and the construction plans for this area have been shared. Construction is expected to start in Q4 of 2026. More information is availabel from the real estate agent and the Westlandse Zoom website.
Key Features:
- Villa on a private plot of approx. 549 m²;
- High-quality guesthouse built in 2021;
- Living area of approx. 231 m² (indicative measurement, NEN2580 standard);
- Heating via heat recovery system and underfloor heating throughout;
- Built in 2016, designed by BAAS Architects;
- Energy label A;
- 18 solar panels;
- HR++ glazing on the ground floor and HR+++ glazing upstairs, with aluminum frames;
- Three well-sized bedrooms and two bathrooms on the ground floor;
- Unique first-floor living area with stunning views of the surrounding nature;
- Stylish custom kitchen with island and Gaggenau built-in appliances;
- Detached garage with EV charging station;
- Located on water connected to the 'Booma Watering';
- Close to Monster beach;
- Transport in consultation



Wilt u meer weten over deze woning of een bezichtiging plannen? Bel of mail ons of vul het formulier in.
Heeft u een vraag?
Bel ons (070) 365 00 00
of mail info@joostvanvliet.nl
