--------------------- See below for English version ---------------------------
In de winter schaatsen met de gasten van uw gastenverblijf of 's zomers gezamenlijk genieten van de ondergaande zon?
De villa aan Haagweg 33K in Monster met het in 2021 gerealiseerde gastenverblijf maakt het mogelijk!
Op een perceel van 537 m2, een prachtige locatie nabij het strand van Monster, staan een vrijstaande villa met een woonoppervlakte van ca. 231 m2 met naastgelegen gastenverblijf.
Zowel de villa als het gastenverblijf zijn ontworpen door dezelfde architect, waarbij met zorg is gedacht aan luxe, lichtinval en ruimte.
De hoofdwoning telt 3 ruime slaapkamers op de begane grond, met de mogelijkheid om een vierde slaapkamer en een vijfde (werk)kamer te realiseren. Er zijn twee badkamers en op de verdieping een riante woonkamer met open (woon-)keuken.
Het bijgebouw is volledig geïsoleerd en wordt verwarmd middels een eigen cv installatie en vloerverwarming. De huidige indeling en aanwezige voorzieningen maken het bijgebouw multi-inzetbaar voor diverse doeleinde; een tweede woonverblijf nabij het huis, een mantelzorg woning of kantoor aan huis.
De villa laat zich kenmerken door een overloop van diverse duurzame materialen, een lichtrijk interieur en een speelse indeling van de beide woonlagen. Het object beschikt over twee parkeerplaatsen op eigen terrein en een garage met laadpunt voor uw auto.
De locatie is bereikbaar vanaf een rustige bestemmingsweg. Het perceel is grotendeels omringd door water waardoor u vanuit de woonkamer te allen tijde kunt genieten van prachtig uitzicht over het omringende water en groen. De uitvalsweg richting Den Haag is vanaf het adres met één minuut te benaderen. Daarbij bevinden zich aan de overzijde van de Haagweg diverse opgangen naar het duingebied en het strand.
De internationale school bevindt zich op 4 km afstand van de woning.
Wilt u 365 dagen per jaar een vakantiegevoel? Neem dan snel contact op voor het inplannen van een persoonlijke bezichtiging!
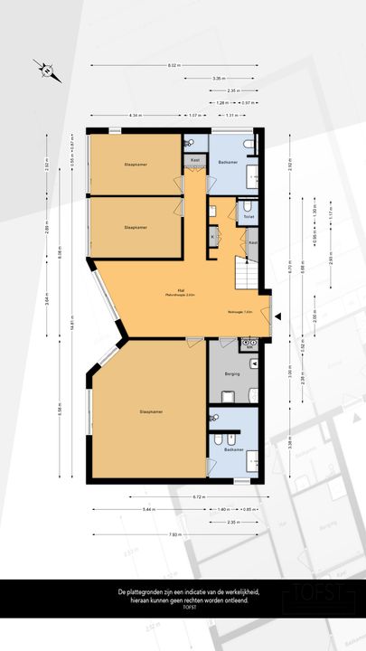
Indeling
Begane grond:
De voortuin is ruim en fraai aangelegd en biedt twee eigen parkeerplaatsen. De vrijstaande garage is voorzien van een laadpaal voor uw elektrische auto.
De imposante hardhouten voordeur biedt toegang tot de ontvangstruimte, waar de strakke afwerking direct in het oog valt. Er is een directe doorgang naar de study, waar het uitzicht adembenemend is. Via de schuifpui bereikt u het zonnige terras met vlonder, tevens aanlegsteiger, naar het water. In de garderobehoek bevindt zich onder de trap een garderobe kast op maat, een kast op maat voor extra bergruimte naast een modern afgewerkte toiletruimte met wandcloset en fonteintje. De gehele begane grond beschikt over een grijze smeervloer, welke wordt verwarmd middels vloerverwarming.
De riante slaapkamer van ca. 34 m2 beschikt over een luxe garderobekast op maat, schuifpui naar het terras aan het water en een badkamer ensuite, uitgerust met een inloopdouche, wastafelmeubel, toilet en bidet. Aan de achterzijde van de woning bevinden zich twee slaapkamers, elk met een schuifpui die toegang biedt tot het terras aan het water. De tweede badkamer is eveneens uitgerust met een inloopdouche, een wastafelmeubel en een toilet, wat het comfort van de woning verder versterkt. Op de begane grond bestaat de mogelijkheid om op een efficiënte en eenvoudige wijze vier volwaardige slaapkamers te creëren. Desgewenst leent de royale hoofdslaapkamer zich perfect voor een stijlvolle combinatie van slaap- en werkruimte. Daarnaast biedt de berging voldoende ruimte voor het plaatsen van een wasmachine en droger, waardoor er een ideale ruimte ontstaat voor het creëren van een functionele en georganiseerde wasruimte.
De fraai aangelegde tuin rondom, die qua ontwerp een subtiele verwijzing maakt naar het duingebied, beschikt over meerdere terrassen met uitzicht op water die in verbinding staat met de 'Booma Watering'. Vanaf de eigen aanlegsteiger kunt u in de zomermaanden genieten van passerende bootjes, terwijl u zich omringd voelt door rust en natuur.
Eerste verdieping:
Het gebruik van exclusieve materialen en het indrukwekkende ontwerp van de trapopgang naar de eerste verdieping benadrukken de ruimtelijke grandeur en verfijnde sfeer van het interieur. Hier ervaart u de verhoogde living van ca. 70 m2, omarmd door royale zonneterrassen waar elk moment van de dag een zonnig, beschut plekje te vinden is. Het speelse ontwerp, de velen raampartijen, de elegante eiken vloer met vloerverwarming en de sfeervolle gashaard creëren gezamenlijk een warme en uitnodigende sfeer, die perfect wordt versterkt door het panoramische uitzicht op de omliggende natuur.
De stijlvolle Poliform maatwerk keuken is afgewerkt met donkere grijs/bruine kasten en een antraciet kleurig hardstenen keukenblad, compleet met spoeleiland en bar biedt dit opnieuw een adembenemend uitzicht. Deze voortreffelijke keuken is een waar paradijs voor elke topchef, uitgerust met de allerbeste apparatuur van het merk Gaggenau, waaronder een gasfornuis, afzuigkap, koelvriescombinatie, vaatwasser, oven, stoomoven en Quooker. Met deze voorzieningen is culinaire perfectie altijd binnen handbereik.
De twee schuifpuien bieden toegang tot de zonovergoten terrassen, waar u kunt genieten van het unieke uitzicht op de watervogels, reigers, vossen en konijnen die het omringende natuurgebied bevolken. Hier creëert u een ultiem vakantiegevoel, rechtstreeks in uw eigen woning.
Bijzonderheden:
- Vrijstaande woning op een perceel eigen grond van ca. 537 m2;
- Hoogwaardig bijgebouw in 2021 gerealiseerd;
- Woonoppervlakte van ca. 231 m2 (indicatieve meting, conform NEN2580 meetinstructie);
- De woning wordt verwarmd middels warmte-terug-win-installatie en vloerverwarming door de gehele woning;
- Bouwjaar 2016, ontworpen door BAAS Architecten;
- Energielabel A;
- 18 zonnepanelen;
- Voorzien van HR++ (beneden) en HR+++ (boven) beglazing met aluminium kozijnen;
- Voorzien van drie goed bemeten slaapkamers en twee badkamers op de begane grond;
- Bijzondere living op de eerste verdieping met prachtig uitzicht op het omringde natuurgebied;
- Stijlvolle maatkeuken met spoeleiland, voorzien van diverse inbouwapparatuur van het merk Gaggenau;
- Vrijstaande garage voorzien van laadpaal;
- Gelegen aan water die in verbinding staat met o.a. de 'Booma Watering';
- Op korte afstand van het Monsterse strand;
- Oplevering in overleg.
-----------------------------------------------------------------------------------------------------------------------
Ice skating with your guesthouse visitors in winter or enjoying the sunset together in summer?
The villa at Haagweg 33K in Monster, complete with a guesthouse built in 2021, makes it all possible!
Situated on a 537 m² plot on a beautiful location near Monster beach, this villa offers approx. 231 m² of living space, along with a guesthouse next door.
Both the villa and the guesthouse were designed by the same architect, with careful attention to luxury, natural light, and spaciousness.
The main residence features three spacious bedrooms on the ground floor, with the option to create a fourth. There are two bathrooms, and on the upper floor, a generous living room with an open kitchen.
The guesthouse is fully insulated and heated via its own central heating system and underfloor heating. Its current layout and amenities make it perfect as a second residence, a care unit, or a home office.
The villa is distinguished by its use of sustainable materials, a bright interior, and a playful layout across both floors. It includes two private parking spaces and a garage with a charging station for your electric car.
Accessed via a quiet local road, the plot is largely surrounded by water, allowing you to enjoy stunning views of the surrounding greenery and water from the living room at all times. The main road to The Hague is just one minute away, and across Haagweg you'll find several entrances to the dunes and beach.
The International School is located just 4 km from the property.
Would you like to experience that holiday feeling all year round? Then contact us today to schedule a private viewing!
Layout
Ground Floor:
The spacious and beautifully landscaped front garden offers two private parking spaces. The detached garage includes a charging station for your electric vehicle.
The impressive hardwood front door opens into the reception area. A direct passage leads to the study, offering breathtaking views. Sliding doors open to a sunny terrace with the possibility to place a boat in the water.
Under the staircase, you'll find a custom-built wardrobe and additional storage space, next to a modern toilet and washbasin. The entire ground floor features a grey poured concrete floor with underfloor heating.
The spacious master bedroom (approx. 34 m²) includes a luxurious custom wardrobe, sliding doors to the waterfront terrace, and an en-suite bathroom with walk-in shower, vanity unit, toilet, and bidet.
At the rear of the house are two additional bedrooms, each with sliding doors to the terrace. A second bathroom, also with walk-in shower, vanity unit, and toilet, enhances the comfort of the home.
The ground floor layout allows for the easy creation of four full-sized bedrooms. The generous master suite also lends itself perfectly to a stylish combination of sleeping and working space.
A utility room offers ample space for a washer and dryer, creating an ideal laundry area.
The beautifully landscaped garden, subtly inspired by the nearby dunes, features multiple terraces overlooking the water, which connects to the 'Booma Watering'. In summer, enjoy passing boats from your private jetty, surrounded by peace and nature.
First Floor:
The use of exclusive materials and the striking staircase design emphasize the spacious grandeur and refined atmosphere of the interior.
Here you'll find the elevated living area of approx. 70 m², surrounded by generous sun terraces offering sheltered spots throughout the day.
The playful layout, large windows, elegant oak flooring with underfloor heating, and cozy gas fireplace create a warm and inviting ambiance, enhanced by panoramic views of the surrounding nature.
The stylish custom Poliform kitchen features dark grey/brown cabinetry and an anthracite stone countertop, together with a sink island and bar.
This exceptional kitchen is a dream for any gourmet chef, equipped with top-of-the-line Gaggenau appliances: gas stove, extractor hood, fridge-freezer, dishwasher, oven, steam oven, and Quooker. Culinary perfection is always within reach.
Two sliding doors open to sun-drenched terraces, where you can enjoy views of waterfowl, herons, foxes, and rabbits inhabiting the nearby nature reserve.
Here, you’ll experience the ultimate holiday feeling right in your own home.
Key Features:
- Villa on a private plot of approx. 537 m²;
- High-quality guesthouse built in 2021;
- Living area of approx. 231 m² (indicative measurement, NEN2580 standard);
- Heating via heat recovery system and underfloor heating throughout;
- Built in 2016, designed by BAAS Architects;
- Energy label A;
- 18 solar panels;
- HR++ glazing on the ground floor and HR+++ glazing upstairs, with aluminum frames;
- Three well-sized bedrooms and two bathrooms on the ground floor;
- Unique first-floor living area with stunning views of the surrounding nature;
- Stylish custom kitchen with island and Gaggenau built-in appliances;
- Detached garage with EV charging station;
- Located on water connected to the 'Booma Watering';
- Close to Monster beach;
- Transport in consultation



Wilt u meer weten over deze woning of een bezichtiging plannen? Bel of mail ons of vul het formulier in.
Heeft u een vraag?
Bel ons (070) 365 00 00
of mail info@joostvanvliet.nl