Abdij van Rijnsburglaan 8, Monster
Gelegen op de grens met Vroondaal en Den Haag, een ruime en luxe afgewerkte eengezinswoning (type Herenboerderij, ca. 150 m2 woonoppervlakte) voorzien van ruime woon/eetkamer met luxe open keuken aan de voorzijde en uitbouw, 4 ruime slaapkamers, luxe badkamer, fraai aangelegde voor- en achtertuin met vrij uitzicht en maar liefst 2 parkeerplaatsen (inclusief elektrisch oplaadpunt). EIGEN GROND.
De ‘’Herenboederij’’ kenmerkt zich door karakteristieke elementen als een dak van riet in combinatie met dakpannen en is onderdeel van het nieuwbouwproject Boomgaerde.
Gelegen in de nieuwe groene wijk Achter de Duinen in Monster. Nabij natuur- en recreatiegebied Madestein, Langoed en golfclub Ockenburgh, Badplaats Kijkduin, de Internationale School, sportvoorzieningen en uitvalswegen.
INDELING
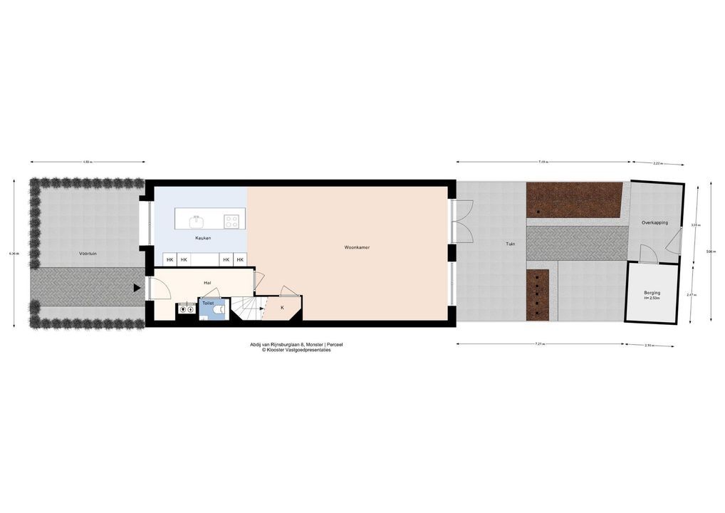
Via ruime voortuin, gelegen op het zuidoosten, entree van de woning, gang voorzien van fraaie PVC-vloer in visgraatmotief doorgelegd op de begane grond en 1e verdieping, meterkast en separaat toilet met fontein.
Via fraaie Berkvens binnendeur toegang tot de riante en sfeervolle woon/eetkamer
(ca. 9.59 x 5.82 m) met bergkast onder de trap en een luxe open keuken aan de voorzijde gelegen voorzien van riant spoel- en kookeiland met Quooker en inductiekookplaat met geïntegreerde afzuiging, vaatwasser, grote koel- en vrieskast, stoom/oven, oven/combimagnetron en veel opbergruimte.
Via de openslaande deuren toegang tot de riante fraai aangelegde achtertuin, gelegen op het noordwesten met vrij uitzicht en middag- en avondzon, een vrijstaande berging met elektra en een achterom.
Twee parkeerplaatsen waarvan één met elektrisch oplaadpunt en mogelijkheid tot 1 extra.
1e VERDIEPING
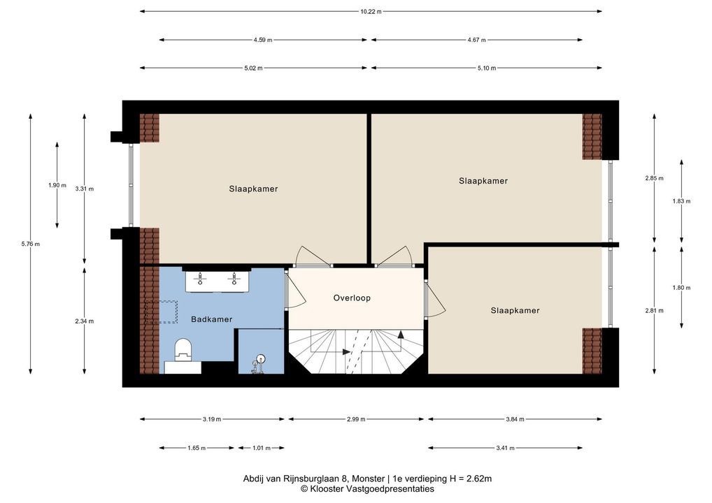
Overloop, fraai geheel betegelde badkamer voorzien van inloop(stort)douche, 2e toilet, dubbel wastafelmeubel met inbouw mengkranen, designradiator en dakraam.
Ruime voorslaapkamer en 2 achterslaapkamers, allen voorzien van een groot dakkapel.
2e VERDIEPING
Ruime kapverdieping, eventueel op te splitsen in 2 slaapkamers, voorzien van 3 dakramen, veel bergruimte in de knieschotten en wasmachine-aansluiting.
Voor de afmetingen van de kamers verwijzen wij u naar de plattegronden.
BIJZONDERHEDEN
De woning is gelegen op eigen grond.
Aanvaarding in overleg.
Elektra 10 groepen met aardlekschakelaar.
Verwarming middels stadsverwarming, HVC-systeem.
Warmwatervoorziening middels stadverwarming, HVC systeem en Quoocker.
De onderhoudssituatie van het sanitair en de keuken is uitstekend.
De onderhoudssituatie binnen en buiten is uitstekend.
De woning is voorzien van houten kozijnen met triple glas en de dakramen met HR ++.
De woning is voorzien van elektrische screens.
Koper is vrij in notariskeuze, echter wel in regio Haaglanden.
Bouwjaar 2025.
Woonoppervlakte ca. 150 m².
De inhoud van de woning is ca. 600 m³.
Model NVM-koopakte van toepassing.
NABIJ
Natuur- en recreatiegebied Madestein, Landgoed en golfclub Ockenburgh, strand en zee, Badplaats Kijkduin,
Openbaar vervoer (bus 31), uitvalswegen Westlandroute.
Nabij the International School of The Hague en diverse sportfaciliteiten.
KADASTRALE INFORMATIE:
Gemeente : Monster
Sectie : I
Nummer : 3429
Grootte : 1 are 69 centiare
De Meetinstructie is gebaseerd op de NEN2580. De Meetinstructie is bedoeld om een meer eenduidige manier van meten toe te passen voor het geven van een indicatie van de gebruiksoppervlakte. De Meetinstructie sluit verschillen in meetuitkomsten niet volledig uit, door bijvoorbeeld interpretatieverschillen, afrondingen of beperkingen bij het uitvoeren van de meting.
Interesse in dit huis? Schakel direct uw eigen NVM-aankoopmakelaar in.
Uw NVM-aankoopmakelaar komt op voor uw belang en bespaart u tijd, geld en zorgen.
Adressen van collega NVM-aankoopmakelaars in Haaglanden vindt u op Funda.
*************************************************
Located on the border between Vroondaal and The Hague, this spacious and luxuriously finished family home (type Herenboerderij, approx. 150 m² living space) features a spacious living/dining room with a luxurious open-plan kitchen at the front and an extension, four spacious bedrooms, a luxurious bathroom, beautifully landscaped front and back gardens with unobstructed views, and no less than two parking spaces (including an electric charging station). FREEHOLD.
The "Herenboederij" features distinctive elements such as a thatched roof combined with roof tiles and is part of the new Boomgaerde development.
Located in the new green Achter de Duinen neighborhood in Monster, close to the Madestein nature and recreation area, the Ockenburgh estate and golf club, Kijkduin beach resort, the International School, sports facilities and main roads.
LAYOUT
Through the spacious southeast-facing front garden, you enter the house, access the hallway with a beautiful PVC herringbone floor that extends from the ground floor to the first floor, a meter cupboard and a separate toilet with a hand basin.
Through a beautiful Berkvens interior door, you enter the spacious and inviting living/dining room (approx. 9.59 x 5.82 m) with a storage cupboard under the stairs and a luxurious open-plan kitchen at the front, featuring a generous sink and cooking island with a Quooker and induction cooktop with integrated extractor hood, dishwasher, large refrigerator/freezer, steam oven, oven/combi microwave and ample storage space.
Through French doors, you enter the spacious, beautifully landscaped northwest-facing back garden with unobstructed views and afternoon and evening sun. There is also a detached shed with electricity and rear access.
Two parking spaces, one with an electric charging point and the possibility of adding one more.
FIRST FLOOR
Landing, beautifully fully tiled bathroom with a walk-in shower, second toilet, double vanity with built-in mixer taps, designer radiator and skylight.
Spacious front bedroom and two rear bedrooms, all three with a large dormer window.
SECOND FLOOR
Spacious attic floor, which could potentially be divided into two bedrooms, features three skylights, ample storage space in the knee walls and a washing machine connection.
For the dimensions of the rooms please refer to the floor plans.
SPECIAL FEATURES
The property is freehold.
Acceptance in agreement.
Electricity 10 groups with circuit breaker.
Heating via district heating, HVC system.
Hot water supply via district heating, HVC system and Quoocker.
The condition of the bathroom and the kitchen is excellent.
The condition of the interior and exterior is excellent.
The house has wooden window frames with triple glazing and the skylights with HR++.
The house has electric screens.
The buyer is free to choose a notary, but must be located in the Haaglanden region.
Built in 2025.
Living surface approx. 150 m².
The volume of the house approx. 600 m³.
NVM model deed applicable.
NEAR
Madestein nature and recreation area, Ockenburgh estate and golf club, beach and sea, Kijkduin Beach resort.
Public transport (bus 31), main roads via Westland route.
Various sports facilities and near the International School of The Hague.
The measurement instruction is based on NEN2580. The measurement instruction is intended to apply a more uniform way of measuring for giving an indication of the use surface. The measurement instruction can not completely close differences in measurement results, for example by differences in interpretation, rounding or limitations in the performance of the measurement.





Wilt u meer weten over deze woning of een bezichtiging plannen? Bel of mail ons of vul het formulier in.
Heeft u een vraag?
Bel ons (070) 365 00 00
of mail info@joostvanvliet.nl

