Westeinde 9J, Centrum
Een locatie om verliefd op te worden!
Rustig gelegen, midden in de binnenstad, ligt het bijzondere appartementengebouw Amicitia. Een geweldige plek waar historische aspecten, charme, hedendaagse elementen en buitenruimtes prachtig samenkomen.
In dit sfeervolle complex bieden wij aan: circa 135 m² wooncomfort op de 2e verdieping met een prachtige gezamenlijke binnentuin.
Aan één van de oudste straten van Den Haag, om de hoek van de Torenstraat met de Sint Jacobskerk. Slechts enkele minuten lopen van openbaar vervoer, winkels, theater, musea en de horecarijke binnenstad en op fietsafstand tot de NS-stations. De CentrumRing en het Rijkswegennet zijn eenvoudig te bereiken.
Het historische gebouw werd oorspronkelijk gebouwd als klooster, later ingericht als weeshuis en weer later gebruikt als verenigingsgebouw. In 1998 werd het echter verbouwd tot luxueus appartementengebouw. Bovendien werd achter ‘de oudbouw’ nieuwbouw gerealiseerd. Dit stijlvolle appartementencomplex vormt, met de binnenhof, een prachtig geheel met de omgeving.
De hoofdingang is gelegen aan een voorplein voor het karaktervolle hoofdgebouw. Via de gemeenschappelijke voordeur, brede entreehal met camerabeveiliging, bellentableau, intercom, brievenbussen en doorloop naar de fraai aangelegde binnentuin bereikt u de entree van het nieuwe gedeelte. Het appartement is zowel via het trappenhuis als de lift te bereiken.
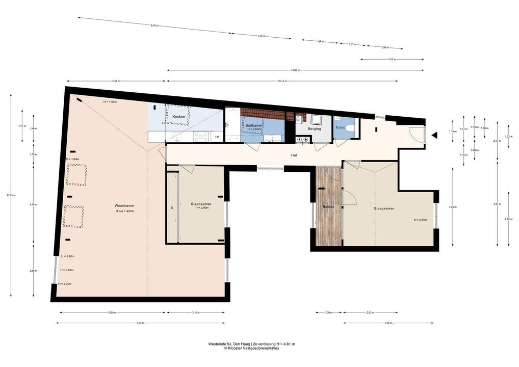
INDELING
Hoofdentree via het prachtige historische voorgebouw, hal met bellentableau. Via het voorgebouw komt u op de cour alwaar een tweede afgesloten entree met bellentableau en waar u via de lift naar de 2e verdieping gaat.
Entree op de derde woonlaag met lift bereikbaar, riante gang met visgraat parketvloer doorgelegd in gehele appartement, ruim modern toilet met fontein, vaste kast met wasmachine/droger aansluiting, moderne badkamer ligbad/douche combinatie en badkamermeubel. Sfeervolle ouderslaapkamer met een prachtige hoogte en spant, airco en toegang naar een loggia. 2e slaapkamer, thans in gebruik als werkkamer met kastenwand, schitterende en riante woonkamer door de hoogte met het spant wederom in zicht. Open moderne keuken voorzien van 5-pits gasfornuis, afzuigkap, koelkast met vriescompartiment, oven en vaatwasser. Berging in de onderbouw.
Voor de afmetingen van de kamers verwijzen wij u naar de plattegronden.
BIJZONDERHEDEN
Het appartement is gelegen op erfpachtgrond waarvan de erfpachtcanon en beheerskosten eeuwigdurend zijn afgekocht.
Aanvaarding in overleg.
Rioolheffing 2025 € 191,15.
45/1.710e aandeel in de gemeenschap.
Actieve Vereniging van Eigenaren, bijdrage € 350,-- per maand en per 01-01-2026 € 354,17.
Elektra 6 groepen met aardlekschakelaar.
Verwarming middels c.v.-combiketel, merk Intergas, bouwjaar 2024.
Warmwatervoorziening middels c.v.-combiketel.
De onderhoudssituatie van het sanitair en de keuken is goed.
De onderhoudssituatie binnen en buiten is goed.
Het gehele appartement is voorzien van houten kozijnen met dubbel glas.
Het appartement is voorzien van bijzondere Philibertspanten.
De Velux ramen in de woonkamer zijn voorzien van screens.
Royale kelderberging in de onderbouw met elektra.
Het appartement en de kelderberging zijn te bereiken zonder trappen.
Het appartement heeft betonnen vloeren en is volledig geïsoleerd.
Zonnige loggia gelegen op het zuidoosten.
Uniek object in hartje centrum op loopafstand van alle winkels, restaurants en openbaar vervoer.
Gemeentelijk beschermd stadsgezicht.
Koper is vrij in notariskeuze, echter wel in regio Haaglanden.
De lood- /asbest- en ouderdomsclausules zijn van toepassing.
Bouwjaar 1881 en de transformatie in 1998 gerealiseerd.
Woonoppervlakte ca. 135 m².
De inhoud van het appartement is ca. 460 m³.
Model NVM-koopakte van toepassing.
KADASTRALE INFORMATIE
Gemeente : ’s-Gravenhage
Sectie : C
Nummer : 6325
Appartementsindex : -11
De Meetinstructie is gebaseerd op de NEN2580. De Meetinstructie is bedoeld om een meer eenduidige manier van meten toe te passen voor het geven van een indicatie van de gebruiksoppervlakte. De Meetinstructie sluit verschillen in meetuitkomsten niet volledig uit, door bijvoorbeeld interpretatieverschillen,afrondingen of beperkingen bij het uitvoeren van de meting.
Interesse in dit huis? Schakel direct uw eigen NVM-aankoopmakelaar in.
Uw NVM-aankoopmakelaar komt op voor uw belang en bespaart u tijd, geld en zorgen.
Adressen van collega NVM-aankoopmakelaars in Haaglanden vindt u op Funda.
********************************************
A location to fall in love with!
Quietly situated in the heart of the city center, lies the unique Amicitia apartment building. A wonderful location where historical aspects, charm, contemporary elements and outdoor spaces beautifully blend. In this charming complex, we offer: approximately 135 m² of comfortable living space on the second floor with a lovely shared courtyard.
On one of the oldest streets in The Hague, around the corner from Torenstraat and St. James's Church. Just a few minutes' walk from public transport, shops, theaters, museums, and the city center's diverse array of restaurants and cafes, and within cycling distance of the train stations. The CentrumRing and the national highway network are easily accessible.
The historic building was originally built as a monastery, later as an orphanage, and later as a community center. In 1998, it was converted into a luxurious apartment building. Furthermore, new construction was constructed behind the "old building." This stylish apartment complex, along with its courtyard, blends seamlessly into its surroundings.
The main entrance is located on a forecourt in front of the charming main building. Through the shared front door with a wide entrance hall with camera surveillance, a doorbell panel, intercom, mailboxes and walkthrough to the beautifully landscaped courtyard you reach the entrance to the new section. The apartment is accessible via both the stairwell and the elevator.
LAYOUT
Main entrance through the beautiful historic front building, a hallway with a doorbell panel. Through the front building, you enter the courtyard, where a second secure entrance with a doorbell panel is located and from where you can take the elevator to the second floor.
Entrance on the third residential floor accessible by elevator, spacious hallway with herringbone parquet flooring throughout the apartment, spacious modern toilet with hand basin, built-in closet with washer/dryer connections, modern bathroom with bathtub/shower combination and vanity. Charming master bedroom with a beautiful ceiling height and truss, air conditioning, and access to a loggia. Second bedroom, currently used as a study with a wardrobe wall, stunning and spacious living room thanks to the ceiling height with the truss visible again. Open-plan modern kitchen equipped with a 5-burner gas stove, extractor hood, refrigerator with freezer compartment, oven and dishwasher. Storage space in the basement.
Cellar storage in the vaults of the substructure.
For the dimensions of the rooms please refer to the floor plans.
SPECIAL FEATURES
Eternal lease-hold land which the rent charge has been bought off.
Acceptance in agreement.
Sewage charges 2025 € 191,15.
45/1.710th share in the community.
Active Owners Association, contribution € 350,-- monthly and per 01-01-2026 € 354,17.
Electricity 6 groups with circuit breaker.
Central heating system, brand Intergas, model 2024.
Hot water supply by central heating system.
The condition of the bathroom and the kitchen is good.
The condition of the interior and exterior is good.
The apartment has wooden window frames with double glazing.
The apartment has special Philibertspanten.
The Velux windows are provided with screens.
Spacious storage unit in the basement with electricity.
The apartment and the basement storage unit are accessible without stairs.
The apartment has concrete floors and is fully insulated.
Sunny loggia facing southeast.
Unique property in the heart of the city center, within walking distance of all shops, restaurants, and public transport.
Part of the conservation area of the village or town.
The buyer is free in his choice of notary, but in the Haaglanden region.
The lead-/asbestos and age clauses will be applied.
Built in 1881 and transformed in 1998.
Living surface approx. 135 m².
The volume of the apartment approx. 460 m³.
NVM model deed applicable.
The measurement instruction is based on NEN2580. The measurement instruction is intended to apply a more uniform way of measuring for giving an indication of the use surface. The measurement instruction can not completely close differences in measurement results, for example by differences in interpretation, rounding or limitations in the performance of the measurement.


Wilt u meer weten over deze woning of een bezichtiging plannen? Bel of mail ons of vul het formulier in.
Heeft u een vraag?
Bel ons (070) 365 00 00
of mail info@joostvanvliet.nl

