Wateringsestraat 52, Den Haag

Wateringsestraat 52 vraagprijs  € 200.000 k.k.


Wateringsestraat 52, Centrum

Gezellig 2-kamer appartement gelegen op eigen grond met zonnige en ruime achtertuin gelegen op het zuidoosten. Woning dient gemoderniseerd te worden.

Nabij het bruisende centrum van Den Haag, openbaar vervoer, de bekende Haagse Markt en het Zuiderpark.

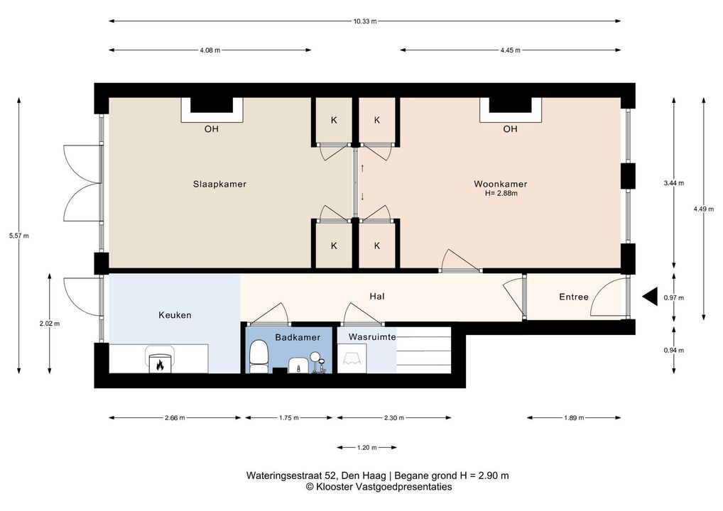
INDELING
Entree, tochtdeur, gang met granitovloer doorgelegd naar de keuken aan de achterzijde, trappenkast met aansluiting wasmachine, badkamer voorzien van douche, wastafeltje en toilet.

Kamer en suite (voor- en achterkamer) voorzien van een schuifseparatie, 4 vaste kasten, 2 marmeren schouwen en dubbele deuren naar de ruime zonnige achtertuin op het zuidoosten. Voor- of achterkamer in te delen als slaapkamer.
Keuken voorzien van een keukenblok, opstelplaats cv en deur naar de fraaie achtertuin.

Voor de afmetingen van de kamers verwijzen wij u naar de plattegronden.


BIJZONDERHEDEN
Het appartement is gelegen op eigen grond.
Aanvaarding in overleg.
Rioolheffing 2025 € 191,15.
1/3ee aandeel in de gemeenschap.
De VvE is in oprichting. Bijdrage thans € 100,-- per maand.
Elektra 2 groepen zonder aardlekschakelaar.
Verwarming middels c.v.-combiketel, merk Remeha, bouwjaar 2007. Warmwatervoorziening middels c.v.-combiketel.
De onderhoudssituatie van het sanitair en de keuken is matig.
De onderhoudssituatie binnen is matig tot redelijk en buiten goed.
Het gehele appartement is voorzien van houten kozijnen met gedeeltelijk dubbel glas.
Verkoper heeft de woning nooit zelf feitelijk gebruikt, derhalve is de niet-bewonersclausule van toepassing.
Koper is vrij in notariskeuze, echter wel in regio Haaglanden.
De lood- /asbest- en ouderdomsclausules zijn van toepassing.
Bouwjaar 1940.
Woonoppervlakte ca. 53 m².
De inhoud van het appartement is ca. 215 m³.
Model NVM-koopakte van toepassing.


NABIJ
Gelegen in het hart van het Haagse Centrum, op loopafstand van de gezellige binnenstad met een keur aan winkels, speciaalzaken en horecagelegenheden.
Nabij Den Haag Centraal Station met directe verbindingen naar o.a. Amsterdam en Rotterdam.

KADASTRALE INFORMATIE
Gemeente : ’s-Gravenhage
Sectie : L
Nummer : 13967
Appartementsindex : -1

De Meetinstructie is gebaseerd op de NEN2580. De Meetinstructie is bedoeld om een meer eenduidige manier van meten toe te passen voor het geven van een indicatie van de gebruiksoppervlakte. De Meetinstructie sluit verschillen in meetuitkomsten niet volledig uit, door bijvoorbeeld interpretatieverschillen,afrondingen of beperkingen bij het uitvoeren van de meting.

Interesse in dit huis? Schakel direct uw eigen NVM-aankoopmakelaar in.
Uw NVM-aankoopmakelaar komt op voor uw belang en bespaart u tijd, geld en zorgen.
Adressen van collega NVM-aankoopmakelaars in Haaglanden vindt u op Funda.


***********************************************************

Cozy 2-room apartment located on freehold land with a sunny and spacious back garden facing southeast. The house needs to be modernized.

Close to the bustling center of The Hague, public transport, the famous Haagse Markt and the Zuiderpark.

LAYOUT
Entrance, draught door, hallway with granite floor leading to the kitchen at the rear, staircase cupboard with washing machine connection, bathroom with shower, washbasin and toilet.

En-suite room (front and back room) with sliding doors, 4 built-in closets, 2 marble fireplaces and double doors to the spacious sunny back garden facing southeast. Front or back room can be used as a bedroom.
Kitchen with a kitchen unit, central heating system and door to the beautiful back garden.

For the dimensions of the rooms please refer to the floor plans.

SPECIAL FEATURES
The property is freehold.
Acceptance in agreement.
Sewage charges 2025 € 191,15.
1/3rd share in the community.
The owners Association is being established. Current contribution € 100,-- per month.
Electricity 2 groups without circuit breaker.
Central heating system, brand Remeha, model 2007.
Hot water supply by central heating system.
The condition of the bathroom and the kitchen is mediocre.
The condition of the interior is mediocre to reasonable and the exterior is good.
The apartment has wooden window frames with partly double glazing.
Seller has the apartment itself never actually used, therefore the non-occupancy clause applies.
The buyer is free in his choice of notary, but in the Haaglanden region.
The lead-/asbestos and age clauses will be applied.
Built in 1940.
Living surface approx. 53 m².
The volume of the apartment approx. 215 m³.
NVM model deed applicable.

NEAR
Located in the heart of The Hague Center, within walking distance of the pleasant city center with a variety of shops, specialty shops and catering establishments.
Near The Hague Central Station with among others direct connections to Amsterdam and Rotterdam.

The measurement instruction is based on NEN2580. The measurement instruction is intended to apply a more uniform way of measuring for giving an indication of the use surface. The measurement instruction can not completely close differences in measurement results, for example by differences in interpretation, rounding or limitations in the performance of the measurement.

Locatie

[ { "address": "Wateringsestraat 52", "zipCode": "2512 PN", "city": "Den Haag", "lat": 52.0712406, "lng": 4.2988304, "heading": 0, "pitch": 0 } ]

Kenmerken

Vraagprijs
€ 200.000 k.k.
Status
Beschikbaar
Oplevering
In overleg

Bouw

Soort appartement
Benedenwoning, Appartement
Woonlaag
1
Soort bouw
Bestaande bouw
Bouwjaar
1940
Onderhoud binnen
Redelijk
Onderhoud buiten
Goed

Oppervlakten en inhoud

Woonoppervlakte
53m²
Inhoud
215m³

Indeling

Aantal kamers
2
Aantal slaapkamers
1
Aantal badkamers
1
Aantal verdiepingen
1

Energie

Energielabel
C
Isolatie
Gedeeltelijk dubbel glas
Warm water
C.V.-ketel
Verwarming
C.V.-ketel
Ketel
Remeha (2007, Combi-ketel, Eigendom)

Buitenruimte

Ligging
In centrum, In woonwijk
Tuin
Achtertuin
Achtertuin
Zuidoost, 54m², 601×902cm

Garage

Plattegronden

Bekijk verloop van de zon

Uw browser ondersteunt geen WebGL

Afspraak of contact

Wilt u meer weten over deze woning of een bezichtiging plannen? Bel of mail ons of vul het formulier in.


Uw bericht is naar ons verzonden. Wij nemen zo snel mogelijk contact met u op.

Er is iets mis gegaan met het versturen van het formulier.
Controleer of u alle velden (goed) heeft ingevoerd en probeer het nog een keer.

recaptcha
reCAPTCHA
PrivacyTerms

Heeft u een vraag?
Bel ons (070) 365 00 00
of mail info@joostvanvliet.nl