Van Alkemadelaan 602, Benoordenhout
Gelegen in het markante appartementencomplex ‘Groenendaal 2’ op de 3e TOP-etage, een bijzonder ruim appartement (ca. 134 m2) voorzien van lichte woon/eetkamer, 3 slaapkamers, 2 badkamers, dichte keuken, 2 zonnige balkons op het zuidwesten en berging in de onderbouw.
Centraal gelegen in het groene Benoordenhout op loopafstand van Landgoed Clingendael, winkelcentrum Willem Royaardsplein en op fietsafstand van de Haagse binnenstad, Centraal Station en badplaats Scheveningen.
INDELING:
Afgesloten hoofdentree met bellen- en brievenbussentableau, via fraai trappenhuis of 2 liften naar de 3e verdieping, gang, entree van het appartement aan het einde gelegen.
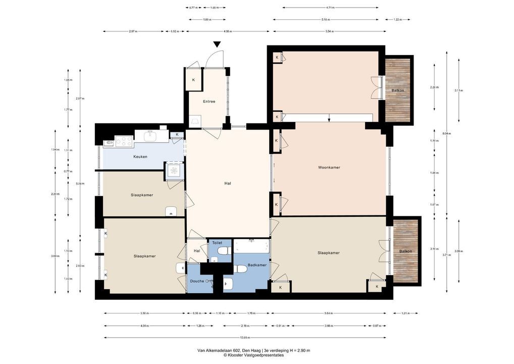
Entree appartement, ruime vestibule, tochtdeur naar de centrale ruime hal met toegang tot alle vertrekken. Via schuifdeuren toegang tot de, aan de achterzijde gelegen, lichte woon/eetkamer voorzien van meerdere vaste kasten en openslaande deuren naar het zonnige balkon, gelegen op het zuidwesten, met vrij uitzicht.
Ruime achterslaapkamer met 2 vaste kasten, openslaande deuren naar riant balkon, tevens gelegen op het zuidwesten, annex geheel betegelde badkamer voorzien van ligbad met douche, toilet en wastafel.
Vanuit de centrale hal toegang tot het separate toilet met fontein, douche en lichte voorslaapkamer met wastafel. Tussengelegen slaapkamer met wastafel en vrije doorkijk naar de Van Neckstraat.
Dichte eenvoudige keuken aan de voorzijde met diverse apparatuur en opstelplaats cv-ketel.
Eigen berging en gemeenschappelijke fietsenstalling in de onderbouw.
Voor de afmetingen van de kamers verwijzen wij u naar de plattegronden.
BIJZONDERHEDEN
Het appartement is gelegen op eigen grond.
Aanvaarding in overleg.
Rioolheffing 2025 € 191,15 per jaar.
285/7.763ste aandeel in de gemeenschap.
Actieve Vereniging van Eigenaren, bijdrage € 525,90 per maand inclusief warm en koud water.
Verwarming middels c.v.-combiketel, merk Vaillant, bouwjaar 2011. Warmwatervoorziening middels c.v.-combiketel.
De onderhoudssituatie van het sanitair en de keuken is redelijk.
De onderhoudssituatie binnen is redelijk/goed en buiten goed.
Het appartement is voorzien van kunststof kozijnen met HR++ glas.
Rijksbeschermd stadsgezicht.
Verkoper heeft de woning nooit zelf feitelijk gebruikt.
Koper is vrij in notariskeuze, echter wel in regio Haaglanden.
De lood- /asbest- en ouderdomsclausules zijn van toepassing.
Bouwjaar 1932.
Woonoppervlakte ca. 134 m².
De inhoud van het appartement is ca. 485 m³.
Model NVM-koopakte van toepassing.
NABIJ
Winkels aan het Willem Royaardsplein en de Haagse binnenstad.
Duinen, strand en zee, landgoed Clingendael, badplaats Scheveningen, restaurants en musea, openbaar vervoer en uitvalswegen.
Nabij diverse sportfaciliteiten.
KADASTRALE INFORMATIE
Gemeente : ‘s-Gravenhage
Sectie : X
Nummer : 5303
Appartementsindex : -51
De Meetinstructie is gebaseerd op de NEN2580. De Meetinstructie is bedoeld om een meer eenduidige manier van meten toe te passen voor het geven van een indicatie van de gebruiksoppervlakte. De Meetinstructie sluit verschillen in meetuitkomsten niet volledig uit, door bijvoorbeeld interpretatieverschillen,afrondingen of beperkingen bij het uitvoeren van de meting.
Interesse in dit huis? Schakel direct uw eigen NVM-aankoopmakelaar in.
Uw NVM-aankoopmakelaar komt op voor uw belang en bespaart u tijd, geld en zorgen.
Adressen van collega NVM-aankoopmakelaars in Haaglanden vindt u op Funda.
****************************************
Located in the striking apartment complex "Groenendaal 2" on the third top floor, this exceptionally spacious apartment (approx. 134 m²) features a bright living/dining room, three bedrooms, two bathrooms, a separate kitchen, two sunny southwest-facing balconies, and a storage unit in the basement.
Centrally located in the leafy Benoordenhout neighborhood, within walking distance of the Clingendael Estate, the Willem Royaardsplein shopping center, and within cycling distance of The Hague City Center, Central Station, and the seaside resort of Scheveningen.
LAY-OUT
Closed main entrance with doorbells and mailboxes, accessible via a beautiful staircase or two elevators to the third floor, hallway, and apartment entrance at the end.
Apartment entrance, spacious vestibule, and a door leading to the spacious central hall with access to all rooms. Sliding doors lead to the bright living/dining room at the rear, featuring several built-in wardrobes and French doors leading to the sunny southwest-facing balcony with unobstructed views.
Spacious rear bedroom with two built-in wardrobes and French doors leading to a large southwest-facing balcony. Adjacent fully tiled bathroom with a bathtub with shower, toilet, and wash basin.
From the central hall, access to the separate toilet, shower, and bright front bedroom with a vanity. A bedroom in the middle has a wash basin and an unobstructed view of Van Neckstraat.
Closed simple kitchen at the front with various appliances and central heating boiler.
Private storage and communal bicyclestorage in the basement.
For the dimensions of the rooms please refer to the floor plans.
SPECIAL FEATURES
The property is freehold.
Acceptance in agreement.
Sewerage charges 2025 € 191,15 per year.
285/7.763rd share in the community.
Active Owners Association, contribution € 525,90 per month including warm and cold water.
Central heating system, brand Vaillant, model 2011.
Hot water supply by central heating system.
The condition of kitchen and bathroom is reasonable.
The condition of the interior is reasonable/good and of the exterior good.
The apartment has synthetic window frames with HR++ glazing.
Listed as a nationally building within the meaning of the Heritage Act (rijksbeschermd stadsgezicht)
Seller has the apartment itself never actually used.
The buyer is free to choose a notary, but must be located in the Haaglanden region.
The lead-/asbestos and age clauses will be applied.
Built in 1932.
Living surface approx. 134 m².
The volume of the apartment approx. 485 m³.
NVM model deed applicable.
NEAR
Shops at the Willem Royaardsplein and City center.
Clingendael Estate, Harbor of Scheveningen, restaurants and museums.
Public transport and main roads.
Close to sport facilities.
The measurement instruction is based on NEN2580. The measurement instruction is intended to apply a more uniform way of measuring for giving an indication of the use surface. The measurement instruction can not completely close differences in measurement results, for example by differences in interpretation, rounding or limitations in the performance of the measurement.

Wilt u meer weten over deze woning of een bezichtiging plannen? Bel of mail ons of vul het formulier in.
Heeft u een vraag?
Bel ons (070) 365 00 00
of mail info@joostvanvliet.nl