Sleedoornstraat 54, Bomenbuurt
Prachtig verbouwde 2 laags bovenwoning voorzien van 4 ruime slaapkamers, kleedkamer en 2 badkamers, 2 zonnige balkons en een zonneterras. Voormalige topetage en dakopbouw met grote dagopeningen waardoor het buitengewoon licht is.
In een rustige straat gelegen nabij de winkels van de gezellige Fahrenheitstraat, op fietsafstand van het bos, het strand, de zee en duinen en de Frederik Hendriklaan.
INDELING:
Fraai open portiek, entree met originele voordeur op de 1e verdieping. Vestibule met garderobe en ruimte onder de trap voor bijvoorbeeld fietsen, trap naar de 2e verdieping, ruime gang met zandkleurige vloertegels, kastruimte boven het trappengat, waskamer met hangkasten en de cv combiketel (Nefit 2022), modern toilet met fontein, moderne badkamer met inloop (stort)douche en badkamermeubel, een vierkante voorslaapkamer met groot raam en vrij uitzicht naar de Sportlaan, lichte achter slaapkamer voorzien van kastenwand en openslaande deuren naar een balkon, tussengelegen moderne 2e badkamer met inloop (stort)douche, ligbad en badkamermeubel, achter slaapkamer annex groot (deels) overdekt balkon met een open doorgang naar een (tussen)kleedkamer en voorslaap/werkkamer met zandstenen schouw voorzien van gas openhaard. De slaapkamers zijn voorzien van houten vloerdelen.
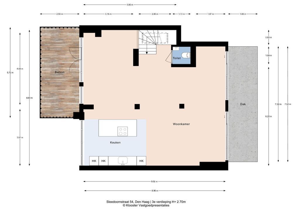
3e VERDIEPING:
Prachtige woonkamer met een dakraam boven de trap, zandkleurige grote vloertegels, modern toilet met fontein en luxe open keuken voorzien van een kookeiland en keukenblok voorzien van inductie kookplaat (Bora), vaatwasser, wijnkast, oven, koel/vrieskast (3 laden) en een composiet aanrechtblad met een marmer look. De voorzijde van deze dakopbouw is vrijwel van glas waardoor er een fantastisch vrij uitzicht is naar de Sportlaan. Aan de achterzijde openslaande deuren naar een zonnig dakterras met uitzicht van de skyline van Den Haag. De gehele verdieping heeft vloerverwarming.
Voor de afmetingen van de kamers verwijzen wij u naar de plattegronden.
BIJZONDERHEDEN
Gelegen op eeuwigdurende erfpachtgrond, waarvan de canon is afgekocht.
Aanvaarding in overleg.
Rioolheffing 2026 € 195,40 per jaar.
202/800ste aandeel in de gemeenschap.
Actieve Vereniging van Eigenaren, bijdrage € 252,50 per maand.
Elektra 8 groepen + 2 x 2 fase + hoofschakelaar met aardlekschakelaar.
Verwarming middels c.v.-combiketel, merk Nefit, bouwjaar 2022. Warmwatervoorziening middels c.v.-combiketel.
De onderhoudssituatie van het sanitair en de keuken is goed/uitstekend.
De onderhoudssituatie binnen en buiten is goed/uitstekend.
De dakopbouw is volledig geïsoleerd.
Het appartement is voorzien van houten kozijnen met HR ++ glas.
Koper is vrij in notariskeuze, echter wel in regio Haaglanden.
De lood- /asbest- en ouderdomsclausules zijn van toepassing.
Bouwjaar 1921.
Woonoppervlakte ca. 180 m².
De inhoud van het appartement is ca. 645 m³.
Model NVM-koopakte van toepassing.
NABIJ
Winkels aan de Fahrenheitstraat, Thomsonlaan, Goudsbloemlaan, Frederik Hendriklaan en Haagse binnenstad.
Bosjes van Poot, duinen, strand en zee, Haven van Scheveningen, restaurants en musea.
Openbaar vervoer, (RandstadRail lijn 3, tramlijn 12, bus 24), uitvalswegen via Hubertustunnel en Westlandroute.
Nabij Europese en/of International School of The Hague, basisscholen en diverse sportfaciliteiten.
KADASTRALE INFORMATIE
Gemeente : ‘s-Gravenhage
Sectie : AN
Nummer : 5895
Appartementsindex : -7
De Meetinstructie is gebaseerd op de NEN2580. De Meetinstructie is bedoeld om een meer eenduidige manier van meten toe te passen voor het geven van een indicatie van de gebruiksoppervlakte. De Meetinstructie sluit verschillen in meetuitkomsten niet volledig uit, door bijvoorbeeld interpretatieverschillen,afrondingen of beperkingen bij het uitvoeren van de meting.
Interesse in dit huis? Schakel direct uw eigen NVM-aankoopmakelaar in.
Uw NVM-aankoopmakelaar komt op voor uw belang en bespaart u tijd, geld en zorgen.
Adressen van collega NVM-aankoopmakelaars in Haaglanden vindt u op Funda.
#####################################
Beautifully renovated 2-story upper apartment featuring 4 spacious bedrooms, dressing room and 2 bathrooms, 2 sunny balconies and a sun terrace. Former top floor and roof extension with large windows, making it exceptionally bright.
Located in a quiet street near the shops of the charming Fahrenheitstraat, within cycling distance of the forest, the beach, the sea and dunes, and the Frederik Hendriklaan.
LAY-OUT
Beautiful open porch, entrance with original front door on the 1st floor. Vestibule with wardrobe and space under the stairs for, for example bicycles, stairs to the 2nd floor, spacious hallway with sand-colored floor tiles; cupboard space above the stairwell, laundry room with wall-mounted cabinets and the central heating combi boiler (Nefit 2022), modern toilet with hand basin, modern bathroom with walk-in (rain) shower and vanity unit, a square front bedroom with a large window and unobstructed view over the Sportlaan, bright rear bedroom featuring a wall of wardrobes and French doors to a balcony; intermediate modern 2nd bathroom with walk-in (rain)shower, bathtub and vanity unit, rear bedroom with a large, partially covered balcony and an open passageway to an (intermediate) dressing room; front bedroom/study with a sandstone fireplace with a gas fireplace. The bedrooms have wooden floorboards.
SECOND FLOOR
Beautiful living room with a skylight above the stairs, large sand-colored floor tiles, a modern toilet with a hand basin and a luxurious open kitchen featuring a kitchen island and a kitchen unit equipped with an induction hob (Bora), dishwasher, wine cabinet, oven, fridge/freezer (3 drawers) and a composite countertop with a marble look. The front of this rooftop extension is almost entirely made of glass, providing a fantastic unobstructed view over the Sportlaan. At the rear, French doors open onto a sunny roof terrace with a view of The Hague skyline. The entire floor features underfloor heating.
For the dimensions of the rooms please refer to the floor plans.
SPECIAL FEATURES
Eternal lease-hold land which the rent charge has been bought off.
Acceptance in agreement.
Sewerage charges 2026 € 195,40 per year.
202/800th share in the community.
Active Owners Association, contribution € 252,50 each month.
Electricity 8 groups + 2 x 2 fase + 3 fase + hoofdschakelaar with circuit breaker.
Central heating system, brand Nefit, model 2022.
Hot water supply by central heating system.
The condition of the bathroom and the kitchen is good/excellent.
The condition of the interior and exterior is good/excellent.
The rooftop extension is fully insulated.
The apartment has wooden window frames with HR++ glazing.
The buyer is free to choose a notary, but must be in the Haaglanden region.
The lead-/asbestos and age clauses will be applied.
Built in 1921.
Living surface approx. 180 m².
The volume of the apartment approx. 645 m³.
NVM model deed applicable.
NEAR
Shops at the Fahrenheitstraat, Thomsonlaan, Goudsbloemlaan, Frederik Hendriklaan and City Center of The Hague.
Bosjes van Poot, dunes, beach and sea, Harbor of Scheveningen, restaurants and museums.
Public transport (RandstadRail Line 3, Tram Line 12 and Bus 24) and main roads through Westland Road and Hubertustunnel.
Close to European- and International School of The Hague, various schools and sport facilities.
The measurement instruction is based on NEN2580. The measurement instruction is intended to apply a more uniform way of measuring for giving an indication of the use surface. The measurement instruction can not completely close differences in measurement results, for example by differences in interpretation, rounding or limitations in the performance of the measurement.



Wilt u meer weten over deze woning of een bezichtiging plannen? Bel of mail ons of vul het formulier in.
Heeft u een vraag?
Bel ons (070) 365 00 00
of mail info@joostvanvliet.nl
