Sijzenlaan 61, Vogelwijk
Prachtige karakteristieke 2-onder-1 kapwoning (woonoppervlakte ca. 161 m²), gunstig gelegen op een kaveloppervlakte van ca. 358 m² en voorzien van een riante zonnige en fraaie aangelegde tuin aan 3 zijden met vrijstaande garage.
Uniek gelegen nabij strand, zee en duinen, diverse scholen (o.a. Europese en International School of the Hague), Bosjes van Pex met verschillende sportfaciliteiten, Bosjes van Poot, winkels en horeca aan de Goudsbloemlaan en Fahrenheitstraat, badplaats Kijkduin, openbaar vervoer en diverse uitvalswegen.
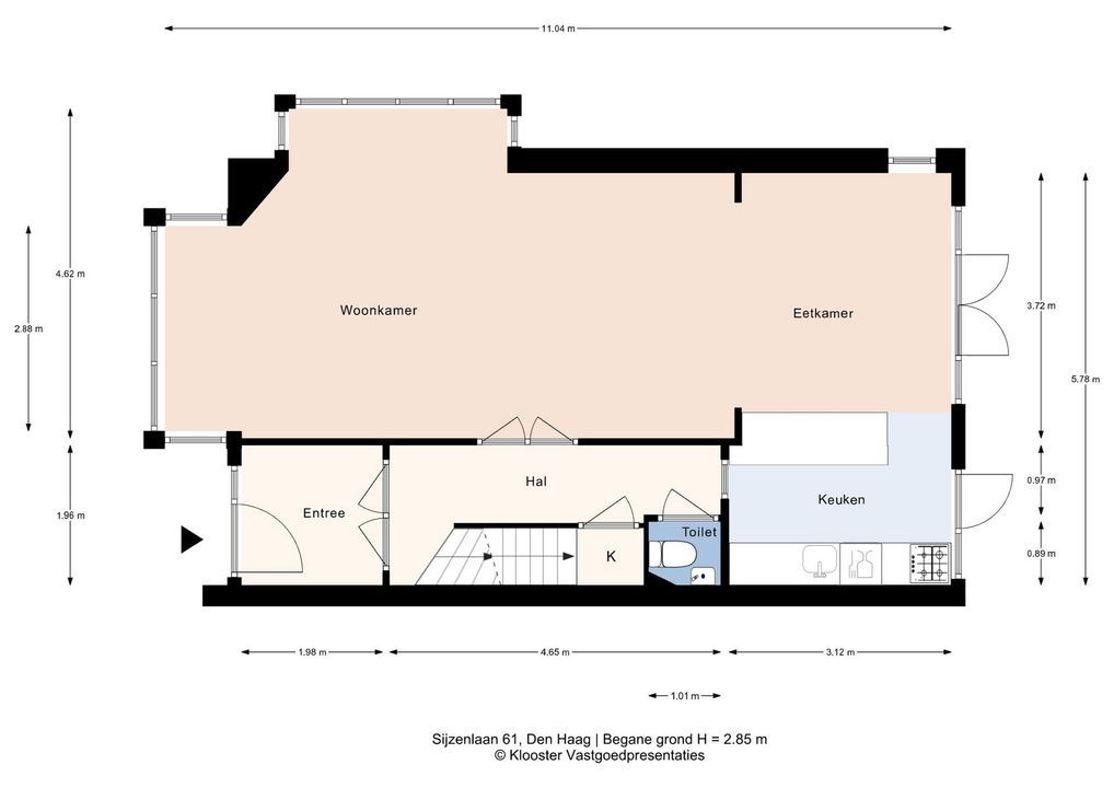
INDELING
Via ruime voortuin, entree van de woning met luifel, klassieke voordeur met glas in lood lichten, vestibule met openslaande deuren en marmeren vloertegels doorgelegd in de gang, separaat geheel betegeld toilet met fontein en toegang tot de riante kelder.
Via openslaande deuren toegang tot de riante woon-/eetkamer voorzien van een fraaie houten vloer met convector put, veel lichtinval door de voor- en zijerker met fraaie glas in lood bovenlichten en een goed onderhouden halfopen keuken voorzien van een 4-pits gasfornuis, afzuigkap, inbouwvaatwasser en 2 koelkasten met 1 vriesvak.
Via openslaande deuren aan de achterzijde vanuit de zijerker en keukendeur toegang tot de riante, zonnige en fraai aangelegde tuin voorzien van een eigen oprit en een vrijstaande garage met elektra.
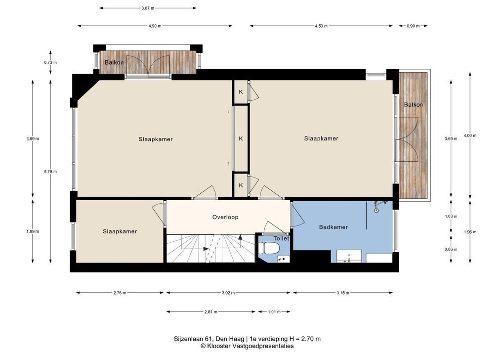
1e VERDIEPING
Overloop, 2e separaat toilet, aan de achterzijde gelegen geheel betegelde badkamer voorzien van ruime inloopdouche, wastafelmeubel en handdoekradiator.
Ruime achterslaapkamer voorzien van 2 vaste kasten, een zijraam en openslaande deuren naar het achterbalkon, gelegen op het noordwesten.
Lichte voorslaapkamer met kastenwand en openslaande deuren naar het karakteristieke zijbalkon, gelegen op het zuidwesten, voorzijkamer.
2e VERDIEPING
Overloop, separate ruimte met aansluitingen voor wasmachine en droger, opstelplaats cv-ketel en opbergruimte. Ruime achterslaapkamer voorzien van dakkapel, zijraam en vaste kast en voorslaapkamer met dakkapel, vaste kast en wastafel.
Voor de afmetingen van de kamers verwijzen wij u naar de plattegronden.
BIJZONDERHEDEN
Gelegen op eeuwigdurende erfpachtgrond. De canon bedraagt € 1.939,22 per jaar, gebaseerd op een grondwaarde van € 46.172,-- (=afkoopsom) en een canonpercentage van 4,2 %. Herziening canonpercentage per 1 juli 2029.
Aanvaarding in overleg.
Rioolheffing 2025 € 191,15.
Elektra 10 groepen met 2 aardlekschakelaars.
Verwarming middels c.v.-combiketel, merk Remeha, bouwjaar 2020.
Warmwatervoorziening middels c.v.-combiketel.
De onderhoudssituatie van het sanitair en de keuken is goed.
De onderhoudssituatie zowel binnen als buiten is goed.
De gehele woning is voorzien van houten kozijnen met HR ++ glas en gedeeltelijk dubbel glas.
Gemeentelijk beschermd stadsgezicht.
Geen olietank. KIWA-certificaat aanwezig.
Koper is vrij in notariskeuze, echter wel in regio Haaglanden.
De lood- /asbest- en ouderdomsclausules zijn van toepassing.
Bouwjaar 1930.
Woonoppervlakte ca. 161 m².
De inhoud van de woning is ca. 630 m³.
De woning is bouwkundig gekeurd.
Model NVM-koopakte van toepassing.
NABIJ
Winkels aan het de Savornin Lohmanplein, Goudsbloemlaan, Fahrenheitstraat en op fietsafstand van de Haagse binnenstad en Frederik Hendriklaan.
Badplaats Nieuw Kijkduin, Bosjes van Poot, Bosjes van Pex en op steenworp afstand van duinen, strand en zee!!
Openbaar vervoer, (RandstadRail lijn 3, tramlijn 12, bus 24), uitvalswegen via Westlandroute en Hubertustunnel.
Nabij International School of The Hague, European School of The Hague, basisscholen en diverse sportfaciliteiten.
KADASTRALE INFORMATIE:
Gemeente : ‘s-Gravenhage
Sectie : AO
Nummer : 1566
Grootte : 3 are 58 centiare
De Meetinstructie is gebaseerd op de NEN2580. De Meetinstructie is bedoeld om een meer eenduidige manier van meten toe te passen voor het geven van een indicatie van de gebruiksoppervlakte. De Meetinstructie sluit verschillen in meetuitkomsten niet volledig uit, door bijvoorbeeld interpretatieverschillen, afrondingen of beperkingen bij het uitvoeren van de meting.
Interesse in dit huis? Schakel direct uw eigen NVM-aankoopmakelaar in.
Uw NVM-aankoopmakelaar komt op voor uw belang en bespaart u tijd, geld en zorgen.
Adressen van collega NVM-aankoopmakelaars in Haaglanden vindt u op Funda.
#########################################
Beautiful, characteristic semi-detached house (living area approx. 161 m²), conveniently situated on a plot of approximately 358 m² and featuring a spacious, sunny, and beautifully landscaped garden on three sides with a detached garage.
Uniquely located near the beach, sea, and dunes, various schools (including the European and International Schools of The Hague), Bosjes van Pex with various sports facilities, Bosjes van Poot, shops and restaurants on Goudsbloemlaan and Fahrenheitstraat, the seaside resort of Kijkduin, public transport, and various arterial roads.
LAYOUT
Through a spacious front garden, the house entrance with an awning, a classic front door with stained glass windows, a vestibule with French doors and marble floor tiles extending into the hallway, a separate fully tiled toilet with a hand basin, and access to the spacious basement.
French doors lead into the spacious living/dining room, featuring beautiful wooden flooring with a convector pit, abundant natural light from the front and side bay windows with beautiful stained-glass skylights, and a well-maintained semi-open kitchen equipped with a 4-burner gas stove, extractor hood, built-in dishwasher and two refrigerators with one freezer compartment.
French doors at the rear, from the side bay window and kitchen door, lead to the spacious, sunny, and beautifully landscaped garden with a private driveway and a detached garage with electricity.
FIRST FLOOR
Landing, second separate toilet, fully tiled bathroom at the rear with a spacious walk-in shower, vanity, and heated towel rail.
Spacious rear bedroom with two built-in wardrobes, a side window, and French doors leading to the northwest-facing rear balcony.
Bright front bedroom with a wall of wardrobes and French doors leading to the characteristic southwest-facing side balcony, front side room.
SECOND FLOOR
Landing, separate room with connections for a washing machine and dryer, central heating boiler, and storage space. Spacious rear bedroom with a dormer window, side window, and built-in wardrobe, and front bedroom with a dormer window, built-in wardrobe, and wash basin.
- For the dimensions of the rooms please refer to the floor plans.
SPECIAL FEATURES
Eternal lease-hold land. The rent charge is € 1,939.22 per year, based on a land value of € 46.172,-- (= redemption) and a rent rate of 4,2%. Review rent rates by 1 July 2029.
Acceptance in agreement.
Sewage charges 2025 € 191,15.
Electricity 10 groups with 2 circuit breakers.
Central heating system, brand Remeha, built in 2020.
Hot water supply by central heating system.
The condition of the bathroom and the kitchen is good.
The condition of the interior as well as the exterior is good.
The house has wooden window frames with HR++ and partly double glazing.
Part of the conservation area of the village or town.
No oil tank. KIWA certificate available.
The buyer is free to choose a notary, but must be located in the Haaglanden region.
The lead-/asbestos and age clauses will be applied.
Built in 1930.
Living surface approx. 161 m².
The volume of the house approx. 630 m³.
Technical survey available.
NVM model deed applicable.
NEAR
Shops at the Savornin Lohmanplein, Goudsbloemlaan, Fahrenheitstraat and within cycling distance of downtown The Hague, and Frederick Hendriklaan.
Seaside resort Nieuw Kijkduin, “Bosjes van Poot”, “Bosjes van Pex” and steps away from the dunes, beach and sea !!
Public transport (RandstadRail Line 3, tram 12, bus 24), main roads through Westland Road and Hubertustunnel.
Near International School of The Hague, European School of The Hague, primary schools and various sports facilities.
The measurement instruction is based on NEN2580. The measurement instruction is intended to apply a more uniform way of measuring for giving an indication of the use surface. The measurement instruction can not completely close differences in measurement results, for example by differences in interpretation, rounding or limitations in the performance of the measurement.





Wilt u meer weten over deze woning of een bezichtiging plannen? Bel of mail ons of vul het formulier in.
Heeft u een vraag?
Bel ons (070) 365 00 00
of mail info@joostvanvliet.nl


