Segbroeklaan 424 J, Bomenbuurt
Licht en ruim 4-kamer hoekappartement gelegen op de 3e verdieping met zonnig balkon, berging op maaiveld niveau, belanghebbende parkeren en vrij uitzicht op het Rode Kruisplantsoen. De woning dient inwendig gemoderniseerd te worden.
INDELING:
Gesloten verzorgd portiek met videofoon systeem en een fietsenberging op maaiveld niveau. Met lift of trap naar de 3e verdieping.
Entree appartement, centrale hal, meterkast, garderobekast, ruim toilet met fontein.
Badkamer met inloopdouche en wastafel, achterslaapkamer annex zonnig balkon, tussengelegen keuken met een gedateerd keukenblok en tevens toegang naar het balkon welke voorzien is van een balkonkast.
Lichte kamer en suite voorzien van 2 zijramen, schouw van travertin en bijgetrokken voorslaapkamer.
Door de hoekligging prachtig uitzicht op het Segbroekplantsoen.
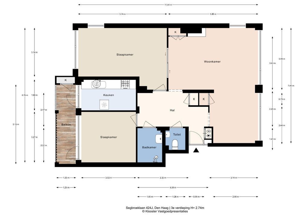
Voor de afmetingen van de kamers verwijzen wij u naar de plattegronden.
BIJZONDERHEDEN
Gelegen op erfpachtgrond, eindigende per 31 december 2027. De canon bedraagt € 75,60 per jaar.
Een vervroegde heruitgifte erfpacht is reeds aangevraagd bij de Gemeente Den Haag. Kosten hiervan komen voor rekening van koper.
Aanvaarding in overleg.
Rioolheffing 2026 € 195,40 per jaar.
1/73ste aandeel in de gemeenschap.
Actieve Vereniging van Eigenaren, bijdrage € 305,-- per maand + voorschot stookkosten € 120,-- per maand.
Elektra 3 groepen zonder aardlekschakelaar.
Verwarming middels blokverwarming.
Warmwatervoorziening middels elektrische boiler (eigendom).
De onderhoudssituatie van het sanitair en de keuken is redelijk.
De onderhoudssituatie binnen is redelijk en buiten goed.
Het appartement is aan de voorzijde voorzien van houten kozijnen met dubbel glas en de achterzijde is voorzien van kunststof kozijnen met HR++ glas en houten kozijnen met enkel glas.
Naar ontwerp van architectenbureau J.Wils en F. Ottenhof.
Kenmerkend van de bouwkwaliteit zijn de zogeheten Estrich vloeren, welke overlopen in de muren waardoor de kimnaden afgedicht zijn.
Gemeentelijk beschermd stadsgezicht Sportlaan-Segbroeklaan.
Verkoper heeft de woning nooit zelf feitelijk gebruikt, derhalve is de niet-bewonersclausule van toepassing.
Koper is vrij in notariskeuze, echter wel in regio Haaglanden.
De lood- /asbest- en ouderdomsclausules zijn van toepassing.
Bouwjaar 1960.
Woonoppervlakte ca. 93 m².
De inhoud van het appartement is ca. 320 m³.
Model NVM-koopakte van toepassing.
NABIJ
Winkels aan de Fahrenheitstraat, Thomsonlaan, Goudsbloemlaan,
Frederik Hendriklaan en Haagse binnenstad.
Bosjes van Pex, duinen, strand en zee, Badplaats Kijkduin, Haven van Scheveningen, restaurants en musea.
Openbaar vervoer, (RandstadRail lijn 3, bus 24), uitvalswegen via Hubertustunnel en Westlandroute.
Nabij Europese en/of International School of The Hague, basisscholen en diverse sportfaciliteiten.
KADASTRALE INFORMATIE
Gemeente : ’s-Gravenhage
Sectie : AN
Nummer : 5478
Appartementsindex : -69
De Meetinstructie is gebaseerd op de NEN2580. De Meetinstructie is bedoeld om een meer eenduidige manier van meten toe te passen voor het geven van een indicatie van de gebruiksoppervlakte. De Meetinstructie sluit verschillen in meetuitkomsten niet volledig uit, door bijvoorbeeld interpretatieverschillen,afrondingen of beperkingen bij het uitvoeren van de meting.
Interesse in dit huis? Schakel direct uw eigen NVM-aankoopmakelaar in.
Uw NVM-aankoopmakelaar komt op voor uw belang en bespaart u tijd, geld en zorgen.
Adressen van collega NVM-aankoopmakelaars in Haaglanden vindt u op Funda.
###############################################################
Bright and spacious 4-room corner apartment located on the 3rd floor with a sunny balcony, ground-level storage, private parking, and unobstructed views of the Rode Kruisplantsoen. The apartment requires internal modernization.
LAYOUT
Enclosed, well-maintained porch with a video intercom system and bicycle storage at ground level. Elevator or stairs to the 3rd floor.
Apartment entrance, central hall, meter cupboard, wardrobe, spacious toilet with hand basin.
Bathroom with walk-in shower and sink, rear bedroom with access to a sunny balcony, and a kitchen with a dated kitchen unit and access to the balcony, which also features a balcony cupboard.
Bright en-suite room with two side windows, a travertine fireplace, and an adjoining front bedroom.
The corner location offers a beautiful view of the Segbroekplantsoen.
For the dimensions of the rooms please refer to the floor plans.
SPECIAL FEATURES
Situated on lease-hold land, ending at 31 December 2027. The rent charge is
€ 75.60 per year.
An early offer of the ground lease from the Municipality of The Hague for the purpose of the mortgage is already requested. The costs for this requested will be for account of the buyer.
Acceptance in agreement.
Sewerage charges 2026 € 195,40 per year.
1/73rd share in the community.
Active Owners Association, contribution € 305.-- monthly + advanced payment heating costs € 120.00 monthly.
Electricity 3 groups without circuit breaker.
Central heating system via block heating.
Hot water supply by electric water heater (owned).
The condition of the bathroom and the kitchen is reasonable.
The condition of the interior is reasonable and the exterior good.
The apartment has at the front wooden window frames with double glazing and at the rear synthetic window frames with HR++ glazing and wooden window frames with single glazing.
Designed by the architectural firm J. Wils and F. Ottenhof.
The quality of the construction is characterized by the so-called screed floors, which extend into the walls where the joints are sealed.
Part of the conservation area of the village or town ( Sportlaan-Segbroeklaan).
Seller has the apartment itself never actually used, therefore the non-resident clause applies.
The buyer is free to choose a notary, but must be located in the Haaglanden region.
The lead-/asbestos and age clauses will be applied.
Built in 1960.
Living surface approx. 93 m².
The volume of the apartment approx. 320 m³.
NVM model deed applicable.
NEAR
Shops on the Fahrenheitstraat, Thomsonlaan, Goudsbloemlaan,
Frederik Hendriklaan and Center of The Hague.
Bosjes van Pex, dunes, beach and sea, Boulevard of Kijkduin, Harbor of Scheveningen, restaurants and museums.
Public transport (RandstadRail Line 3, Bus 24) and main roads through Westland Road and Hubertustunnel.
Close to European- and International School of The Hague, various schools and sport facilities.
The measurement instruction is based on NEN2580. The measurement instruction is intended to apply a more uniform way of measuring for giving an indication of the use surface. The measurement instruction can not completely close differences in measurement results, for example by differences in interpretation, rounding or limitations in the performance of the measurement.


Wilt u meer weten over deze woning of een bezichtiging plannen? Bel of mail ons of vul het formulier in.
Heeft u een vraag?
Bel ons (070) 365 00 00
of mail info@joostvanvliet.nl

