Rozenstraat 91, Bloemenbuurt
In de gezellige Bloemenbuurt gelegen charmante 2-laags eengezinswoning met 4 slaapkamers, voor- en achtertuin en 9 zonnepanelen. Deze uitstekend onderhouden woning ligt om de hoek van het Stokroosveld, de winkels van de Goudsbloemlaan en per auto zijn de uitvalswegen zo bereikt. Erfpacht is afgekocht!
Een heerlijke gezinswoning met eventueel potentie voor een dakopbouw!
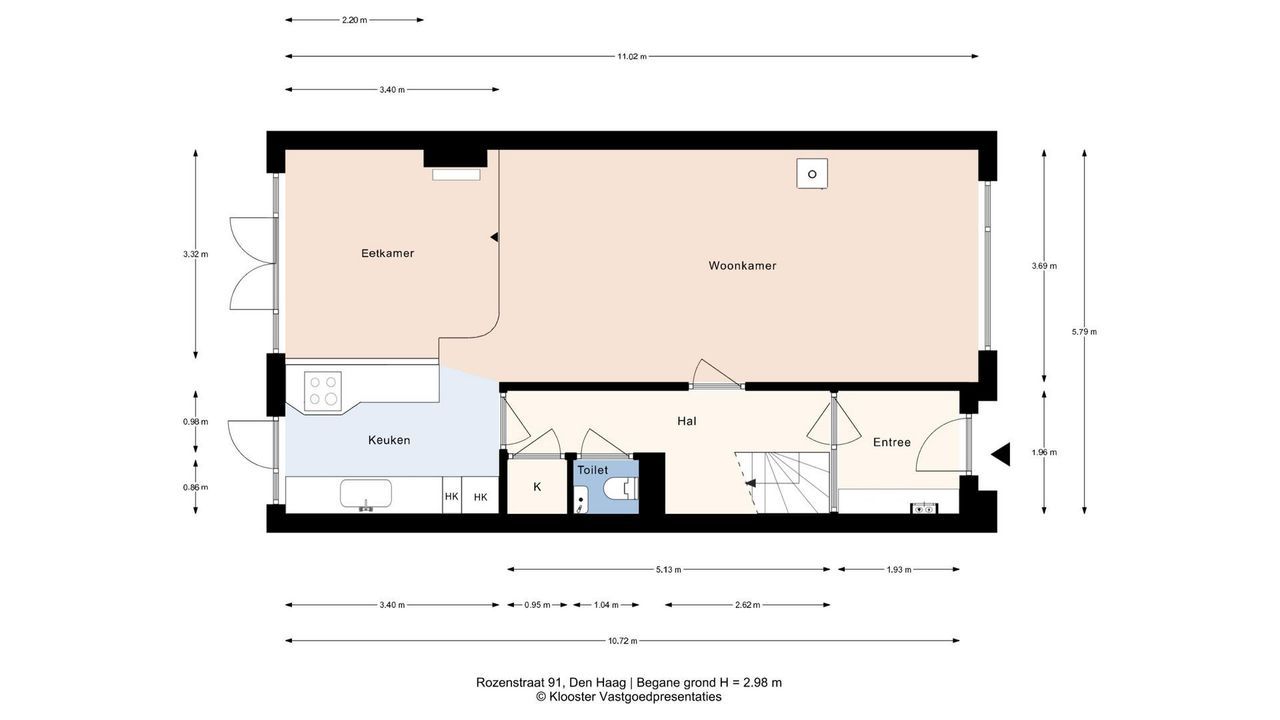
INDELING
Via de verzorgde voortuin naar entree van de woning, hal met tochtdeur, gang, modern vrij hangend toilet met vloerverwarming en fontein, vaste kast.
Sfeervolle lichte woon-/eetkamer voorzien van houtkachel, gashaard, infrarood paneel en een kurkvloer, tevens een verhoogde vloer aan de achterzijde van de woon-/eetkamer, alsmede de open keuken welke voorzien is van diverse inbouwapparatuur zoals, combi oven/magnetron, inductie kookplaat, afzuigkap, vaatwasser, koelkast en via deur en dubbele deuren naar de fraaie beschutte achtertuin (noordoosten) met houten schuur.
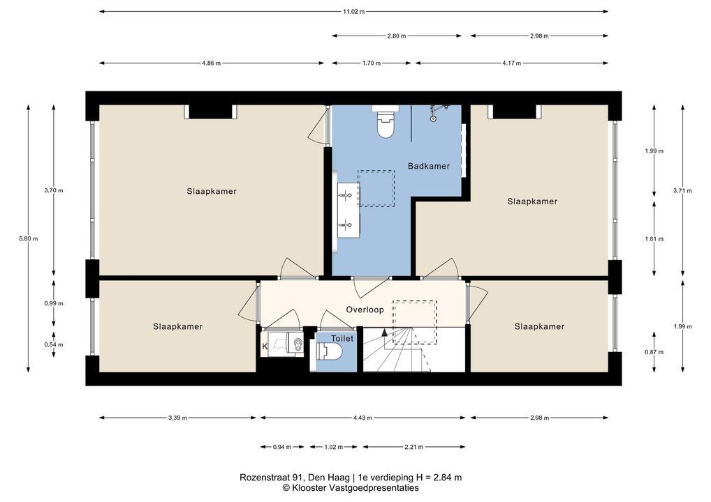
1e VERDIEPING
Overloop voorzien van dakraam, modern vrij hangend toilet voorzien van vloerverwarming, vaste kast met opstelplaats c.v.-ketel en aansluiting voor de wasmachine.
Tussengelegen ruime luxe badkamer voorzien van inloopdouche met glazen wand, bidet, dubbele wastafel, spiegel met ledverlichting en verwarming, vloerverwarming en handdoeken radiator.
Deze verdieping heeft 4 slaapkamers, waarvan 2 zeer ruime slaapkamers en 2 kleinere slaapkamers.
Voor de afmetingen van de kamers verwijzen wij u naar de plattegronden.
BIJZONDERHEDEN
Gelegen op eeuwigdurende erfpachtgrond, waarvan de canon is afgekocht.
Aanvaarding in overleg.
Rioolheffing 2025 € 191,15.
Elektra 10 groepen met aardlekschakelaar.
Verwarming middels c.v.-combiketel, merk Nefit, bouwjaar 2014.
Warmwatervoorziening middels c.v.-combiketel.
De onderhoudssituatie van het sanitair en de keuken is goed.
De onderhoudssituatie is binnen en buiten goed.
De gehele woning is voorzien van kunststof kozijnen met dubbel glas.
9 zonnepanelen aanwezig.
Koper is vrij in notariskeuze, echter wel in regio Haaglanden.
De lood- /asbest- en ouderdomsclausules zijn van toepassing.
Bouwjaar ca. 1924.
Woonoppervlakte ca. 127 m².
De inhoud van de woning is ca. 485 m³.
De woning is bouwkundig gekeurd.
Model NVM-koopakte van toepassing.
NABIJ
Winkels aan de Goudsbloemlaan, Fahrenheitstraat, Thomsonlaan Frederik Hendriklaan, het De Savornin Lohmanplein en Haagse binnenstad.
Bosjes van Pex, duinen, strand en zee, Badplaats Kijkduin, Haven van Scheveningen, restaurants en musea.
Openbaar vervoer, (RandstadRail lijn 3, tramlijn 12, bus 24), uitvalswegen via Hubertustunnel en Westlandroute.
Nabij Europese en/of International School of The Hague, basisscholen en diverse sportfaciliteiten.
KADASTRALE INFORMATIE:
Gemeente : ‘s-Gravenhage
Sectie : AN
Nummer : 3555
Grootte : 1 are 35 centiare
De Meetinstructie is gebaseerd op de NEN2580. De Meetinstructie is bedoeld om een meer eenduidige manier van meten toe te passen voor het geven van een indicatie van de gebruiksoppervlakte. De Meetinstructie sluit verschillen in meetuitkomsten niet volledig uit, door bijvoorbeeld interpretatieverschillen, afrondingen of beperkingen bij het uitvoeren van de meting.
Interesse in dit huis? Schakel direct uw eigen NVM-aankoopmakelaar in.
Uw NVM-aankoopmakelaar komt op voor uw belang en bespaart u tijd, geld en zorgen.
Adressen van collega NVM-aankoopmakelaars in Haaglanden vindt u op Funda.
############################################
Located in the charming Bloemenbuurt neighborhood, this charming two-story family home features four bedrooms, a front and back garden, and nine solar panels. This well-maintained house is just around the corner from Stokroosveld, the shops on Goudsbloemlaan, and easy access to major roads by car.
The leasehold has been bought off.
A lovely family home with potential for a roof extension!
LAYOUT
Through the well-maintained front garden, you enter the house, which features a hall with a draft door, hallway, modern toilet with underfloor heating and a hand basin, built-in cupboard.
The inviting, bright living-/dining room equipped with a wood-burning stove,
gas fireplace, infrared panel, and cork flooring. There is also a raised floor at the rear of the living/dining room.
The open-plan kitchen is equipped with various built-in appliances, including a combination oven/microwave, induction hob, extractor hood, dishwasher, and refrigerator.
Double doors lead to the beautiful, sheltered northeast-facing back garden with a wooden shed.
FIRST FLOOR
Landing with a skylight, modern toilet equipped with underfloor heating, built-in cupboard with position of the central heating system and connections for the washing machine.
A spacious, luxurious bathroom featuring a walk-in shower with a glass wall, a bidet, double washbasin, a mirror with LED lighting and heating, underfloor heating, and a towel radiator.
This floor has four bedrooms, two of which are very spacious and two smaller.
- For the dimensions of the rooms please refer to the floor plans.
SPECIAL FEATURES
Eternal lease-hold land which the rent charge has been bought off.
Acceptance in agreement.
Sewage charges 2025 € 191,15.
Electricity 10 groups with circuit breaker.
Central heating system, brand Nefit, built in 2014.
Hot water supply by central heating system.
The condition of the bathroom and the kitchen is good.
The condition of the interior and the exterior is good.
The house has synthetic window frames with double glazing.
9 solar panels available.
The buyer is free in his choice of notary, but in the Haaglanden region.
The lead-/asbestos and age clauses will be applied.
Built in approx. 1924.
Living surface approx. 127 m².
The volume of the house is approx. 485 m³.
Technical survey available.
NVM model deed applicable.
NEAR
Shops at the Goudsbloemlaan, Fahrenheitstraat, Thomsonlaan, Frederik Hendriklaan, het De Savornin Lohmanplein and Center of The Hague.
Bosjes van Pex, dunes, beach and sea, Boulevard of Kijkduin, Harbor of Scheveningen, restaurants and museums.
Public transport (RandstadRail Line 3, Line 12 and Bus 24) and main roads through Westland Road and Hubertustunnel.
Close to European- and International School of The Hague, various schools and sport facilities.
The measurement instruction is based on NEN2580. The measurement instruction is intended to apply a more uniform way of measuring for giving an indication of the use surface. The measurement instruction can not completely close differences in measurement results, for example by differences in interpretation, rounding or limitations in the performance of the measurement.



Wilt u meer weten over deze woning of een bezichtiging plannen? Bel of mail ons of vul het formulier in.
Heeft u een vraag?
Bel ons (070) 365 00 00
of mail info@joostvanvliet.nl