Patrijslaan 21, Vogelwijk
Nabij het Fazantplein en op afgekochte erfpachtgrond gelegen, keurig onderhouden zevenkamer 2-onder-1 kap woning met open keuken en een prachtige aanbouw aan de zij- en achterkant.
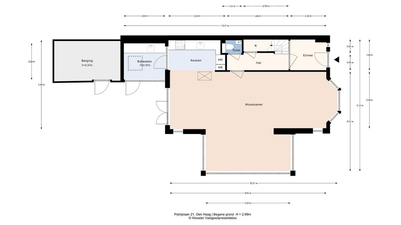
INDELING
Entree met een luifel, vestibule met de garderobe, tochtseparatie en travertin vloertegels met vloerverwarming doorgelegd over de gehele begane grond, trappenkast, toilet met fontein.
Zeer licht en aan de zijkant uitgebouwde woon-/eetkamer met voorerker, openslaande deuren naar de achtertuin en open keuken met een L-vormig keukenblok voorzien van een koelkast, oven, inductie kookplaat, vaatwasser en een zwart natuurstenen aanrechtblad, grenzend aan een uitgebouwde bijkeuken welke tevens voorzien is van een keukenblok met spoelbak.
Zonnige achtertuin met aangebouwde stenen berging voorzien van elektra.
1e VERDIEPING
Overloop, toilet, riante achterslaapkamer voorzien van kastenwand, moderne badkamer voorzien van vloerverwarming, dubbele wastafelmeubel, spiegelkast, wasmachineaansluiting en inloopdouche.
Voorzijkamer, voorslaapkamer voorzien van voorerker met vrij uitzicht naar het Fazantplein.
2e VERDIEPING
Ruime overloop met kastenwand, wasruimte voor de wasmachine en droger, aansluitend bergruimte met knieschotten, voorslaapkamer voorzien van een dakkapel, tussengelegen slaapkamer tevens voorzien van een groot dakkapel.
Voor de afmetingen van de kamers verwijzen wij u naar de plattegronden.
BIJZONDERHEDEN
Gelegen op eeuwigdurende erfpachtgrond, waarvan de canon is afgekocht.
Aanvaarding in overleg.
Rioolheffing 2026 € 195,40.
Elektra 7 groepen, 2 fase, hoofdgroep, 1 aardlekschakelaar..
Verwarming middels warmtepomp en c.v.-combiketel, merk Remeha, bouwjaar 2021.
Warmwatervoorziening middels c.v.-combiketel.
De onderhoudssituatie van het sanitair is uitstekend/goed en de keuken is goed.
De onderhoudssituatie zowel binnen als buiten is goed.
De woning is voorzien van kunststof, houten en aluminium kozijnen met dubbel glas en HR++ glas.
Gemeentelijk beschermd stadsgezicht Vogelwijk.
Geen olietank. KIWA-certificaat aanwezig.
Koper is vrij in notariskeuze, echter wel in regio Haaglanden.
De lood- /asbest- en ouderdomsclausules zijn van toepassing.
Bouwjaar 1926.
Woonoppervlakte ca. 161 m².
De inhoud van de woning is ca. 650 m³.
De woning is bouwkundig gekeurd.
Model NVM-koopakte van toepassing.
NABIJ
Winkels op de Goudsbloemlaan, De Savornin Lohmanplein, Fahrenheitstraat, Thomsonlaan, Frederik Hendriklaan en centrum van Den Haag.
Nabij diverse (basis)scholen, Europese en Internationale School of The Hague en diverse sportfaciliteiten.
Boulevard van Kijkduin, "Bosjes van Pex", de duinen, het strand en de zee!
Openbaar vervoer (Tram lijn 12, bus 24) en uitvalswegen via Westlandroute en Hubertustunnel.
KADASTRALE INFORMATIE:
Gemeente : ‘s-Gravenhage
Sectie : AO
Nummer : 845
Grootte : 2 are 81 centiare
De Meetinstructie is gebaseerd op de NEN2580. De Meetinstructie is bedoeld om een meer eenduidige manier van meten toe te passen voor het geven van een indicatie van de gebruiksoppervlakte. De Meetinstructie sluit verschillen in meetuitkomsten niet volledig uit, door bijvoorbeeld interpretatieverschillen, afrondingen of beperkingen bij het uitvoeren van de meting.
Interesse in dit huis? Schakel direct uw eigen NVM-aankoopmakelaar in.
Uw NVM-aankoopmakelaar komt op voor uw belang en bespaart u tijd, geld en zorgen.
Adressen van collega NVM-aankoopmakelaars in Haaglanden vindt u op Funda.
****************************************************************************************
Located near the Fazantplein and on bought off leasehold land, this well-maintained seven-room semi-detached house features an open-plan kitchen and a beautiful extension at the side and rear.
LAYOUT
Entrance with an awning, vestibule with a coat closet, draft divider and travertine floor tiles with floorheating throughout the ground floor, under-stairs storage and a toilet with a hand basin.
Very bright living/dining room extended to the side with a bay window, French doors leading to the back garden and an open-plan kitchen with a L-shaped kitchen unit equipped with a refrigerator, oven, induction cooktop, dishwasher and a black natural stone countertop. Adjacent to this is an extended utility room, which also features a kitchen unit with a sink.
Sunny back garden with an attached stone storage shed, equipped with electricity.
FIRST FLOOR
Landing, toilet, spacious rear bedroom with a wall of wardrobes and a modern bathroom with underfloor heating, double vanity, mirrored cabinet, washing machine connection and walk-in shower. Front side room, front bedroom with a bay window offering unobstructed views of Fazantplein.
SECOND FLOOR
Spacious landing with built-in wardrobes, laundry room for the washing machine and dryer, adjoining storage space with knee walls, front bedroom with a dormer window, and an intermediate bedroom also with a large dormer window.
For the dimensions of the rooms please refer to the floor plans.
SPECIAL FEATURES
Eternal lease-hold land which the rent charge has been bought off.
Acceptance in agreement.
Sewage charges 2026 € 195,40.
Electricity 7 groups, 2 phase plus main with circuit breaker.
Central heating system, brand Remeha, model 2021 plus heat pump.
Hot water supply by central heating system.
The condition of the bathroom is excellent/good and the kitchen is good.
The condition of the interior as well as the exterior is good.
The house has wooden, synthetic and aluminum window frames with double glazing and HR++ glazing.
Part of the conservation area of the village or town Vogelwijk.
No oil tank. KIWA certificate available.
The buyer is free to choose a notary, but must be located in the Haaglanden region.
The lead-/asbestos and age clauses will be applied.
Built in 1926.
Living surface approx. 161 m².
The volume of the house approx. 650 m³.
Technical survey available.
NVM model deed applicable.
NEAR
Shops at the Goudsbloemlaan, het De Savornin Lohmanplein, Fahrenheitstraat, Thomsonlaan, Frederik Hendriklaan and city center of The Hague.
Close to various (primary) schools, European- and International School of The Hague and various sport facilities.
Kijkduin Boulevard, "Bosjes van Pex", the dunes, the beach and the sea!
Public transport (Tram Line 12, Bus 24) and main roads through Westland Road and Hubertustunnel.
The measurement instruction is based on NEN2580. The measurement instruction is intended to apply a more uniform way of measuring for giving an indication of the use surface. The measurement instruction can not completely close differences in measurement results, for example by differences in interpretation, rounding or limitations in the performance of the measurement.




Wilt u meer weten over deze woning of een bezichtiging plannen? Bel of mail ons of vul het formulier in.
Heeft u een vraag?
Bel ons (070) 365 00 00
of mail info@joostvanvliet.nl


