Lobelialaan 13, Bohemen Rechts
Met behoud van veel originele details een licht en goed onderhouden 3-laags bovenhuis (ca. 163 m2) voorzien van L-vormige woonkamer en suite met open keuken, 5 slaapkamers, 2 balkons over de gehele breedte en een separate (fietsen)berging.
Prachtig gelegen met vrij uitzicht op waterplantsoen en op loopafstand van winkelcentra het De Savornin Lohmanplein en Alphons Diepenbrockhof, diverse scholen en sportfaciliteiten, openbaar vervoer, strand, zee en duinen, Badplaats Kijkduin, Bosjes van Pex en landgoed Meer en Bosch.
INDELING:
Entree appartement, hal met granitovloer en meterkast, trap naar 1e verdieping.
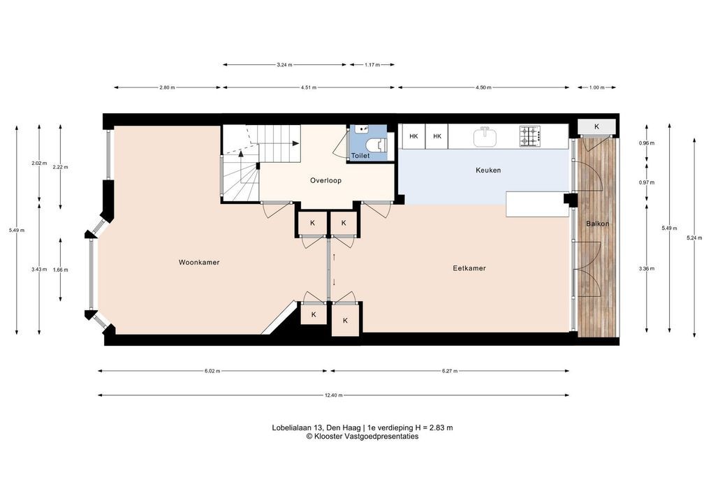
1e VERDIEPING
Overloop voorzien van fraaie eikenhouten vloer doorgelegd op de verdieping, separaat toilet met fontein.
Sfeervolle, lichte en L-vormige originele kamer en suite met glas in lood deuren, 4 vaste kasten, marmeren schouw, bijgetrokken voorzijkamer, voorerker met vrij uitzicht over het water en half open keuken met barblad aan de achterzijde, voorzien van composiet aanrechtblad, dubbele spoelbak, 4-pits gasfornuis, inbouwoven, koel/vriescombinatie, inbouwmagnetron en opstelplaats cv-ketel.
Via openslaande deuren met glas in lood bovenlichten of keukendeur toegang tot het achterbalkon, gelegen op het noordoosten over de gehele breedte van het appartement met vrij uitzicht, voorzien van balkonkast.
2e VERDIEPING
Overloop, 2e separaat toilet en een tussengelegen moderne badkamer voorzien van ligbad met douche, 2 wastafels met meubel, handdoekradiator en Portugese vloertegels.
Ruime achterslaapkamer met vaste kast en openslaande deuren met glas in lood bovenlichten naar het achterbalkon, tevens gelegen over de gehele breedte van het appartement met vrij uitzicht. Lichte voorslaapkamer met wastafel en een voorzijslaapkamer.
3e VERDIEPING
Overloop met toegang tot de vliering. Voorslaapkamer met dakraam en toegang tot de wasruimte met wastafel. Ruime achterslaapkamer met brede dakkapel.
Ruime (fietsen)berging bereikbaar via de Speenkruidstraat.
Voor de afmetingen van de kamers verwijzen wij u naar de plattegronden.
BIJZONDERHEDEN
Gelegen op erfpachtgrond, eeuwigdurend heruitgegeven middels obligatoire overeenkomst. De canon bedraagt € 1.070,85 per jaar, gebaseerd op een grondwaarde van € 32.450,-- (=afkoopsom) en een canonpercentage van 3,3%. Herziening canonpercentage per 01-01-2031.
Aanvaarding in overleg.
Rioolheffing 2026 € 195,40 per jaar.
19/51ste aandeel in de gemeenschap.
Actieve Vereniging van Eigenaren, bijdrage € 150,-- per maand.
Elektra 6 groepen met aardlekschakelaar.
Verwarming middels c.v.-combiketel, merk AWB, bouwjaar 2011. Warmwatervoorziening middels c.v.-combiketel.
De onderhoudssituatie van het sanitair en de keuken is goed.
De onderhoudssituatie binnen en buiten is goed.
Dit gedeelte van de Lobelialaan is voorzien van nieuwe riolering en bestrating.
Het appartement is aan de voorzijde voorzien van aluminium kozijnen met dubbel glas en aan de achterzijde houten kozijnen met dubbel/voorzet glas, een kunststof dakkapel met HR++ en een dakraam van hout met dubbel glas.
Koper is vrij in notariskeuze, echter wel in regio Haaglanden.
De lood- /asbest- en ouderdomsclausules zijn van toepassing.
Bouwjaar 1935.
Woonoppervlakte ca. 163 m².
De inhoud van het appartement is ca. 555 m³.
Model NVM-koopakte van toepassing.
NABIJ
Winkels aan het De Savornin Lohmanplein, Alphons Diepenbrockhof en Haagse binnenstad.
Bosjes van Pex, landgoed Meer en Bosch, duinen, strand en zee, Badplaats Kijkduin, restaurants en musea.
Openbaar vervoer, (RandstadRail lijn 3, tramlijn bus 23, 24), uitvalswegen via Hubertustunnel en Westlandroute.
Nabij Europese en/of International School of The Hague, basisscholen en diverse sportfaciliteiten.
KADASTRALE INFORMATIE
Gemeente : Loosduinen
Sectie : H
Nummer : 5816
Appartementsindex : -5
De Meetinstructie is gebaseerd op de NEN2580. De Meetinstructie is bedoeld om een meer eenduidige manier van meten toe te passen voor het geven van een indicatie van de gebruiksoppervlakte. De Meetinstructie sluit verschillen in meetuitkomsten niet volledig uit, door bijvoorbeeld interpretatieverschillen,afrondingen of beperkingen bij het uitvoeren van de meting.
Interesse in dit huis? Schakel direct uw eigen NVM-aankoopmakelaar in.
Uw NVM-aankoopmakelaar komt op voor uw belang en bespaart u tijd, geld en zorgen.
Adressen van collega NVM-aankoopmakelaars in Haaglanden vindt u op Funda.
***************************************************
Retaining many original details, this bright and well-maintained three-story apartment (approx. 163 m²) features an L-shaped living room en-suite with an open-plan kitchen, 5 bedrooms, two balconies spanning the entire width of the apartment, and a separate (bicycle) storage room.
Beautifully situated with unobstructed views on the water park and within walking distance of the De Savornin Lohmanplein and Alphons Diepenbrockhof shopping centers, various schools and sports facilities, public transport, the beach, sea, and dunes, Kijkduin seaside resort, Bosjes van Pex, and the Meer en Bosch estate.
LAY-OUT
Entrance apartment, hall with granite floor and meter cupboard, stairs to the first floor.
FIRST FLOOR
Landing with beautiful oak flooring extending throughout the first floor, separate toilet with hand basin.
Charming, bright and L-shaped original en-suite bedroom with stained glass doors, four built-in wardrobes, a marble fireplace, an adjoining front room, a bay window with unobstructed views over the water and a semi-open kitchen with a bar at the rear, featuring a composite countertop, double sink, four-burner gas stove, built-in oven, fridge/freezer, built-in microwave and central heating boiler.
Through French doors with stained glass skylights or a kitchen door, access to the rear balcony, facing northeast and spanning the entire width of the apartment, offers unobstructed views and features a balcony cupboard.
SECOND FLOOR
Landing, second separate toilet and a modern bathroom with a bathtub and shower, two vanity units, a heated towel rail and Portuguese floor tiles.
Spacious rear bedroom with a built-in wardrobe and French doors with stained-glass skylights leading to the rear balcony, which also spans the entire width of the apartment and offers unobstructed views. A bright front bedroom with a vanity unit and a side bedroom at the front.
THIRD FLOOR
Landing with access to the attic. Front bedroom with a skylight and access to the laundry room with a vanity unit. Spacious rear bedroom with a wide dormer window.
A spacious (bicycle) storage room is accessible via the Speenkruidstraat.
For the dimensions of the rooms please refer to the floor plans.
SPECIAL FEATURES
Situated on lease-hold land, perpetually renewed through obligatory contract. The rent charge is € 1.070,85 per year, based on a land value of € 32.450,-- and a rent rate of 3,3%. Review rent rates by 01-01-2031.
Acceptance in agreement.
Sewerage charges 2026 € 195,40 per year.
19/51st share in the community.
Active Owners Association, contribution € 150,-- each month.
Electricity 6 groups with circuit breaker.
Central heating system, brand AWB, model 2011.
Hot water supply by central heating system.
The condition of the bathroom and the kitchen is good.
The condition of the interior and exterior is good.
The apartment has aluminium window frames with double glazing at the front and wooden window frames with double/additional glazing at the rear, a plastic dormer with HR++ and a wooden skylight with double glazing.
The buyer is free to choose a notary, but must be located in the Haaglanden region.
The lead-/asbestos and age clauses will be applied.
Built in 1935.
Living surface approx. 163 m².
The volume of the apartment approx. 555 m³.
NVM model deed applicable.
NEAR
Shops at het De Savornin Lohmanplein, Alphons Diepenbrockhof and Center of The Hague.
Bosjes van Pex, Meer en Bosch estate, dunes, beach and sea, Boulevard of Kijkduin, restaurants and museums.
Public transport (RandstadRail Line 3, Bus 24 of 23) and main roads through Westland Road and Hubertustunnel.
Close to European- and International School of The Hague, various schools and sport facilities.
The measurement instruction is based on NEN2580. The measurement instruction is intended to apply a more uniform way of measuring for giving an indication of the use surface. The measurement instruction can not completely close differences in measurement results, for example by differences in interpretation, rounding or limitations in the performance of the measurement.






Wilt u meer weten over deze woning of een bezichtiging plannen? Bel of mail ons of vul het formulier in.
Heeft u een vraag?
Bel ons (070) 365 00 00
of mail info@joostvanvliet.nl

