Kruisbeklaan 38, Vogelwijk
Riant uitgebouwde 11-kamer hoekwoning met een woonoppervlak van 222 m² voorzien van 2 badkamers, eetkeuken, vrijstaande garage en achtertuin op het zuidwesten. Gelegen op een kavel van 402 m² waarvan de erfpacht is afgekocht.
Nabij winkels, Internationale scholen en strand, zee en duinen.
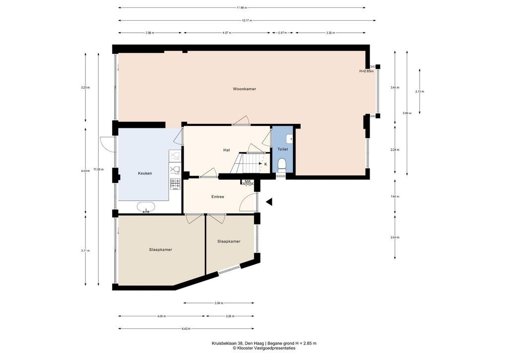
INDELING
Entree in de aanbouw, vestibule met toegang naar een voorkamertje voorzien van wasmachine aansluiting en achterkamer (voormalige werkkamer).
Oorspronkelijke gang met bergruimte onder de trap, ruim bruin betegeld toilet met fontein.
L-vormige doorgebroken woon-/eetkamer met open doorgang naar de eetkeuken voorzien van L-vormig houten keukenblok en inbouwapparatuur zoals 4-pits gasfornuis, oven, vaatwasser en close-in boiler.
Op het zuidwesten gelegen achtertuin.
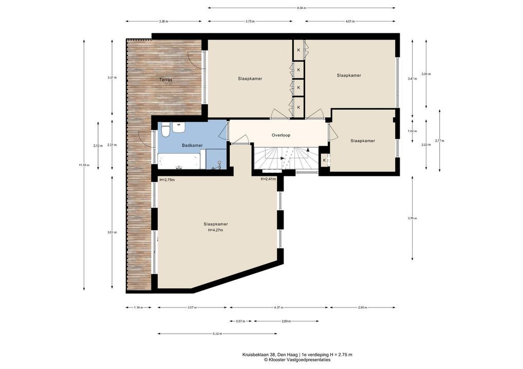
1e VERDIEPING
Overloop, voorzijkamer met open kast, lichte voorslaapkamer met kastenwand en tevens een lichte achterslaapkamer met kastenwand grenzend aan een groot zonnig balkon.
Bruin betegelde ruime badkamer met douche, toilet, wastafel en ligbad.
Vanuit de overloop toegang naar een riante slaapkamer in de aanbouw met een nokhoogte van 4 meter voorzien van schuifpui naar een balkon.
2e VERDIEPING
Overloop met zijraam, vaste kast en toegang naar 2 vlieringen.
Ruime voorslaapkamer gelegen over de gehele breedte van de woning met groot dakkapel, ruime achterslaapkamer met een groot dakkapel, 2e badkamer voorzien van toilet, douche, wastafel en wasmachine aansluiting.
Riante tuin met een vrijstaande garage voorzien van elektrische roldeur, elektra en een dakkoepel.
Voor de afmetingen van de kamers verwijzen wij u naar de plattegronden.
BIJZONDERHEDEN
Gelegen op eeuwigdurende erfpachtgrond, waarvan de canon is afgekocht.
Aanvaarding in overleg.
Rioolheffing 2025 € 191,15.
Elektra 12 groepen met 3 aardlekschakelaars en hoofdschakelaar.
Verwarming middels c.v.-combiketel, merk Nefit, bouwjaar 2006.
Warmwatervoorziening middels c.v.-combiketel en elektrische boiler (eigendom).
De onderhoudssituatie van het sanitair en de keuken is redelijk tot goed.
De onderhoudssituatie binnen en buiten is goed.
De aanbouw dateert uit 1980 en het dak is vernieuwd in 1999.
Het woning is voorzien van houten en aluminium kozijnen met dubbel glas.
De woning is aan de achterzijde voorzien van zonwering.
Gemeentelijk beschermd stadsgezicht.
Verkoper heeft de woning nooit zelf feitelijk gebruikt.
Koper is vrij in notariskeuze, echter wel in regio Haaglanden.
De lood- /asbest- en ouderdomsclausules zijn van toepassing.
Bouwjaar ca. 1950.
Woonoppervlakte ca. 222 m².
De inhoud van de woning is ca. 815 m³.
De woning is bouwkundig gekeurd.
Model NVM-koopakte van toepassing.
NABIJ
Winkels aan De Savornin Lohmanplein, Alphons Diepenbrockhof, Goudsbloemlaan en Fahrenheitstraat en op fietsafstand van gezellige Frederik Hendriklaan en Haagse binnenstad.
Bosjes van Pex, duinen, strand en zee, Badplaats Kijkduin, Haven van Scheveningen, restaurants en musea.
Nabij Europese en/of International School of The Hague, basisscholen en diverse sportfaciliteiten.
KADASTRALE INFORMATIE:
Gemeente : Loosduinen
Sectie : I
Nummer : 5961
Grootte : 4 are 02 centiare
De Meetinstructie is gebaseerd op de NEN2580. De Meetinstructie is bedoeld om een meer eenduidige manier van meten toe te passen voor het geven van een indicatie van de gebruiksoppervlakte. De Meetinstructie sluit verschillen in meetuitkomsten niet volledig uit, door bijvoorbeeld interpretatieverschillen, afrondingen of beperkingen bij het uitvoeren van de meting.
Interesse in dit huis? Schakel direct uw eigen NVM-aankoopmakelaar in.
Uw NVM-aankoopmakelaar komt op voor uw belang en bespaart u tijd, geld en zorgen.
Adressen van collega NVM-aankoopmakelaars in Haaglanden vindt u op Funda.
###########################################################
Spacious, extended 11-room corner house with a living area of approx. 222 m² with two bathrooms, a kitchen/diner, detached garage, and a southwest-facing back garden. Situated on a 402 m² plot, the leasehold of which has been bought off.
Close to shops, international schools, and the beach, sea, and dunes.
LAYOUT
Entrance in the extension, vestibule with access to a small front room with connection for the washing machine and a back room (former office).
Original hallway with storage space under the stairs, spacious brown tiled toilet with a hand basin.
L-shaped living/dining room with open access to the kitchen/diner, featuring an L-shaped wooden kitchen unit and built-in appliances such as a 4-burner gas stove, oven, dishwasher, and a close-in water heater.
Southwest-facing back garden.
1st FLOOR
Landing, front side room with open closet, bright front bedroom with a wardrobe, and a bright rear bedroom with a wardrobe, opening onto a large, sunny balcony.
Brown-tiled spacious bathroom with a shower, toilet, washbasin, and bathtub.
From the landing, access to a spacious bedroom in the extension with a ridge height of 4 meters and sliding doors leading to a balcony.
2nd FLOOR
Landing with a side window, built-in closet, and access to 2 attics.
Spacious front bedroom spanning the entire width of the house with a large dormer window, spacious rear bedroom with a large dormer window, and a second bathroom with a toilet, shower, washbasin, and connection for the washing machine.
Spacious garden with a detached garage equipped with an electric roller door, electricity, and a roof dome.
- For the dimensions of the rooms please refer to the floor plans.
SPECIAL FEATURES
Eternal lease-hold land which the rent charge has been bought off.
Acceptance in agreement.
Sewage charges 2025 € 191,15.
Electricity 12 groups with 3 circuit breakers and main switch.
Central heating system, brand Nefit, built in 2006.
Hot water supply by central heating system and electric water heater (owned).
The condition of the bathroom and the kitchen is reasonable/good.
The condition of the interior and the exterior is good.
The house has wooden and aluminum window frames with double glazing.
The extension dates from 1980 and the roof was renewed in 1999.
The house has sun blinds at the rear.
Part of the conservation area of the village or town.
Seller has the house itself never actually used.
The buyer is free to choose a notary, but must be located in the Haaglanden region.
The lead-/asbestos and age clauses will be applied.
Built in approx. 1950.
Living surface approx. 222 m².
The volume of the house approx. 815 m³.
Technical survey available.
NVM model deed applicable.
NEAR
Shops at De Savornin Lohmanplein, Alphons Diepenbrockhof, Goudsbloemlaan, and Fahrenheitstraat are within cycling distance of the cozy Frederik Hendriklaan and The Hague's city center.
Bosjes van Poot, Bosjes van Pex, dunes, beach and sea, Boulevard of Kijkduin, Harbor of Scheveningen, restaurants and museums.
Public transport (RandstadRail Line 3, Bus 14 and 24 of 23) and main roads through Westland Road and Hubertustunnel.
Close to European- and International School of The Hague, various schools and sport facilities.
The measurement instruction is based on NEN2580. The measurement instruction is intended to apply a more uniform way of measuring for giving an indication of the use surface. The measurement instruction can not completely close differences in measurement results, for example by differences in interpretation, rounding or limitations in the performance of the measurement.




Wilt u meer weten over deze woning of een bezichtiging plannen? Bel of mail ons of vul het formulier in.
Heeft u een vraag?
Bel ons (070) 365 00 00
of mail info@joostvanvliet.nl
