Kranenburgweg 60, Den Haag

Kranenburgweg 60 vraagprijs  € 325.000 k.k.


Kranenburgweg 60, Geuzenkwartier

Met prachtig en weids uitzicht over het Verversingskanaal gelegen 4-kamer hoek TOP-appartement met een woonoppervlakte van ca. 89 m², 2 slaapkamers en een achterbalkon.
De woning is geheel voorzien van kunststof kozijnen met dubbel glas en gelegen op eigen grond. Woning dient gemoderniseerd te worden.

Op loopafstand van de gezellige winkelstraten Frederik Hendriklaan, Willem de Zwijgerlaan, de haven van Scheveningen en strand/duinen.

INDELING:
Entree woning op straatniveau met hal voorzien van een fraaie granito vloer.
Trap naar de 2e (TOP)verdieping.

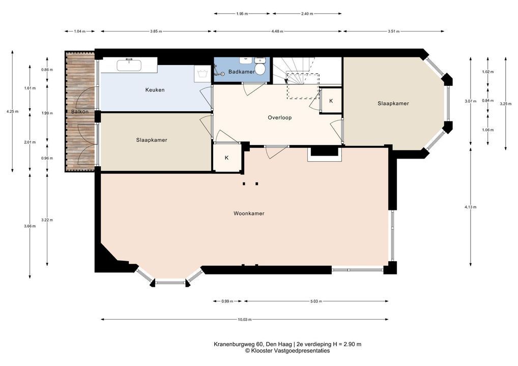
Ruime overloop met dakraam, 2 vaste kasten, badkamer voorzien van inloopdouche, toilet en wastafel, voorslaapkamer voorzien van een erker met prachtig weids uitzicht over het Verversingskanaal.

Sfeervolle, lichte woon-/eetkamer met eveneens prachtig uitzicht.
Keuken voorzien van een keukenblok, aansluiting wasmachine en deur naar achterbalkon.
Achterslaapkamer voorzien van dubbele deuren naar achterbalkon.

Voor de afmetingen van de kamers verwijzen wij u naar de plattegronden.

BIJZONDERHEDEN
Het appartement is gelegen op eigen grond.
Aanvaarding in overleg.
Rioolheffing 2025 € 191,15 per jaar.
3/10e aandeel in de gemeenschap.
Actieve Vereniging van Eigenaren, bijdrage € 150,-- per maand.
Elektra 2 groepen met aardlekschakelaar.
Er is geen centrale verwarming aanwezig.
De onderhoudssituatie van het sanitair en de keuken is matig.
De onderhoudssituatie binnen is matig/redelijk en buiten redelijk/goed.
Het gehele appartement is voorzien van kunststof kozijnen met dubbel glas.
Rijksbeschermd stadsgezicht Statenkwartier.
Verkoper heeft de woning nooit zelf feitelijk gebruikt.
Koper is vrij in notariskeuze, echter wel in regio Haaglanden.
De lood- /asbest- en ouderdomsclausules zijn van toepassing.
Bouwjaar 1926.
Woonoppervlakte ca. 89 m².
De inhoud van het appartement is ca. 340 m³.
Model NVM-koopakte van toepassing.

NABIJ
Winkels aan Willem de Zwijgerlaan en gezellige Frederik Hendriklaan,
Reinkenstraat en Fahrenheitstraat.

Bosjes van Poot, duinen, strand en zee, Haven van Scheveningen, diverse terrasjes, restaurants en musea.

Openbaar vervoer en uitvalswegen. Tevens op fietsafstand van Haagse binnenstad.

Nabij Europese, Duitse en Franse School en basisscholen en diverse sportfaciliteiten zoals tennis, voetbal, hockey, honk-/softbal, paardrijden en handbal.

KADASTRALE INFORMATIE
Gemeente : ’s-Gravenhage
Sectie : AK
Nummer : 9008
Appartementsindex : -1

De Meetinstructie is gebaseerd op de NEN2580. De Meetinstructie is bedoeld om een meer eenduidige manier van meten toe te passen voor het geven van een indicatie van de gebruiksoppervlakte. De Meetinstructie sluit verschillen in meetuitkomsten niet volledig uit, door bijvoorbeeld interpretatieverschillen,afrondingen of beperkingen bij het uitvoeren van de meting.

Interesse in dit huis? Schakel direct uw eigen NVM-aankoopmakelaar in.
Uw NVM-aankoopmakelaar komt op voor uw belang en bespaart u tijd, geld en zorgen.
Adressen van collega NVM-aankoopmakelaars in Haaglanden vindt u op Funda.

******************************************

With beautiful and panoramic views over the Verversingskanaal, this 4-room TOP corner apartment offers a living area of approximately 89 m², 2 bedrooms, and a rear balcony.
The apartment is fully equipped with synthetic window frames with double glazing and is situated on freehold land. The apartment requires modernization.

Within walking distance of the charming shopping streets of Frederik Hendriklaan and Willem de Zwijgerlaan, the Scheveningen harbor, and the beach/dunes.

LAYOUT
Entrance at street level with a hallway featuring a beautiful granite floor. Stairs to the second (top) floor.

Spacious landing with skylight, 2 built-in wardrobes, bathroom with a walk-in shower, toilet and wash basin, a front bedroom with a bay window offering a beautiful panoramic view over the Verversingskanaal.

Attractive, bright living/dining room with equally stunning views. Kitchen equipped with a kitchenette, washing machine connection, and door to the rear balcony.
Rear bedroom with French doors to rear balcony.

For the dimensions of the rooms please refer to the floor plans.

SPECIAL FEATURES
The property is freehold.
Acceptance in agreement.
Sewerage charges 2025 € 191,15 per year.
3/10th share in the community.
Active Owners Association, contribution € 150,-- each month.
Electricity 2 groups without circuit breaker.
There is no central heating.
The condition of the bathroom and the kitchen is moderate.
The condition of the interior is moderate/reasonable and the exterior reasonable/good.
The apartment has synthetic window frames with double glazing.
Listed as a nationally building within the meaning of the Heritage Act.
Seller has the apartment itself never actually used.
The buyer is free to choose a notary, but must be located in the Haaglanden region.
The lead-/asbestos and age clauses will be applied.
Built in 1926.
Living surface approx. 89 m².
The volume of the apartment approx. 340 m³.
NVM model deed applicable.

NEAR
Shops on Willem de Zwijgerlaan and cozy Frederik Hendriklaan,
Reinkenstraat and Fahrenheitstraat.

Bosjes van Poot, dunes, beach and sea, Port of Scheveningen, various terraces, restaurants and museums.

Public transport and roads. Also within cycling distance of The Hague city center.
Close to European, German and French School and primary schools and various sports facilities such as tennis, football, hockey, baseball/softball, horse riding and handball.

The measurement instruction is based on NEN2580. The measurement instruction is intended to apply a more uniform way of measuring for giving an indication of the use surface. The measurement instruction can not completely close differences in measurement results, for example by differences in interpretation, rounding or limitations in the performance of the measurement.

Locatie

[ { "address": "Kranenburgweg 60", "zipCode": "2581 XV", "city": "Den Haag", "lat": 52.0905549, "lng": 4.2677798, "heading": 0, "pitch": 0 } ]

Kenmerken

Vraagprijs
€ 325.000 k.k.
Status
Verkocht
Oplevering
In overleg

Bouw

Soort appartement
Bovenwoning, Appartement
Woonlaag
3
Soort bouw
Bestaande bouw
Bouwjaar
1926
Onderhoud binnen
Redelijk
Onderhoud buiten
Goed
Bijzonderheden
Beschermd stads- of dorpgezicht

Oppervlakten en inhoud

Woonoppervlakte
89m²
Inhoud
340m³

Indeling

Aantal kamers
4
Aantal slaapkamers
2
Aantal badkamers
1
Aantal verdiepingen
1

Energie

Energielabel
G
Isolatie
Dubbel glas

Buitenruimte

Ligging
In woonwijk, Vrij uitzicht
Balkon
Ja

Garage

Plattegronden

Bekijk verloop van de zon

Uw browser ondersteunt geen WebGL

Afspraak of contact

Wilt u meer weten over deze woning of een bezichtiging plannen? Bel of mail ons of vul het formulier in.


Uw bericht is naar ons verzonden. Wij nemen zo snel mogelijk contact met u op.

Er is iets mis gegaan met het versturen van het formulier.
Controleer of u alle velden (goed) heeft ingevoerd en probeer het nog een keer.

recaptcha
reCAPTCHA
PrivacyTerms

Heeft u een vraag?
Bel ons (070) 365 00 00
of mail info@joostvanvliet.nl

Vergelijkbare woningen

Nieuw
Asterstraat 170
€ 385.000 k.k.