Koningin Emmakade 92 A, Den Haag

Koningin Emmakade 92 A vraagprijs  € 275.000 k.k.


Koningin Emmakade 92A, Zeeheldenkwartier

Nabij het Koningsplein en Prins Hendrikplein gelegen licht 2-kamer appartement op de 2e verdieping met groot balkon op het zuidwesten.

INDELING
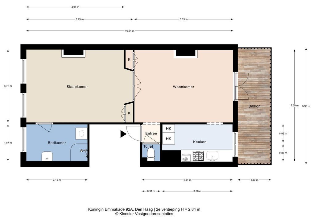
Entree op de 2e verdieping, vestibule, toilet met duoblok, woonkamer met zwart marmeren schouw, vaste kast voorzien louvre deuren, openslaande deuren naar een zonnig ruim balkon gelegen op het zuidwesten.

Open doorgang naar de keuken voorzien van afzuigkap, 4-pits gasfornuis, oven, vaatwasser, koel-/vrieskast en opstelplaats van de c.v.-combiketel.

Vanuit de woonkamer openslaande deuren naar de slaapkamer voorzien van zwart marmeren schouw, vaste kast en bergruimte.

Nette badkamer voorzien van wasmachine aansluiting, douche en badkamermeubel.

Voor de afmetingen van de kamers verwijzen wij u naar de plattegronden.

BIJZONDERHEDEN
Het appartement is gelegen op eigen grond.
Aanvaarding in overleg.
Rioolheffing 2025 € 191,15.
1/4e aandeel in de gemeenschap.
Actieve Vereniging van Eigenaren, bijdrage € 101,-- per maand.
Elektra 6 groepen met aardlekschakelaar.
Verwarming middels c.v.-combiketel, merk Remeha, bouwjaar 2009.
Warmwatervoorziening middels c.v.-combiketel.
De onderhoudssituatie van het sanitair is goed en de keuken is redelijk tot goed.
De onderhoudssituatie binnen is redelijk tot goed en buiten goed.
Het appartement is aan de voorzijde voorzien van kunststof kozijnen met HR glas en de achterzijde is voorzien van houten kozijnen met dubbel glas.
De gehele woning is voorzien van een laminaatvloer.
Gemeentelijk beschermd stadsgezicht.
Verkoper heeft de woning nooit zelf feitelijk gebruikt, derhalve is de niet-bewonersclausule van toepassing.
Project notaris Ellens en Lentze te Den Haag.
De lood- /asbest- en ouderdomsclausules zijn van toepassing.
Bouwjaar ca. 1890.
Woonoppervlakte ca. 54 m².
De inhoud van het appartement is ca. 190 m³.
Model NVM-koopakte van toepassing.

NABIJ
De winkels, cafés en restaurants van Weimarstraat, Reinkenstraat, het Koningsplein en Prins Hendrikstraat.
In de directe omgeving zijn diverse scholen waaronder de Europese school, diverse sportfaciliteiten.
Op 100 meter buurtpark De Verademing met sportvelden en een speeltuin.

Op fietsafstand van de Haagse binnenstad, de Frederik Hendriklaan, strand, zee en duinen.

Openbaar vervoer (RandstadRail lijn 3, tramlijn 2, 4, 11 en 16), uitvalswegen via A12 en A4.

KADASTRALE INFORMATIE
Gemeente : ’s-Gravenhage
Sectie : W
Nummer : 4298
Appartementsindex : -4

De Meetinstructie is gebaseerd op de NEN2580. De Meetinstructie is bedoeld om een meer eenduidige manier van meten toe te passen voor het geven van een indicatie van de gebruiksoppervlakte. De Meetinstructie sluit verschillen in meetuitkomsten niet volledig uit, door bijvoorbeeld interpretatieverschillen,afrondingen of beperkingen bij het uitvoeren van de meting.

Interesse in dit huis? Schakel direct uw eigen NVM-aankoopmakelaar in.
Uw NVM-aankoopmakelaar komt op voor uw belang en bespaart u tijd, geld en zorgen.
Adressen van collega NVM-aankoopmakelaars in Haaglanden vindt u op Funda.

################################################################################

Located near Koningsplein and Prins Hendrikplein, this bright 2-room apartment on the 2nd floor features a large southwest-facing balcony.

LAYOUT
Entrance on the 2nd floor, vestibule, toilet, living room with a black marble fireplace, built-in wardrobe with louvered doors, and French doors leading to a sunny, spacious southwest-facing balcony.

Open access to the kitchen, equipped with an extractor hood, 4-burner gas stove, oven, dishwasher, refrigerator/freezer, and position of the central heating system.

From the living room, French doors lead to the bedroom with a black marble fireplace, built-in wardrobe, and storage space.

Neat bathroom with connection for the washing machine, shower, and vanity.

- For the dimensions of the rooms please refer to the floor plans.

SPECIAL FEATURES
The property is freehold.
Acceptance in agreement.
Sewage charges 2025 € 191,15.
1/4th share in the community.
Active Owners Association, contribution € 101,-- monthly.
Electricity 6 groups with circuit breaker.
Central heating system, brand Remeha, built in 2009.
Hot water supply by central heating system.
The condition of the bathroom is good and and the kitchen reasonable/good.
The condition of the interior is reasonable/good and exterior good.
The apartment has in front synthetic window frames with HR glazing and at the back wooden window frames with double glazing.
The entire house has a laminate floor.
Part of the conservation area of the village or town.
Seller has the apartment itself never actually used, therefore the non-occupancy clause applies.
Project notary Ellens en Lentze, The Hague.
The lead-/asbestos and age clauses will be applied.
Built in approx. 1890 .
Living surface approx. 54 m².
The volume of the apartment approx. 190 m³.
NVM model deed applicable.

NEAR
Situated in the Regentessekwartier area in walking distance of shops and restaurants of the Weimarstraat, Reinkenstraat, Koningsplein and Prins Hendrikstraat.

Nearby sporting facilities and the European school.
Park “de Verademing” at 100 meters offers soccer fields and a playground.

The city centre, Frederik Hendriklaan, beach, sea and dunes are at cycling distance.

Public transport (RandstadRail Line3, tram 2, 4, 11 and 16) and roads via A12 and A4.

The measurement instruction is based on NEN2580. The measurement instruction is intended to apply a more uniform way of measuring for giving an indication of the use surface. The measurement instruction can not completely close differences in measurement results, for example by differences in interpretation, rounding or limitations in the performance of the measurement.

Locatie

[ { "address": "Koningin Emmakade 92", "zipCode": "2518 RM", "city": "Den Haag", "lat": 52.079559, "lng": 4.290284, "heading": 0, "pitch": 0 } ]

Kenmerken

Vraagprijs
€ 275.000 k.k.
Status
Verkocht
Oplevering
In overleg

Bouw

Soort appartement
Portiekwoning, Appartement
Woonlaag
3
Soort bouw
Bestaande bouw
Bouwjaar
1890
Onderhoud binnen
Goed
Onderhoud buiten
Goed
Bijzonderheden
Beschermd stads- of dorpgezicht

Oppervlakten en inhoud

Woonoppervlakte
54m²
Inhoud
190m³

Indeling

Aantal kamers
2
Aantal slaapkamers
1
Aantal badkamers
1
Aantal verdiepingen
1

Energie

Energielabel
C
Isolatie
Dubbel glas
Warm water
C.V.-ketel
Verwarming
C.V.-ketel
Ketel
Remeha (2009, Combi-ketel, Eigendom)

Buitenruimte

Ligging
In woonwijk, Vrij uitzicht
Balkon
Ja

Garage

Plattegronden

Bekijk verloop van de zon

Uw browser ondersteunt geen WebGL

Afspraak of contact

Wilt u meer weten over deze woning of een bezichtiging plannen? Bel of mail ons of vul het formulier in.


Uw bericht is naar ons verzonden. Wij nemen zo snel mogelijk contact met u op.

Er is iets mis gegaan met het versturen van het formulier.
Controleer of u alle velden (goed) heeft ingevoerd en probeer het nog een keer.

recaptcha
reCAPTCHA
PrivacyTerms

Heeft u een vraag?
Bel ons (070) 365 00 00
of mail info@joostvanvliet.nl

Vergelijkbare woningen

Te koop
Mozartlaan 230
€ 265.000 k.k.