Klimopstraat 304, Bloemenbuurt
Gelegen op de hoek met de Rozenstraat, een heringedeeld 3/4 -kamer TOP-appartement voorzien van lichte woon-/eetkamer met vrij uitzicht, 2 slaapkamers, moderne keuken, toilet-/douchecombinatie en zonnig achterbalkon.
Het appartement is volledig voorzien van kunststof kozijnen met HR++ glas. Erfpacht eeuwigdurend afgekocht.
Centraal gelegen in de populaire Bloemenbuurt met om de hoek de winkels aan de Goudsbloemlaan, Thomsonlaan en Fahrenheitstraat, openbaar vervoer, scholen, sportfaciliteiten, Bosjes van Pex en strand, zee en duinen.
INDELING
Via fraai open portiek met granitovloeren en glas in lood bovenlichten, trap naar de 2e verdieping.
Entree appartement, ruime overloop, meterkast, geheel betegelde moderne toilet-/douchecombinatie met handdoekradiator en vaste kast met opstelplaats cv-ketel en wasmachineaansluiting.
Lichte woon-/eetkamer op de hoek gelegen voorzien van hoge plafonds en grote raampartijen (waaronder 2 erkers en een zijraam) met vrije doorkijk naar de Rozenstraat.
Aan de achterzijde gelegen, ruime en moderne keuken voorzien van inductiekookplaat, afzuigkap, oven, vaatwasser en tevens deur naar zonnig achterbalkon, gelegen op het zuidoosten.
Vanuit de keuken toegang tot de slaapkamers, te weten een tussengelegen ruime slaapkamer voorzien van wastafelmeubel, spiegelkast, kastenwand en een vaste kast. Tweede achterslaapkamer met vaste kast en vrije doorkijk naar de Laan van Meerdervoort.
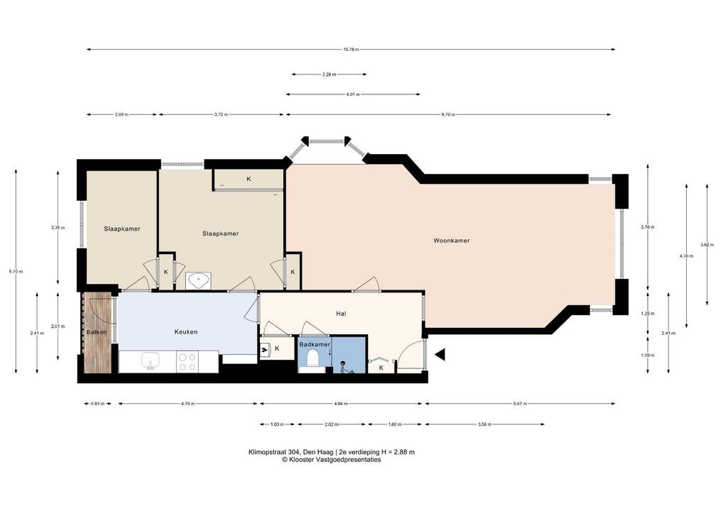
Voor de afmetingen van de kamers verwijzen wij u naar de plattegronden.
BIJZONDERHEDEN
Gelegen op eeuwigdurende erfpachtgrond, waarvan de canon is afgekocht.
Aanvaarding in overleg.
Rioolheffing 2025 € 191,15.
1/3e aandeel in de gemeenschap.
Actieve Vereniging van Eigenaren, bijdrage € 100,-- per maand.
Elektra 8 groepen met aardlekschakelaar.
Verwarming middels c.v.-combiketel, merk Remeha, bouwjaar 2019. Warmwatervoorziening middels c.v.-combiketel.
De onderhoudssituatie van het sanitair is goed en de keuken is goed tot uitstekend (3 jaar geleden vernieuwd).
De onderhoudssituatie is zowel binnen als buiten goed.
Het gehele appartement is 2 jaar geleden geheel voorzien van kunststof kozijnen met HR++ glas.
De niet-bewonersclausule is van toepassing.
Koper is vrij in notariskeuze, echter wel in regio Haaglanden.
De lood- /asbest- en ouderdomsclausules zijn van toepassing.
Bouwjaar 1926.
Woonoppervlakte ca. 83 m².
De inhoud van het appartement is ca. 305 m³.
Model NVM-koopakte van toepassing.
NABIJ
Winkels aan Goudsbloemlaan, Thomsonlaan, Fahrenheitstraat en op fietsafstand van Frederik Hendriklaan en Haagse binnenstad.
Bosjes van Pex, duinen, strand en zee, Badplaats Kijkduin, Haven van Scheveningen, musea en om de hoek van gezellige restaurants en terrasjes.
Tevens dicht bij openbaar vervoer, (RandstadRail lijn 3, tramlijn 12), uitvalswegen via Hubertustunnel en Westlandroute.
Nabij Europese en/of International School of The Hague, basisscholen en diverse sportfaciliteiten.
KADASTRALE INFORMATIE
Gemeente : ’s-Gravenhage
Sectie : W
Nummer : 5268
Appartementsindex : -3
De Meetinstructie is gebaseerd op de NEN2580. De Meetinstructie is bedoeld om een meer eenduidige manier van meten toe te passen voor het geven van een indicatie van de gebruiksoppervlakte. De Meetinstructie sluit verschillen in meetuitkomsten niet volledig uit, door bijvoorbeeld interpretatieverschillen,afrondingen of beperkingen bij het uitvoeren van de meting.
Interesse in dit huis? Schakel direct uw eigen NVM-aankoopmakelaar in.
Uw NVM-aankoopmakelaar komt op voor uw belang en bespaart u tijd, geld en zorgen.
Adressen van collega NVM-aankoopmakelaars in Haaglanden vindt u op Funda.
#######################################################
Situated on the corner of the Rozenstraat, this renovated 3/4-room, top-quality apartment features a bright living/dining room with unobstructed views, two bedrooms, a modern kitchen, a combined toilet/shower and a sunny rear balcony.
The apartment is fully equipped with PVC window frames with HR++ glass.
It is eternal leasehold of which the rent charge has been bought off.
Centrally located in the popular Bloemenbuurt district, just around the corner from the shops on the Goudsbloemlaan, Thomsonlaan, and Fahrenheitstraat, public transport, schools, sports facilities, Bosjes van Pex, and the beach, sea, and dunes.
LAYOUT
Stairs lead to the second floor through a beautiful open porch with granite floors and stained-glass skylights.
Entrance apartment, spacious landing, meter cupboard, fully tiled modern combined toilet/shower with a heated towel rail, and a built-in cupboard housing the central heating boiler and washing machine connection.
Bright living/dining room on the corner with high ceilings and large windows (including two bay windows and a side window) offering unobstructed views into the Rozenstraat.
Located at the rear of the house is a spacious and modern kitchen equipped with an induction cooking top, extractor hood, oven, dishwasher and a door to a sunny southeast-facing rear balcony.
The kitchen provides access to the bedrooms, including a spacious intermediate bedroom with a vanity, mirrored cabinet, wall-to-wall wardrobe, and built-in closet. A second rear bedroom also has a built-in closet and unobstructed views on the Laan van Meerdervoort.
For the dimensions of the rooms please refer to the floor plans.
SPECIAL FEATURES
Eternal lease-hold land which the rent charge has been bought off.
Acceptance in agreement.
Sewage charges 2025 € 191,15.
1/3rd share in the community.
Active Owners Association, contribution € 100,-- monthly.
Electricity 8 groups with circuit breaker.
Central heating system, brand Remeha, model 2019.
Hot water supply by central heating system.
The condition of the bathroom is good and the kitchen is good/excellent (renovated 3 years ago).
The condition of the interior as well as the exterior is good.
The entire apartment was fitted with synthetic window frames with HR++ glass 2 years ago.
The non-occupancy clause applies.
The buyer is free in his choice of notary, but in the Haaglanden region.
The lead-/asbestos and age clauses will be applied.
Built in 1926.
Living surface approx. 83 m².
The volume of the apartment approx. 305 m³.
NVM model deed applicable.
NEAR
Shops on Goudsbloemlaan, Thomsonlaan, Fahrenheitstraat and within cycling distance of Frederik Hendriklaan and the city center of The Hague.
Bosjes van Pex, dunes, beach and sea, boulevard of Kijkduin, Scheveningen harbor, museums and around the corner from cozy restaurants and terraces.
Also close to public transport (RandstadRail line 3, tram line 12), main roads via Hubertustunnel and Westlandroute.
Close to European and/or International School of The Hague, primary schools and various sports facilities.
Close to European- and International School of The Hague, various schools and sport facilities.
The measurement instruction is based on NEN2580. The measurement instruction is intended to apply a more uniform way of measuring for giving an indication of the use surface. The measurement instruction can not completely close differences in measurement results, for example by differences in interpretation, rounding or limitations in the performance of the measurement.

Wilt u meer weten over deze woning of een bezichtiging plannen? Bel of mail ons of vul het formulier in.
Heeft u een vraag?
Bel ons (070) 365 00 00
of mail info@joostvanvliet.nl

