Kauwlaan 9, Vogelwijk
In stijl van de architectuur (Nieuwe Haagse School) schitterend gerenoveerd en uitgebouwd (2021/2022) 6-kamer 2-onder-1 kapwoning voorzien van 2 badkamers en riante berging (voormalig atelier) in een fraai aangelegde zonnige tuin (2022/2023). Om de hoek van het Haanplein gelegen en op loopafstand van strand, zee en duinen.
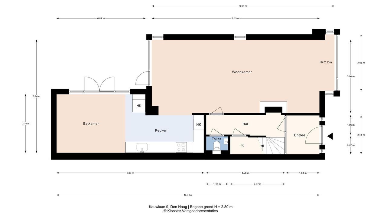
INDELING
Entree met luifel en originele voordeur, tochtseparatie van glas in lood en originele vloertegels doorgelegd in de gang, verdiepte trapkast, fraai betegeld modern toilet in de oude stijl met fontein.
Sfeervolle doorgebroken woon-/eetkamer met zijramen, zwart marmeren schouw, eiken visgraat parketvloer, voorerker en open doorgang naar een uitgebouwde eetkeuken voorzien van modern L-vormig keukenblok voorzien van combi-oven, inductiekookplaat met geïntegreerde afzuiging, vaatwasser, Quooker en koel-/vrieskast.
Vanuit de eetkamer hoge openslaande deuren naar een fraai aangelegde tuin voorzien van een ruime berging met elektra.
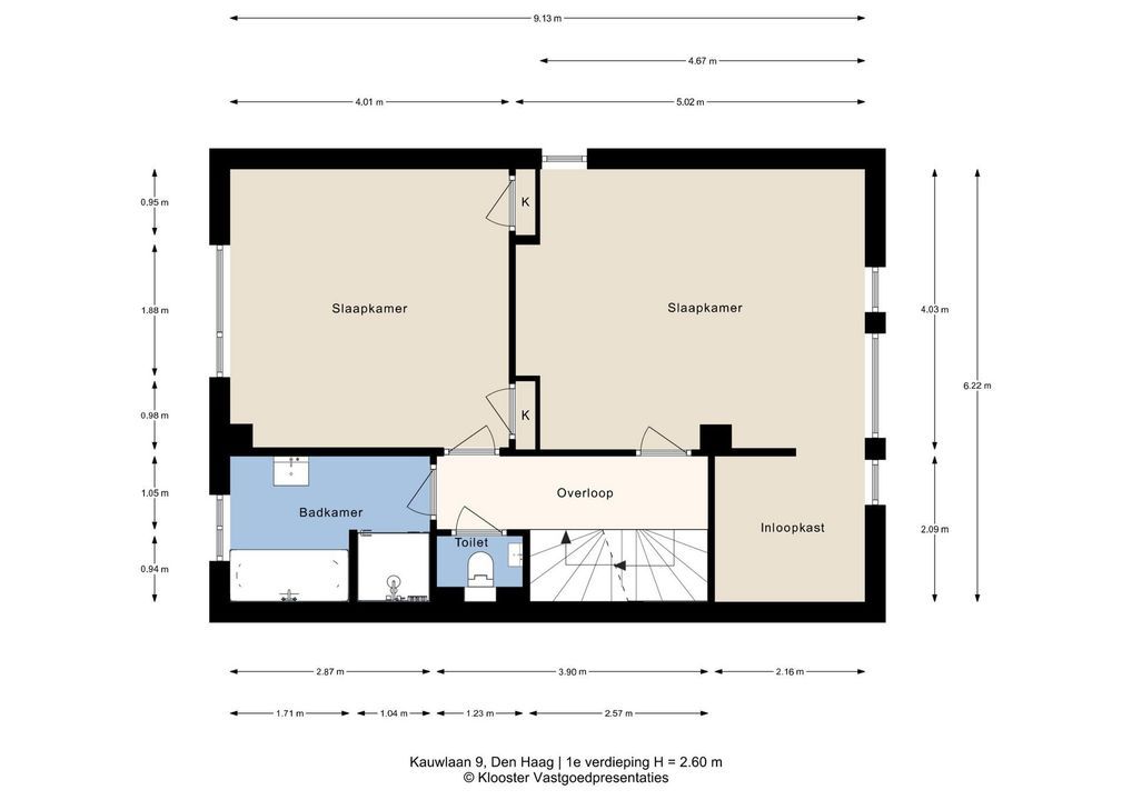
1e VERDIEPING
Overloop, wederom een modern toilet in stijl, vierkante achterslaapkamer voorzien van 2 vaste kasten, in stijl betegelde moderne badkamer voorzien van ligbad, inloop (stort) douche, en wastafelmeubel, ruime voorslaapkamer met open doorgang naar een voorzijkamer thans ingedeeld als een “walk-in closet”. De gehele verdieping is voorzien van een eiken visgraat parketvloer.
2e VERDIEPING
Overloop met een dakraam en het spant, ruime zolderkamer voorzien van dakkapel in het zij-dakschild en open moderne fraai betegelde 2e badkamer voorzien van inloop (stort) douche, toiliet, badkamermeubel en aansluitingen voor de wasmachine en droger, bergruimte aan de voorzijde.
Voor de afmetingen van de kamers verwijzen wij u naar de plattegronden.
BIJZONDERHEDEN
Gelegen op eeuwigdurende erfpachtgrond. De canon bedraagt € 3.234,-- per jaar, gebaseerd op een grondwaarde van € 77.000,-- (=afkoopsom) en een canonpercentage van 4.2%. Herziening canonpercentage per 1 januari 2029.
Aanvaarding in overleg.
Rioolheffing 2025 € 191,15.
Elektra 11 groepen met 3 aardlekschakelaars en hoofdschakelaar.
Verwarming middels c.v.-combiketel, merk Intergas, bouwjaar 2015.
Warmwatervoorziening middels c.v.-combiketel.
De onderhoudssituatie van het sanitair en de keuken is goed tot uitstekend.
De onderhoudssituatie binnen is goed tot uitstekend en buiten goed.
De woning is gebouwd met spouw-/klampmuren.
De gehele woning is voorzien van eiken visgraat parketvloer met uitzondering van de zolderkamer.
De woning is voorzien van veel authentieke details zoals paneeldeuren en tochtseparatie met glas in lood, marmeren schouw, tegelwerk, radiatoren.
Gemeentelijk beschermd stadsgezicht.
Geen olietank. KIWA-certificaat aanwezig.
Koper is vrij in notariskeuze, echter wel in regio Haaglanden.
De lood- /asbest- en ouderdomsclausules zijn van toepassing.
Bouwjaar ca. 1929.
Woonoppervlakte ca. 158 m².
De inhoud van de woning is ca. 615 m³.
De woning is bouwkundig gekeurd.
Model NVM-koopakte van toepassing.
NABIJ
Winkels aan de Goudsbloemlaan, Fahrenheitstraat, Thomsonlaan, Frederik Hendriklaan, het De Savornin Lohmanplein en de Haagse binnenstad.
Bosjes van Pex, duinen, strand en zee, Badplaats Kijkduin, Haven van Scheveningen, restaurants en musea.
Openbaar vervoer, (RandstadRail lijn 3, tramlijn 11, bus 24), uitvalswegen via Hubertustunnel en Westlandroute.
Nabij Europese en/of International School of The Hague, basisscholen en diverse sportfaciliteiten.
KADASTRALE INFORMATIE:
Gemeente : ‘s-Gravenhage
Sectie : AO
Nummer : 1946
Grootte : 3 are 10 centiare.
De Meetinstructie is gebaseerd op de NEN2580. De Meetinstructie is bedoeld om een meer eenduidige manier van meten toe te passen voor het geven van een indicatie van de gebruiksoppervlakte. De Meetinstructie sluit verschillen in meetuitkomsten niet volledig uit, door bijvoorbeeld interpretatieverschillen, afrondingen of beperkingen bij het uitvoeren van de meting.
Interesse in dit huis? Schakel direct uw eigen NVM-aankoopmakelaar in.
Uw NVM-aankoopmakelaar komt op voor uw belang en bespaart u tijd, geld en zorgen.
Adressen van collega NVM-aankoopmakelaars in Haaglanden vindt u op Funda.
********************************************************************************************
ENGELSE TEKST:
This beautifully renovated and extended (2021/2022) 6-room semi-detached house, in the style of the New Hague School architecture, features 2 bathrooms and a spacious storage room (former studio) in a beautifully landscaped, sunny garden (2022/2023). Located around the corner from Haanplein and within walking distance of the beach, sea, and dunes.
LAYOUT
Entrance with an awning and original front door, stained glass draft divider and original floor tiles extending into the hallway, a recessed under-stairs cupboard, and a beautifully tiled modern toilet in the original style with a hand basin.
Attractive open-plan living/dining room with side windows, a black marble fireplace, oak herringbone parquet flooring, a bay window, and an open passageway leading to an extended kitchen/diner with a modern L-shaped kitchen unit featuring a combination oven, induction cooktop with integrated extractor hood, dishwasher, Quooker, and refrigerator/freezer.
From the dining room, tall French doors open onto a beautifully landscaped garden with a spacious storage room with electricity.
1st FLOOR
Landing, another modern, stylish toilet, square rear bedroom with two built-in wardrobes, a stylishly tiled modern bathroom with a bathtub, walk-in shower, and vanity unit, a spacious front bedroom with an open passageway to a side room currently used as a walk-in closet. The entire floor has an oak herringbone parquet floor.
2nd FLOOR
Landing with a skylight and truss, a spacious attic room with a dormer window in the side roof slope, and an open, modern, beautifully tiled second bathroom with a walk-in shower, toilet, vanity unit, and connections for a washing machine and dryer. Storage space at the front.
- For the dimensions of the rooms please refer to the floor plans.
SPECIAL FEATURES
Eternal lease-hold land. The rent charge is € 3,234.-- per year, based on a land value of
€ 77,000.-- (= redemption) and a rent rate of 4.2%. Review rent rates by January 1st, 2029.
Acceptance in agreement.
Sewage charges 2025 € 191,15.
Electricity 11 groups with 3 circuit breakers and main switch.
Central heating system, brand Intergas, built in 2015.
Hot water supply by central heating system.
The condition of the bathroom and the kitchen is good/excellent.
The condition of the interior is good/excellent and the exterior good.
The house is built with cavity walls.
The entire house has oak herringbone parquet flooring, with the exception of the attic.
The house features many authentic details, such as panel doors a draft excluder with stained glass, a marble fireplace, tiling, and radiators.
Part of the conservation area of the village or town.
No oil tank. KIWA certificate available.
The buyer is free to choose a notary, but must be located in the Haaglanden region.
The lead-/asbestos and age clauses will be applied.
Built in approx. 1929.
Living surface approx. 158 m².
The volume of the house approx. 615 m³.
Technical survey available.
NVM model deed applicable.
NEAR
Shops on the Goudsbloemlaan, Fahrenheitstraat, Thomsonlaan, the De Savornin Lohmanplein, Reinkenstraat, Frederik Hendriklaan and Center of The Hague.
Bosjes van Poot, Bosjes van Pex, dunes, beach and sea, Boulevard of Kijkduin, Harbor of Scheveningen, restaurants and museums.
Public transport (RandstadRail Line 3, Bus 24) and main roads through Westland Road and Hubertustunnel.
Close to European- and International School of The Hague, various schools and sport facilities.
The measurement instruction is based on NEN2580. The measurement instruction is intended to apply a more uniform way of measuring for giving an indication of the use surface. The measurement instruction can not completely close differences in measurement results, for example by differences in interpretation, rounding or limitations in the performance of the measurement.




Wilt u meer weten over deze woning of een bezichtiging plannen? Bel of mail ons of vul het formulier in.
Heeft u een vraag?
Bel ons (070) 365 00 00
of mail info@joostvanvliet.nl


