Houtrustlaan 34, Den Haag

Houtrustlaan 34 vraagprijs  € 795.000 k.k.


Houtrustlaan 34, Vogelwijk

Tegenover de Bosjes van Poot gelegen en op loopafstand van strand, zee en duinen 6-kamer parterre woning met tussenbouw op de 2e verdieping met een ruime achtertuin vrij gelegen op het zuidwesten.

INDELING:
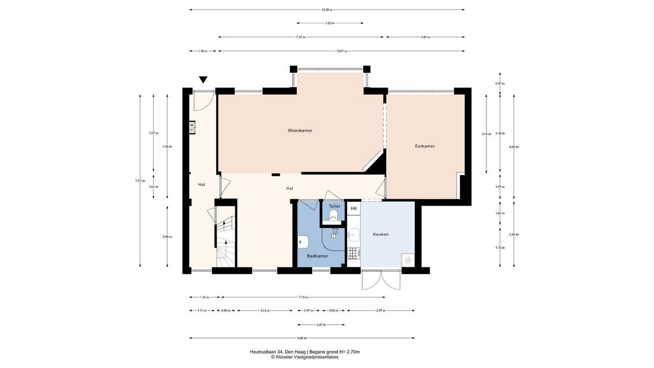
Entree met een brede voortuin, gang met directe toegang naar de achtertuin, toegang naar de kelder welke is voorzien van een wasmachineaansluiting.

Doorgebroken, riante woon-/eetkamer (voorheen 4 kamers!) met lamellen parketvloer, hout open haard, voorerker en doorgang naar een badkamer voorzien van een wastafel en hoekdouche, toilet met vrij hangend reservoir.

Brede keuken voorzien van een 4-pits gasfornuis, afzuigkap, vaatwasser en openslaande deuren naar een vrij en op het zuidwesten gelegen ruime achtertuin voorzien van een houten berging.

2e VERDIEPING
Overloop, toilet, ruime en lichte achterslaapkamer met een groot dakkapel over de gehele breedte, speelse voorslaapkamer met dakkapel en vaste trap naar een vide voorzien van 2 dakramen.

Voor de afmetingen van de kamers verwijzen wij u naar de plattegronden.

BIJZONDERHEDEN
Gelegen op eeuwigdurende erfpachtgrond, waarvan de canon is afgekocht.
Aanvaarding in overleg.
Rioolheffing 2026 € 195,40 per jaar.
1/2e aandeel in de gemeenschap.
Actieve Vereniging van Eigenaren, bijdrage € 85,-- per maand.
Elektra 4 groepen met aardlekschakelaar.
Verwarming middels c.v.-combiketel, merk Remeha, bouwjaar 2015. Warmwatervoorziening middels c.v.-combiketel.
De onderhoudssituatie van het sanitair en de keuken is goed/redelijk.
De onderhoudssituatie is zowel binnen als buiten goed.
Het appartement is voorzien van kunststof kozijnen met dubbel glas en houten kozijnen met enkel glas.
Naar ontwerp van architect Z. Hoek en W. Verschoor.
Gemeentelijk beschermd stadsgezicht.
Projectnotaris van toepassing
De lood- /asbest- en ouderdomsclausules zijn van toepassing.
Bouwjaar 1919.
Woonoppervlakte ca. 126 m².
De inhoud van het appartement is ca. 480 m³.
Het appartement is bouwkundig gekeurd.
Model NVM-koopakte van toepassing.

NABIJ
De gezellige winkelstraten Fahrenheitstraat en Frederik Hendriklaan vindt u op loopafstand. Ook de Haagse binnenstad is eenvoudig te bereiken per fiets of openbaar vervoer. Liever de rust van de duinen en het strand opzoeken? Ook hier kunt u eenvoudig naartoe lopen.
Verschillende (basis)scholen, de Europese/International School of The Hague en diverse sportmogelijkheden vindt u om de hoek van deze woning.

KADASTRALE INFORMATIE
Gemeente : ’s-Gravenhage
Sectie : AO
Nummer : 2847
Appartementsindex : -1

De Meetinstructie is gebaseerd op de NEN2580. De Meetinstructie is bedoeld om een meer eenduidige manier van meten toe te passen voor het geven van een indicatie van de gebruiksoppervlakte. De Meetinstructie sluit verschillen in meetuitkomsten niet volledig uit, door bijvoorbeeld interpretatieverschillen,afrondingen of beperkingen bij het uitvoeren van de meting.

Interesse in dit huis? Schakel direct uw eigen NVM-aankoopmakelaar in.
Uw NVM-aankoopmakelaar komt op voor uw belang en bespaart u tijd, geld en zorgen.
Adressen van collega NVM-aankoopmakelaars in Haaglanden vindt u op Funda.

####################################################

Located opposite the Bosjes van Poot and within walking distance of the beach, sea, and dunes, this 6-room ground-floor apartment features an intermediate structure on the 2nd floor and a private, spacious southwest-facing back garden.

LAYOUT
Entrance with a wide front garden, hallway with direct access to the backyard, and access to the basement, which is equipped with a washing machine connection.

Spacious open-plan living/dining room (formerly 4 rooms!) with laminate parquet flooring, wood fireplace, front bay window, and passage to a bathroom equipped with a washbasin, corner shower, and toilet with a wall-mounted cistern.

Wide kitchen equipped with a 4-burner gas stove, extractor hood, dishwasher, and French doors opening onto a spacious, private, southwest-facing back garden featuring a wooden shed.

SECOND FLOOR
Landing, toilet, spacious and bright rear bedroom with a large dormer window spanning the entire width, playful front bedroom with a dormer window and a fixed staircase to the mezzanine featuring 2 skylights.

For the dimensions of the rooms please refer to the floor plans.

SPECIAL FEATURES
Eternal lease-hold land which the rent charge has been bought off.
Acceptance in agreement.
Sewerage charges 2026 € 195,40 per year.
1/2 share in the community.
Active Owners Association, contribution € 85.-- each month.
Electricity 4 groups with circuit breaker.
Central heating system, brand Remeha, built in 2015.
Hot water supply by central heating system.
The condition of the bathroom and the kitchen is good/reasonable.
The condition of the interior as well as the exterior is good.
The apartment has synthetic window frames with double glazing and wooden window frames with single glazing.
Designed by architects Z. Hoek and W. Verschoor.
Part of the conservation area of the village or town.
Project notary applicable.
The lead-/asbestos and age clauses will be applied.
Built in 1919.
Living surface approx. 126 m².
The volume of the apartment approx. 480 m³.
Technical survey available.
NVM model deed applicable.

NEAR
The nice shopping districts Fahrenheitstraat and Frederik Hendriklaan are just a walking distance away. Also, the city centre of The Hague is easily accessible by car or public transport. If you prefer the quietness of the dunes and the beach you can also access them easily by foot.
Different schools, including the European/International School of The Hague are in close vicinity. If you are looking for sport facilities there are multiple options close by: ranging from football, to tennis to squash and more..

The measurement instruction is based on NEN2580. The measurement instruction is intended to apply a more uniform way of measuring for giving an indication of the use surface. The measurement instruction can not completely close differences in measurement results, for example by differences in interpretation, rounding or limitations in the performance of the measurement.

Locatie

[ { "address": "Houtrustlaan 34", "zipCode": "2566 ZV", "city": "Den Haag", "lat": 52.0855359, "lng": 4.2650105, "heading": 0, "pitch": 0 } ]

Kenmerken

Vraagprijs
€ 795.000 k.k.
Status
Beschikbaar
Oplevering
In overleg

Bouw

Soort appartement
Beneden + bovenwoning, Appartement
Woonlaag
1
Soort bouw
Bestaande bouw
Bouwjaar
1919
Onderhoud binnen
Goed
Onderhoud buiten
Goed
Bijzonderheden
Beschermd stads- of dorpgezicht

Oppervlakten en inhoud

Woonoppervlakte
126m²
Overig oppervlakte
9m²
Inhoud
480m³

Indeling

Aantal kamers
6
Aantal slaapkamers
2
Aantal badkamers
1
Aantal verdiepingen
5

Energie

Energielabel
E
Isolatie
Gedeeltelijk dubbel glas
Warm water
C.V.-ketel
Verwarming
C.V.-ketel
Ketel
Remeha (2015, Combi-ketel, Eigendom)

Buitenruimte

Ligging
Aan bosrand, Aan rustige weg, In bosrijke omgeving, In woonwijk, Open ligging, Vrij uitzicht
Tuin
Achtertuin, Voortuin
Achtertuin
Zuidwest, 930×1080cm
Schuur
Vrijstaand hout

Garage

Plattegronden

Bekijk verloop van de zon

Uw browser ondersteunt geen WebGL

Afspraak of contact

Wilt u meer weten over deze woning of een bezichtiging plannen? Bel of mail ons of vul het formulier in.


Uw bericht is naar ons verzonden. Wij nemen zo snel mogelijk contact met u op.

Er is iets mis gegaan met het versturen van het formulier.
Controleer of u alle velden (goed) heeft ingevoerd en probeer het nog een keer.

recaptcha
reCAPTCHA
PrivacyTerms

Heeft u een vraag?
Bel ons (070) 365 00 00
of mail info@joostvanvliet.nl

Vergelijkbare woningen