Hoenderlaan 7, Vogelwijk
Op de hoek van het IJsvogelplein gelegen, uitgebouwde sfeervolle 6 kamer hoekwoning gelegen op een zonnig kavel waarvan de achtertuin zonnig op het zuiden ligt en voorzien is van een vrijstaande garage.
Erfpacht eeuwigdurend afgekocht.
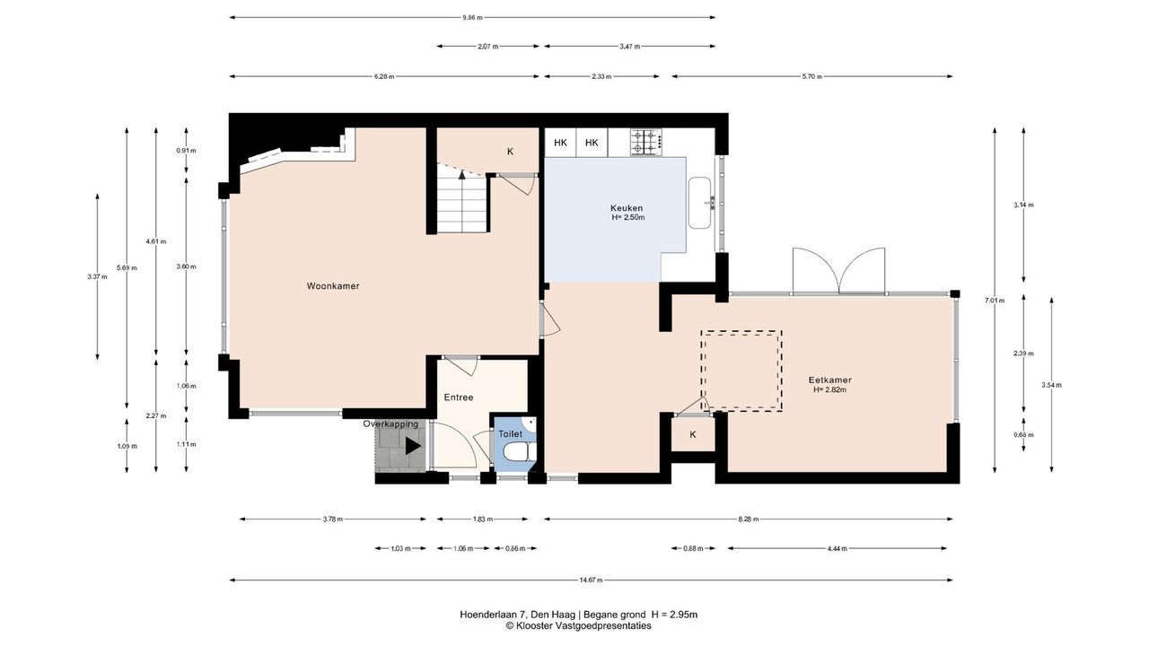
INDELING
Portaal met de originele voordeur en entree van de woning aan de zijgevel, vestibule met zijraam van glas in lood en garderobe. Zwart/wit betegeld toilet met duoblok en fontein. Tochtdeur en visgraat parketvloer doorgelegd in de lichte zitkamer voorzien van hout open haard. Trappenkast, open trap naar de 1e verdieping en toegang naar de uitgebouwde sfeervolle eet-/tuinkamer annex open ruime keuken met L-vorig keukenblok voorzien van magnetron, koel-/vrieskast, 4 pits gasfornuis, afzuigkap, oven, close in boiler, vaatwasser en grijs composiet aanrechtblad.
Beide ruimtes zijn voorzien van marmeren vloertegels en rondom voorzien van veel glas waardoor er prachtig zicht is op de riante en zonnige op het zuiden gelegen achtertuin voorzien van een vrijstaande garage en een houten schuur.
1e VERDIEPING
Overloop, riante achterslaapkamer met een bijgetrokken zijkamer, tussengelegen nette badkamer voorzien van inloopdouche, toilet, bidet, wastafel en vloerverwarming en ramen van glas in lood.
Ruime voorslaapkamer voorzien van 2 kastenwanden en uitzicht op het IJsvogelplein.
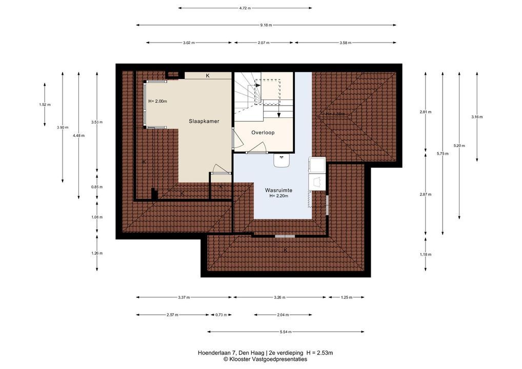
2de VERDIEPING
Overloop, voorslaapkamer met dakkapel waarvan de “wangen” voorzien zijn van glas, achterkamer is ingedeeld als wasruimte met een wastafel en veel bergruimte. Mogelijkheid om deze kamer substantieel te vergroten door het plaatsen van een dakkapel.
Voor de afmetingen van de kamers verwijzen wij u naar de plattegronden.
BIJZONDERHEDEN
Gelegen op eeuwigdurende erfpachtgrond, waarvan de canon is afgekocht.
Aanvaarding in overleg.
Rioolheffing 2026 € 195,40.
Elektra 11 groepen met aardlekschakelaar.
Verwarming middels c.v.-combiketel, merk ATAG, bouwjaar 2012.
Warmwatervoorziening middels c.v.-combiketel en elektrische boiler in eigendom.
De woning is voorzien van een hydrofoor.
De onderhoudssituatie van het sanitair en de keuken is goed.
De onderhoudssituatie is zowel binnen als buiten goed.
De woning is voorzien van houten kozijnen met dubbel glas.
Gemeentelijk beschermd stadsgezicht.
Koper is vrij in notariskeuze, echter wel in regio Haaglanden.
De lood- /asbest- en ouderdomsclausules zijn van toepassing.
Bouwjaar 1927.
Woonoppervlakte ca. 157 m².
De inhoud van de woning is ca. 630 m³.
De woning is bouwkundig gekeurd.
Model NVM-koopakte van toepassing.
NABIJ
Winkels aan de Fahrenheitstraat, Thomsonlaan, Frederik Hendriklaan, Goudsbloemlaan en Haagse binnenstad.
Bosjes van Poot, duinen, strand en zee, Haven van Scheveningen, restaurants en musea.
Openbaar vervoer, (tramlijn 12, bus 22 en 24), uitvalswegen via Hubertustunnel en Westlandroute.
Nabij Europese en/of International School of The Hague, basisscholen en diverse sportfaciliteiten.
KADASTRALE INFORMATIE:
Gemeente : ‘s-Gravenhage
Sectie : AO
Nummer : 905
Grootte : 4 are 50 centiare
De Meetinstructie is gebaseerd op de NEN2580. De Meetinstructie is bedoeld om een meer eenduidige manier van meten toe te passen voor het geven van een indicatie van de gebruiksoppervlakte. De Meetinstructie sluit verschillen in meetuitkomsten niet volledig uit, door bijvoorbeeld interpretatieverschillen, afrondingen of beperkingen bij het uitvoeren van de meting.
Interesse in dit huis? Schakel direct uw eigen NVM-aankoopmakelaar in.
Uw NVM-aankoopmakelaar komt op voor uw belang en bespaart u tijd, geld en zorgen.
Adressen van collega NVM-aankoopmakelaars in Haaglanden vindt u op Funda.
###############################################
Situated on the corner of IJsvogelplein, this attractive, extended 6-room corner house sits on a sunny plot with a south-facing back garden and has a detached garage.
Leasehold purchased in perpetuity.
LAYOUT
A porch with the original front door and entrance to the house is located on the side wall, along with a vestibule featuring a stained-glass side window and a coat closet. A black and white tiled toilet with hand basin. A door and herringbone parquet flooring extend into the bright living room, complete with a wood-burning fireplace. A staircase cupboard, open staircase to the first floor, and access to the extended, inviting dining/garden room and spacious open-plan kitchen with an L-shaped unit equipped with a microwave, fridge-/freezer combination, 4-burner gas stove, extractor hood, oven, close-in water heater, dishwasher, and Gray composite countertop.
Both rooms feature marble flooring and ample glass, offering a beautiful view of the spacious and sunny south-facing back garden, complete with a detached garage and a wooden shed.
FIRST FLOOR
Landing, spacious rear bedroom with an adjoining side room, and a neat bathroom with a walk-in shower, toilet, bidet, sink, underfloor heating, and stained-glass windows.
Spacious front bedroom with two wardrobes and a view of IJsvogelplein.
SECOND FLOOR
Landing, front bedroom with a dormer window featuring glazed windows, and a rear room used as a laundry room with a sink and ample storage. Possibility to substantially enlarge this room by installing a dormer window.
- For the dimensions of the rooms please refer to the floor plans.
SPECIAL FEATURES
Eternal lease-hold land which the rent charge has been bought off.
Acceptance in agreement.
Sewage charges 2026 € 195,40.
Electricity 11groups with circuit breaker.
Central heating system, brand ATAG, built in 2012.
Hot water supply by central heating system and electric boiler in (owned).
The house is equipped with a hydrophore.
The condition of the bathroom and the kitchen is good.
The condition of the interior and exterior is good.
The house has wooden window frames with double lazing.
Part of the conservation area of the village or town.
The buyer is free to choose a notary, but must be located in the Haaglanden region.
The lead-/asbestos and age clauses will be applied.
Built in 1927.
Living surface approx. 157 m².
The volume of the house approx. 630 m³.
Technical survey available.
NVM model deed applicable.
NEAR
Shops at the Fahrenheitstraat, Thomsonlaan, Frederik Hendriklaan, Goudsbloemlaan and Center of The Hague.
Bosjes van Poot, dunes, beach and sea, Harbor of Scheveningen, restaurants and museums.
Public transport (Tram Line 12 and Bus 22, 24) and main roads through Westland Road and Hubertustunnel.
The measurement instruction is based on NEN2580. The measurement instruction is intended to apply a more uniform way of measuring for giving an indication of the use surface. The measurement instruction can not completely close differences in measurement results, for example by differences in interpretation, rounding or limitations in the performance of the measurement.




Wilt u meer weten over deze woning of een bezichtiging plannen? Bel of mail ons of vul het formulier in.
Heeft u een vraag?
Bel ons (070) 365 00 00
of mail info@joostvanvliet.nl


