Eiberplein 2, Vogelwijk
Om de hoek van de strandopgang, schitterend aan het Eiberplein gelegen ruim 197 m2, 9 kamer 4-laags stijlvol herenhuis op een kavel van 242 m2, in een goede staat van onderhoud met maar liefst 7 slaapkamers, kelder en 2 badkamers.
‘Wij hebben hier met onze 3 kinderen met erg veel plezier gewoond. Alle vrijheid om voor de deur om te spelen op het plein en naar het strand te gaan. Nu de kinderen het huis uit zijn, is het tijd om kleiner te gaan wonen.’
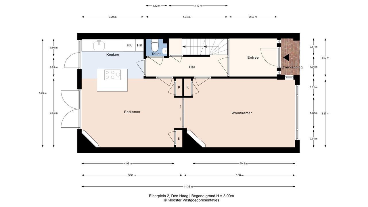
INDELING
Voortuin met verzonken fietsenberging en portaal, entree met de originele voordeur, vestibule met fraaie granieten vloer, voorzien van ornament en tochtseparatie, gang met een fraaie tegelvloer doorgelegd in de keuken, toegang naar een ruime kelder opgedeeld in 2 ruimtes, sfeervolle kamer ensuite voorzien van schuifseparatie met glas in lood en 3 vaste kasten, 2 zwart marmeren schouwen met gas- en hout openhaard, visgraatparketvloer en open klassieke keuken met een kookeiland voorzien van 5 pits gasfornuis en afzuigkap, verder een recht keukenblok met combi magnetron, koel/vrieskast, verzonken spoelbak en vaatwasser. Beide keukenblokken zijn voorzien van een zwart natuurstenen aanrechtblad. Riante achtertuin van ruim 20 meter diep, voorzien van 2 terrassen en een veranda.
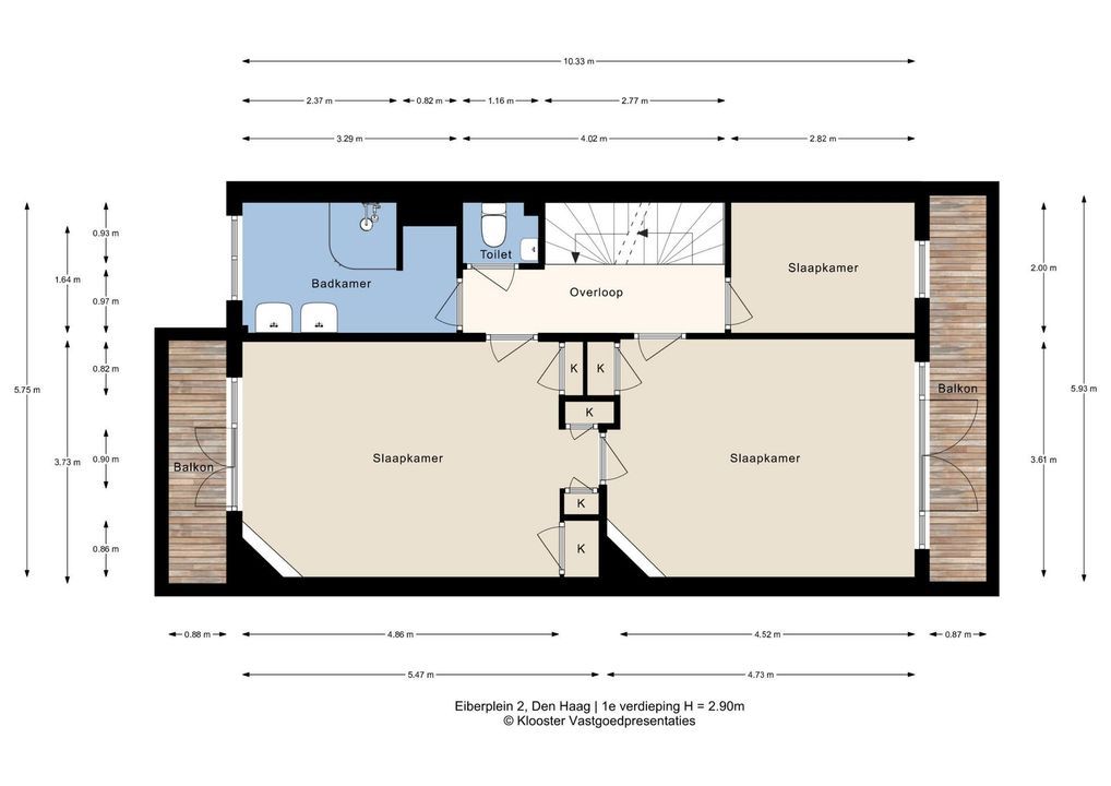
1e VERDIEPING
Overloop, toilet met de originele wandtegels en fontein, badkamer met een fraaie tegelvloer en inloop (stort)douche en 2 wastafels, kamer ensuite met 5 vaste kasten, beide kamers voorzien van een marmeren schouw en toegang naar balkons, voorzijkamer.
2e VERDIEPING
Overloop, toilet met originele wandtegels en fontein, achterzijkamer, riante achterslaapkamer voorzien van 2 vaste kasten, voorslaapkamer voorzien van een dakkapel en 2 vaste kasten, 2e badkamer zwart/wit betegeld voorzien van ligbad, wastafel en douchecabine.
3e VERDIEPING
Overloop, slaapkamer met een nokhoogte van 2.15 meter. Het achterdakschild beslaat vrijwel de gehele breedte en is voorzien van een dakkapel en voorzien van knieschotten.
Voor de afmetingen van de kamers verwijzen wij u naar de plattegronden.
BIJZONDERHEDEN
Gelegen op eeuwigdurende erfpachtgrond, waarvan de canon is afgekocht.
Aanvaarding in overleg.
Rioolheffing 2025 € 191,15.
Elektra 12 groepen, 3 aardlekschakelaars, 1 hoofdschakelaar en 3 fases.
De woning is voorzien van 17 zonnepanelen.
Verwarming middels c.v.-combiketel, merk Vaillant, bouwjaar 2006.
Warmwatervoorziening middels c.v.-combiketel.
De onderhoudssituatie van het sanitair en de keuken is goed.
De onderhoudssituatie binnen en buiten is goed.
De woning is aan de voorzijde voorzien van kunststof kozijnen met HR glas en aan de achterzijde van kunststof/houten kozijnen met HR glas.
Gemeentelijk beschermd stadsgezicht.
Geen olietank. KIWA-certificaat aanwezig.
Koper is vrij in notariskeuze, echter wel in regio Haaglanden.
De lood- /asbest- en ouderdomsclausules zijn van toepassing.
Bouwjaar 1929.
Woonoppervlakte ca. 197 m².
De inhoud van de woning is ca. 785 m³.
De woning is bouwkundig gekeurd.
Model NVM-koopakte van toepassing.
NABIJ
Winkels aan de Goudsbloemlaan, Fahrenheitstraat, Thomsonlaan Frederik Hendriklaan, het De Savornin Lohmanplein en de Haagse binnenstad.
Bosjes van Pex, duinen, strand en zee, Badplaats Kijkduin, Haven van Scheveningen, restaurants en musea.
Openbaar vervoer, (RandstadRail lijn 3, bus 24), uitvalswegen via Hubertustunnel en Westlandroute.
Nabij Europese en/of International School of The Hague, basisscholen en diverse sportfaciliteiten.
KADASTRALE INFORMATIE:
Gemeente : ‘s-Gravenhage
Sectie : AO
Nummer : 2437
Grootte : 156
De Meetinstructie is gebaseerd op de NEN2580. De Meetinstructie is bedoeld om een meer eenduidige manier van meten toe te passen voor het geven van een indicatie van de gebruiksoppervlakte. De Meetinstructie sluit verschillen in meetuitkomsten niet volledig uit, door bijvoorbeeld interpretatieverschillen, afrondingen of beperkingen bij het uitvoeren van de meting.
Interesse in dit huis? Schakel direct uw eigen NVM-aankoopmakelaar in.
Uw NVM-aankoopmakelaar komt op voor uw belang en bespaart u tijd, geld en zorgen.
Adressen van collega NVM-aankoopmakelaars in Haaglanden vindt u op Funda.
****************************************************
Around the corner from the beach access, beautifully situated on the Eiberplein, spacious 197 m2, 9-room 4-storey townhouse on a plot of 156 m2 in a good state of maintenance with no less than 7 bedrooms, basement and 2 bathrooms.
“We've really enjoyed living here with our three children. All the freedom to play in front of the door on the square and go to the beach right outside our door. Now that the kids have left home, it's time to downsize.”
LAY-OUT
Front garden with a bicycle shed and porch, entrance with the original front door, vestibule with a beautiful granite floor, ornamentation and a draft barrier, a hallway with a beautiful tiled floor extending into the kitchen, access to a spacious basement divided into 2 rooms, a charming ensuite room with sliding doors, stained glass, and 3 built-in cupboards, 2 black marble fireplaces (gas and wood-burning), herringbone parquet flooring, and an open-plan classic kitchen with a cooking island equipped with a 5-burner gas stove and extractor hood. A straight kitchen unit with a combination microwave, refrigerator/freezer, recessed sink and dishwasher. Both kitchen units have black natural stone countertop. A spacious backyard of more than 20 meters deep features 2 patios and a veranda.
FIRST FLOOR
Landing, toilet with original wall tiles and a hand basin, bathroom with a beautiful tiled floor and a walk-in shower and two sinks, ensuite bedroom with five built-in wardrobes, both rooms featuring a marble fireplace and access to a balcony, front side room.
SECOND FLOOR
Landing, toilet with original wall tiles and a hand basin, rear side room, spacious rear bedroom with two built-in wardrobes, front bedroom with a dormer window and two built-in wardrobes, second bathroom tiled in black and white with a bathtub, sink and shower.
THIRD FLOOR
Landing, bedroom with a ridge height of 2.15 meters. The rear roof slope spans almost the entire width and features a dormer window and knee walls.
For the dimensions of the rooms please refer to the floor plans.
SPECIAL FEATURES
Eternal lease-hold land which the rent charge has been bought off.
Acceptance in agreement.
Sewage charges 2025 € 191,15.
Electricity 12 groups, 3 circuit breakers, 1 main switch and 3 phase.
The house has 17 solar panels.
Central heating system, brand Vaillant, model 2006.
Hot water supply by central heating system.
The condition of the bathroom and the kitchen is good.
The condition of the interior and exterior is good.
The house has wooden window frames with HR glazing in the front and at the back wooden/synthetic frames with HR glazing.
Part of the conservation area of the village or town.
No oil tank. KIWA certificate available.
The buyer is free to choose a notary, but must be located in the Haaglanden region.
The lead-/asbestos and age clauses will be applied.
Built in 1929.
Living surface approx. 197 m².
The volume of the house approx. 785 m³.
Technical survey available.
NVM model deed applicable.
NEAR
Shops at the Goudsbloemlaan, Fahrenheitstraat, Thomsonlaan, Frederik Hendriklaan, het De Savornin Lohmanplein and the Center of The Hague.
Bosjes van Pex, dunes, beach and sea, Boulevard of Kijkduin, Harbor of Scheveningen, restaurants and museums.
Public transport (RandstadRail Line 3, Bus 24) and main roads through Westland Road and Hubertustunnel.
Close to European- and International School of The Hague, various schools and sport facilities.
The measurement instruction is based on NEN2580. The measurement instruction is intended to apply a more uniform way of measuring for giving an indication of the use surface. The measurement instruction can not completely close differences in measurement results, for example by differences in interpretation, rounding or limitations in the performance of the measurement.






Wilt u meer weten over deze woning of een bezichtiging plannen? Bel of mail ons of vul het formulier in.
Heeft u een vraag?
Bel ons (070) 365 00 00
of mail info@joostvanvliet.nl


