De Savornin Lohmanlaan 509, Vogelwijk
Op een riant en zonnig kavel van 462 m² tegenover de duinen gelegen 7 kamer hoekwoning met vrijstaande garage en mogelijkheid tot parkeren op eigen terrein.
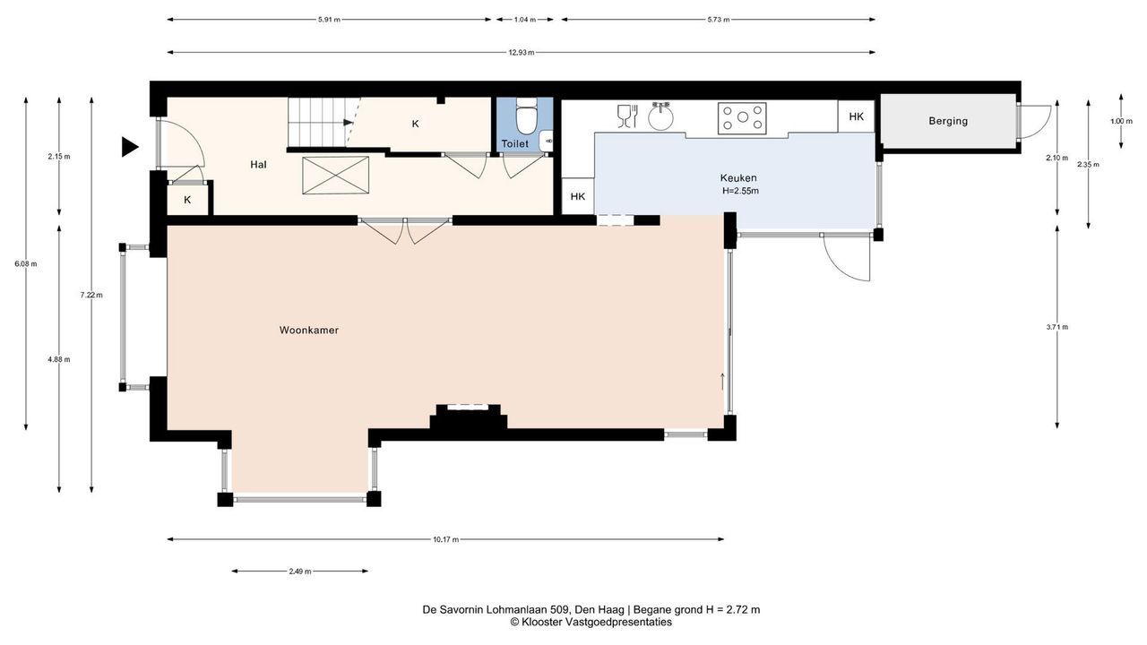
INDELING
Entree, gang met houten lamellen parketvloer doorgelegd in de woonkamer, verdiepte trapkast, toilet met duoblok en fontein, openslaande deuren naar de lichte woon/eetkamer met voor- en zij erker, gas openhaard met zandstenen schouw en open doorgang naar de uitgebouwde keuken voorzien van natuurstenen aanrechtblad, 5 pits gasfornuis met frituur, vaatwasser, koel/vrieskast, close-in boiler, oven en magnetron. Vanuit de keuken/woonkamer toegang naar een schitterende tuin met stenen garage voorzien van elektrische kanteldeur, beregening en tuinverlichting installatie. De achtertuin is af te sluiten met een hoge schutting en op eigen terrein is er ruimte om 2 à 3 auto’s te parkeren.
1e VERDIEPING
Overloop, toilet met duoblok en fontein, achterslaapkamer voorzien van kastenwand annex ruim balkon en zwart/wit betegelde badkamer voorzien van inloop (stort)douche en badkamermeubel, voorzijkamer, voorslaapkamer annex balkon en vrij uitzicht op de duinen.
2e VERDIEPING
Overloop met toegang naar een ruime vliering, bergruimte onder het voordakschild, doorgebroken zolderkamer (voorheen 2 slaapkamers) met dakkapellen, 2e badkamer met douche, wastafel en wasmachine/droger opstelling.
Voor de afmetingen van de kamers verwijzen wij u naar de plattegronden.
BIJZONDERHEDEN
Gelegen op eeuwigdurende erfpachtgrond. De canon bedraagt € 5.682,60 per jaar, gebaseerd op een grondwaarde van € 135.300,-- (=afkoopsom) en een canonpercentage van 4,2%. Herziening canonpercentage per 01-07-2029.
Aanvaarding in overleg.
Rioolheffing 2026 € 195,40.
Elektra 12 groepen + 3 aardlekschakelaars + 2 x 3 fase + 1 hoofdschakelaar.
Verwarming middels c.v.-combiketel, merk Intergas, bouwjaar 2022.
Warmwatervoorziening middels c.v.-combiketel en elektrische boiler (eigendom).
De onderhoudssituatie van het sanitair en de keuken is goed.
De onderhoudssituatie binnen en buiten is goed.
De woning is voorzien van kunststof/aluminium kozijnen met dubbel glas.
De woning is voorzien van markiezen.
Gemeentelijk beschermd stadsgezicht.
Koper is vrij in notariskeuze, echter wel in regio Haaglanden.
De lood- /asbest- en ouderdomsclausules zijn van toepassing.
Bouwjaar 1950.
Woonoppervlakte ca. 154 m².
De inhoud van de woning is ca. 570 m³.
De woning is bouwkundig gekeurd.
Model NVM-koopakte van toepassing.
NABIJ
Winkels aan de het De Savornin Lohmanplein, Kijkduin, Goudsbloemlaan, Fahrenheitstraat, Thomsonlaan, Frederik Hendriklaan en Haagse binnenstad.
Bosjes van Pex, duinen, strand en zee, Badplaats Kijkduin, restaurants en musea.
Openbaar vervoer, (RandstadRail lijn 3, bus 24) uitvalswegen via Hubertustunnel en Westlandroute.
Nabij Europese en/of International School of The Hague, basisscholen en diverse sportfaciliteiten.
KADASTRALE INFORMATIE:
Gemeente : Loosduinen
Sectie : I
Nummer : 5670
Grootte : 4 are 62 centiare
De Meetinstructie is gebaseerd op de NEN2580. De Meetinstructie is bedoeld om een meer eenduidige manier van meten toe te passen voor het geven van een indicatie van de gebruiksoppervlakte. De Meetinstructie sluit verschillen in meetuitkomsten niet volledig uit, door bijvoorbeeld interpretatieverschillen, afrondingen of beperkingen bij het uitvoeren van de meting.
Interesse in dit huis? Schakel direct uw eigen NVM-aankoopmakelaar in.
Uw NVM-aankoopmakelaar komt op voor uw belang en bespaart u tijd, geld en zorgen.
Adressen van collega NVM-aankoopmakelaars in Haaglanden vindt u op Funda.
########################################################
Located on a spacious and sunny plot of 462 m² opposite the dunes, this 7-room corner house features a detached garage and the possibility of parking on private property.
LAYOUT
Entrance, hallway with wooden parquet flooring extending into the living room, recessed under stair cupboard, toilet with dual-flush unit and hand basin, French doors to the bright living/dining room with front and side bay windows, gas fireplace with sandstone mantelpiece and open passage to the extended kitchen equipped with a natural stone countertop, 5-burner gas stove with fryer, dishwasher, fridge/freezer, close-in boiler, oven and microwave. From the kitchen/living room there is access to a beautiful garden with a stone garage equipped with an electric up-and-over door, irrigation system and garden lighting installation. The backyard can be enclosed with a high fence and there is parking space for 2 to 3 cars on private property.
FIRST FLOOR
Landing, toilet with dual-flush toilet and hand basin, rear bedroom featuring a wall of wardrobes and a spacious balcony and a black and white tiled bathroom with a walk-in (rain) shower and vanity unit, front side room, front bedroom with a balcony and unobstructed view over the dunes.
SECOND FLOOR
Landing with access to a spacious loft, storage space under the front roof slope, opened-up attic room (formerly 2 bedrooms) with dormer windows, 2nd bathroom with shower, washbasin and washer/dryer setup.
For the dimensions of the rooms please refer to the floor plans.
SPECIAL FEATURES
Eternal lease-hold land. The rent charge is € 5.682,60 per year, based on a land value of € 135.300,-- (= redemption) and a rent rate of 4,2%. Review rent rates by 01-07-2029.
Acceptance in agreement.
Sewage charges 2026 € 195,40.
Electricity 12 groups + 3 circuit breakers + 2 x 3 fase + 1 hoofdschakelaar.
Central heating system, brand Intergas, model 2022.
Hot water supply by central heating system and electric water heater (owned).
The condition of the bathroom and the kitchen is good.
The condition of the interior and exterior is good.
The house has synthetic/aluminum window frames with double glazing.
The house is equipped with awnings.
Part of the conservation area of the village or town ( beschermd stads- of dorpsgezicht)
The buyer is free to choose a notary, but must be located in the Haaglanden region.
The lead-/asbestos and age clauses will be applied.
Built in 1950.
Living surface approx. 154 m².
The volume of the house approx. 570 m³.
Technical survey available.
NVM model deed applicable.
NEAR
Shops at the De Savornin Lohmanplein, Kijkduin, Goudsbloemlaan, Fahrenheitstraat, Thomsonloaan, Frederik Hendriklaan and Center of The Hague.
Bosjes van Pex, dunes, beach and sea, Boulevard of Kijkduin, restaurants and museums.
Public transport (RandstadRail Line 3, Bus 24) and main roads through Westland Road and Hubertustunnel.
Close to European- and International School of The Hague, various schools and sport facilities.
The measurement instruction is based on NEN2580. The measurement instruction is intended to apply a more uniform way of measuring for giving an indication of the use surface. The measurement instruction can not completely close differences in measurement results, for example by differences in interpretation, rounding or limitations in the performance of the measurement.





Wilt u meer weten over deze woning of een bezichtiging plannen? Bel of mail ons of vul het formulier in.
Heeft u een vraag?
Bel ons (070) 365 00 00
of mail info@joostvanvliet.nl


