Asterstraat 170, Den Haag

Asterstraat 170 vraagprijs  € 385.000 k.k.


Asterstraat 170, Bloemenbuurt

Prachtig gemoderniseerd en licht 4-kamer appartement op de 1ste verdieping met 3 slaapkamers, moderne open keuken en zonnig balkon op het zuidwesten.
Erfpachtcanon is afgekocht.

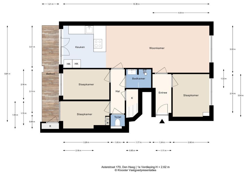
INDELING
Via open portiek, entree appartement op 1ste verdieping, gang, toegang naar royale voorslaapkamer.

Sfeervolle woon-/eetkamer met open keuken met hardstenen werkbladen en voorzien van diverse inbouwapparatuur zoals inductie kookplaat, Quooker, afzuigkap vaatwasser, koel/vriescombinatie en combi-oven.
Via openslaande deuren naar zonnig balkon gelegen op het zuidwesten met bergkast.

Aan de achterzijde liggen 2 slaapkamers en een moderne badkamer met inloopdouche, fraai wastafelmeubel, handdoekradiator en voorzien van mechanische ventilatie.

Voor de afmetingen van de kamers verwijzen wij u naar de plattegronden.

BIJZONDERHEDEN
Gelegen op eeuwigdurende erfpachtgrond, waarvan de canon is afgekocht.
Aanvaarding in overleg.
Rioolheffing 2026 € 195,40 per jaar.
1/3e aandeel in de gemeenschap.
Actieve Vereniging van Eigenaren, bijdrage € 100,-- per maand.
Elektra 8 groepen met zonder aardlekschakelaar.
Verwarming middels c.v.-combiketel, bouwjaar 2022.
Warmwatervoorziening middels c.v.-combiketel.
De onderhoudssituatie van het sanitair en de keuken is goed.
De onderhoudssituatie binnen is uitstekend en buiten goed.
Het appartement is voorzien van kunststof kozijnen met dubbel glas.
Verkoper heeft de woning nooit zelf feitelijk gebruikt.
Koper is vrij in notariskeuze, echter wel in regio Haaglanden.
De lood- /asbest- en ouderdomsclausules zijn van toepassing.
Bouwjaar 1924.
Woonoppervlakte ca. 68 m².
De inhoud van het appartement is ca. 225 m³.
Model NVM-koopakte van toepassing.

NABIJ
Nabij winkels aan Goudsbloemlaan, de De Savornin Lohmanplein, Europese School en International School of The Hague.
Sportfaciliteiten zoals tennis, voetbal en hockey.
Bosjes van Pex, strand, zee en duinen en Badplaats Kijkduin en het centrum.

Op loopafstand van openbaar vervoer RandstadRail lijn 3, bus 23 en 24 en in directe omgeving van uitvalswegen via Westlandroute en Hubertustunnel..

KADASTRALE INFORMATIE
Gemeente : ’s-Gravenhage
Sectie : AN
Nummer : 4913
Appartementsindex : -2

De Meetinstructie is gebaseerd op de NEN2580. De Meetinstructie is bedoeld om een meer eenduidige manier van meten toe te passen voor het geven van een indicatie van de gebruiksoppervlakte. De Meetinstructie sluit verschillen in meetuitkomsten niet volledig uit, door bijvoorbeeld interpretatieverschillen,afrondingen of beperkingen bij het uitvoeren van de meting.

Interesse in dit huis? Schakel direct uw eigen NVM-aankoopmakelaar in.
Uw NVM-aankoopmakelaar komt op voor uw belang en bespaart u tijd, geld en zorgen.
Adressen van collega NVM-aankoopmakelaars in Haaglanden vindt u op Funda.

#################################


Beautifully modernized and bright 4-room apartment on the 1st floor with 3 bedrooms, modern open plan kitchen and sunny south-west facing balcony.
Rent charge has been bought off.

LAYOUT
Through open porch, entrance apartment on 1st floor, hallway, access to spacious front bedroom.

Attractive living-/dining room with open plan kitchen with hard stone worktops, equipped with various built-in appliances such as induction hob, Quooker, extractor hood, dishwasher, fridge/freezer combination and combi oven. French doors to sunny balcony facing south-west with storage cupboard.

At the rear are 2 bedrooms and a modern bathroom with walk-in shower, beautiful washbasin, towel radiator and mechanical ventilation.

For the dimensions of the rooms please refer to the floor plans.

SPECIAL FEATURES
Eternal lease-hold land which the rent charge has been bought off.
Acceptance in agreement.
Sewerage charges 2026 € 195,40 per year.
1/3rd share in the community.
Active Owners Association, contribution € 100,-- each month.
Electricity 8 groups with circuit breakers.
Central heating system, built in 2022.
Hot water supply by central heating system.
The condition of the bathroom and the kitchen is good.
The condition of the interior is excellent and the exterior good.
The apartment has synthetic window frames with double/single glazing.
Seller has the apartment itself never actually used.
The buyer is free to choose a notary but must be in the Haaglanden region.
The lead-/asbestos and age clauses will be applied.
Built in 1924.
Living surface approx. 68 m².
The volume of the apartment approx. 225 m³.
NVM model deed applicable.

NEAR
Shops at Goudsbloemlaan, De Savornin Lohmanplein, European School and International School of The Hague.
Sports facilities such as tennis, football and hockey.
Bosjes van Pex, beach, sea and dunes and Kijkduin seaside resort and the center.
Public transport (RandstadRail Line 3, Bus 23 and 24) and main roads through Westland Road and Hubertustunnel.

The measurement instruction is based on NEN2580. The measurement instruction is intended to apply a more uniform way of measuring for giving an indication of the use surface. The measurement instruction can not completely close differences in measurement results, for example by differences in interpretation, rounding or limitations in the performance of the measurement.

Locatie

[ { "address": "Asterstraat 170", "zipCode": "2565 TZ", "city": "Den Haag", "lat": 52.075252, "lng": 4.2579099, "heading": 0, "pitch": 0 } ]

Kenmerken

Vraagprijs
€ 385.000 k.k.
Status
Verkocht onder voorbehoud
Oplevering
In overleg

Bouw

Soort appartement
Portiekwoning, Appartement
Woonlaag
1
Soort bouw
Bestaande bouw
Bouwjaar
1924
Onderhoud binnen
Uitstekend
Onderhoud buiten
Goed

Oppervlakten en inhoud

Woonoppervlakte
68m²
Overig oppervlakte
1m²
Inhoud
225m³

Indeling

Aantal kamers
4
Aantal slaapkamers
3
Aantal badkamers
1
Aantal verdiepingen
1

Energie

Energielabel
A
Isolatie
Dubbel glas
Warm water
C.V.-ketel
Verwarming
C.V.-ketel
Ketel
(2022, Combi-ketel, Eigendom)

Buitenruimte

Ligging
Aan rustige weg, In woonwijk
Balkon
Ja

Garage

Documenten

Plattegronden

Bekijk verloop van de zon

Uw browser ondersteunt geen WebGL

Afspraak of contact

Wilt u meer weten over deze woning of een bezichtiging plannen? Bel of mail ons of vul het formulier in.


Uw bericht is naar ons verzonden. Wij nemen zo snel mogelijk contact met u op.

Er is iets mis gegaan met het versturen van het formulier.
Controleer of u alle velden (goed) heeft ingevoerd en probeer het nog een keer.

recaptcha
reCAPTCHA
PrivacyTerms

Heeft u een vraag?
Bel ons (070) 365 00 00
of mail info@joostvanvliet.nl

Vergelijkbare woningen