Aronskelkweg 70, Bohemen Rechts
Op de hoek van de Hoefbladlaan gelegen ruim en licht 3-laags bovenhuis met prachtig uitzicht, 4 ruime slaapkamers, zonnige grote balkons en fietsenberging op de begane grond. De woning kan zo betrokken worden.
INDELING:
Entree op de begane grond, vestibule met de meterkast, trap naar de 1e verdieping.
1e VERDIEPING:
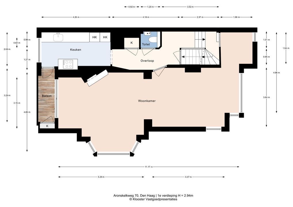
Ruime gang voorzien van laminaatvloer doorgelegd in de gehele woning, vrij hangend toilet met fontein, garderobekast, L-vormige lichte woon/eetkamer met voor- en zijerker en fantastisch uitzicht door de Hoefbladlaan en Aronskelkweg, hout openhaard, separatie, ornamenten plafond en schuifpui naar een zonnig balkon gelegen op het zuidoosten voorzien van balkonkast, moderne witte nette keuken met inductie en geïntegreerde afzuiging in een schouw, magnetron, oven, koel/vrieskast (3 laden), vaatwasser en close-in boiler. Bordestrap naar de 2e woonlaag.
2e VERDIEPING:
Ruime overloop, modern toilet betegeld met glasmozaïek, ruime achterzijkamer grenzend aan groter balkon voorzien van balkonkast en gelegen op het zuidoosten, lichte en ruime achterslaapkamer tevens grenzend aan het ruime balkon, tussengelegen badkamer voorzien van inloopdouche en badkamermeubel, voorslaapkamer met prachtig uitzicht over een waterplantsoen, voorzijkamer voorzien van een vaste trap naar de 3e verdieping.
3e VERDIEPING:
Ruime overloop voorzien van dakkapel, dakraam en wasmachine aansluiting, schitterende zolderkamer met bergruimte achter de knieschotten, dakraam in het voordakschild en dakkapel vrijwel over de gehele breedte aan de achterkant.
Voor de afmetingen van de kamers verwijzen wij u naar de plattegronden.
BIJZONDERHEDEN
Gelegen op eeuwigdurende erfpachtgrond. De canon bedraagt € 1.188,-- per jaar, gebaseerd op een grondwaarde van € 29.700,-- (=afkoopsom) en een canonpercentage van 4,0%. Herziening canonpercentage per 01-01-2026.
Aanvaarding in overleg.
Rioolheffing 2025 € 191,15 per jaar.
1/3e aandeel in de gemeenschap.
Actieve Vereniging van Eigenaren, bijdrage € 200,-- per maand.
Elektra 6 groepen + 3 fases + 2 aardlekschakelaars.
Verwarming middels c.v.-combiketel, merk Intergas, bouwjaar 2015. Warmwatervoorziening middels elektrische boiler (eigendom).
De onderhoudssituatie van het sanitair en de keuken is goed/uitstekend.
De onderhoudssituatie binnen en buiten is goed.
Het appartement is voorzien van kunststof kozijnen met dubbel glas.
Koper is vrij in notariskeuze, echter wel in regio Haaglanden.
De lood- /asbest- en ouderdomsclausules zijn van toepassing.
Bouwjaar 1935.
Woonoppervlakte ca. 159 m².
De inhoud van het appartement is ca. 585 m³.
Model NVM-koopakte van toepassing.
NABIJ
Winkels aan het De Savornin Lohmanplein, Alphons Diepenbrockhof, Goudsbloemlaan, Fahrenheitstraat, Thomsonlaan en Haagse binnenstad.
Meer en Bosch, duinen, strand en zee, Badplaats Kijkduin, restaurants en musea.
Openbaar vervoer, (RandstadRail lijn 3, bus 24), uitvalswegen via Hubertustunnel en Westlandroute.
Nabij Europese en/of International School of The Hague, basisscholen en diverse sportfaciliteiten.
KADASTRALE INFORMATIE
Gemeente : Loosduinen
Sectie : H
Nummer : 5256
Appartementsindex : -2
De Meetinstructie is gebaseerd op de NEN2580. De Meetinstructie is bedoeld om een meer eenduidige manier van meten toe te passen voor het geven van een indicatie van de gebruiksoppervlakte. De Meetinstructie sluit verschillen in meetuitkomsten niet volledig uit, door bijvoorbeeld interpretatieverschillen,afrondingen of beperkingen bij het uitvoeren van de meting.
Interesse in dit huis? Schakel direct uw eigen NVM-aankoopmakelaar in.
Uw NVM-aankoopmakelaar komt op voor uw belang en bespaart u tijd, geld en zorgen.
Adressen van collega NVM-aankoopmakelaars in Haaglanden vindt u op Funda.
#################################################
Situated on the corner of Hoefbladlaan, this spacious and bright three-story apartment boasts beautiful views, four spacious bedrooms, large sunny balconies, and bicycle storage on the ground floor. Ready to move in.
LAY-OUT:
Ground floor entrance, vestibule with the meter cupboard and stairs to the first floor.
FIRST FLOOR:
Spacious hallway with laminate flooring throughout, wall-mounted toilet with hand basin, wardrobe, L-shaped, bright living/dining room with front and side bay windows and fantastic views on the Hoefbladlaan and Aronskelkweg, wood-burning fireplace, partition, ornamental ceiling and sliding doors leading to a sunny southeast-facing balcony with a balcony cupboard. A modern, neat white kitchen with induction hob and integrated extractor fan, microwave, oven, refrigerator/freezer (3 drawers), dishwasher and a built-in water heater. Stairs to the second floor.
SECOND FLOOR:
Spacious landing, modern toilet tiled with glass mosaic tiles, spacious rear side room adjoining a larger balcony with a balcony cupboard and facing southeast, bright and spacious rear bedroom also adjoining the spacious balcony, intermediate bathroom with a walk-in shower and vanity, front bedroom with a beautiful view on a water feature, front side room with a fixed staircase to the third floor.
THIRD FLOOR:
Spacious landing with a dormer window, skylight and washing machine connection, beautiful attic room with storage space behind the knee walls, skylight in the front roof slope and a dormer window spanning almost the entire width of the rear.
For the dimensions of the rooms please refer to the floor plans.
SPECIAL FEATURES
Eternal lease-hold land. The rent charge is € 1.188,-- per year, based on a land value of € 29.700,-- (= redemption) and a rent rate of 4%. Review rent rates by 01-01-2026.
Acceptance in agreement.
Sewerage charges 2025 € 191,15 per year.
1/3rd share in the community.
Active Owners Association, contribution € 200,-- each month.
Electricity 6 groups + 3 fases + 2 circuit breakers.
Central heating system, brand Intergas, model 2015.
Hot water supply by electric water heater (owned).
The condition of the bathroom and the kitchen is good/excellent.
The condition of the interior and exterior is good.
The apartment has synthetic window frames with double glazing.
The buyer is free to choose a notary, but must be located in the Haaglanden region.
The lead-/asbestos and age clauses will be applied.
Built in 1934.
Living surface approx. 159 m².
The volume of the apartment approx. 585 m³.
NVM model deed applicable.
NEAR
Shops at het De Savornin Lohmanplein, Alphons Diepenbrockhof, Goudsbloemlaan, Fahrenheitstraat, Thomsonlaan and Center of The Hague.
Meer en Bosch, dunes, beach and sea, Boulevard of Kijkduin, restaurants and museums.
Public transport (RandstadRail Line 3, Bus 24) and main roads through Westland Road and Hubertustunnel.
Close to European- and International School of The Hague, various schools and sport facilities.
The measurement instruction is based on NEN2580. The measurement instruction is intended to apply a more uniform way of measuring for giving an indication of the use surface. The measurement instruction can not completely close differences in measurement results, for example by differences in interpretation, rounding or limitations in the performance of the measurement.




Wilt u meer weten over deze woning of een bezichtiging plannen? Bel of mail ons of vul het formulier in.
Heeft u een vraag?
Bel ons (070) 365 00 00
of mail info@joostvanvliet.nl

