Valkenboskade 227, Valkenboskwartier
Karakter, comfort en locatie komen zelden zo overtuigend samen als in dit appartement aan de Valkenboskade. Gelegen aan één van de mooiste kades van Den Haag een royaal 4-kamer appartement (ca. 107 m²) met panoramisch uitzicht en hoogwaardige afwerking, voorzien van lichte woon-/eetkamer die uitkijkt op de kade, 2 ruime slaapkamers, moderne dichte keuken, ruime moderne badkamer en 2 balkons aan de achterzijde. De plafondhoogte van 3,10 versterkt het ruimtelijke gevoel.
Centraal gelegen op eigen grond op loopafstand van diverse winkelstraten zoals de Fahrenheit-, Weimar- en Vlierboomstraat, parken, openbaar vervoer en de binnenstad van Den Haag.
INDELING
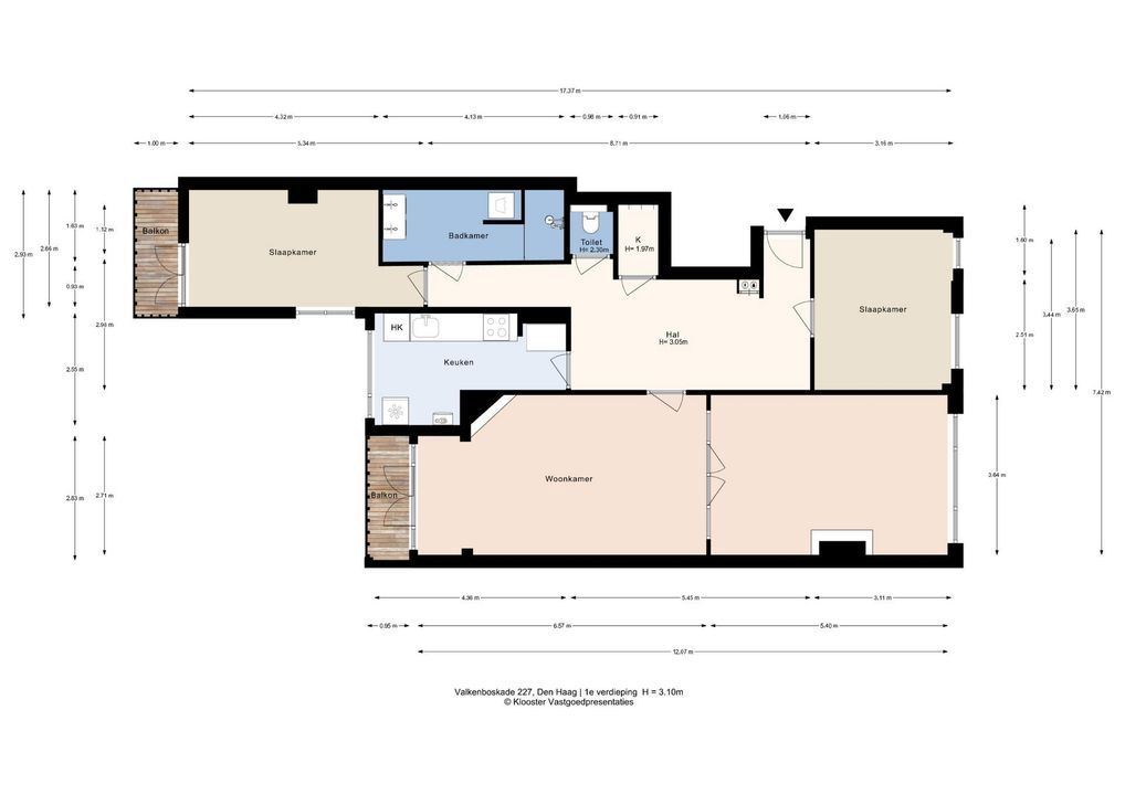
Via ruim open portiek de entree van het appartement op de 1e verdieping. Ruime centrale hal met toegang tot alle vertrekken, meterkast, vaste kast en een separaat ruim modern toilet. Ruime nieuwe fraai betegelde badkamer voorzien van inloop(regen)douche, dubbel wastafelmeubel, spiegelkast, badkamermeubel, designradiator en aansluitingen voor wasmachine en droger.
Lichte woon/eetkamer van cira 44 m2 voorzien van prachtige originele suite deuren met diep zand geëtst glas, uitgevoerd in twee luxueuze Art Nouveau/Art Deco motieven, waarmee u de living en eetkamer kunt scheiden. Verder is de woon/eetkamer voorzien van een zware kwaliteit PVC-vloer in visgraatmotief, hoge plafonds met de originele ornamenten, 2 antieke schouwen, vrij uitzicht aan de voorzijde en via de achterkamer middels openslaande deuren toegang tot het 1e achterbalkon, gelegen op het noordoosten, voorzien van een markies.
Moderne dichte keuken van 1,5 jaar oud, voorzien van een BORA inductiekookplaat met geïntegreerde afzuiging, afzuigkap, inbouwapparatuur als een combi-oven en vaatwasser (merk AEG), een separate koel/vriescombinatie en opstelplaats cv-ketel.
Lichte voorslaapkamer en een ruime achterslaapkamer met zijraam en openslaande deuren naar het 2e achterbalkon, gelegen op het noordwesten.
Voor de afmetingen van de kamers verwijzen wij u naar de plattegronden.
BIJZONDERHEDEN
Het appartement is gelegen op eigen grond.
Aanvaarding in overleg.
Rioolheffing 2026 € 195,40 per jaar.
1/3e aandeel in de gemeenschap.
Actieve Vereniging van Eigenaren, bijdrage € 150,-- per maand.
Electra vernieuwd, 8 groepen met aardlekschakelaar.
Verwarming en warm water via een Remeha-Avanta cv-combiketel uit 2022
De onderhoudssituatie van het sanitair en de keuken is uitstekend.
De onderhoudssituatie binnen is goed tot uitstekend en buiten goed.
Het gehele dak is vervangen in 2021.
Het appartement is aan de voorzijde voorzien van kunststof en houten kozijnen en aan de achterzijde voorzien van houten kozijnen met HR++ glas.
Schilderwerk achterzijde kozijnen en beide balkons is uitgevoerd in september 2025.
Wanden recent gestuct en geschilderd; karakteristieke details in goede staat
Gelegen in een rustige straat, nabij openbaar vervoer, scholen en op fietsafstand van de binnenstad en het strand
Gemeentelijk beschermd stadsgezicht Valkenboskwartier.
Koper is vrij in notariskeuze, echter wel in regio Haaglanden.
De lood- /asbest- en ouderdomsclausules zijn van toepassing.
Bouwjaar 1916.
Woonoppervlakte ca. 107 m². De inhoud van het appartement is ca. 405 m³.
Model NVM-koopakte van toepassing.
NABIJ
Winkels aan de Fahrenheitstraat, Thomsonlaan, Goudsbloemlaan, Weimarstraat, Reinkenstraat, Centrum, Haagse binnenstad en Frederik Hendriklaan.
Bosjes van Poot, duinen, strand en zee, Haven van Scheveningen, restaurants en musea.
Openbaar vervoer, (RandstadRail lijn 3, tramlijn 12, bus 24 met directe verbinding naar Den Haag CS en Den Haag HS met (inter)nationale treinen), uitvalswegen via Hubertustunnel en Westlandroute.
Nabij Europese en/of International School of The Hague, basisscholen en diverse sportfaciliteiten.
KADASTRALE INFORMATIE
Gemeente : ’s-Gravenhage
Sectie : AM
Nummer : 7820
Appartementsindex : -2
De Meetinstructie is gebaseerd op de NEN2580. De Meetinstructie is bedoeld om een meer eenduidige manier van meten toe te passen voor het geven van een indicatie van de gebruiksoppervlakte. De Meetinstructie sluit verschillen in meetuitkomsten niet volledig uit, door bijvoorbeeld interpretatieverschillen,afrondingen of beperkingen bij het uitvoeren van de meting.
Interesse in dit huis? Schakel direct uw eigen NVM-aankoopmakelaar in.
Uw NVM-aankoopmakelaar komt op voor uw belang en bespaart u tijd, geld en zorgen.
Adressen van collega NVM-aankoopmakelaars in Haaglanden vindt u op Funda.
###################################################################################################
Character, comfort, and location rarely combine so convincingly as in this apartment on Valkenboskade. Situated on one of The Hague's most beautiful quays, this spacious 4-room apartment (approx. 107 m²) offers panoramic views and high-quality finishes. It features a bright living/dining room overlooking the quay, two spacious bedrooms, a modern integrated kitchen, a spacious modern bathroom, and two balconies at the rear. The 3.10-meter ceiling height enhances the feeling of spaciousness.
Centrally located on freehold land within walking distance of various shopping streets such as Fahrenheitstraat, Weimarstraat, and Vlierboomstraat, parks, public transport, and The Hague city center.
LAYOUT
The apartment is located on the first floor through a spacious open porch. A spacious central hall provides access to all rooms, a meter cupboard, a built-in wardrobe, and a separate, spacious, modern toilet. The spacious, new, beautifully tiled bathroom features a walk-in (rain) shower, double vanity, mirrored cabinet, vanity unit, designer radiator, and connections for a washing machine and dryer.
The bright living/dining room, approximately 44 m², features beautiful original doors with deep sand-etched glass, finished in two luxurious Art Nouveau/Art Deco motifs, separating the living and dining areas. The living/dining room also features a heavy, high-quality PVC herringbone floor, high ceilings with original ornamentation, two antique fireplaces, unobstructed views to the front, and French doors from the back room provide access to the first rear balcony, facing northeast and equipped with an awning. The modern, 1.5-year-old closed kitchen features a BORA induction cooktop with integrated extractor hood, integrated appliances including a combination oven and dishwasher (AEG), a separate fridge/freezer, and the central heating boiler.
A bright front bedroom and a spacious rear bedroom with a side window and French doors leading to the second rear balcony, facing northwest.
For the dimensions of the rooms please refer to the floor plans.
SPECIAL FEATURES
The property is freehold.
Acceptance in agreement.
Sewerage charges 2026 € 195,40 per year.
1/3rd share in the community.
Active Owners Association, contribution € 150,-- each month.
Electrical wiring has been renewed, with 8 groups with circuit breaker.
Heating and hot water are provided by a Remeha-Avanta central heating boiler from 2022.
The plumbing and kitchen are in excellent condition.
The interior is good/excellent, and the exterior is good.
The entire roof was replaced in 2021.
The apartment has uPVC and wooden window frames at the front and wooden window frames with HR++ glazing at the rear.
The rear of the window frames and both balconies were painted in September 2025.
Walls were recently plastered and painted; characteristic details are in good condition.
Located on a quiet street, close to public transport, schools, and within cycling distance of the city center and the beach.
Part of the conservation area of the village or town Valkenboskwartier.
The buyer is free to choose a notary but must be located in the Haaglanden region.
The lead-/asbestos and age clauses will be applied.
Built in 1916.
Living surface approx. 107 m².
The volume of the apartment approx. 405 m³.
NVM model deed applicable.
NEAR
Shops at the Fahrenheitstraat, Thomsonlaan, Goudsbloemlaan, Weimarstraat, Reinkenstraat, Center of The Hague and Frederik Hendriklaan.
Bosjes van Poot, dunes, beach and sea, Harbor of Scheveningen, restaurants and museums.
Public transport (RandstadRail Line 3, tram 12, bus 24 with direct connection to The Hague CS and HS with (inter)national trains), main roads through Westland Road and Hubertustunnel.
Close to European- and International School of The Hague, various schools and sport facilities.
The measurement instruction is based on NEN2580. The measurement instruction is intended to apply a more uniform way of measuring for giving an indication of the use surface. The measurement instruction can not completely close differences in measurement results, for example by differences in interpretation, rounding or limitations in the performance of the measurement.

Wilt u meer weten over deze woning of een bezichtiging plannen? Bel of mail ons of vul het formulier in.
Do you have a question?
Call us (070) 365 00 00
or mail info@joostvanvliet.nl